Grange 1866(农庄1866)| 新加坡黄金区乌节路尊贵地段的顶级豪宅, 名校环绕,永久产权!
点击上方蓝字,记得关注我们!




简介
Grange 1866 ,果园1866农庄 位于D10邮区的74 Grange Rd, Singapore 249578 , 由知名开发商Grange1866Pte Ltd开发。Grange 1866拥有永久产权,共60个单位。
新加坡邮区分布图


坐落于新加坡尊贵地段的顶级豪宅 Grange 1866, 由喜敦有限公司开发。是一个拥有永久业权的豪宅项目,坐落于新加坡格兰芝路 (Grange Road)区,属亚洲少见的高尚永久业权地段之一。项目的所在地位于新加坡第10区,是属于核心中央区。围绕着项目的事都是高尚私宅如巴德申山大厦(The Marq on Paterson Hill)和72号格兰芝路(72 Grange Road),而项目的对面是沿着格兰芝路的万豪登楼(Manhatten Mansion)。格兰芝路也非常靠近新加坡著名的乌节路(Orchard Road) 购物区,步行几分钟就能到达。该地段虽然非常靠近热闹的购物区但这里环境非常幽静,非常适合自住。
Grange 1866的占地总面积为1,880平方米,是属于永久产权。项目是由发展商,Grange 1866 Pte Ltd 所开发的,预计于2024年3月31日能取得临时入伙准证。项目包括1栋16层高的建筑,共有60套私宅单位。项目拥有的户型包括15套一卧房单位,面积为49平方米,15套两卧房单位,面积为66平方米,15套两卧房豪华单位,面积为71平方米和15套两卧房高级单位,面积介于76至77平方米。

Grange 1866 距离乌节地铁站(Orchard MRT Station)约600米,步行约6到7分钟就可到达。该地铁站目前营运的是地铁南北线(MRT North South Line)。该地铁站目前正在提升中,在约2021年将会增添多一条地铁线, 汤申-东海岸地铁线(MRT Thomson East Coast Line),该站将会成为其中一个主要的交通枢纽。这新的地铁线也会为居民带来许多方便。
Grange 1866 紧邻繁华璀璨的乌节路购物区、高楼林立的滨海湾新金融中心和新加坡河两岸热闹非凡的休闲娱乐区。 数步之内,便能享受非一般的购物乐趣及多样化的国际餐饮,至于中央商业区,更只需5分钟车程即达。 此外,驾车人士可使用靠近的中央高速公路(CTE)、泛岛高速路(PIE)和亚逸拉惹高速公路 (AYE), 通过这些高速公路可以非常方便的到达新加坡全岛。

Grange 1866 靠近的学府有雅德小学(Alexandra Primary School )、彰德小学 (Zhangde Primary School)、英华小学 (Anglo-Chinese Junior School)、颜永成学校 ( Gan Eng Seng Secondary School)、莱佛士女子中学 (Raffles Girls’ Secondary School) 、克信女子中学 (Crescent Girls’ School)、欧南中学 (Outram Secondary School)、女皇镇中学 (Queenstown Secondary School)。
国际学校有如ISS国际学校(小学和中学校园)(ISS International School (Elementary & Middle School Campus))、挪威国际补习学校(Norwegian Supplementary School)、芬兰补习学校(Finnish Supplementary School)和瑞典补习学校(Swedish Supplementary School)。此外,Grange 1866也非常靠近世界文明的芝加哥大学布斯商学院 (University Of Chicago Booth School Of Business)。
Grange 1866周边的娱乐设施也非常齐全有如美国人俱乐部(American Club)、东陵俱乐部(Tanglin Club)、登布希山(Dempsey Hill)、新加坡植物园 (Singapore Botanic Gardens)、克拉码头(Clarke Quay)、等等。登布希山原本是英国驻军和负责招募兵役的新加坡中央人力局的驻地。这个当年回荡著乡愁的地方,如今成为新加坡人极其钟爱的休闲餐饮之地。
地址:74 Grange Road(74 格兰芝路)
发展商:Grange 1866 Pte Ltd
地契:永久
预计完工:2024年3月31日
总面积:约 1,880平方米
总单位数:60
楼盘概况
楼盘名称:
Grange 1866
开发商:
Grange 1866 Private Limited
产权:
永久产权
完成年份:
2024 年
单位数量:
60
楼层数量:
16
起始总价:
新币 $
每平方英尺起始:
新币 $

卖点
Grange 1866 永久产权居所
直通汤姆森(NS22/TS14)地铁站
临近优质学校教育资源
这个新的住宅开发项目靠近, 8 St Thomas ,Martin Modern,Regency Park,Stellar RV,Nathan Suite,Loft @ Nathan和Nathan Residences。
坐落于高地
静谧的私有空间
尽享高处的祥和安居
附近学校
亚历山德拉小学– 1.1km
漳德小学– 1.7公里
英华学校(初中)– 1.7公里
甘永生中学– 1.3公里
莱佛士女子中学– 1.3公里
新月女子学校– 1.5公里
欧南中学– 1.7公里
皇后镇中学– 1.9公里
户型分布
户型
面积(平方英尺)
单位数量
1室
15
2室
15
2室Premium
30

主力户型
1室
新币 S$ 起
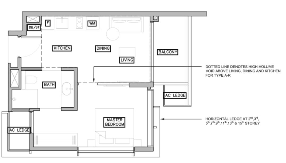
A户型1室 527平方英尺/49平方米
25%首付:S$ / 75%贷款:S$
30年贷款,2%利息,月供:S$

2室
新币 S$ 起
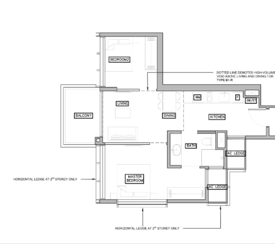
B1户型2室 710平方英尺/66平方米
25%首付:S$/ 75%贷款:S$
30年贷款,2%利息,月供:S$

2室
新币 S$ 起
B2户型2室 764平方英尺/71平方米
25%首付:S$ / 75%贷款:S$
30年贷款,2%利息,月供:S$

2室
新币 S$ 起
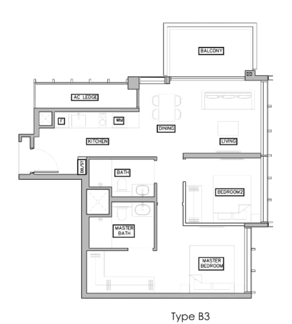
B3户型2室 818平方英尺/76平方米
25%首付:S$ / 75%贷款:S$
30年贷款,2%利息,月供:S$

2室
新币 S$ 起
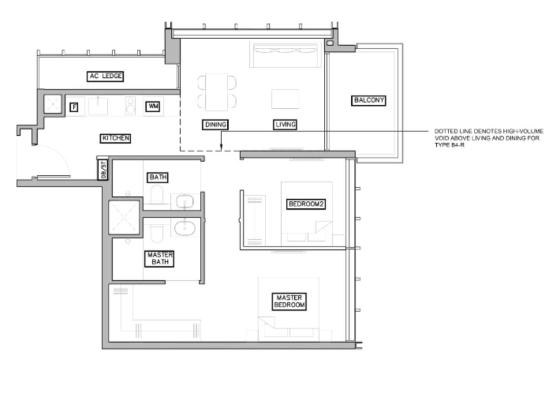
B4户型2室 829平方英尺/77平方米
25%首付:S$ / 75%贷款:S$
30年贷款,2%利息,月供:S$


金牌经纪人
林胤铭( Adrian Lim )
最大的房地产公司区域董事
楼市观察者,分析者,投资者
纵横新加坡地产界15年的老司机一枚
关于我
- 2006年以一等荣誉学位毕业于新加坡南洋理工大学
- 2008年加入老字号ERA房地产公司,同年拿到最佳新人奖
- 2013年加入博纳房地产公司,同年拿到最佳新人奖
- 荣获百万新元俱乐部成员
- 自2008年加入房地产公司, 至今连续10年拿最佳销售王奖
- 持续每年在有7600个销售人员的博纳地产保持top50的名次
- 2018年加入博纳产业唯一授权的中国精英组
在新加坡土生土长的我,了解本地风土民情,掌握政府政策变化史,经济发展策略,自新加坡成立后的房地产变迁史。精确,敏锐,专业地为您量身打造并挑选最佳的产业。为您在新加坡的房产投资保驾护航!!!
为新移民承诺一条龙免费服务,包括接送机,学校挑选及报名,公司注册,开设银行户口,兑换外币,房屋装修,保险医疗…… 亲力亲为解决您买房前后的一切后顾之忧!
了解更多买房信息,请关注我联系电话:+65 91015050

微信:a91015050
新加坡房产投资顾问

声明:文章图文均来源于网络,转载出于传播更多行业资讯之目的,不代表本公众号观点,如涉及侵权,请留言联系我方删除。
评论