The M Condo (武吉士中心区)|新潮商住混合高档公寓,永久产权,临近地铁
点击上方蓝字,记得关注我们!







简介
本项目是永久产权公寓,位于S188940,Middle路30号,07邮区。位于临近市中心的珍贵地段,附近有新加坡洲际酒店、Bugis Junction购物中心,毗邻国家图书馆大楼。步行3分钟即达武吉士(Bugis)地铁站
新加坡邮区分布图


楼盘概况
楼盘名称:
The M Condo
开发商:
Wingcharm Investment (Wing Tai Holding Ltd.)
产权:
永久产权
完成年份:
2023年
单位数量:
522
楼层数量:
20(一层有1500平商业)
起始总价:
新币 S$
每平方英尺起始:
新币 S$
卖点
~The M~
中心之上 万象合一
狮城中心 都市绿洲
临近4条地铁线
2分钟步行Bugis Junction
时尚高效家居空间与品质生活
尽揽数万白领/高端租客群
无限投资潜能
知名房企永泰亚洲WingTai Asia打造
价位低至$9x万起
环顾四周,投资良机,错过不再有
Bras Basah Complex
Raffles Hotel Shopping Arcade
Bugis Junction
Golden Landmark
Bugis Village
Burlington Square
Shaw Tower
附近学校
ECTA
JCS Japanese Language School
Intune Music School
Queensfield International Business School Pte Ltd
School of the Arts, Singapore
Inspiration Design International Bras Basah/Bugis
Stamford Primary School
Singapore Management University
Pat’s Schoolhouse @ Prinsep
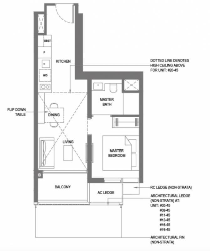
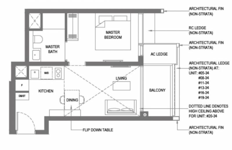
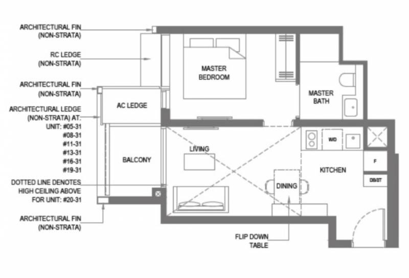
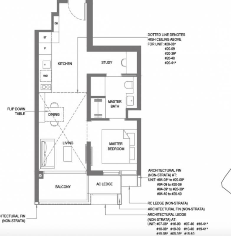
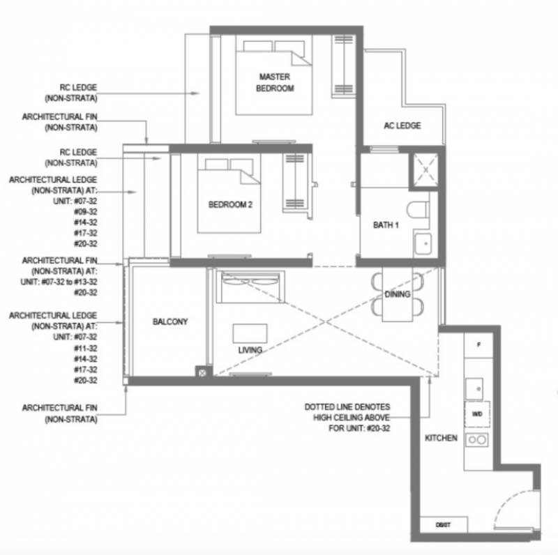
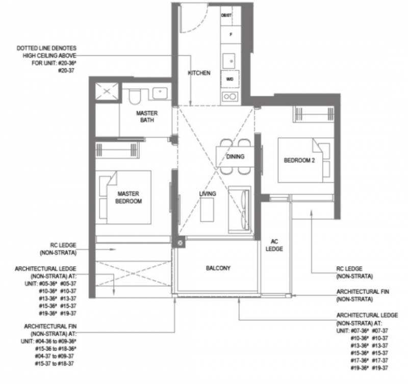
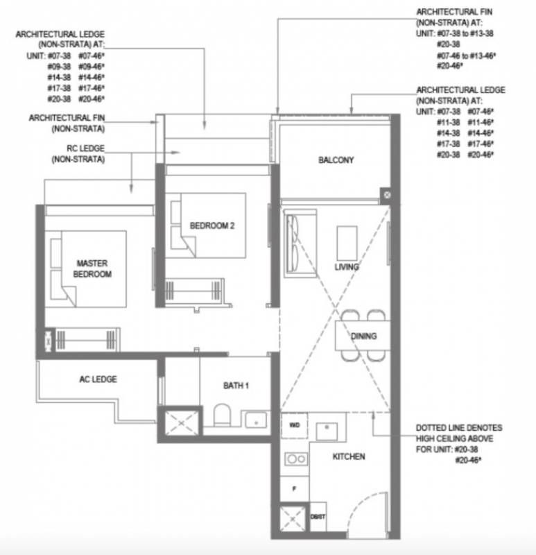
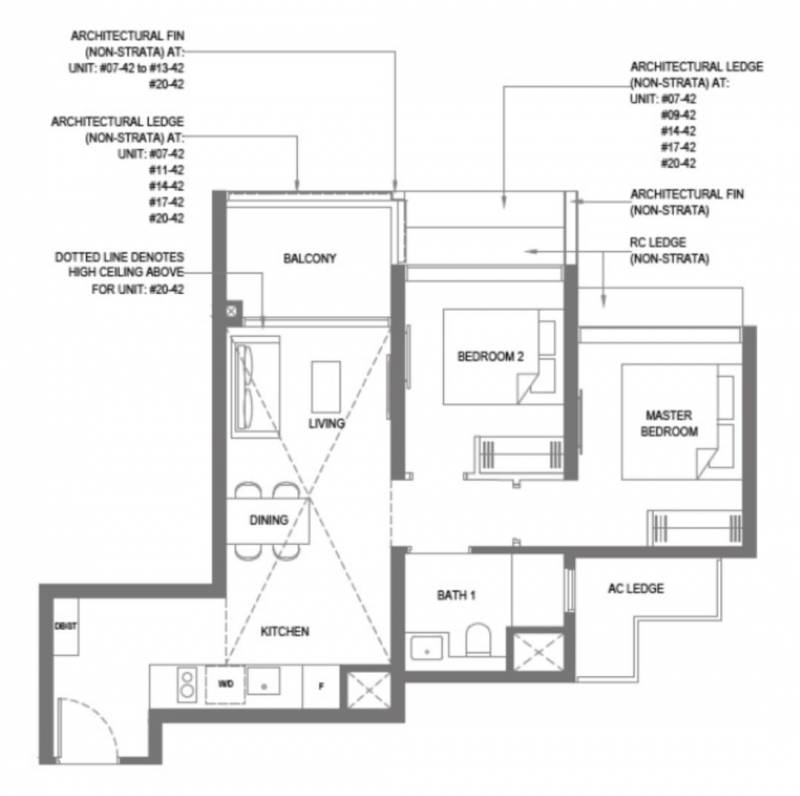
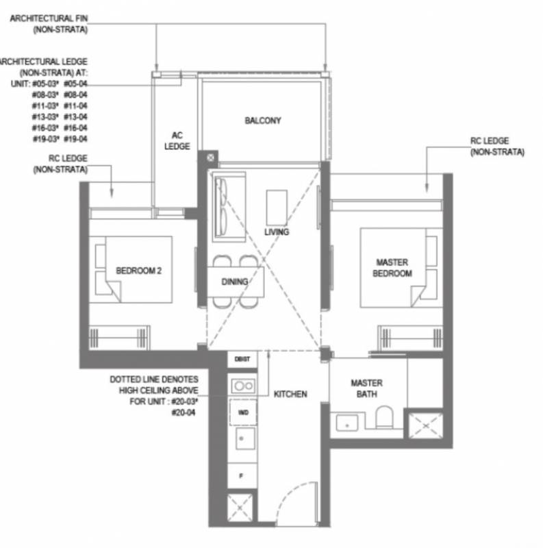
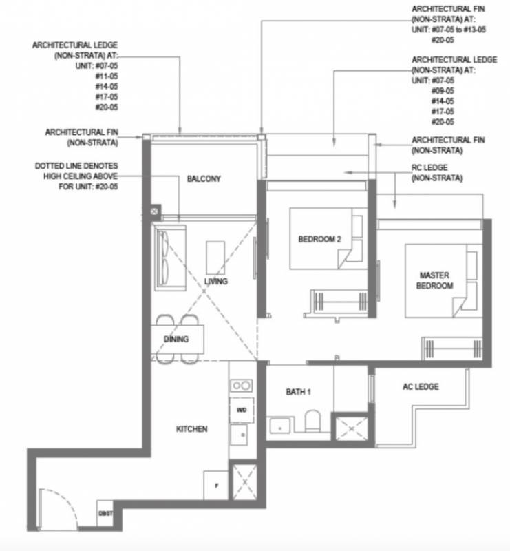
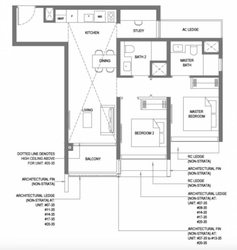
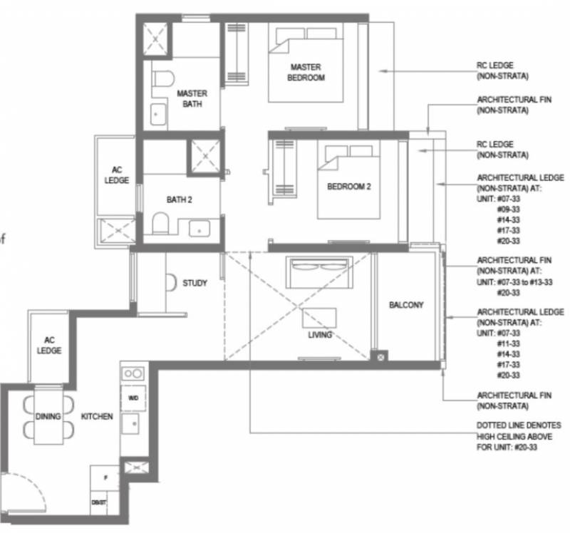
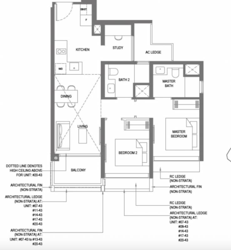
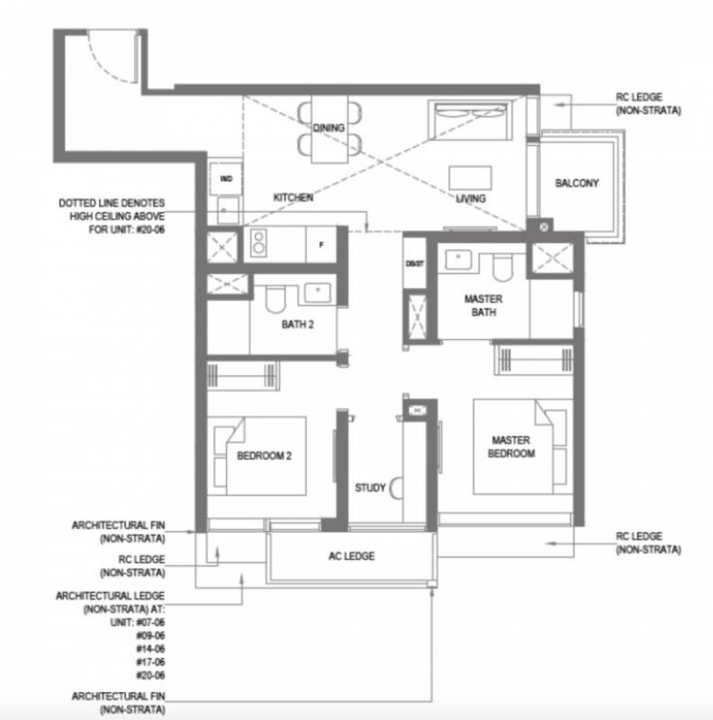
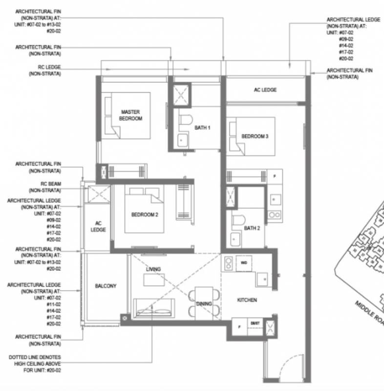
户型分布
户型
面积(平方英尺)
单位数量
1室
495
10
1001
8
2室
657-689
9
2室 Premium
710-797
17
3室
1130-1152
9
4室
1345
5
4室 Exclusive
1593
6
4室 Exclusive(有阁楼)
1991
2
户型分布:
1室
新币 S$ 起
A1户型1室 463平方英尺/43平方米
25%首付:S$ / 75%贷款:S$
30年贷款,2%利息,月供:S$

1室
新币 S$ 起
A2a户型2室 441平方英尺/41平方米
25%首付:S$ / 75%贷款:S$
30年贷款,2%利息,月供:S$

1室
新币 S$ 起
A2b户型1室 431平方英尺/40平方米
25%首付:S$ / 75%贷款:S$
30年贷款,2%利息,月供:S$

1室+书房
新币 S$ 起
AS1户型1室+书房 527平方英尺/49平方米
25%首付:S$ / 75%贷款:S$
30年贷款,2%利息,月供:S$

1室+书房
新币 S$ 起
AS1-R户型1室+书房 657平方英尺/61平方米
25%首付:S$ / 75%贷款:S$
30年贷款,2%利息,月供:S$

2室
新币 S$ 起
B1户型2室 667平方英尺/62平方米
25%首付:S$ / 75%贷款:S$
30年贷款,2%利息,月供:S$

2室
新币 S$ 起
B2户型2室 592平方英尺/55平方米
25%首付:S$ / 75%贷款:S$
30年贷款,2%利息,月供:S$

2室
新币 S$ 起
B3户型2室 614平方英尺/57平方米
25%首付:S$ / 75%贷款:S$
30年贷款,2%利息,月供:S$

2室
新币 S$ 起
B4户型2室 635平方英尺/59平方米
25%首付:S$ / 75%贷款:S$
30年贷款,2%利息,月供:S$

2室
新币 S$ 起
B5户型2室 592平方英尺/55平方米
25%首付:S$ / 75%贷款:S$
30年贷款,2%利息,月供:S$

2室
新币 S$ 起
B6户型2室 592平方英尺/55平方米
25%首付:S$ / 75%贷款:S$
30年贷款,2%利息,月供:S$

2室
新币 S$ 起
B7户型2室 635平方英尺/59平方米
25%首付:S$ / 75%贷款:S$
30年贷款,2%利息,月供:S$

2室+书房
新币 S$ 起
BS1户型2室+书房 764平方英尺/71平方米
25%首付:S$ / 75%贷款:S$
30年贷款,2%利息,月供:S$

2室+书房
新币 S$ 起
BS2户型2室+书房 743平方英尺/69平方米
25%首付:S$ / 75%贷款:S$
30年贷款,2%利息,月供:S$

2室+书房
新币 S$ 起
BS3户型2室+书房 753平方英尺/70平方米
25%首付:S$ / 75%贷款:S$
30年贷款,2%利息,月供:S$

2室+书房
新币 S$ 起
BS4户型2室+书房 721平方英尺/67平方米
25%首付:S$ / 75%贷款:S$
30年贷款,2%利息,月供:S$

2室+书房
新币 S$ 起
BS5户型2室+书房 743平方英尺/69平方米
25%首付:S$ / 75%贷款:S$
30年贷款,2%利息,月供:S$

2室+书房
新币 S$ 起
BS6户型2室+书房 732平方英尺/68平方米
25%首付:S$ / 75%贷款:S$
30年贷款,2%利息,月供:S$

3室(双钥匙)
新币 S$ 起
C1户型3室双钥匙 904平方英尺/84平方米
25%首付:S$ / 75%贷款:S$
30年贷款,2%利息,月供:S$

Studio
新币 S$ 起
S1户型1室 409平方英尺/38平方米
25%首付:S$ / 75%贷款:S$
30年贷款,2%利息,月供:S$

Studio
新币 S$ 起
S1-R户型1室 409平方英尺/38平方米
25%首付:S$ / 75%贷款:S$
30年贷款,2%利息,月供:S$

Studio
新币 S$ 起
S2户型1室 409平方英尺/38平方米
25%首付:S$ / 75%贷款:S$
30年贷款,2%利息,月供:S$

Studio
新币 S$ 起
S3户型1室 420平方英尺/39平方米
25%首付:S$ / 75%贷款:S$
30年贷款,2%利息,月供:S$


金牌经纪人
林胤铭( Adrian Lim )
最大的房地产公司区域董事
楼市观察者,分析者,投资者
纵横新加坡地产界15年的老司机一枚
关于我
- 2006年以一等荣誉学位毕业于新加坡南洋理工大学
- 2008年加入老字号ERA房地产公司,同年拿到最佳新人奖
- 2013年加入博纳房地产公司,同年拿到最佳新人奖
- 荣获百万新元俱乐部成员
- 自2008年加入房地产公司, 至今连续10年拿最佳销售王奖
- 持续每年在有7600个销售人员的博纳地产保持top50的名次
- 2018年加入博纳产业唯一授权的中国精英组
在新加坡土生土长的我,了解本地风土民情,掌握政府政策变化史,经济发展策略,自新加坡成立后的房地产变迁史。精确,敏锐,专业地为您量身打造并挑选最佳的产业。为您在新加坡的房产投资保驾护航!!!
为新移民承诺一条龙免费服务,包括接送机,学校挑选及报名,公司注册,开设银行户口,兑换外币,房屋装修,保险医疗…… 亲力亲为解决您买房前后的一切后顾之忧!
了解更多买房信息,请关注我联系电话:+65 91015050

微信:a91015050
新加坡房产投资顾问

声明:文章图文均来源于网络,转载出于传播更多行业资讯之目的,不代表本公众号观点,如涉及侵权,请留言联系我方删除。
评论