优质公寓房源推荐2- Treasure at Tampines 聚宝园
Treasure at Tampines 聚宝园
此公寓位于新加坡东部,最靠近的地铁站为四美和淡滨尼。
开发商:Sim Lian Group Ltd
地址:Timpines St 11
地区:D18 - 巴西利/淡滨尼
地契:99年
总单位:2203
预计交房:2023年


公寓关键点 1
步行5分钟到绿线SIMEI四美,靠近淡滨尼蓝线两个地铁
2
公寓对面就应有尽有 ,NTUC 24小时 | 菜市场 | 巴士站
3
超级高性价比 !新公寓只需$12xx 平方尺入场价
4
附近好学校数不胜数- Changkat/Angsana/Tampines /Chongzheng/Yumin/Junyuan/St Anthony’s Canossian/St Hilda’s/Gongshang/Tampines North/East Spring/小学 Red Swastika School等
5
步行可到4个购物商场,附近更有Tampines 1,Tampines Mall,Eastpoint Mall,SAFFRA Tampines,Our Tampines Hub等
6
附近有新的工业和商业发展-大银行和众多跨国公司所在地
7
成熟市区,成熟地理位置。
8
容易出租,价格绝对够吸引你!
配有小巴士送你去淡滨尼地铁和changi 机场 !
128个设施 | 大型公寓| 开车方便
近地铁容易出租| 近TPE 高速
8 所小学 !1 KM 公里内 !


1 1公里内小学
1. Angsana Primary School
2. Changkat Primary School
3. Chongzheng Primary School
4. Junyuan Primary School
5. Tampines Primary School
6. Yumin Primary School
2 1-2公里内小学
1. East Spring Primary School
2. Gongshang Primary School
3. Red Swastika School
4. St. Anthony's Canossian Primary School
5. St. Hilda's Primary School
6. Tampines North Primary School

Treasure at Tampines 户型分布
户型 面积 户型数量 1卧室 43平方米 187 1卧室+书房 45平方米 44 2卧室 54-57平方米 265 2卧室高端 61-63平方米 160 2卧室+书房 63平方米 313 3卧室 76-88平方米 47 3卧室高端 94-101平方米 344 4卧室 115-118平方米 176 4卧室高端 118-127平方米 187 5卧室 155-160平方米 110
价格概览
户型 平均尺价SGD 户型最低价 户型最高价 1卧室 $1,486 $671,000 $699,000 1卧室+书房 sold out $- $- 2卧室 $1,418 $787,000 $855,000 2卧室高端 $1,382 $900,000 $944,000 2卧室+书房 $1,401 $909,000 $975,000 3卧室 $1,316 $1,112,000 $1,262,000 3卧室高端 $1,316 $1,312,000 $1,385,000 4卧室 $1,286 $1,526,000 $1,706,000 4卧室高端 $1,291 $1,622,000 $1,765,000 5卧室 $1,167 $1,906,000 $2,078,000
*价格是以15.11.19为准


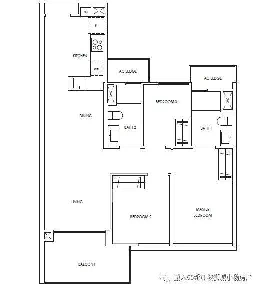
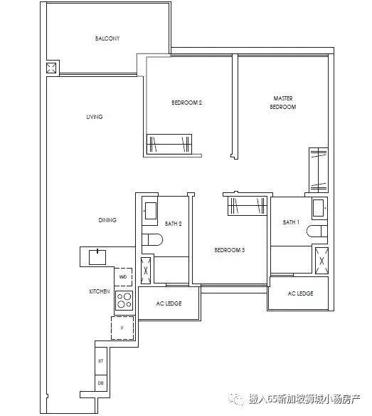
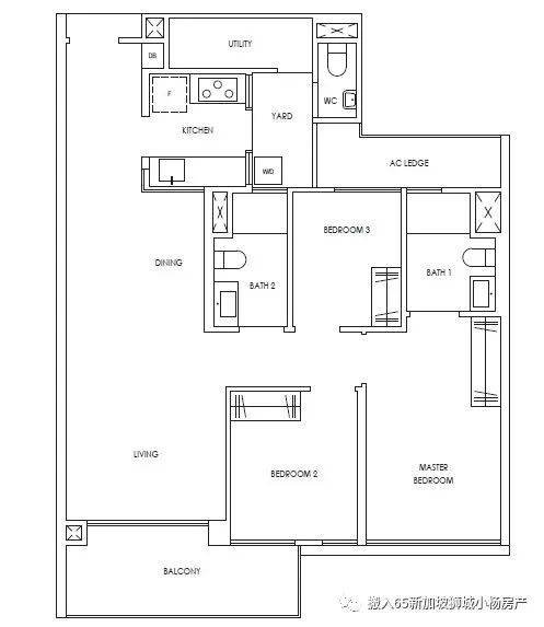
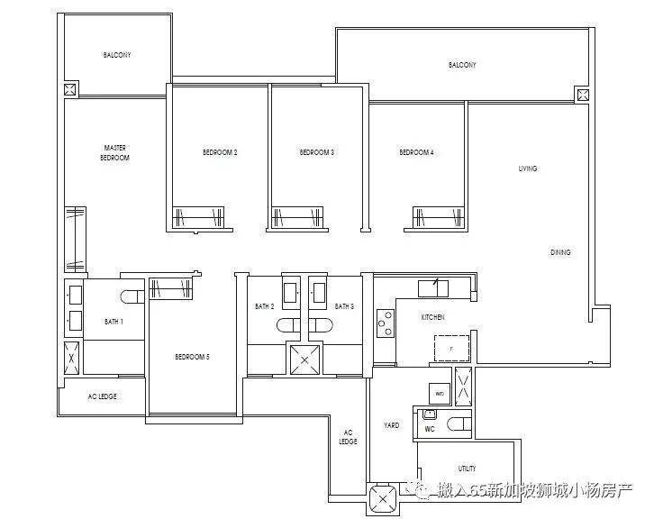
各户型信息+户型图
1房户型1 价格 新币 S$671,000 起 户型 a1 - 1室 1厅 1厕 463sqft= 43平方米 25% 首付:S$167,750 75% 贷款:S$503,250 30年贷款,2%利息 月供:S$1860

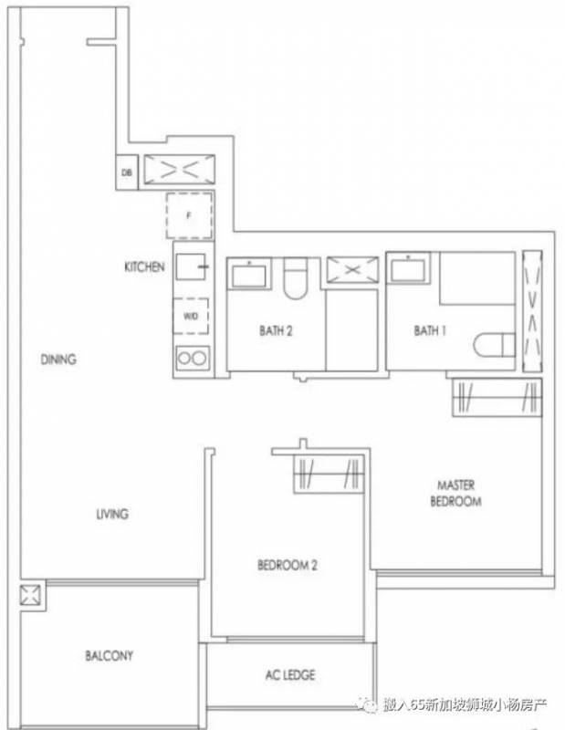
2房户型1- 价格 新币 S$821,000 起 户型 B1 - 2室 2厅 1厕 581sqft= 54平方米 25% 首付:S$205,250 75% 贷款:S$615,750 30年贷款,2%利息 月供:S$2276

2房户型2- 价格 新币 S$787,000 起 户型 B2 - 2室 2厅 1厕 592sqft= 55平方米 25% 首付:S$196,750 75% 贷款:S$590,250 30年贷款,2%利息 月供:S$2182

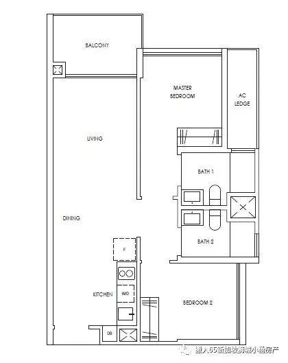
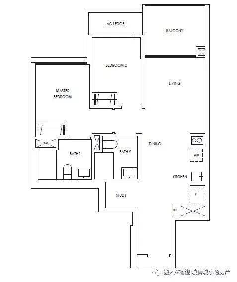
2房高端户型1- 价格 新币 S$925,000 起 户型 B4P - 2室 2厅 2厕 657sqft= 61平方米 25% 首付:S$231,250 75% 贷款:S$693,750 30年贷款,2%利息 月供:S$2564

2房高端户型2- 价格 新币 S$891,000 起 户型 B5P - 2室 2厅 2厕 678sqft= 63平方米 25% 首付:S$222,750 75% 贷款:S$668,250 30年贷款,2%利息 月供:S$2470

2房高端户型3- 价格 新币 S$900,000 起 户型 B6P - 2室 2厅 2厕 678sqft= 63平方米 25% 首付:S$225,000 75% 贷款:S$675,000 30年贷款,2%利息 月供:S$2495

2 +书房 价格 新币 S$909,000 起 户型 B7S- 2室 1书房 2厅2厕 678sqft= 63平方米 25% 首付:S$227,250 75% 贷款:S$681,750 30年贷款,2%利息 月供:S$2520

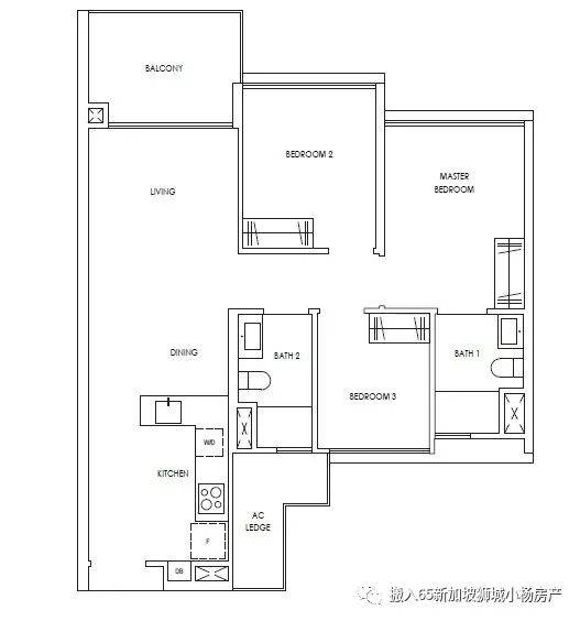
3房户型1- 价格 新币 S$1,090,000 起 户型 C3- 3室 2厅2厕 840sqft= 78平方米 25% 首付:S$272,500 75% 贷款:S$817,500 30年贷款,2%利息 月供:S$3022

3房户型2- 价格 新币 S$1,137,000 起 户型 C4- 3室 2厅2厕 850sqft= 79平方米 25% 首付:S$284,250 75% 贷款:S$852,750 30年贷款,2%利息 月供:S$3152

3房户型3- 价格 新币 S$1,112,000 起 户型 C5- 3室 2厅2厕 883sqft= 82平方米 25% 首付:S$278,000 75% 贷款:S$834,000 30年贷款,2%利息 月供:S$3083

3房户型4- 价格 新币 S$1,118,000 起 户型 C6- 3室 2厅2厕 915sqft= 85平方米 25% 首付:S$279,500 75% 贷款:S$838,500 30年贷款,2%利息 月供:S$3099

3房高级户型1- 价格 新币 S$1,336,000 起 户型 C8P- 3室 2厅3厕 1012sqft= 94平方米 25% 首付:S$334,000 75% 贷款:S$1,002,000 30年贷款,2%利息 月供:S$3704

3房高级户型2- 价格 新币 S$1,312,000 起 户型 C9P- 3室 2厅3厕 1033sqft= 96平方米 25% 首付:S$328,000 75% 贷款:S$984,000 30年贷款,2%利息 月供:S$3637

3房高级户型3- 价格 新币 S$1,393,000 起 户型 C10P- 3室 2厅3厕 1087sqft=101平方米 25% 首付:S$348,250 75% 贷款:S$1,044,750 30年贷款,2%利息 月供:S$3862

4房户型1- 价格 新币 S$1,632,000 起 户型 D2- 4室 2厅3厕 1238sqft=115平方米 25% 首付:S$408,000 75% 贷款:S$1,224,000 30年贷款,2%利息 月供:S$4524

4房户型2- 价格 新币 S$1,679,000 起 户型 D3- 4室 2厅3厕 1270sqft=118平方米 25% 首付:S$419,750 75% 贷款:S$1,259,250 30年贷款,2%利息 月供:S$4655

4房高级户型1- 价格 新币 S$1,622,000 起 户型 D4P- 4室 2厅3厕 1281sqft=119平方米 25% 首付:S$405,000 75% 贷款:S$1,216,500 30年贷款,2%利息 月供:S$4496

4房高级户型2- 价格 新币 S$1,703,000 起 户型 D5P- 4室 2厅3厕 1345sqft=125平方米 25% 首付:S$425,750 75% 贷款:S$1,277,250 30年贷款,2%利息 月供:S$4721

4房高级户型3- 价格 新币 S$1,829,000 起 户型 D6P- 4室 2厅3厕 1367sqft=127平方米 25% 首付:S$457,250 75% 贷款:S$1,371,750 30年贷款,2%利息 月供:S$5070

4房高级户型4- 价格 新币 S$1,711,000 起 户型 D7P- 4室 2厅3厕 1270sqft=118平方米 25% 首付:S$427,750 75% 贷款:S$1,283,250 30年贷款,2%利息 月供:S$4743

4房高级户型5- 价格 新币 S$1,743,000 起 户型 D8P- 4室 2厅3厕 1324sqft=123平方米 25% 首付:S$435,750 75% 贷款:S$1,307,250 30年贷款,2%利息 月供:S$4832

4房高级户型6- 价格 新币 S$1,738,000 起 户型 D9P- 4室 2厅3厕 1335sqft=124平方米 25% 首付:S$434,500 75% 贷款:S$1,303,500 30年贷款,2%利息 月供:S$4818

5房户型1- 价格 新币 S$2,002,000 起 户型 E1- 5室 2厅4厕 1668sqft=155平方米 25% 首付:S$500,500 75% 贷款:S$1,501,500 30年贷款,2%利息 月供:S$5550

评论