先入住再付款!?新加坡有哪些可延迟付款新公寓,马上拎包入住新房
延迟付款计划(Deferred Payment Scheme),简称DPS,是新加坡楼市常见的一种付款方式。
具体来说,买家看中了一处房产,如果发展商同意采用延迟付款计划,在规定期限内(通常是一到两年):
买家只需要支付首付,就可以即刻拿钥匙入住。
约定的期限内,零付款。无月供。
期限之后,开始正常办理贷款,开始月供。
与普通付款流程相比较,延迟付款计划(DPS)对买家现金流的压力显著降低。
因为新加坡的政策限制,所有正在建造中的期盘,都受到《房屋发展商条例》管制,采取标准买卖协议和渐进式付款流程,不允许采用延迟付款。
只有已经建好的现房楼盘,发展商向有关当局提出申请,并获得批准的情况下,才可以采用延迟付款。
政策方面是非常明确的。
今天这篇文章,我会详细介绍目前市场上提供延迟付款计划的几个公寓项目,都是地点优越的中高端以上定位楼盘。
第1邮区:Marina One Residences(滨海湾金融新区)
第1邮区:V>
第3邮区:The Crest (红山区)
第4邮区:Corals at Keppel Bay (南部滨海)
第7邮区:South Beach Residences (核心市区)
Marina One Residences(滨海盛景豪苑)

位于南部滨海湾金融区中心的Marina One Residences楼盘,一边是鳞次栉比的金融机构总部高楼;另一边是金沙酒店,新加坡摩天轮,滨海艺术中心,滨海湾花园等一系列著名的地标性景点。
Marina One Residences的具体位置毗邻MBFC金融大楼,正对着滨海湾入海口,阳台可以直接欣赏滨海湾夜景。
交通方面,楼盘位于三条地铁线的交汇处,直接连通滨海湾地铁站,市中心地铁站, 以及修建中的珊顿道地铁站。

拥有99年地契的Marina One Residences,是Marina One商住巨型项目的住宅楼部分,整体建筑面积超过360万平方英尺。
整个项目包括了两栋30层高的甲级办公楼盘,超过14万英尺面积的大型零售餐饮店区,两栋摩天高级公寓楼,以及位于高楼建筑中央,超过6000平米面积的绿荫公园。
整体设计完美诠释了新加坡【花园中的城市】生态系统模式。


滨海盛景豪苑住宅部分,占地2万6千平米,由34层高的两栋摩天公寓楼连接而成,总共1042个豪华公寓单位,于2017年建成。
全部单位采用大面积设计,居住空间宽敞舒适。
所有户型方正通透。两卧,三卧,四卧的全部单位私人电梯入户。高楼海景。
公寓设计兴建了奥林匹克尺寸泳池,占地200平米的大型健身房,休憩花园,私人会所等多种精彩设施。



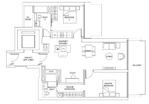
下图的优质两卧+书房户型,面积106平米,私人电梯入户,主卧步入式衣帽间。
最新成交价在260万新币上下。

发展商提供一年延迟付款计划:
首付30%,缴纳印花税,即可交房。
12个月后,支付剩余70%尾款。
V>

位于珊顿道金融区中心的V>
公寓距离丹戎巴葛地铁站约370米,市区地铁站约390米,滨海湾地铁站约600米。
修建中的珊顿道地铁站就在公寓隔壁。

V>
楼盘拥有99年地契,占地面积6700余平米,于2017年完工,总共设计510个豪华公寓单位。
V>
住宅楼的8楼,24楼,34楼和35楼提供多种休闲设施和天际花园,滨海风景一览无遗。



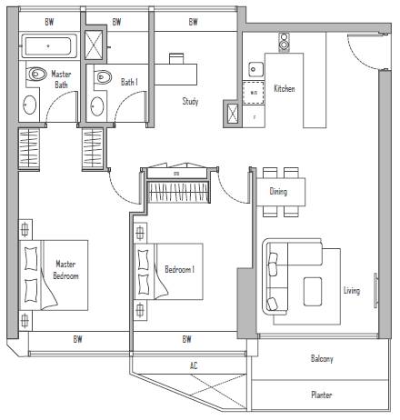
下图的两卧+书房单位,面积113平米(1216平方尺)。
40楼以上超高楼单位最近成交价在250万-270万新币之间。

发展商提供两种不同的一年延迟付款计划:
第一种:
首付8%,缴纳印花税,即可交房。
12个月后,支付剩余92%尾款。
第二种:
首付20%,即可交房。
12个月后,缴纳印花税,支付剩余80%尾款。
The Crest

位于南部红山区的The Crest公寓楼盘 ,距离红山地铁站500米左右。
The Crest属于市场中高端楼盘,位于次中心地带,距离乌节路仅仅3公里,市区CBD金融区仅仅5公里,交通便利。

这座设计优美独特的大型楼盘,占地约2万4千平米,99年地契,总共469个公寓单位,于2017年建成完工。
楼盘由日本知名设计师、普立兹克建筑奖得主伊东丰雄设计。公寓设计了三栋23层的高楼建筑,以及四栋5层的别墅小楼 ,整体造型是伸展绽放的生命之树,非常独特。



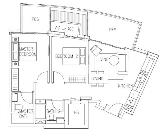
下图的优质三卧+工人房户型,面积114平米,私人电梯入户。
最近成交价在250万新币上下。

发展商提供两年延迟付款计划:
首付7%,缴纳印花税,即可交房。
12个月后,支付8%。
12个月后,支付剩余85%尾款。
Corals at Keppel Bay(吉宝湾丽珊景)

位于新加坡南部滨海的Corals at Keppel Bay高端公寓, 距离港湾地铁站和VivoCity大型购物中心约560米。
顺着Vivo City的步道,可以直接走进本地著名的圣淘沙岛。
开车到CBD中央商务区域,只需5分钟车程。出门就是海边,周末空闲时,可以扬帆出海。

这里需要重点提一句:Corals at Keppel Bay公寓的位置,正好位于新加坡政府刚刚宣布、未来即将重点发展的南部濒水区域范围内,未来发展前景可期。
参考下图星号标记地点。

Corals at Keppel Bay属于大型滨海豪华公寓楼盘,占地达3万8千平米,拥有99年地契,设计兴建11栋小高层建筑,总计366个高级公寓单位,于2016年建成完工。
项目整体采用富有现代感的流线设计,3米的室内挑高,为住户提供豪华舒适的居住空间。



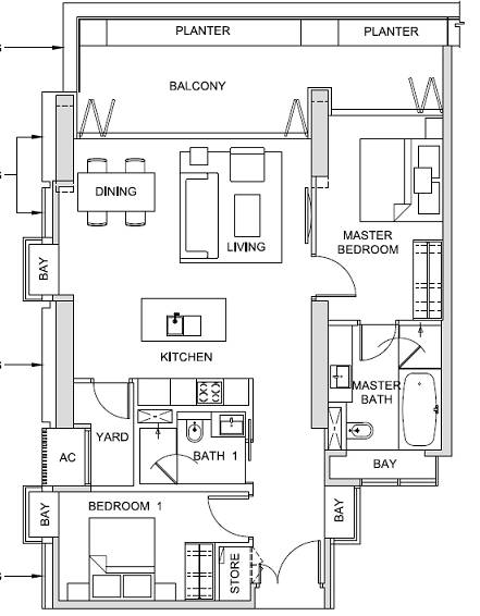
下图的优质两卧+储藏室户型,面积83平米。
最新成交价在180万-190万新币上下。

发展商提供两年延迟付款计划:
首付20%,缴纳印花税,即可交房。
24个月后,支付80%尾款。
South Beach Residences(风华南岸府)

坐落于新加坡核心市区的South Beach Residences高端公寓楼盘,无论是地点还是设计,都是新加坡楼市的豪宅配置。
楼盘内开设步行通道,直接连通滨海中心地铁站(Esplanade MRT) 和政府大厦地铁站(City Hall MRT) 两个地铁站。
新加坡著名的大型购物中心:拥有财富喷泉的新达城(Suntec City Mall),距离South Beach Residences楼盘仅200米。
莱佛士城高级购物中心(Raffles City Mall),距离楼盘仅250米。
新加坡的两大地标景点:滨海湾金沙和滨海湾花园,距离楼盘不到2公里。
包括维多利亚剧院,美术馆,亚洲文明博物馆,滨海艺术中心剧院在内的众多文化艺术设施,分布在住家一公里生活圈内。

拥有99年地契的South Beach Residences属于大型商住综合项目,占地约3万5千平米,设计兴建一栋45层高的摩天高楼建筑,总共190个公寓单位,于2016年12月建成。
其中底楼到21楼部分是酒店,22楼到45楼部分是高级住宅公寓,全部单位采用舒适大户型设计。
JW万豪酒店开设在楼下。酒店内的5间餐厅,酒吧,高级水疗中心等设施,向风华南岸府的住户开放。
公寓业主足不出户,可以尽享设施,放松心情。
公寓内配备专属的礼宾服务人员,全天候提供私人化的礼宾服务,一站式解决住户生活上的后顾之忧。



下图的优质两卧+储藏室户型,面积122平米。
最新成交价在400万-425万新币之间。

发展商提供两年延迟付款计划:
首付30%,即可交房。
24个月后,缴纳印花税,支付70%尾款。
文章的最后总结一下:
今天介绍了五处提供延迟付款的一手现房楼盘,四处位于核心中央区,一处位于南部次中心地带。
第1邮区:Marina One Residences(滨海湾金融新区,12个月延迟付款)
第1邮区:V>
第3邮区:The Crest (红山区,24个月延迟付款)
第4邮区:Corals at Keppel Bay (南部滨海,24个月延迟付款)
第7邮区:South Beach Residences (核心市区,24个月延迟付款)
评论