The Florence Residences 悦湖苑- 优质楼盘推荐1
The Florence Residences 悦湖苑
此公寓位于新加坡东北部,最靠近的地铁站为高文和后港。(步行到未来跨岛线-后港站5分钟)
开发商:Florence Development Pte Ltd
地址:Hougang Ave 2
地区:D19 - 后港/榜鹅/盛港
地契:99年
总单位:1410
预计交房:2023年


公寓关键点1
位于成熟市镇,7分钟步行到高文/后港地铁站
2
后港未来跨岛线经过,将带来更大升值潜能
3
一公里内有好小学圣婴小学
4
靠近三个轻工业区,投资潜力大
5
俱乐部式公寓-128个设施+12个俱乐部-完美生活体验
如80米岛泳池,露天剧场,环形亭与冲袋角,台球桌与飞镖亭等等
6
两年免费的体育休闲课程,有门房服务
7
多数单位南北朝向,有多种景观选择
8
智能居家设计



11公里内小学
1. HOLY INNOCENTS' PRIMARY SCHOOL
2. MONTFORT JUNIOR SCHOOL
3. XINMIN PRIMARY SCHOOL
21-2公里内小学
1. CHIJ OUR LADY OF THE NATIVITY
2. HOUGANG PRIMARY SCHOOL
3. NORTH VISTA PRIMARY SCHOOL
4. PALM VIEW PRIMARY SCHOOL
5. PAYA LEBAR METHODIST GIRLS' SCHOOL (PRIMARY)
6. PUNGGOL PRIMARY SCHOOL
7. ROSYTH SCHOOL
8. XINGHUA PRIMARY SCHOOL
9. YIO CHU KANG PRIMARY SCHOOL

The Florence Residence 户型分布
户型面积户型数量1卧室44-56平方米2161卧室+书房49-62平方米722卧室58-75平方米2642卧室高端60-85平方米2922卧室+书房65-86平方米523卧室83-112平方米2323卧室高端92-119平方米1544卧室118-147平方米644卧室高端129-178平方米165卧室155-178平方米48
价格概览
户型平均尺价
SGD户型最低价户型最高价1卧室$1,569$709,000$865,0001卧室+书房$1,564$785,000$950,0002卧室$1,555$913,000$1,139,0002卧室高端$1,570$986,000$1,255,0002卧室+书房$1,588$1,100,000$1,253,0003卧室$1,492$1,304,000$1,645,0003卧室高端$1,491$1,442,000$1,774,0004卧室$1,449$1,762,000$2,159,0004卧室高端$1,410$1,921,000$2,171,0005卧室$1,516$2,456,000$2,761,000
*价格是以18.01.20为准


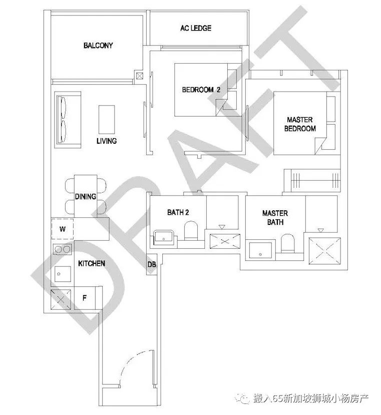
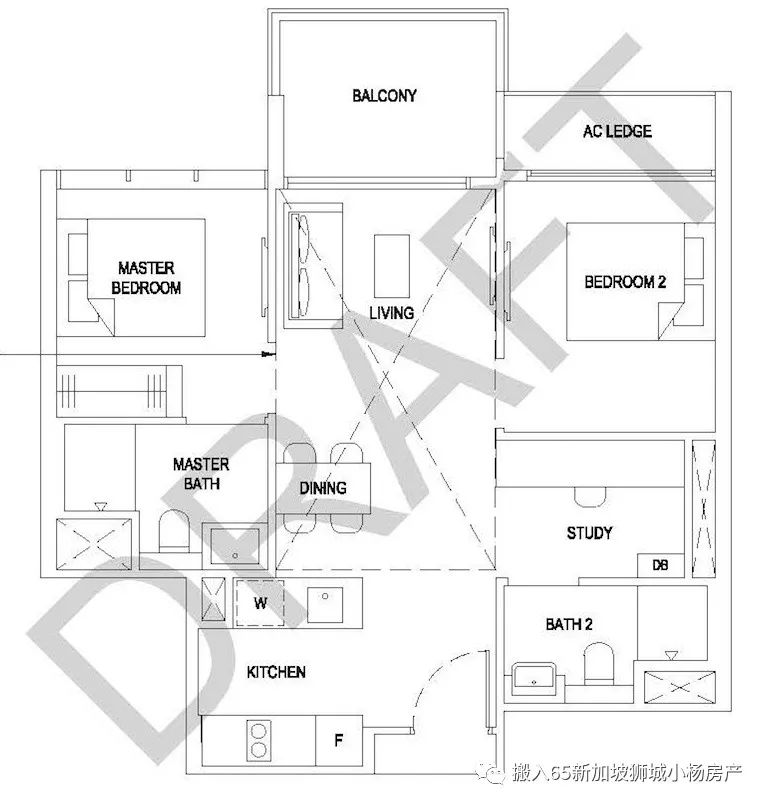
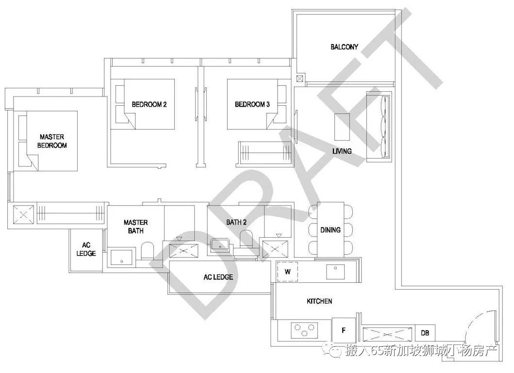
各户型信息+户型图
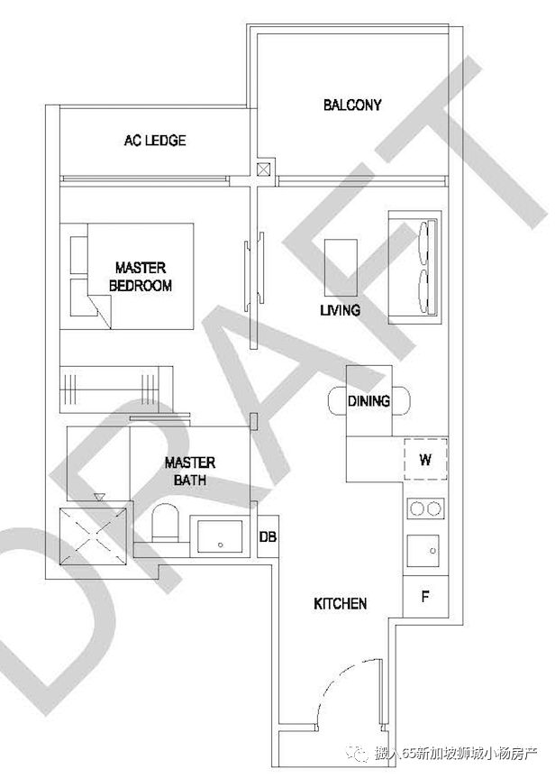
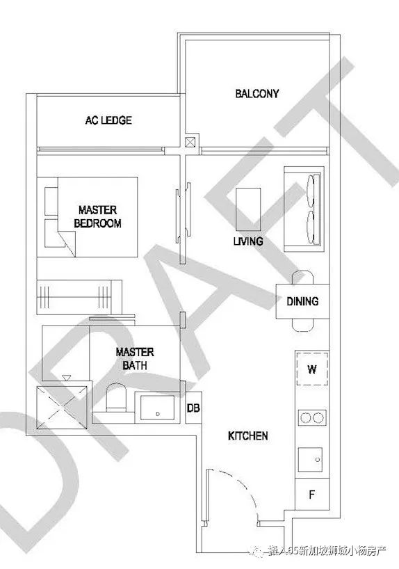
1房户型1 价格新币 S$709,000 起户型 1B2 - 1室 1厅 1厕484sqft= 45平方米25% 首付:S$177,25075% 贷款:S$531,75030年贷款,2%利息月供:S$1965

1房户型2- 价格新币 S$731,000 起户型 1B1 - 1室 1厅 1厕474sqft= 44平方米25% 首付:S$182,75075% 贷款:S$548,25030年贷款,2%利息月供:S$2026

1 +书房 价格新币 S$788,000 起户型 1S1- 1室 1书房 2厅1厕527sqft= 49平方米25% 首付:S$197,00075% 贷款:S$591,00030年贷款,2%利息月供:S$2184

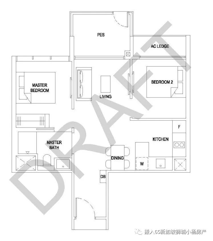
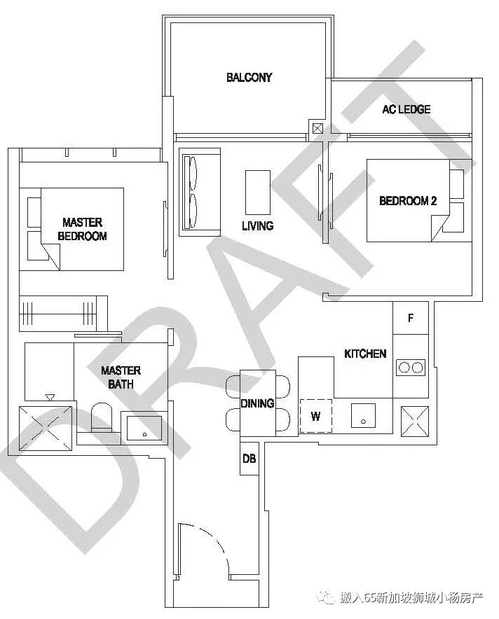
2房户型1- 价格新币 S$913,000 起户型 2C3 - 2室 2厅 1厕635sqft= 59平方米25% 首付:S$228,25075% 贷款:S$684,75030年贷款,2%利息月供:S$2531

2房户型2- 价格新币 S$948,000 起户型 2C2 - 2室 2厅 1厕624sqft= 58平方米25% 首付:S$237,00075% 贷款:S$711,00030年贷款,2%利息月供:S$2628

2房高端户型1- 价格新币 S$986,000 起户型 2D3 - 2室 2厅 2厕667sqft= 62平方米25% 首付:S$246,50075% 贷款:S$739,50030年贷款,2%利息月供:S$2733

2房高端户型2- 价格新币 S$1,060,000 起户型 2D5 - 2室 2厅 2厕721sqft= 67平方米25% 首付:S$265,00075% 贷款:S$795,00030年贷款,2%利息月供:S$2938

2 +书房 价格新币 S$1,100,000 起户型 2S1- 2室 1书房 2厅1厕700sqft= 65平方米25% 首付:S$275,00075% 贷款:S$825,00030年贷款,2%利息月供:S$3049

3房户型1- 价格新币 S$1,315,000 起户型 3C3- 3室 2厅2厕926sqft= 86平方米25% 首付:S$328,75075% 贷款:S$986,25030年贷款,2%利息月供:S$3645

3房户型2- 价格新币 S$1,304,000 起户型 3C4- 3室 2厅2厕936sqft= 87平方米25% 首付:S$326,00075% 贷款:S$978,00030年贷款,2%利息月供:S$3615

买卖房产找小杨
-为您提供专享的至少2-3人专业服务团队,
-确保任何阶段都第一时间提供优质服务
-从业8年,为您提供最适合最优选,性价比最高的房源
-真诚相待,全程跟进买卖过程,为您解除99.99%的烦恼
-多年人脉,可为客户争取到最大的优惠和最实在的价格
-提供房产托管服务且可为您提供移民,创业,留学等增值信息分享
关于作者小杨 Cedric Chan
小杨 Cedric Chan, 博纳士产业(PropNex Realty)-新加坡最大的房产公司(近8000人)的市场营销董事。从业近8年, 交易的别墅,高档公寓,执行共管式公寓EC,HDB政府组屋,商业地产等几百间,交易额上亿新币。
连续多年荣获销售& 服务类金奖。为人真诚,客户放心。认真对待每一份交易。
精准的数据分析,市场发展前景和区域投资计算让客户做到居有其所且物超所值。
全程陪伴交易全过程,给客户最大的安心。协助贷款事宜,协调律师方面等一切手续。
做一单生意,交一个朋友。


更多精彩,请点击上方蓝字关注我们!
评论