新加坡全岛最低入场价的 1房(包括1+书房)公寓 原来是你们
纵观新加坡房产市场
这几年来政府组屋HDB处于下降趋势
而公寓则在不断上升中
尽管政府在2018年7月出台降温措施
但很明显
此措施仅仅做到了减缓公寓价格的上升速度
并没有停止甚至降低房价
在明确了这一事实后
很多客户都想加入公寓升值的队伍中
毕竟公寓几年的升值
是银行存款利息
望尘莫及的
在这里,小杨(81212366 微信:cedchn)
为大家总结了
入场价最低的几个楼盘
给大家参考
综合 对 比
1房
公寓名
价格
SGD
面积
sqft
/平
尺价
SGD
位置 交房年 Jovell 售罄
售罄
售罄
淡滨尼
需搭巴士
2022 Treasure $671K
463
/43
$1449
四美
步行可达
2023 Riverfront $679K
463
/43
$1466
后港
步行可达
2024
Florence
$709K
484
/45
$1464
高文
步行可达
2023
Tapestry $674.86K
441
/41
$1530
淡滨尼
需搭巴士
2021 Whistler $698.64K
441
/41
$1584
金文泰
需搭巴士
2023
*价格是以18.01.20为准, 排列顺序按尺价由低到高
1+书房
公寓名
价格
SGD
面积
sqft
/平
尺价
SGD
位置 交房年 Jovell $700K
527
/49
$1328
淡滨尼
需搭巴士
2022
Riverfront
$701K
517
/48
$1356
后港
步行可达
2024
Florence
$785K
527
/49
$1489
高文
步行可达
2023
Whistler
$773.26K
506
/47
$1528
金文泰
需搭巴士
2023
Garden $770.2K
517
/48
$1490
实龙岗
步行可达
2021 Tapestry $725.42K
474
/44
$1530
淡滨尼
需搭巴士
2021
*价格是以13.08.19为准,排列顺序按尺价由低到高
各个公寓介绍如下
0 1 The Jovell
此公寓位于新加坡东部,最靠近地铁站为淡滨尼东。
开发商:Tripartite Developers Pte Ltd
地址:Flora Drive
地区:D17 - 洛阳/樟宜
地契:99年
总单位:428
预计交房:2022年

公寓关键点 1
第一次升级公寓的买家最理想的价格
2
没有一个单元面向主要道路,意味着宁静舒适的居住环境
3
靠近沿着市中心线新开的樟宜上段地铁站,连接东西线的世博交汇处地铁站
4
居民在Jewel @ Changi享受世界级的购物,餐饮和娱乐
5
距离宜家淡滨尼,Courts Megastore和Giant Hypermarket,樟宜城市点仅短距离车程
6
通过Simei Avenue和Xilin Avenue分别可轻松访问PIE和ECP
7
靠近新加坡科技设计大学,樟宜商业园和樟宜机场,这将带来该地区潜在的高租金收益率
8
50%以上的土地用于设施和景观




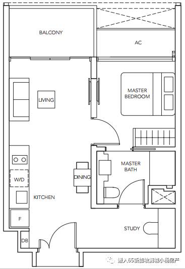
1 +书房 价格 新币 S$700,000 起 户型 1+1b - 1室 1书房 2厅 1厕 527sqft= 49平方米 25% 首付:S$175,000 75% 贷款:S$525,000 30年贷款,2%利息 月供:S$1941

0 2 Treasure At Tampines 聚宝园
此公寓位于新加坡东部,可步行到达最靠近地铁站四美。
开发商:Sim Lian Group Limited
地址:118 Tampines St11
地区:D18 - 淡滨尼/巴西立
地契:99年
总单位:2203
预计交房:2023年3月

公寓关键点 1
超高性价比!新公寓只需$12XX平方尺入场价
2
步行5分钟可到绿线SIMEI 四美地铁!
3
公寓对面就应有尽有 ,NTUC 24小时 | 菜市场 | 巴士站
4
步行距离内4个购物商场,附近更有Tampines 1,Tampines Mall,Eastpoint Mall,SAFFRA Tampines,Our Tampines Hub等
5
128个设施、大型公寓,开车方便,近地铁容易出租,近TPE高速快速达到全岛
6
8所小学!1公里内!
7
配有小巴士往返淡滨尼地铁和樟宜机场
8
成熟市区;附近有新的工业和商业发展-大银行和众多跨国公司所在地



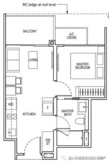
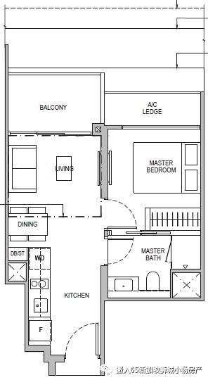
1房价格 新币 S$671,000 起 户型 A1 - 1室 1厅 1厕 463sqft= 43平方米 25% 首付:S$167,750 75% 贷款:S$503,250 30年贷款,2%利息 月供:S$1860

1+书房已售完
2房价格 新币 S$821,000 起 户型 B1 - 2室 1厅 1厕 581sqft= 54平方米 25% 首付:S$205,250 75% 贷款:S$615,750 30年贷款,2%利息 月供:S$2276

0 3 Riverfront Residence
此公寓位于新加坡东北部,最靠近的地铁站为后港。
开发商:Oxley-Lian Beng Venture Pte Ltd
地址:344 Hougang Ave 7
地区:D19 - - 后港/榜鹅/盛港
地契:99年
总单位:1451
预计交房:2024年

公寓关键点 1
距后港地铁站800多米,步行可达
2
101个公寓设施满足家人的不同需求
3
附近公园, 脚车道,绿色走道带给住户更健康的生活体验
4
市场上价格最为优惠的项目之一
5
临近的城市高速路KPE和CTE去市区和各大商业中心都很方便
6
免费巴士往返后港地铁站
7
学区房:Rosyth Primary School(乐赛小学)、中华小学、蒙福中学、实龙岗中学、实龙岗初院等等;
8
后港地区,潜力大




1房价格 新币 S$679,000 起 户型 A1 - 1室 1厅 1厕 463sqft= 43平方米 25% 首付:S$169,750 75% 贷款:S$509,250 30年贷款,2%利息 月供:S$1882

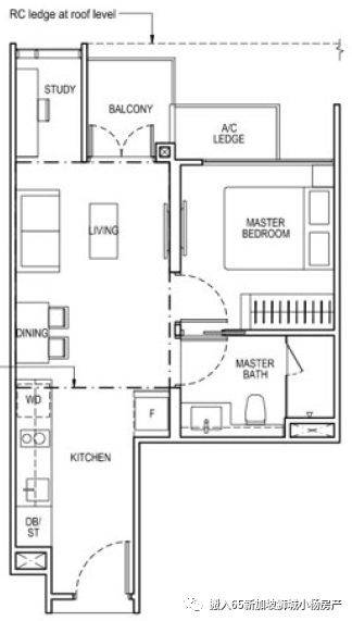
1 +书房 价格 新币 S$701,000 起 户型 AS1 - 1室 1书房 2厅 1厕 517sqft= 48平方米 25% 首付:S$175,250 75% 贷款:S$525,750 30年贷款,2%利息 月供:S$1943

0 4 The Florence Residences 悦湖苑
此公寓位于新加坡东北部,最靠近的地铁站为高文和后港。
开发商:Florence Development Pte Ltd
地址:Hougang Ave 2
地区:D19 - 后港/榜鹅/盛港
地契:99年;
总单位:1410
预计交房:2022年

Florence 悦湖苑
公寓关键点 1
位于成熟市镇,7分钟步行到高文/后港地铁站
2
后港未来跨岛线经过,将带来更大升值潜能
3
一公里内有好小学圣婴小学
4
靠近三个轻工业区,投资潜力大
5
俱乐部式公寓-128个设施+12个俱乐部-完美生活体验
6
两年免费的体育休闲课程,有门房服务
7
多数单位南北朝向,有多种景观选择
8
智能居家设计




1房价格 新币 S$709,000 起 户型 1B2 - 1室 1厅 1厕 484sqft= 45平方米 25% 首付:S$177,250 75% 贷款:S$531,750 30年贷款,2%利息 月供:S$1965

1 +书房 价格 新币 S$785,000 起 户型 1S1- 1室 1书房 2厅1厕 527sqft= 49平方米 25% 首付:S$196,250 75% 贷款:S$588,750 30年贷款,2%利息 月供:S$2176

0 5 Tapestry 荟锦嘉园
此公寓位于新加坡东部,最靠近的地铁站为淡滨尼。
开发商:City Developments Limited
地址:61 Tampines Street 86
地区:D18 - 淡滨尼/巴西立
地契:99年;
总单位:861
预计交房:2021年

公寓关键点 1
淡滨尼成熟市区,政府规划重点发展地区
2
距离淡滨尼地铁几分钟车程(淡滨尼购物中心,淡滨尼一号和世纪广场)。
5分钟步行到淡滨尼中央社区俱乐部。
3
学区房- 圣希尔达小学,Poi Ching学校,淡马锡理工学院,联合世界学院和新加坡科技与设计大学(SUTD)以及其他小学,中学和幼儿中心
4
位于TPE,PIE和Bartley Viaduct等主要高速公路附近,方便您与岛上其他地区相连。到樟宜机场很短的车程(15分钟)。
5
潜在的资本增值机会
•即将扩建的樟宜综合医院,樟宜商业园和世界著名的樟宜国际机场。
•政府正在计划扩大淡滨尼中央新城
•市中心线的淡滨尼西和淡滨尼东地铁站新增2个
6
稀有难得土地 - 此公寓地点是政府土地出售计划出售的最后一幅土地。
7
公寓设施齐全,符合各个年龄段的住户


1房价格 新币 S$674,860 起 户型 A1 - 1室 1厅 1厕 441sqft= 41平方米 25% 首付:S$168,715 75% 贷款:S$506,145 30年贷款,2%利息 月供:S$1871

1+书房 价格 新币 S$725,420 起 户型A3S- 1室 1书房 2厅1厕 474sqft= 44平方米 25% 首付:S$181,355 75% 贷款:S$544,065 30年贷款,2%利息 月供:S$2011

0 6 Whistler Grand 御峰
此公寓位于新加坡西部,最靠近地铁站为金文泰。
开发商:CDL Pegasus Pte Ltd
地址:West Coast Vale
地区:D05 金文泰/西海岸
地契:99年
总单位:716
预计交房:2023年

公寓关键点 1
靠近裕廊湖区,裕廊创新区,第二个中央商业区
2
靠近3个地铁站,现有的裕廊东和金文泰站,未来的班丹蓄水池站;将来还有跨岛地铁线经过西海岸一带
3
靠近7个购物商场
4
靠近国际商业园,国大,Buona Vista / One North 各大研究机构和跨国公司
5
全套公寓设施,大量绿化,高楼有无敌海景
6
名校南华小学一公里内
7
公寓设施齐全,符合各个年龄段的住户
8
买到就在赚钱-隔壁去年开盘的楼盘比此楼盘还贵




1房价格 新币 S$698,640 起 户型 A1 - 1室 1厅 1厕 441sqft= 41平方米 25% 首付:S$174,660 75% 贷款:S$523,980 30年贷款,2%利息 月供:S$1937

1+书房 价格 新币 S$773,260 起 户型 A2S-1室 1书房 2厅 1厕 506sqft= 47平方米 25% 首付:S$193,315 75% 贷款:S$579,945 30年贷款,2%利息 月供:S$2144

0 7 The Garden Residence 嘉和馨苑
此公寓位于新加坡东北部,最靠近地铁站实龙岗。
开发商:Gardens Development Pte. Ltd.
地址:Serangoon North View
地区:D19 - - 后港/榜鹅/盛港
地契:99年
总单位:613
预计交房:2021年8月

公寓关键点 1
位于实龙岗北部的成熟城镇
2
距离CTE和PIE等主要高速公路仅有几分钟车程。实龙岗地铁和巴士转换站也在附近
3
一公里范围内有著名的教育机构,如Rosyth小学和LycéeFrancaisDe Singapour
4
周围环绕着私人有地住宅区
5
拥有完整而独特的设施,包括警卫室,会所,多功能厅,室内健身房,网球场,50米游泳池,阳光甲板,烧烤炉和儿童游乐场。公寓的设施为您的家人和亲人提供全面的家庭娱乐需求
6
位于Bidadari Estate总体规划附近, 升值潜力大




1房价格 新币 S$718,600 起 户型 A1 - 1室 1厅 1厕 452sqft= 42平方米 25% 首付:S$179,650 75% 贷款:S$538,950 30年贷款,2%利息 月供:S$1992

1 +书房价格 新币 S$770,200 起 户型A3S- 1室 1书房 2厅 1厕 517sqft= 48平方米 25% 首付:S$192,550 75% 贷款:S$577,650 30年贷款,2%利息 月供:S$2135

评论