新加坡滨海湾旁豪华公寓 Marina One Residences (滨海盛景豪苑) 二期现房开售
Marina One Residences (滨海盛景豪苑)

Marina One Residences (滨海盛景豪苑) ,位于新加坡著名的商业级金融商务区——滨海湾。
是集豪华公寓,零售商场,甲级写字楼为一体的综合发展项目Marina One(滨海盛景)中的公寓单位,也是中央商业区近期唯一的新建住宅项目。
- 出身名门的优质建筑 -
德国著名建筑大师操刀
Marina One(滨海盛景)由淡马锡控股(Temasek Holdings)和国库控股(khazanah)的合资企业,马新私人有限公司(M+S Pte Ltd)联合开发,德国著名建筑大师、可持续绿化建筑权威设计师-英恩霍文(Christoph Ingenhoven)亲自操刀设计。

Marina One(滨海盛景)是集豪华公寓,零售商场,甲级写字楼为一体的综合发展项目,总面积达367万平方英尺。Marina One Residences (滨海盛景豪苑)为综合项目中的公寓单位,由两栋34层高楼组成(TOWER 21&23),共有99年产权的公寓1042套。
- 金融中心的豪华公寓 -
滨海湾上空风景巨著
Marina One Residences (滨海盛景豪苑)位于滨海湾金融商务区,步行17分钟就可以到达滨海湾金沙酒店,同时周边还有滨海湾金融中心、滨海湾花园、滨海艺术中心、威斯汀酒店和浮尔顿文化区等多个新加坡地标性建筑。

在高楼林立的寸土寸金之地,Marina One Residences (滨海盛景豪苑)无疑是弥足珍贵的存在,令全球塔尖人群趋之若鹜。




- 坐拥高端资源配套 -
休闲娱乐餐饮景点齐全
Marina One Residences还拥有140,000平方英尺的零售、生活和餐饮空间。许多高端品牌已经入驻,包括Virgin Active,Cold Storage,日本餐厅Teppei Syokudo以及以Cookhouse为特色的Koufu经营的美食广场。

同时在二楼和三楼打造了各种高端休闲区,包括:豪华会所及礼宾服务柜台、私人休息区、私人宴会厅多功能活动室、健身室、花园式园林、泳池、自然健康护理中心、静修小屋、派对活动区、户外健身区、儿童游乐场、铁板烧区域、桑拿及蒸汽浴室等等。




- 交通方便四通八达 -
近三个地铁站联接四条地铁线
Marina One Residences (滨海盛景豪苑)是新加坡唯一一个近三个地铁站联接四条地铁线的项目。
地铁站:
Marina Bay (NS27/CE2/TS20) – 0.2km
Downtown (DT17) – 0.1km
Shenton Way (TS19)Due 2021 – 0.3km
地铁线:
滨海市区线(Downtown Line)
南北线(MRT North South Line)
环线(MRT Circle Line)
汤申-东海岸地铁线(Thomson-East Coast MRT Line)


滨海湾金沙酒店
步行7分钟即达

樟宜机场
驾车16分钟即达

莱佛士坊
地铁2分钟即达

乌节路
地铁8分钟即达
优越的地理位置,方便住户搭乘地铁和公路网络,可以轻松快速地去往新加坡各个角落。
- 学府林立名校环绕 -
从幼儿园到大学的一站式教育配套
幼儿园:
Fairfield Methodist Church Kindergarten – 1.0km
PCF Tanjong Pagar-Tiong Bahru Blk 1E – 1.4km
小学:
Cantonment Primary School – 1.5km
康达小学
中学:
Outram Secondary School – 2.1km
欧南中学
大学:
Singapore Management University – 2.2km
新加坡管理大学
国际学校:
American College – 0.7km
美国学院

- 匠心成就非凡细节 -
独具匠心追求卓越
住宅内部配备欧洲顶尖家具配置,包括博宝德(Poggenpohl), 美诺 (Miele), 唯宝 (Villeroy & Boch) 等品牌。每一栋的阳台和窗户位置都经过精心考量和设计,周围美景尽收眼帘。




公寓通过大量的开放空间和葱郁的绿化提升给住户不一样的视觉体验。凸显了新加坡“城市在花园”的概念,是建筑风格独特的“绿色心脏”的多样化花园。
设计师将苑内和周围的景观完美糅合,为住户带来梯田概念的绿色园林、浪漫清新的蓝天碧海、繁华蓬勃的金融区和雄伟壮观的新加坡地标性建筑。

一居室
户型
面积
价格
1A
65㎡-71㎡
S$1,819,000起
1B
66㎡-73㎡
S$1,863,000起
1E
65㎡-70㎡
S$1,849,000起
1F
61㎡-68㎡
S$1,760,000起
1G
61㎡-70㎡
S$1,760,000起
1H
64㎡-72㎡
S$1,905,000起

一居室+书房
户型
面积
价格
1C+S
69㎡-71㎡
S$1,883,000起
1D+S
68㎡-70㎡
S$1,912,000起

两居室
户型
面积
价格
2G
91㎡-99㎡
S$2,498,000起

两居室+书房
户型
面积
价格
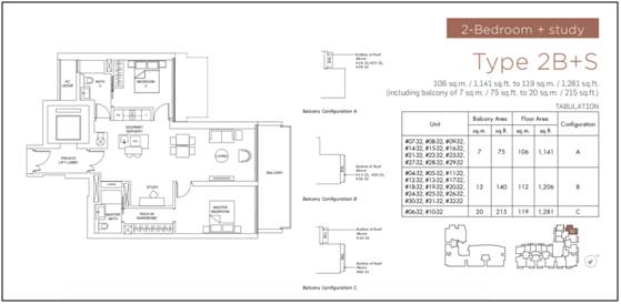
2B+S
106㎡-119㎡
S$2,592,000起
2C+S
108㎡-109㎡
S$2,559,000起
2D+S
108㎡
S$2,534,000起
2E+S
107㎡-108㎡
S$2,783,000起
2F+S
107㎡-108㎡
S$2,783,000起

三居室(一期)
户型
面积
价格
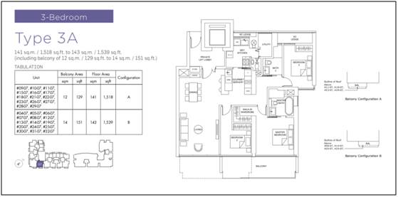
3A
141㎡-143㎡
S$4,642,560起
3B
140㎡-141㎡
S$4,226,850起
3C
142㎡-143㎡
S$4,410,990起

三居室+书房
户型
面积
价格
3A+S
145㎡-147㎡
S$3,573,000起
3B+S
147㎡-148㎡
S$3,522,000起
3C+S
147㎡-148㎡
S$3,575,000起

四居室
户型
面积
价格
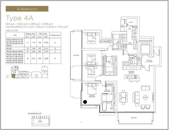
4A
190㎡-209㎡
S$5,643,000起
4B
189㎡-209㎡
S$5,285,000起

- 新加坡买房优势 -
1. 新加坡经济发达,局势稳定,环境优美,连续17年蝉联亚洲宜居城市榜首。2. 新加坡法律明确了外国人房产拥有权法令,投资更为安心。3. 新加坡超过75%为华人,更容易融入到当地生活。4. 新加坡的产权制度分为99年,999年和永久产权,适宜作为投资对象。5. 新加坡房产没有公摊面积,性价比更高。
如想了解更多细节,请联系我们:

地址:133 New Bridge Road,#15-07,Chinatown Point,Singapore 059413(牛车水地铁站E出口,唐城坊)
电话:+65 65340985
微信:sgtianyu2
邮箱:[email protected]
评论