在新加坡买房,绝对不能忽略崛起的“大西部”
提起新加坡西部的裕廊、武吉巴督一带,许多“老炮”的第一反应就是西部的交通枢纽。经过新加坡政府近几年的开发,加上未来的规划,这里将建设居住新镇,成为西部的绝对中心、新加坡第二CBD!
全新规划的登加新镇,占地700公顷,是新加坡第一个“森林市镇”。内有田园区、绿苑区、园林区、红砖区及山景区五个各具特色的住宅区。

绿苑区(Garden District)的政府组屋最近刚开放申请,深受市场关注。毕竟,这样花园和住家不分彼此的居住环境,是多少人向往的啊~这里还会设有46公里长的自行车通道,鼓励人们绿色出行。
整个登加新镇,预计接下来会建造约4万2000个组屋单位,这意味着将有大量人潮涌入西部。

人多了,各种生活必备设施就必须跟上,才算宜居。在未来17年内,西部将有至少6条铁路线,尤其是裕廊地区线和跨岛线的推出,会给居民更多通勤选择,也会大大缩短出行时间,可谓是“西部交通枢纽”2.0版本!

▲裕廊地区线
现在的裕廊东一带,被划分为裕廊湖区,将成为新加坡市中心以外最大的综合商业区,也是顺应了北上广等国际大都市扩张出第二CBD的潮流。

政府将利用裕廊湖周围独特的湖畔和花园环境,打造一个既拥有优质的办公室,又有便利生活设施、娱乐休闲和丰富绿色空间的全新CBD。

裕廊东地区拥有众多商场,如IMM、Jem、Westgate、Jcube等。大型仓库、国际化商业中心和政府控股的JTC集团大楼,也在这里。

同时,裕廊内的创新区则将成为先进制造业工业区,为制造商、技术提供商、研究人员和教育机构提供先进的生态系统,目测将来有不少人都会在这里上班。

在裕廊湖区东北边的武吉巴督一带,还有目前正在开发的集商场、住宅于一身的综合体心乐轩(Le Quest)。

武吉巴督原本就是个成熟住宅区,居民人数超十万人。目前区域内的大商场只有威城(West Mall),虽然内设超市、食阁和电影院等,可满足人们的生活需求,但占地面积有限,设施略老旧,难以负担未来激增的居民。

而心乐轩一层的零售商场建成后,武吉巴督商圈将会形成西有心乐轩,东(中)有威城的局面,购物、吃饭的选择就多了。
除了盘活整个武吉巴督商圈,心乐轩还带来了一些“新气象”,占地1300多平方米职总平价精品超市(FairPrice Finest)将会入驻。心乐轩之前,离武吉巴督最近的平价精品超市在裕廊东。

▲新加坡目前只有24间平价精品超市
平价精品超市相比平价超市(FairPrice)的商品种类更加多元,有大量进口产品和有机绿色食品,在其他地方买不到。当然,高端的超市不代表物品价格会调高,平价超市都是统一定价的。

除此之外,商场中还会有超过280个座位的口福食阁,快餐店麦当劳等多家商户。甚至还将在这里开设托儿所,心乐轩的屋主将享有优先报名权。

▲心乐轩样板间商铺展示
心乐轩综合体不仅能够满足附近居民的需求,还能辐射到周边的裕廊、登加和蔡厝港区域,吸引人流达到商业的良性循环,进一步带动区域内发展。

▲目前所有商铺管理,都是由开发商青建地产直接负责的
心乐轩为社区带来的便利是毋庸置疑的,更关键的是,作为一个商住混合的综合体项目,住在其中的居民是最大的受益者。想象一下,不需要坐地铁、开车,下楼就能逛街、吃饭、娱乐,简直太方便了!
虽为综合体,心乐轩的“商”和“住”相对独立。公寓和商场的进出口、落客点、电梯都是分开的,住宅和商铺之间,隔着3层的停车场,保障绝对的私密性。

商住两用的综合体项目在新加坡很受欢迎,一般都会比周边的纯住宅项目更有升值空间。武吉巴督附近公寓本就不多,像心乐轩这样的综合体更是独一份。
再加上心乐轩房型多样,规划合理,自开盘以来,便成了市场上超抢手的楼盘。目前,一卧房单位和两卧房单位已经售罄,那就让我们来围观一下其他房型吧~
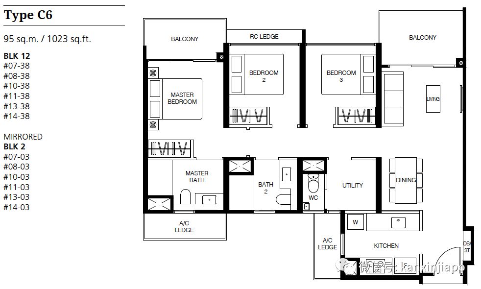
三卧房单位面积:76平方米(818平方英尺)至112平方米(1206平方英尺)

三卧房单位的面积选择有很多,如果比较喜欢大房间,且经常在家里做饭,可以选择面积比较大的户型。

示范样板间:

面积:105平方米(1130平方英尺)至122平方米(1313平方英尺)

四卧房单位适合多代同堂的家庭,大家都可以有属于自己的私人空间,同时,客厅和餐厅面积较大,为一家人提供了足够的集体活动场所。

示范样板间:

悄悄告诉你,最近心乐轩刚刚放出一批新房源,大家要把握住机会哦!而且,售楼部只开到7月28日,要看房的抓紧啦~
售楼部地址:Bukit Batok West Avenue 8(在德威国际学校旁)热线电话:6858 5777
新加坡眼
评论