Rezi24 |阿裕尼区里程碑式现代花园建筑,交通四通八达,永久产权
点击上方蓝字,记得关注我们!


简介:
Rezi 24 位于39 Lor 24 Geylang,S398636。此公寓有1室,2室,3室,4室及以上,共110个单位,永久产权。
Reiz 24 专为眼光独到的您打造。社区位于城市边缘,坐落于宁静的环境之中,地理位置四通八达,拥有无与伦比的康乐设施,非常便利。在每一层都有大师级设计的标志性公共花园。这一社区是附近同类小区中里程碑式的现代地标,也是随时准备好满足您全家成员一生所有需求的家园。
新加坡邮区分布图:


概况:
楼盘名称:
Rezi24
开发商:
Development 24 Pte Ltd
产权:
永久
完成年份:
2022
单位数量:
110
楼层数量:
8
起始总价:
新币S$797,908
每平方英尺起始:
新币S$

卖点:
重焕活力。
让您的心灵、身体和灵魂尽情享受。
一些单元采用了直达游泳池和 5 层公共花园的设计。Rezi 24 在附近区域的住宅中是独一无二的。无论是城市景观、花园景观还是泳池景观的套间,它都能最大程度地保护您的隐私、让您拥有宁静的生活。

幸福和愉悦感。
每一层都有让您娱乐、重焕活力和逃离喧嚣的空间。
第三层公共花园
健康花园 畅然呼吸
让您的肺沉浸在植物如此繁茂的环境中,让您重新找回自己的中心。
第四层公共花园
休憩平台 充电
当一天结束时,让生活中的压力消融
第 5 层公共花园
家庭平台 联结
用高质量的陪伴时间让爱生长,愉快玩耍。
第 6 层公共花园
娱乐平台 狂欢。
为生命中的珍贵时刻增加趣味。
第 8 层公共花园
美食花园 嬉戏
享受每一刻美食时光

商业,还是娱乐?
鱼与熊掌,现在可以兼得。
与大型商业和金融中心的距离非常近,购买日常生活用品也非常便利,让您真正地拥有一切。
无论您是前往 Raffles Place(莱佛士坊)工作,还是在 Marina Bay Golf Course(滨海湾高尔夫球场)挥一杆,或者只是夜晚在滨海湾金沙逛街购物,集便利性、兴奋刺激和愉悦享受于一体的 Rezi 24 都能帮您实现。
连接。
无论任何地方,都可瞬间抵达。
步行即可到达许多 MRT 地铁站,这些地铁站形成一个列车网,能带您去任何地方。此外,附近有各种高速公路以及尼诰大道,仅需七分钟车程即可到达城区。
Paya Lebar Quarter、Paya Lebar Square(巴耶利峇广场)、Singpost Centre(新加坡新邮政中心)、KINEX、City Plaza(城市广场)、时尚的 F&B 综合体(例如 Tuckshop)、旧机场路美食中心的当地美食、揾到食点心、Sik Bao Sin 等等,众多购物和餐饮选择,即便是最挑剔的味蕾也能在这里找到心之所属。

重焕活力。
让您享受宁静和便利的新环境。政府计划沿着10公里长的加冷河修建各种设施,将为人们提供更多便利,让您尽情享受锻炼与社交活动。此项革新使得贝雅士蓄水池下段一直到滨海湾花园以及中央商业区之间得以连接。
甘榜武吉士
这块占地 17.4 公顷的区域周围是加冷路、加冷河和哥罗福街,这块区域将被改造无行车的
住宅区,拥有行人通道和自行车道网络。
乌托邦。
回家,享受永恒的幸福。
1公里内学校
Geylang Methodist Primary School
Kong Hwa School
2公里内学校
Canossa Catholic Primary School
Tanjong Katong Primary School

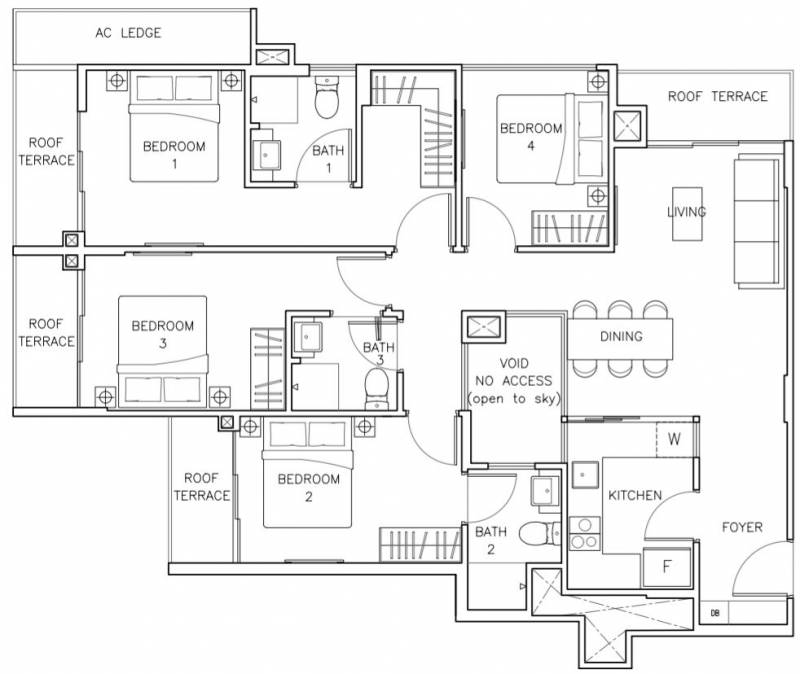
户型分布:
户型
面积(平方英尺)
单位数量
1室
431-452
7
1室+书房
452-506
40
2室
549-657
35
2室+书房
700-753
10
3室
958-1001
10
3室+书房
1184
5
4室
1184-1335
3
主力户型:
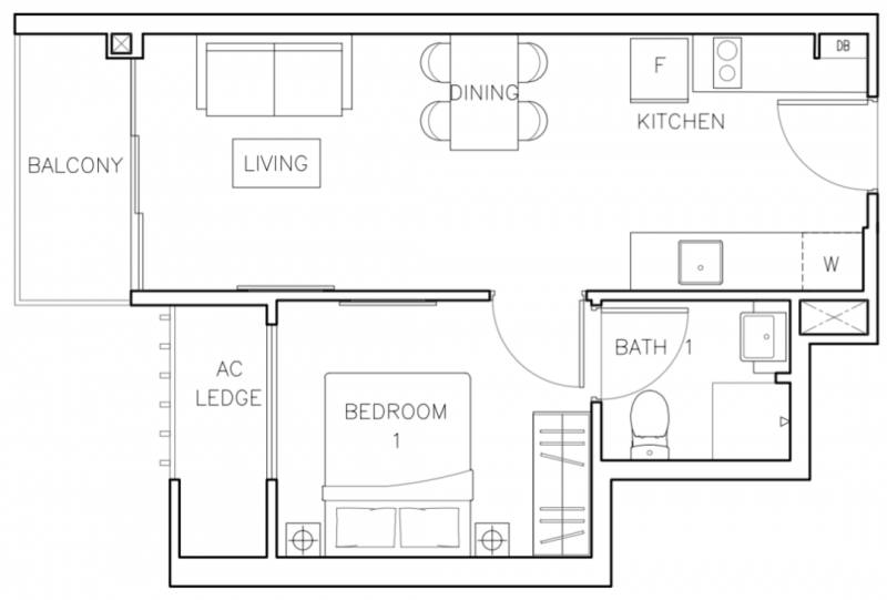
1室
新币 S$ 797,908起A1户型 1室 452平方英尺/42平方米
25%首付:S$ 199,477 / 75%贷款:S$ 598,431
30年贷款,2%利息,月供:S$ 2,212

1室
新币 S$ 823,737起A2户型 1室 431平方英尺/40平方米
25%首付:S$ 205,934 / 75%贷款:S$ 617,803
30年贷款,2%利息,月供:S$ 2,284

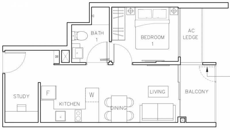
1室+书房
新币 S$891,153起B1户型 1室+书房 495平方英尺/46平方米
25%首付:S$ 222,788 / 75%贷款:S$ 668,365
30年贷款,2%利息,月供:S$ 2,470

1室+书房
新币 S$ 873,815起B2户型 1室+书房 495平方英尺/46平方米
25%首付:S$ 218,454 / 75%贷款:S$ 655,361
30年贷款,2%利息,月供:S$ 2,422

1室+书房
新币 S$865,976起B3户型 1室+书房 463平方英尺/43平方米
25%首付:S$ 216,494 / 75%贷款:S$ 649,482
30年贷款,2%利息,月供:S$ 2,401

2室
新币 S$ 989,574起 C1户型 2室 570平方英尺/53平方米
25%首付:S$ 247,394 / 75%贷款:S$742,180
30年贷款,2%利息,月供:S$ 2,743

2室
新币 S$ 1,151,686起C2户型 2室 646平方英尺/60平方米
25%首付:S$ 287,922 / 75%贷款:S$ 863,764
30年贷款,2%利息,月供:S$ 3,193

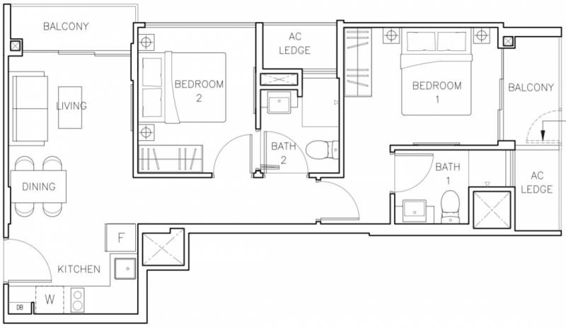
2室+书房
新币 S$1,302,884起D1户型 2室+书房 753平方英尺/70平方米
25%首付:S$ 325,721 / 75%贷款:S$ 977,163
30年贷款,2%利息,月供:S$ 3,612
2室+书房
新币 S$ 1,198,921起
D2户型 2室+书房 700平方英尺/65平方米
25%首付:S$299,730 / 75%贷款:S$899,191
30年贷款,2%利息,月供:S$ 3,324

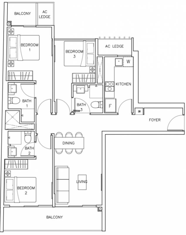
3室
新币 S$ 1,620,963起 E1户型 3室 1001平方英尺/93平方米
25%首付:S$ 405,241 / 75%贷款:S$ 1,215,722
30年贷款,2%利息,月供:S$ 4,494

3室
新币 S$1,657,587起E2户型 3室 958平方英尺/89平方米
25%首付:S$ 414,397 / 75%贷款:S$ 1,243,190
30年贷款,2%利息,月供:S$ 4,595

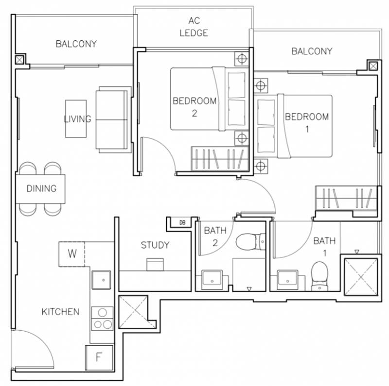
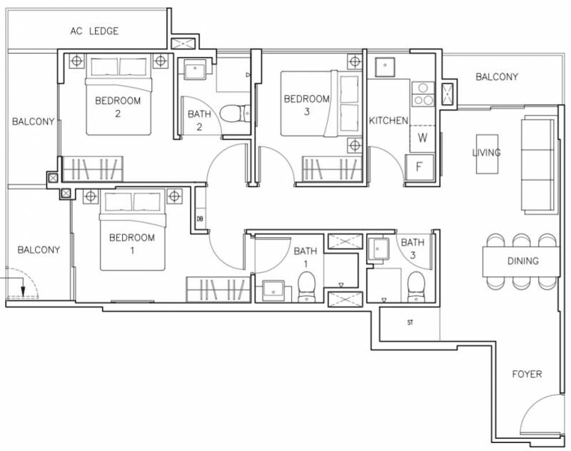
3室+书房
新币 S$ 1,903,479起 F1户型 3室+书房 1184平方英尺/110平方米
25%首付:S$ 475,870 / 75%贷款:S$ 1,427,609
30年贷款,2%利息,月供:S$ 5,277

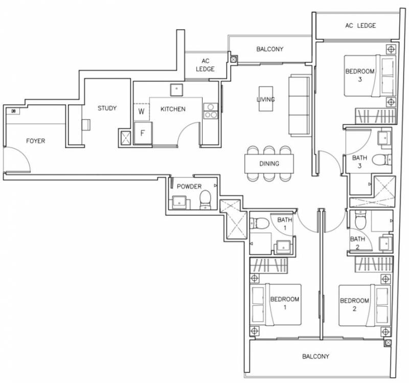
4室
新币 S$ 2,041,713起 G1户型 4室 1184平方英尺/110平方米
25%首付:S$ 510,428 / 75%贷款:S$ 1,531,285
30年贷款,2%利息,月供:S$ 5,660

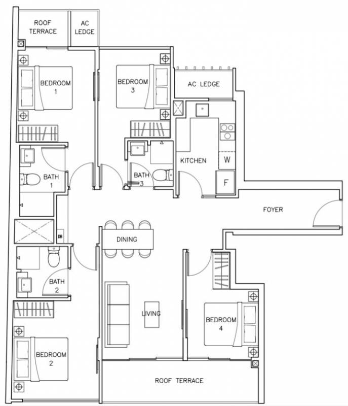
4室
新币 S$ (售罄)G2户型 4室 1195平方英尺/111平方米
25%首付:S$ / 75%贷款:S$
30年贷款,2%利息,月供:S$



评论