The Gazania (迎新园) | 永久产权住宅项目, 离巴特礼地铁站300米,名校林立,不可多得的潜力升值楼盘
点击上方蓝字,记得关注我们!

The Gazania (迎新园) 是由新海逸(Singhaiyi Huajiang Sun Pte Ltd)所开发的永久产权住宅项目。它坐落于第19邮区的巴特礼区,属于新加坡的东北区。项目毗邻东北区的大型商场-NEX ,可为住户提供一站式的购物、餐饮和休闲体验。
项目资料
地址:How Sun Drive(禾山通道)
地契:永久地契
占地面积:约146,046平方尺
开发商:新海逸集团(Singhaiyi Huajiang Sun Pte Ltd)
单位数量:250套单位
楼盘描述:7栋5层高建筑
户型:1卧房、2卧房、3卧房、4卧房、阁楼
公寓设施:50米游泳池、烧烤亭、儿童游乐场等
预计2022年7月31日取得临时入伙证
公寓位置
地铁站
巴特礼地铁站(0.3公里)

徒步3分钟到达巴特礼地铁站
1个站到达实龙岗地铁转换站
2个站到达麦波申地铁转换站
3个站到达巴耶利峇地铁站/碧山地铁站
驾车
中央高速公路(CTE)
加冷-巴耶利峇高速公路(KPE)
约15分钟车程到达乌节路
约18分钟车程到达中央商业区
商场
肯辛顿广场(0.4公里)
NEX商场(1公里)
工商银行购物中心(1.1公里)
麦波申商城(1.5公里)
心邻坊(1.8公里)
教育机构
小学
海星小学(0.4公里)
巴耶利峇美以美女子小学(0.8公里)
四德小学(1.1公里)
养正小学(1.3公里)
醒华小学(1.9公里)
圣加俾尔小学(1.9公里)
中华小学(2公里)
中学
海星中学(0.4公里)
圣加俾尔中学(0.4公里)
巴特礼中学(0.7公里)
巴耶利峇美以美女子中学(1公里)
中华中学(1.1公里)
四德女子中学(1.4公里)
育英中学(1.8公里)
培才中学(1.9公里)
初级学院
南洋初级学院(1.5公里)
国际学校
DPS国际学校(1.2公里)
史丹福美国国际学校(1.5公里)
澳洲国际学校
圣若瑟夫国际学校
新加坡建设学院
公寓规划图

The Gazania (迎新园) 位于有地住宅区,环境清幽,人口密度低。在永久地契项目中属于很大的地,有很齐全的设施供住户享用。公寓设施包括:50米游泳池、烧烤亭、儿童游乐场、宴会室、室内健身房、网球场等等。




公寓单位
户型
面积
(平方尺)
单位数
1卧房
441 - 463
45
2卧房
635 - 689
40
2卧房+书房
667 - 700
40
3卧房
850 - 915
49
3卧房
(优质)
969 - 1066
35
4卧房
1227 - 1313
33
4卧房
(复式套房)
1711 - 1787
10
阁楼
1690 - 1722
7





高品质装修与配置(品牌包括:伊莱克斯Electrolux, 高仪Grohe, 劳芬Laufen 和 三星Samsung)
空间宽敞
智能家居(入口处的QR码扫描仪等)
3卧室以上提供城镇燃气供应
平面图
1卧房

2卧房

2卧房+书房

3卧房

3卧房(优质)

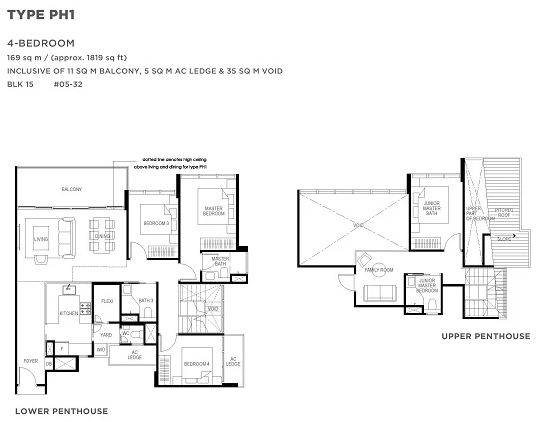
4卧房

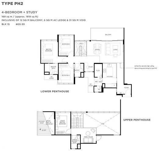
4卧房+书房

4卧房阁楼

4卧房+书房阁楼

预约看房
The Gazania (迎新园)
4月27日推出
如果对 The Gazania (迎新园) 有兴趣,请与我们联系
为什么选择 The Gazania (迎新园) ?
稀有的永久产权项目
知名发展商,品质保证
位置优越
交通便利:靠近地铁站、与高速公路连接、几分钟车程到达乌节路和中央商业区
名校林立
附近有全面的餐饮娱乐购物设施
公寓设施齐全
高租金回报率
智能家居
升值潜力
评论