Seraya Residences |东海岸新住宅项目,便利设施与传统魅力交相辉映,永久产权
简介:
Seraya Residences 位于D15邮区的12 Seraya Lane, Singapore 437279 ,由知名开发商Macly 33 Pte Ltd开发。Seraya Residences拥有永久产权,包括2室,3室,共17个单位。
新加坡邮区分布图:


概况:
楼盘名称:
Seraya Residences
开发商:
Mscly 33 Pte Ltd
产权:
永久产权
预计交钥匙时间:
2022年
单位数量:
17
楼层数量:
起始总价:
新币 S$1,480,770
每平方英尺起始:
新币 S$


你在东方之心的永久居所
Seraya Residences坐落在Haig Road(海格路),Tanjong Katong(丹戎加东路),Joo Chiat(如切路)和East Coast enclaves(东海岸住宅区)之间,汇集了最好的环境。
在这里,现代化的便利设施与传统魅力交相辉映。
放松身心,公寓旁边凉爽的地方有很多咖啡店,同时供应一些特别的餐点。
无论你喜欢的是什么,都可以在这个街区找到。
最重要的是,Seraya Residences也是一个拥有永久产权的家。
这是一个真正的家,你会为自己拥有这个就在繁华15区中心的家而感到自豪。

现代文化遗产
Seraya Residences的设计是现代的,明亮的,通风的。
这是一个梦想之家,你可以在床上度过一个慵懒的周末早晨,或者坐下来享受一顿美味的家常晚餐。
一切这些都在你喜欢的人的陪伴下。
从Seraya Residences出发,一个悠闲的散步就可以到Joo Chiat(如切街),Tanjong Katong(丹绒加东街)和East Coast Road(东海岸路)。
在那里,你会发现很多美丽而充满个性的土生华人商店。
这里的氛围独特,非常适合周末下午的悠闲时光。

舒适的设施
东部是著名的美食天堂。从加东以及土生华人最爱的美食,到印度的咖喱和Chin Mee Chin糕饼店的传统烤吐司,新加坡最好的美食就在你的家门口。
除了当地带来的的舒适,你还会发现周围有很多其它的餐饮和娱乐选择。世界美食,新鲜海鲜,精酿啤酒,葡萄酒商店,手工冰淇淋。每一个场合,每一次消遣,都会有一些美食在你身边。

设施交通
达科塔地铁站
巴耶利峇地铁站
学校
EIS国际幼儿园
丹戎加东小学
St Hilda幼儿园
丹绒加东中学
查茨沃斯国际学校(东校区)
丹戎加东女子学校
加拿大国际学校(丹戎加东校区)
Haigs女子学校
休闲设施
欧亚文化遗产中心
Sri Senpaga Vinayagar寺庙
精选折扣商品店
东海岸公园
购物广场
加东购物中心
百汇步行街
加东集市
餐饮
328加东叻沙
天堂鸟
邓曼食品中心
苹果酒庄
社区
芽笼 Serai社区俱乐部
Joo Chiat社区俱乐部

独家拥有17个单元
Seraya Residences仅拥有17个独立单元。全都在一个高低错开的环境中。这意味着你和家人可以真正享受这奢华的空间。

欢迎回家
这是一个你可以称之为圣地的地方。一个供你的家人分享和成长的家。一个让回忆和幸福永存的地方。

热带亭和吊床壁龛
你可以在郁郁葱葱的树木和大自然中放松身心并享受娱乐。 早晨时做瑜伽,或傍晚时举办生日派对。 空间和时间都是你的。


健身房及游乐场
在屋顶上,你可以一边锻炼一边看你的孩子们玩耍。

游泳池
这将是完美的一天。 您可以在甲板上看你最喜爱的书来放松,或在游泳池里悠闲地游泳。

客厅
Seraya Residence住宅每个单元的布局均经过精心设计的,可根据每位业主的喜好进行整改。 客厅非常宽敞,因此可以根据自己的生活方式灵活地规划空间。

主卧室
精心挑选的材料和宽敞的衣柜空间确保主卧室成为一种享受。在这可以自我反省,给自己充能,做最简单的自己。

厨房
食物就是爱。食物带来的纯粹快乐能让家庭关系更加亲密。这就是家庭最喜欢的食谱代代相传的原因。

区域规划图
建筑平面图号:Al404-00449-2017-BP-O1 / BP-O2 / BP-03
建筑规划批准日期:2019年3月29日
1.Entrance(大门)
2.Side Gate(侧门)
3.Electrical Meter(电器仪表)
4.Bulk Meter(总表)
5.Bin Point(垃圾房)
6. Open Staircase(宽敞电梯)
7. Lift(电梯)
8. Nature Gym(自然健身房)
9. Outdoor Fitness Corner(户外健身角)
10. Water Tank & Pump Room(水箱及泵房)
11. Play Pit(游乐场)
12. Tropical Pavilion(热带植物馆)
13. Teppanyaki Dining(铁板烧餐厅)
14. Washroom(洗手间)
15. Hammock Alcove(吊床亭)
16. Pool(游泳池)
Ist Storey(一楼)
Serving 1st to roof terrace(第一层屋顶露台)
Roof terrace(屋顶露台)
2nd Storey(2楼)

Macly Group (est. 1987)是新加坡一家知名的房地产开发商,在开发地产、公寓、共管公寓、混合建筑开发、商业和集群住宅项目方面有着良好的信誉记录。2004年至2018年,该集团在新加坡开发并推出了30多个住宅和商业发展项目。
开发商
开发商的许可证号码
住宅所有权
永久产权
预计空置占有日期
2022年10月31日
预计法定完工日期
2025年10月31日
卖点:
随处可达的周边便利设施/交通连通性
Dakota MRT Station 3分钟车程
Paya Lebar MRT Station 4分钟车程
购物/餐饮
Katong Shopping Centre 步行6分钟
Parkway Parade 2分钟车程
Katong Village 3分钟车程
328 Katong Laksa 2分钟车程
Birds of Paradise 2分钟车程
Dunman Food Centre 2分钟车程
The Cider Pit 3分钟车程
大自然/休闲中心
Eurasian Heritage Centre 2分钟车程
Sri Senpage Vinayagar Temple 2分钟车程
Choice Cuts Goods 3分钟车程
East Coast Park 6分钟车程
社区
Geylang Serai Community Club 3分钟车程
Joo Chiat Community Club 4分钟车程
公寓提供的部分设施包括:
游泳池
健身角
阳光甲板
健身房
功能房
花园烧烤亭
儿童游乐场
1公里内学校
EIS International Pre-School
Tanjong Katong Primary School
St Hilda's Kindergarten
Tanjong Katong Secondary School
Chatsworth International School (East Campus)
Tanjong Katong Girl's School
2公里内学校
Canadian International School
Haigs Girls' School
户型分布:
户型
面积(平方英尺)
单位数量
2室
926-947
2
3室
958-1,249
15
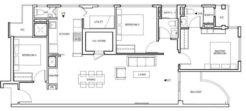
主力户型:
3室
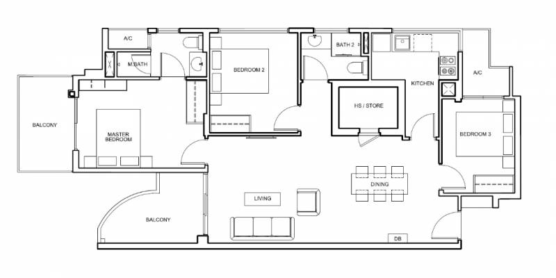
新币 S$1,561,450 起E1户型2室 947平方英尺/88平方米
25%首付:S$390,362 / 75%贷款:S$ 1,171,088
30年贷款,2%利息,月供:S$4,329

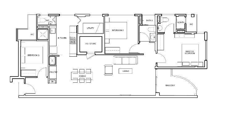
3室
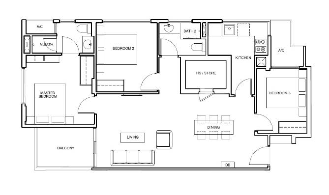
新币 S$1,480,770 起E2户型2室 926平方英尺/86平方米
25%首付:S$370,192 / 75%贷款:S$ 1,110,578
30年贷款,2%利息,月供:S$4,105

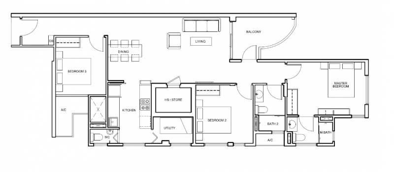
3室
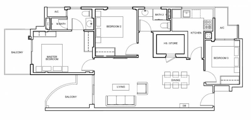
新币 S$ 1,661,120 起A1户型3室 969平方英尺/90平方米
25%首付:S$415,280 / 75%贷款:S$ 1,245,840
30年贷款,2%利息,月供:S$4,605

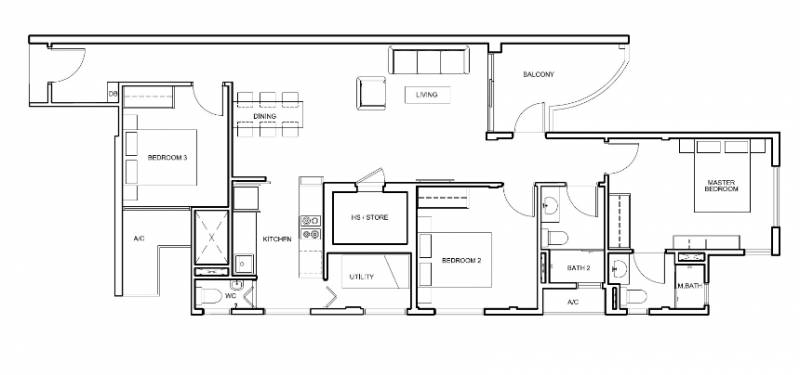
3室
新币 S$ 1,671,560起A2户型3室 958平方英尺/89平方米
25%首付:S$417,890 / 75%贷款:S$ 1,253,670
30年贷款,2%利息,月供:S$4,634

3室
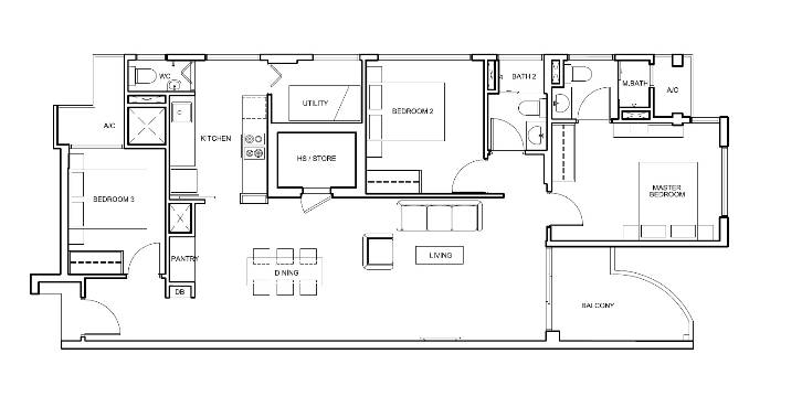
新币 S$1,801,600 起B1户型3室 1141平方英尺/106平方米
25%首付:S$450,400 / 75%贷款:S$ 1,351,200
30年贷款,2%利息,月供:S$4,994

3室
新币 S$ 1,700,980起B1a户型3室 1044平方英尺/97平方米
25%首付:S$425,245 / 75%贷款:S$ 1,275,735
30年贷款,2%利息,月供:S$4,715

3室
新币 S$ 1,821,530起B2户型3室 1130平方英尺/105平方米
25%首付:S$455,382 / 75%贷款:S$ 1,366,148
30年贷款,2%利息,月供:S$5,050

3室
新币 S$ 1,962,010起C1户型3室 1249平方英尺/116平方米
25%首付:S$490,502 / 75%贷款:S$ 1,471,508
30年贷款,2%利息,月供:S$5,439

3室
新币 S$1,962,010 起C1a户型3室 1249平方英尺/116平方米
25%首付:S$490,502 / 75%贷款:S$ 1,471,508
30年贷款,2%利息,月供:S$5,439

3室
新币 S$ 起 (售罄)C2户型3室 1249平方英尺/116平方米
25%首付:S$ / 75%贷款:S$
30年贷款,2%利息,月供:S$

3室
新币 S$1,927,840 起D1户型3室 1227平方英尺/114平方米
25%首付:S$481,960 / 75%贷款:S$ 1,445,880
30年贷款,2%利息,月供:S$5,344

3室
新币 S$1,927,840 起D1a户型3室 1227平方英尺/114平方米
25%首付:S$481,960 / 75%贷款:S$ 1,445,880
30年贷款,2%利息,月供:S$5,344

3室
新币 S$1,957,270 起D2户型3室 1227平方英尺/114平方米
25%首付:S$489,318 / 75%贷款:S$ 1,467,952
30年贷款,2%利息,月供:S$5,426
评论