永久地契海景公寓 —— 巴西立 Casa Al Mare
PART 01
Casa Al Mare 位于第16区的罗央规划区(Loyang Planning Estate),该区属于巴西立的其中一个分区。地段坐落在巴西立公园(Pasir Ris Park)最东端。这里一向都是属于私人有地住宅区,不过近几年来有了许多转型,地段增添了不少私人公寓。项目的北部临海,海水清洁,沙滩柔软。项目周围到处都有各种各样的花草树木和成片的绿草地,是一个远离城市喧嚣、风光宜人的世外桃源。这里环境幽雅,景物优美,气候宜人。

PART 02
Casa Al Mare坐落于惹兰罗央勿刹(Jalan Loyang Besar)旁,靠近巴西立弄(Pasir Ris Close)的环状交叉路。项目由新加坡地产发展商Sustained Land Pte Ltd所开发,其所处地段占地约2446平方米,是属于永久地契。项目由2栋5层楼高的豪华建筑组成,共有49个单位,拥有的户型包括11个一卧房单位、15个两卧房单位、14个两卧加书房单位和9个三卧房单位。单位面积介于44平方米至105平方米之间。跻身Casa Al Mare,蔚蓝海景展现无余,拥揽浪漫无限。“坐家观海”增添上层生活的诗意韵味,永无遮拦的海天一色,从此浪漫尽——享面朝大海,春暖花开。

PART 03
Casa Al Mare,抛离拥挤与蹩脚的烦乱,畅达天下。鼎踏巴西立区黄金地段,雄踞区域经济扩张系数最大的海景房钻石地带,项目临近泛岛高速公路(PIE)和淡滨尼高速公路(TPE),距离巴西立地铁站(Pasir Ris MRT)不足1千米,Casa Al Mare不远处就有354巴士服务可载送住户到巴西立地铁站(Pasir Ris MRT)。

PART 04
Casa Al Mare的住户只需步行几分钟就可以到达(Downtown East),它是东区的一站式娱乐与休闲中心。中心内设有度假屋,大型的水上主题乐园和娱乐商场。商场内设有电影院,电动游戏中心,零售商店,超市,保龄球场以及本地其中一间最大的室内家庭式娱乐操场。从Casa Al Mare只需几分钟车程就可以到达巴西立中路小贩中心(Pasir Ris Central Hawker Centre)。这个熟食中心设有42个熟食摊位和770个用餐座位。这一个两层楼高的新一代熟食中心推行的是“双重概念”,提供的是楼下传统美食与楼上现代美食,是休闲饮食的绝佳去处。

PART 05
舒适是生活的终极理想,尊崇人生,舒适、惬意的环境是基础。由于紧邻著东部最大的滨海公园——巴西立公园。Casa Al Mare远可观海,近可赏花,融洽、和谐的社区氛围更能享受自由、轻松、尊贵的上层生活。



主力户型:
1室
新币 S$ 781,000 起
A1户型 1室 484平方英尺/45平方米
25% 首付:S$ 195,250/ 75% 贷款:S$ 585,750
30年贷款,2%利息,月供:S$
2,165

1室
新币 S$ 772,000 起
A1-P户型 1室 484平方英尺/45平方米
25% 首付:S$ 193,000/ 75% 贷款:S$ 579,000
30年贷款,2%利息,月供:S$
2,140

1室
新币 S$ 772,000 起
A2户型 1室 474平方英尺/44平方米
25% 首付:S$ 193,000/ 75% 贷款:S$ 579,000
30年贷款,2%利息,月供:S$
2,140

1室
新币 S$
A2-P户型 1室 474平方英尺/44平方米
25% 首付 :S$ / 75% 贷款 :S$
30年贷款,2%利息,月供:S$

1室
新币 S$
A3-P户型 1室 592平方英尺/65平方米
25% 首付 :S$ / 75% 贷款 :S$
30年贷款,2%利息,月供:S$

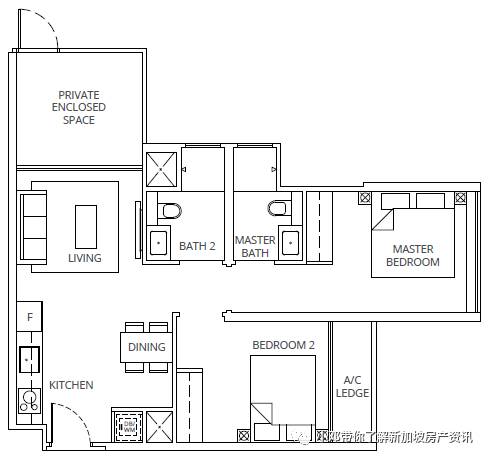
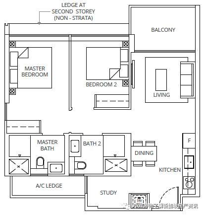
2室
新币 S$ 1,255,000
B1户型 2室 775平方英尺/72平方米
25% 首付 :S$313,750 / 75% 贷款 :S$ 941,250
30年贷款,2%利息,月供:S$
3,479

2室
新币 S$1,153,000
B2户型 2室 764平方英尺/71平方米
25% 首付:S$288,250 / 75% 贷款: S$864,750
30年贷款,2%利息,月供:S$
3,196

2室
新币 S$
B2-P户型 2室 743平方英尺/69平方米
25% 首付 :S$ / 75% 贷款 :S$
30年贷款,2%利息,月供:S$

2室
新币 S$1,257,000
B3户型 2室 786平方英尺/73平方米
25% 首付 :S$314,250 / 75% 贷款 :S$942,750
30年贷款,2%利息,月供:S$
3,485

2室
新币 S$
B3-P户型 2室 786平方英尺/73平方米
25% 首付 :S$ / 75% 贷款 :S$
30年贷款,2%利息,月供:S$

2室
新币 S$
B4户型 2室 764平方英尺/71平方米
25% 首付 :S$ / 75% 贷款 :S$
30年贷款,2%利息,月供:S$

2室
新币 S$
B4-P户型 2室 764平方英尺/71平方米
25% 首付 :S$ / 75% 贷款 :S$
30年贷款,2%利息,月供:S$
2室
新币 S$ 1,133,000 起
B5户型 2室 732平方英尺/68平方米
25% 首付:S$ 283,250/ 75% 贷款:S$ 849,750
30年贷款,2%利息,月供:S$
3,141

2室
新币 S$ 1,128,000 起
B5-P户型 2室 732平方英尺/68平方米
25% 首付:S$ 282,000/ 75% 贷款:S$ 846,000
30年贷款,2%利息,月供:S$
3,127

2室
新币 S$
B6户型 2室 775平方英尺/72平方米
25% 首付 :S$ / 75% 贷款 :S$
30年贷款,2%利息,月供:S$

2室
新币 S$
B6-P户型 2室 775平方英尺/72平方米
25% 首付 :S$ / 75% 贷款 :S$
30年贷款,2%利息,月供:S$

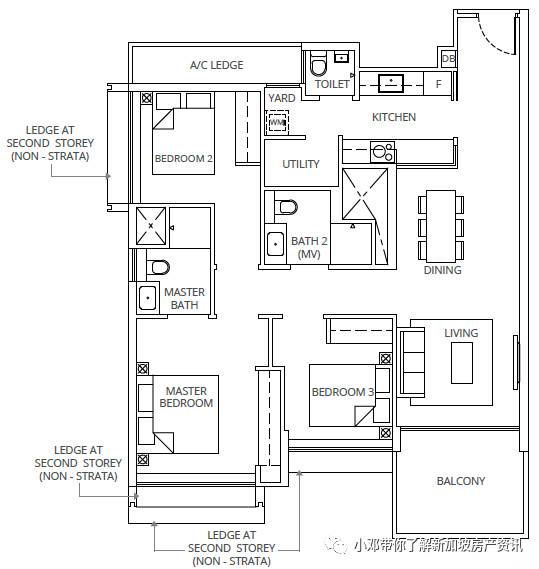
3室
新币 S$ 1,723,000 起
C2户型 3室 1098平方英尺/102平方米
25% 首付:S$ 430,750/ 75% 贷款:S$ 1,292,250
30年贷款,2%利息,月供:S$ 4,776

3室
新币 S$ 1,735,000 起
C1-P户型 3室 1098平方英尺/102平方米
25% 首付:S$ 435,750/ 75% 贷款:S$ 1,301,250
30年贷款,2%利息,月供:S$
4,810

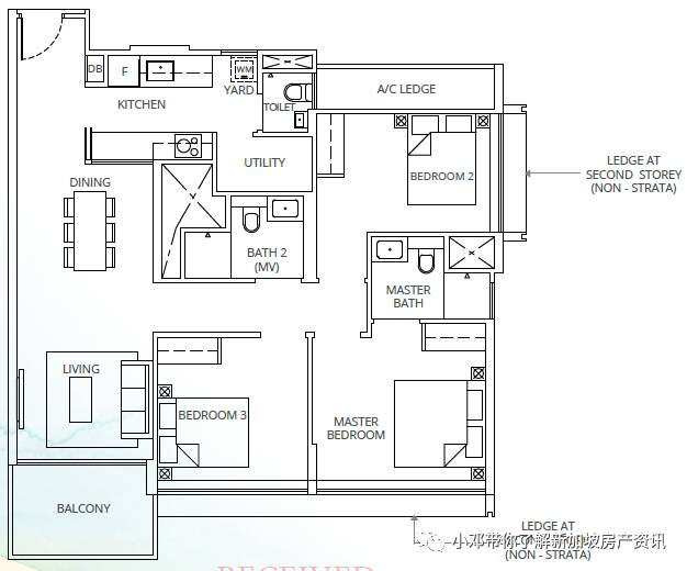
3室
新币 S$ 1,752,000 起
C2户型 3室 1130平方英尺/105平方米
25% 首付:S$ 438,000/ 75% 贷款:S$ 1,314,000
30年贷款,2%利息,月供:S$
4,857

评论