新加坡学区房和临近大学的房子怎么选?以房养学的好项目推荐
今天,咱们就介绍一所临近CIS加拿大国际学校丹绒加东校区和JCU詹姆斯库克大学的楼盘THE LINE @ Tanjong Rhu。

永久地契
已竣工,拎包入住
步行10米到达地铁站
海景及城市景观尽收眼底
楼盘简介
名称:THE LINE @TANJONG RHU
地址:No. 6 Tanjong Rhu Road S(436883)
总层数:20层
总单元:130个单元
占地面积:大约 54,500 平方英尺
完工日期:2017年7月18日(已完工)
地契类型:永久地契
开发商:Lakeview Investments Pte Ltd
关键词:永久地契,学区房,东海岸,交通便利

地契类型小科普
在新加坡,私人房屋的地契可以分为永久地契和非永久地契两种。如果你的房子属于永久地契,就代表你可以无限期地使用它。如果房子属于非永久地契,那么,就代表房子的使用权限有一天会到期。非永久地契的年限一般为99年和999年。
楼盘特点
交通便利
公共运输:THE LINE 完美连接了市中心和东海岸,交通十分便利。公寓200米范围内有4个公交巴士站,8分钟即可抵达临近的 Mountbatten MRT。正在新建的棕色地铁线路会使住户的交通更加便利,地铁站 Katong Park MRT就在小区门口。

自驾:如果喜欢驾车出行,那么12分钟即可到达新加坡樟宜机场(Singapore Changi Airport),15分钟即可抵达乌节路(Orchard Road),8分钟即可到达新加坡中心商务区(CBD)。

临近地铁站:
(TEL) “Katong Park”——门口
Mountbatten (CC7)——0.88km
Stadium (CC6)——1.13km
Dakota (CC8)——1.17km
公寓设施
THE LINE 的另一特色是位于四层的“天空廊道”(sky terrace),住户可以在此享受丰富的娱乐设施:泳池、俱乐部会所、室内健身房、烧烤场地、更衣室、小朋友的娱乐场地和设施等等。


生活品质
THE LINE 的便捷还体现在集饮食、文化、娱乐、休运动于一体。方圆1km之内也有2所平价超市 NTUC Fairprice和1所Cold Storage,更有不少食阁和商铺。

临近超市:
NTUC Fairprice——0.46km
Cold Storage Kallang Leisure Park——0.98km
NTUC Fairprice (Jalan Tiga)——1.04km
NTUC Fairprice——1.81km
由于距离新加坡东海岸公园(East Coast Park)仅800米的距离,摇曳多姿的绿树,温柔拂面的清风,是健康慢跑或者欢乐骑车的最佳场所。
方圆2km之内还有加冷水上运动中心(Kallang Water Sports Centre)和新加坡室内体院馆(Singapore Indoor Stadium)等等运动娱乐场所。学生和家长们既可以锻炼身体培养健康的生活习惯,又方便参加明星演唱会。

学区房
距离学校的远近是新加坡留学家庭要考虑的重要因素。离学校近,不仅节省了上下学的时间,周边的环境也更加单纯,孩子不容易学坏。

临近学校:
Dunman High School——0.14km
Chatsworth International School East Campus——1.69km
Canadian International School——1.9km
James Cook University——3.3km
房型多样
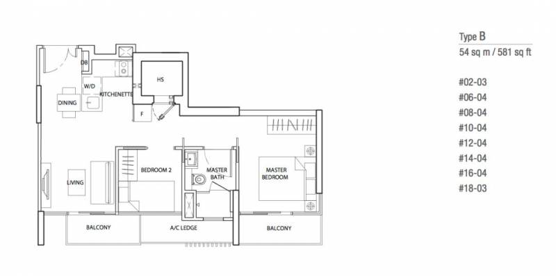
您想要的是单身公寓?还是爱情公寓?抑或是团团圆圆的家庭房?THE LINE 都能满足,1卧房、2卧房、3卧房、4卧房尽你选择。

2卧房布局之一
支付方式
THE LINE 房产的支付方式有两种:
一种是在10周内完成所有款项的支付,房主即可获得钥匙,拎包入住。
如果并不急于拿到房子,您还可以在2年内分期付款。待交付完所有款项后,即可入住。

最后通过一段视频来感受下 THE LINE 的整体风貌吧。
视频来源于网络

金牌经纪人
林胤铭( Adrian Lim )
最大的房地产公司区域董事
楼市观察者,分析者,投资者
纵横新加坡地产界15年的老司机一枚
关于我
- 2006年以一等荣誉学位毕业于新加坡南洋理工大学
- 2008年加入老字号ERA房地产公司,同年拿到最佳新人奖
- 2013年加入博纳房地产公司,同年拿到最佳新人奖
- 荣获百万新元俱乐部成员
- 自2008年加入房地产公司, 至今连续10年拿最佳销售王奖
- 持续每年在有7600个销售人员的博纳地产保持top50的名次
- 2018年加入博纳产业唯一授权的中国精英组
在新加坡土生土长的我,了解本地风土民情,掌握政府政策变化史,经济发展策略,自新加坡成立后的房地产变迁史。精确,敏锐,专业地为您量身打造并挑选最佳的产业。为您在新加坡的房产投资保驾护航!!!
为新移民承诺一条龙免费服务,包括接送机,学校挑选及报名,公司注册,开设银行户口,兑换外币,房屋装修,保险医疗…… 亲力亲为解决您买房前后的一切后顾之忧!
了解更多买房信息,请关注我
联系电话:+65 91015050

微信:a91015050
新加坡房产投资顾问
评论