新加坡的高档公寓到底长什么样?
国内一线城市房价增幅下降
而新加坡房价在经过3,4年调整后
最近半年开始有回暖迹象
那么,投资房子是选择一线城市还是新加坡呢?
先来看一下房价对比
新加坡的中心地区房价为17,876美金每平米
非城市区房价为8,147美金每平米
这个数字和深圳的15,206美金每平米以及
非城市区房价的8,147美金每平米非常接近
也就是说,目前新加坡的房价 约等于 深圳的房价
同样的价格,在新加坡你却能买到的公寓是这样的
这是游泳池

这是网球场


这是自带健身房

这是多功能厅


这是BBQ聚会地点

这是儿童活动场所

椰子可以负责任的说,上面的这些设施
几乎每个新加坡的公寓都具备
有一些高档的,还有保龄球,卡拉OK,迷你电影等设施
这些设施是确实比国内的小区配置要好一些
今天,就隆重介绍一个高档公寓!
2017年下半年开盘的优质豪华公寓项目–玛庭豪苑

玛庭豪苑是由专做高档项目的国浩地产(Guocoland)打造,国浩地产里面绝对有豪宅的基因/DNA,项目位于新加坡黄金地段-第9邮区,位于马丁广场和里峇峇利弄之间。
总占地面积15936平方米,在寸土寸金的第9邮区绝对属于面积大的地块,开发商计划打造450个单位,分为南,北楼2栋30层单位,包括五种类型,有2房到4房不等,即使2房的户型面积76平方米/820平方英尺,最大的4卧房单位面积高达167平方米/1800平方英尺,户型面积比一般新项目同户型面积都大,住起来绝对
爽,爽,爽!重要事情说三遍.
玛庭豪苑在7月开卖第一阶段本来计划只开放90个单位由于预售市场反应好,临时决定增加到110套,第一阶段100%卖出。
参考价格:2房估计175万新币起,
3房241万新币起,4房386万新币起
(以看房时价格为准)

先来聊聊玛庭豪苑的开发商国浩地产(GuocoLand),国浩地产着重于开发高档住宅项目,项目设计以大户型为主,很受豪宅客户欢迎,近几年有两个非常成功的高端项目优景苑(Goodwood Residences)和丽敦豪邸(Leedon Residence),这两个项目分别荣获2014和2015,2016年新加坡最畅销豪宅项目,新加坡最高建筑—丹戎巴葛中心也是由国浩地产打造,楼高65层,坐落于新加坡中央商业区CBD


地点方面,位于马丁广场和里峇峇利弄之间,靠近2020年开通的大世界地铁站/Great World MRT,步行距离到福康宁地铁站/Fort Canning MRT,如果您想区著名的福康宁公寓散步的话,15分钟步行距离就可以到达,等汤申地铁线开通后,只需一站地铁就可到乌节路。总所周知,买房最重要的考量因素地点,地点还是地点

教育方面,周围有一公里内有名校River Valley Primary School/立化小学比如政府的新加坡管理大学SMU(Singapore Management University),新加坡艺术大学SOTA(School of the Arts Singapore)等

“小植物园”-– 超过80%的土地会设计成一个独特的植物园林–“小植物园”,种植超过200多种独特的植物和果树 ,很多都是稀有的品种,有些树种可以长到高达30米。植物园林打造共15种不同主题的小公园,包括聚会草坪,森林小径,和雨水花园等,顶层还有2个秘密花园为主题的花园。绿意与流水交融,营造出一个独一无二的第9区豪宅。整个项目的感觉就是,虽然玛庭豪苑位于都市中心,可是通过大门和走廊,就会感觉进入了一个安静迷人的世外园林,让您在每天忙碌工作后,回家享受与自然为伴的生活惬意!

只用不到20%的占地面积会建成两座30层高的高楼,每个户型有三种景观可供欣赏,小区园林景观,城市景观或者新加坡河景。
全世界最受欢迎的购物街之一,乌节路购物街近在咫尺,世界上知名的服饰品牌,皮包品牌,手表品牌,香水品牌等,这里都可以买得到,商场如[email protected],威士玛,Tang Plaza,义安城等。
如果您爱好社交或者对会所Club文化着迷的话,可以享受附近的美国俱乐部/American Club,东陵俱乐部/Tanglin Club等。只需不到5分钟就可以驾车前往中央商业区CBD,可以携带家人小孩一起去滨海湾花园/Garden by the Bay散步,品尝烧烤,海鲜美食!

项目周围的罗波申码头是新加坡三大码头之一,还有船港码头,克拉码头,是新加坡当地人和外国人很喜欢去的夜生活场所。有餐馆,咖啡馆,特色美食,大小型酒店,酒吧等. 喜欢夜生活的朋友,可以去克拉码头喝点小酒,泡泡酒吧/PUB,释放生活压力!
玛庭豪苑项目全部使用高档品牌,让您使用起来放心,省心! 如Miele厨具,烤箱,Vintec酒柜,Laufen卫浴,SMEG大冰箱,AXOR水龙头,洗脸盆,开发商只为打造高品质的房子给您入住!

小区会所是建成下图这样子的
有没有住在植物园的感觉哦,呵呵…


聊完项目大体介绍,琳达来聊聊最近的开发商标地价格,方便大家对市场有更好的了解。琳达来分析一下2017年政府土地销售情况,通常土地成本占用整个项目开发成本70%左右,最近有块地在Bidadari标地价格$1181每平方英尺,预计Breakeven成本价在1900每平方英尺,该地皮靠近Woodleigh地铁。
有块地在实龙岗北一道(注意不靠地铁站)被开发商以价格$965每平方英尺标出,在女皇镇有块地以价格$1050每平方英尺被标出.今年房产整体收购(Enbloc)的热潮,在友诺士eunosville以地价$909每平方英尺整体收购,地价整体上涨幅度30%-50%,所以预计明年开盘的的新项目价格上涨,建议想买房的朋友,最好是年底前入场。
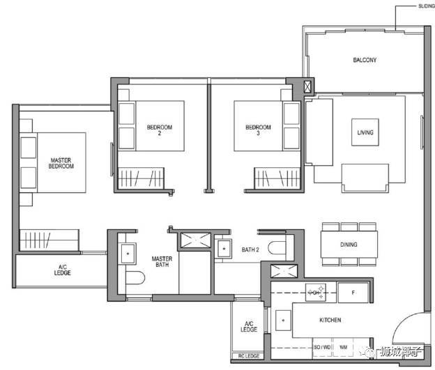
户型点评:
2卧室+书房户型,81平方米,每个房间可房双人床,喜欢烹饪的朋友最爱的封闭式厨房,户型方正,连书房可以挺容易放下单人床。

3卧室户型,94平方米/1012平方英尺,户型方正,方便家私摆设,每个房间够大,可以放置双人床,设计做到房子得到充分利用,没浪费面积!
豪华3卧室户型,132平方米/1432平方英尺,厨房分为干湿两部分,宽敞的客厅.

豪华4卧室户型,161平方米/1733平方英尺,自带私人电梯直接入户,2个阳台朝向漂亮景观,主卧卫生间带浴缸,可以玩泡澡,厨房为干,湿两部分,3个房间在右侧,只有小主人房/Junior Master在房子的左侧,如果碰上有亲戚朋友过来玩,可以安排小主人房当客房用哦。

样板房照片:
需要到现场看房才可以看出房子的豪华感
全部使用高品质的好材料
专为高档豪宅项目打造哦

开车进入公寓小区入口是这样的

想主办生日趴,聚会的大草坪,够档次吧!

标准奥林比克50米长的游泳池

若您对新加坡任何房产感兴趣,请免费咨询我们的特约房产经纪人张琼/Linda,开发商直接代理销售团队,买公寓无任何中介费用,协助客户办理买房银行贷款,买房产业托管一条龙服务。
作者介绍 张琼(Linda),新加坡最大房产经纪公司Huttons市场部高级董事,公司代理全岛各地项目,拥有丰富的房产行业经验,已经加入热爱的房地产行业6年多.全心全意为客户考虑,以客户利益为出发点,诚信待人,服务过包括新移民,企业家,商人等,广泛获得客户好评。不跟买家收取中介费,专车接送看房,公司代理全岛各地项目。一个电话过来就了解全岛各地段的项目,总有一款适合您!
新加坡头条
评论