尚景苑 Stirling Residences,女皇镇中的一颗超级巨星
尚景苑(Stirling Residences)公寓是一个位于女皇镇地铁站旁的超大型霸级私宅项目。该公寓拥有99年地契,由著名发展商龙光地产和南山集团联合开发,由P&T Consultants建筑师设计,中国建筑(南洋)发展公司承建。尚景苑将提供2栋40层和1栋38层建筑,合1259个住宅单元(套)、1所幼儿园和3层地下停车位(平均一户一个停车位)。住宅单元包括227套1卧室、687套2卧室、263套3卧室和82套4卧室。
该公寓也位于女皇镇杜生区(Dawson)的改造计划受惠圈,不仅可以享有计划带来的绿意环境、各种设施,还可能活跃公寓的转售市场。公寓提供80多个休闲、娱乐、健身设施及社交场所,满足公寓各个年龄层居民的需求。
公寓雅居设计合理,力求所有房型均有无阻挡的宽阔视野或泳池/草坪/公园美景。在室内设计上,客厅和餐厅采用大理石地板,卧室采用高级木地板。厨房配备燃气灶、烤箱、冰箱和干燥机等。尚景苑,拥抱历史,感受变迁,享受豪华,开创未来。

楼盘优势与总体评价
这是一个位置好、设施完善、高品位的全景公寓,具有潜在的投资优势,具备五星级楼盘特征。
位于RCR(rest of central region)D03邮区的女皇镇(Queenstown),紧邻市区,属成熟社区;
5分钟步行抵达女皇镇(Queenstown)地铁站;
霸级超大型豪华公寓,共建1259个单元,拥有80多个休闲、娱乐、健身等设施;
步行范围内拥有大量休闲娱乐、购物用餐等设施,10分钟车程抵达乌节路商圈、中央商业区和纬壹科技城;
连结多条主干道和高速路如亚逸拉惹AYE和中央快速公路CTE,交通便利;
教育资源丰富,拥有公寓附设的幼儿园,小学、中学和大学近在咫尺,如女皇镇小学(Queenstown Primary School),女皇镇中学(Queensway secondary School),新加坡理工学院(Singapore Polytechnic)和新加坡国立大学(National University of Singapore)等;
紧靠休闲娱乐场所和绿色空间,如花柏山公园(Mount Faber Park),亨德森波浪人行桥(Hendeson Waves),南部山脊(southern ridges)和花柏山缆车(Mount Faber Cable Car Station)等。

楼盘概况
尚景苑位于第D03邮区的Stirling路,紧邻女皇镇地铁站(290米),占地21,109.5平方米(227,223平方尺)。尚景苑拥有99地契,由龙光地产与南山集团合资的LN Development (Stirling) 公司开发,由P&T Consultants建筑师设计,中国建筑(南洋)发展公司承建。尚景苑将建2栋40层和1栋38层建筑,合1259个住宅单元(套)、1所幼儿园和3层地下停车位(平均一户一个停车位)。住宅单元包括227套1卧室、687套2卧室、263套3卧室和82套4卧室。
地段剖析:尚景苑位于第三邮区黄金地段的成熟社区
尚景苑距离女皇镇地铁站不到300米的距离,几分钟步行即可到站。该地铁站属东西线的重要位置,可无缝连接到中央商务区,乌节路,滨海湾和南部海滨地区,直到樟宜机场。
五个站即可到达的主要地铁站及附近的大型商场/景点包括:
中峇鲁Tiong Bahru MRT (中峇鲁广场),
丹戎巴葛Tanjong Pagar MRT (丹戎巴葛),
莱佛士坊Raffles Place MRT (莱佛士坊),
克拉码头Clarke Quay MRT (克拉码头中心),
植物园Botanic Gardens MRT (新加坡植物园),
波那维斯达Buona Vista MRT (The Star Vista),
纬壹One-North MRT (Fusionopolis & Galaxis),
杜佛Dover MRT (Singapore Polytechnic),
和裕廊东Jurong East MRT (JEM)等。

住在尚景苑的驾车人士可以使用多条主干线和高速公路,如亚历山大路、唐林路和AYE高速公路等,自由驰骋于全岛各地。只要10分钟路程,你就可以到达新加坡国立大学、义安理工学院和新跃大学、丰树商业城(Mapletree Business City)和裕廊区域中心和国际商业园。如果你开车20分钟,就可以到圣陶沙名胜世界、滨海湾金沙、环球影城、滨海湾花园、新加坡摩天轮等尽情玩乐,也可以到新加坡拉萨尔艺术学院、新加坡艺术学院和新加坡南洋艺术学院陶冶心情、感受艺术的魅力。


尚景苑附近教育资源也很丰富
公寓本身就附设了一家幼儿园,为年轻夫妇解决后顾之忧。
小学
附近的小学有女皇镇小学(Queenstown primary school)
新镇小学(New Town primary school)
颜永成小学(Gan Eng Seng primary school)
布兰雅坡小学(Blangah Rise primary school)
附近的中学有女皇镇中学(Queenstown Secondary School)
女皇道中学(Queensway Secondary School)
克信女子中学(Crescent Girl’s School)等
中学
另外,英华初院、新加坡理工学院(Singapore Polytechnic)
和新加坡国立大学(National University of Singapore)
国际学校
附近的国际学校有全球印度国际学校(Global Indian International School)
ISS国际学校(ISS Internaltional School)
东陵信托学校(Tanglin Trust School)等

户型设计与雅居欣赏
作为霸级超大型公寓,拥有比中小型公寓更多的便利设施。据统计,公寓拥有80多个便利设施,如拥有7个不同大小的游泳池,包括一个40米宽50米长的大型泳池、水疗池和幼儿泳池等。公寓还开设3个主题森林公园、屋顶花园、24小时保安、礼宾服务、吊床草坪、茶园亭、反光流(Reflective Stream)、瀑布亭、多功能厅、蒸汽浴室、瑜伽亭、健身房和烧烤亭等,能满足所有年龄层居民的各种需求。


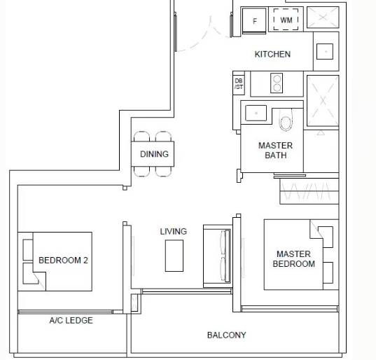
在套间设计上,力求所有单元均有无阻挡的宽阔视野或泳池/草坪/公园美景。在室内设计上,客厅和餐厅采用大理石地板,卧室采用高级木地板。厨房配备燃气灶和伸缩罩(Gas Hob & Telescopic Hood )、烤箱、冰箱和垫圈暨干燥机(Washer cum Dryer )等。公寓提高1,259套1-4卧室单元。

内部装修示意图

内部装修示意图
一卧室,合227套,套内面积41平方米(441平方尺)至66平方米(710平方尺),整套售价从S$759,000元起。特点是户型方方正正,布局合理,采用开放式厨房,无浪费空间。客厅还配备阳台。有些一卧室还有一间书房。这样的户型非常适合夫妻情侣享受二人世界,以及专业人士和学生。除了自住,也适合出租给高端专业人士。

二卧室,合536套。套内面积58平方米(624平方尺)至91平方米(980平方尺),整套售价从1,065,000元起。特点是户型方方正正,布局合理,无浪费空间,客厅和主人房共享阳台。二卧室有Compact、+study和Premium三个户型供选择。这样的户型非常适合夫妻情侣享受二人世界,也很适合有个小孩的夫妻,以及专业人士和学生。除了自住,也适合出租给高端专业人士。

三卧室,合263套。套内面积82平方米(883平方尺)至98平方米(1,055平方尺)。整套售价从1,383,000元起。三卧室有Compact、+utility和Premium三个户型供选择。共同特点是,户型方方正正,所有房间均可放置双人床,客厅和/或卧室配备阳台。

四卧室,合82套,其中6套是阁楼单位(penthouse)。套内面积125平方米(1,346平方尺)至183平方米(1,970平方尺),整套售价从S$2,075,000元起。特点是户型方方正正,布局合理,干湿厨房分开,并有储物间。四个房间均可放置双人床,主人房和客厅均配备阳台,所有房间均配备卫生间。这样的户型非常适合有三个孩子的家庭,或与父母同住。除了自住,也适合出租给相应的专业人士及家庭。

尚景苑位于第三邮区的黄金地段,价位却显著低于中央核心区(CCR)房产,而比郊区(OCR)房产高出不多。从目前的价位及与周边可比楼盘的成交价看,尚景苑将有较大的升值空间。尚景苑属超大型私宅项目,又处在成熟社区,拥有80多个休闲、娱乐、健身及社交场所,是亲朋好友聚会的好地方。尚景苑距离新加坡国立大学、商务办公中心Fusionpolis,Biopolis,Alexandra Technopark和丰树商业园以及中央商业区等不远,形成强大的租金市场,保证了该公寓的出租回报。尚景苑还提供高档豪华室内装潢设计,并提供冰箱、烤箱等厨房设备,真正做到拎包入住。这是一个价位回落好时机,稍纵即逝,您的房产您作主,拿起电话,心仪的房产也许就在眼前。
评论