新加坡的高光时刻来临
新加坡成了香饽饽!
刚刚过去的8月9日是新加坡的54岁生日,岛国上下都沉浸在国庆的热闹气氛里,在烟花绽放的那一刻,这个安宁小岛上的人们,都露出了幸福而又喜悦的微笑。

与此同时,在距离新加坡不远的另一个地方也同样“热闹”著,不过,却“热闹”的令人紧张不安!自6月9日以来,一些激进分子打着“返修条例“旗子在香港进行各种暴力活动,激进行为不断升级,越来越多市民的生活遭受了影响。
这颗曾经璀璨的东方之珠,在这个盛夏被蒙上了一层纱,让人越发看不清、看不懂。因此,世人的目光很自然的从香港看向亚洲另一个国际金融中心----新加坡。

不得不说,新加坡此刻显得愈发耀眼夺目,历史发展到2019年的今天,并列亚洲四小龙的新加坡已经完全取代了香港,成为亚洲经济中心,坐稳了“龙头老大”的位置!
所谓没有对比就没有伤害,同作为国际金融中心的香港和新加坡,这些年来常常被拿来对比,因此,不利于香港的因素,就可能会有利于新加坡。
说这话的是香港某知名学者,针对近来的香港事端,他撰文指出:如果香港国际金融中心的地位受到影响,那么新加坡将从中受益,香港的社会动荡,会导致资本、人才和财富外流,而主要流入地将是新加坡。
这话对香港来说,并非胡言乱语、危言耸听!

新加坡作为国际转口贸易中心,拥有高效便利的港口和航空运输业。投资者既可以将新加坡作为开拓亚洲市场的据点,也可以将其作为开拓海外市场的窗口。
而且这些年来,新加坡的稳步发展有目共睹,可以说在各个方面都取得了傲人的成绩。这一切值得新加坡人为之自豪,值得拥有来自世界各地的最热烈掌声。
是的,这里经济稳健、政治稳定;这里法制健全、货币坚挺。这里,是公认的世界上税率最低的国家之一;这里,是全球最安全的国家第一名。
同时,新加坡还入榜了全球最干净的十大城市,亚洲最宜居的城市,甚至是最适合养娃的地方,不管是食品安全,还是全球食品安全指数都稳居第一。这里已经成为了全球富豪和机构投资公司配置资产的重要战略地。

不得不感叹,这样的新加坡让人怎能不来!怎能不爱!
所以,近期的香港事件出现后,从香港打来新加坡的留学和买房咨询暴增,不少香港买家咨询本地房地产价格,并与香港的房价进行比较,这类咨询增加了20%。通过比较,他们都清楚地发现,新加坡的房价原来比香港要低很多。
其实不止是香港买家,从今年第二季房产数据来看,印度、印尼、美国、台湾、英国、法国等国家地区的买家购入单位都有所增加。这些外籍买家在第二季度购买了249个非有地私宅单位,环比增加43.9%。

从这些数据中可以看出,新加坡的房产已然成为了来自世界各地买家的香饽饽。
对此专业人士指出:中美贸易纠纷和区域地缘政治摩擦,对较稳定的经济体如新加坡很有利。一些投资者已经开始调整资产组合,可能把资金从波动较大的资本市场,转移到较安全投资,如房地产,而新加坡的房地产对他们而言极具吸引力。
单从价钱和投资的角度来说,新加坡房产市场新私宅项目的售价比预想低,而转售房地产物有所值,也是促使外籍人士选择在新加坡买房的重要因素!

另外近几年来,新加坡在高端住宅市场方面表现亮眼,诸多明星和顶级富豪相继来新投资买房。新加坡豪宅成为了世界上高端的住宅品类,是富豪们最为钟爱的投资项目之一。
这不,在张柏芝之后,香港TVB明星许绍雄近日也搬来了新加坡,就住在义顺地区,他说,新加坡很适合养老。

放弃美国国籍的Facebook联合创始人萨维林也来了,他挥金6000万新元买下了乌节路地段阿摩园公寓的豪华顶层及2.3亿新币买下那森路33号的优质洋房。

(那森路33号优质洋房)

(居住在新加坡的萨维林)
英国首富詹姆斯·戴森更以7380万新币买下新加坡第一高楼华利世家的顶层复式豪宅!
这还不过瘾,接着他又砸下4500万新币买下了植物园正对面的“网红别墅”,里面6个卧室、健身房、螺旋电梯、无边泳池、屋顶花园、室内瀑布、庭中花园,可谓奢华至极!据说,他还想把总部也搬到新加坡。



华人世界的富豪们也不甘落后,如海底捞老板张勇就买下了植物园附近的Good Class Bungalow, 李连杰也曾在2009年买下位于Bunjai Rise$1980万新币的优质别墅。
阿里巴巴创始人之一的孙彤宇挥金5100万新币购买嘉峰豪庭(Le Nouvel Ardmore)拥有空中花园的第32层和33层的顶层单位!而阿里巴巴集团创办人马云也被传出正在新加坡一个面积达3万平方尺的地方建立两层豪华别墅。

(阿里巴巴创始人之一的孙彤宇挥金5100万新币购买嘉峰豪庭)

(海底捞老板的优质洋房)
没错,新加坡就是这样一个安全的避风港,让你人安全,钱也安全。在这里安居乐业,在这里投资买房,在这里旅游放松都是绝佳的选择。
说到旅游,不得不说,香港的连日动荡让本已不太景气的香港旅游更加萎靡,而这种不良影响可能会持续一段时间才会有所缓解。
反观新加坡旅游业则蓬勃向上,去年,最令中国游客满意的目的地排名中,新加坡强势登榜,位列第一。

不必回避,作为竞争对手的香港和新加坡,一方有不安定因素,另一方短期内可能就会有所获利,不论是人才流失、财富资本走向,抑或在国际上的金融地位和声望。
连月来的香港动荡如果持续不平,相信对于新加坡来讲,不仅有所获利其实也会受到影响。比如是否有更多港人来到新加坡工作学习,是否更多的外来人口会让房产租金上扬,是否带动本地私宅价格的上调等等,这一切都还是未知数。
可以说,香港的局势也牵动着新加坡人心,虽然香港和新加坡有“一时瑜亮”之说,但新加坡人也深知新加坡的经济受惠于区域包括香港稳定,如果一方在不稳定中,事实对大家都没有好处。毕竟在当今的国际政治经济局面中,没有谁可以独善其身!
所以,希望香港可以早日恢复平静和安宁,也希望外来投资者外来买家能从当前局面中洞若观火,看准时局,从而做出最智慧的决定!
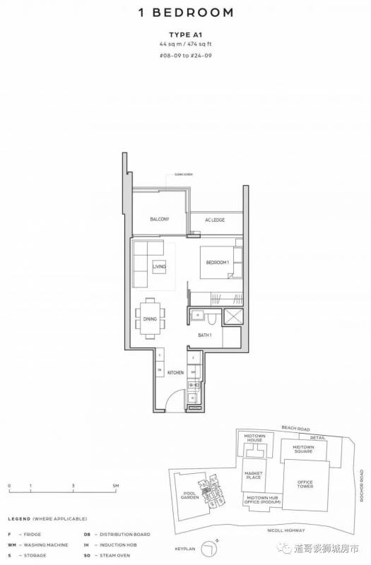
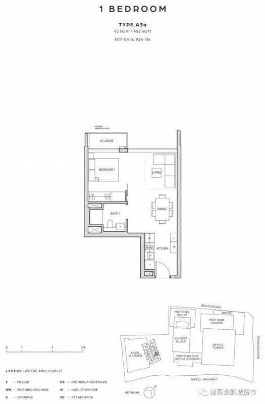
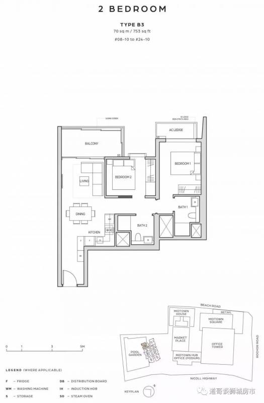
比如关注下这个位于新加坡美芝路的高端楼盘

在新加坡有个区域,这里建筑风格独特,这里文化气息浓厚,这里是艺术、教育、文化和娱乐的集合地,这里在2022年将有一处新的建筑,名字叫做Midtown Bay(滨海名汇)。

由新加坡资深房地产商国浩集团开发的滨海名汇位于第七区上的美芝路新中央商业区,不远处就是新加坡网红打卡地哈芝巷,滨海名汇是地标级城市综合项目国浩时代城其中的住宅项目。

由新加坡资深房地产商国浩集团开发的滨海名汇位于第七区上的美芝路新中央商业区,不远处就是新加坡网红打卡地哈芝巷,滨海名汇是地标级城市综合项目国浩时代城其中的住宅项目。








滨海名汇地理位置优越,距离武吉士地铁站200米左右,地下通道可以直达。驾车10分钟即可到达乌节路和中央商业区,周边可谓汇聚了众多商场、餐饮场所、学校,生活十分便利。

滨海名汇外部环境十分优越,令人心动,走进内部,环境更是优质高端。有豪华露天泳池、空中花园、观景台等等,让你身心放松,感受着天地的美好。
据开发商介绍,国浩时代城的一个特色是将为该地区建立一个空间,用来搭建社交网络或举办活动。另外国浩时代城的落成也将极大的缓解这个地区甲级写字楼的供应压力。
在租赁方面,国浩时代城不但希望能引领办公市场的潮流,也将为其住宅项目滨海名汇的房屋出租提供有力保障。
相信随着国浩时代城的落成,美芝路在未来将会成为一个更成熟、更有魅力的工作生活娱乐为一体的地方。该地区的房地产价格必定会进一步上涨,因此已经有不少投资者开始关注这里,希望可以取得先机!
滨海名汇将于9月发售。想要了解更多滨海名汇的信息,联系道哥吧!

评论