滨海盛景豪苑 Marina One Residences
滨海盛景豪苑(Marina One Residences)
由新加坡淡马锡控股和马来西亚国库控股成立的联营公司,马新私人有限公司(M+S Pte Ltd)开发,99年地契,由两栋34层高级公寓大厦组成,共1,042个1-4卧室及阁楼单位。滨海盛景豪苑位于新加坡第01邮区的黄金地段,滨海湾新金融区,其优越的地理位置可媲美美国金融中心曼哈顿及香港的中环。滨海盛景豪苑是新马两国的重要合作项目,具有重要的历史意义,已成为新加坡金融新区的标志性建筑。

滨海盛景由德国著名建筑大师、可持续绿化建筑权威克里斯多夫·英恩霍文(Christoph Ingenhoven)操刀,独揽三座设计大奖包括最佳高层设计(Best High-rise Architecture)、最佳综合项目(Best Mixed-use Development)和最佳综合设计(Best Mixed-use Architecture)。滨海盛景豪苑是近乎完美的高端私宅,集历史性、独特性、标志性、品牌化于一体,值得您拥有、欣赏、品味。
1
综合发展项目

新加坡总理李显龙和马来西亚总理纳吉共同出席项目的设计揭幕典礼
2011年,新加坡和马来西亚两国执行了一项土地交换计划,马来西亚以丹戎巴葛火车站、丹戎巴葛、克兰芝和兀兰的土地,同新加坡等值交换位于滨海南的滨海盛景(Marina One)和地处白沙浮的双景坊。总发展价值(Gross Development Value)达110亿新元(其中滨海盛景约70亿,双景坊40亿)。两国总理认为这是两国的重要合作项目,将成为世界金融新区的标志性建筑。今年年初,李显龙总理和马来西亚首相纳吉又共同主持了这两项综合发展项目的开幕式。这就是滨海盛景的简要历史。
2
CBD炙手可热

滨海盛景豪苑临近MBFC(Marina Bay Financial Centre)金融机构总部高楼,附近有滨海湾金沙、摩天轮、滨海艺术中心、滨海湾花园等著名旅游景点或标志性建筑。您可以随时欣赏到滨海湾的美丽夜景。

滨海湾金沙、新加坡摩天轮、
滨海艺术中心、滨海湾花园等近在咫尺

新加坡国庆、新年等大型庆典烟花表演
3
优越的地理位置
滨海盛景豪苑的楼下就是三个地铁站,包括海湾地铁站(Marina Bay Station)和市中心地铁站(Downtown Station) ,以及一个正在修建中的珊顿道地铁站(Shenton WayStation),南北线、环线、滨海市区线和未来的汤申线就在眼前。100米范围内还有多路公交路线如7、13、97E、106、133和513等。驾车人士可以通过滨海高速公路(MCE)通往全岛各地。

现今追求主流已不再是目标,而是要追求唯一、追求独特、追求标志性和品牌化。滨海盛景豪苑可以说是一辆性能独特的跑车,如Ferrari 458 Italia、Lamborghini Aventador或Pagani Zonda,也可以比喻成一个名牌包,如Chanel或Hermes Birkin,甚至一块名表,如Rolex、Audemars Piguet或Patek Philippe等。一栋公寓,可以反映两国关系的发展,由两国总理共同主持其设计揭幕典礼和开幕式,足以证明其开发的历史性、独特性。拥有这样一套公寓,本身就是一件值得骄傲的盛事。

滨海盛景豪苑泳池
4
卖点集锦
具有历史价值建筑,增值潜能巨大;
位于第01邮区黄金地段,金融中心核心地带的标志性建筑;
大型综合发展项目,结合购物娱乐、住宿和高档A级写字楼于一体;
由著名设计师引入“梯田”设计理念,履行“花园中的城市”概念,屡获大奖;
提供高档公寓设施及厨卫用品,如美诺(Miele)、博宝德(Poggenpohl)和唯宝(Villeroy & Boch)等;
提供一流的公寓设施, 如50米泳池、空中露台及空中休闲配套等;
现房公寓,二期公寓单位正全新推出市场,数量有限。

大堂
健身房


水疗




高品位的生活也不可缺少美食
滨海盛景豪苑的一大特点就是梯型中央绿地,还能静赏来自13米高的水帘传来的清新流水声。其设计灵感源于绿油油的梯型稻田(Paddy Field),充满层次感。而稻米又是亚洲乃至全世界的主食,象征富裕无忧之意。在寸土寸金的滨海市区,还能享受一大片的绿地,这就是奢侈或具有独特性和标志性。作为一栋高端公寓,所有单元均配备完美设施,使用高档品牌如美诺(Miele)、博宝德(Poggenpohl)和唯宝(Villeroy & Boch)等,就连阳台和窗户位置都经过精心设计,让滨海湾美景尽收眼帘,不同的单元将欣赏到不同的美景如滨海湾金沙、滨海湾花园、新加坡海峡、苑区内的梯田式巨碗及中央绿色园林等。

5
样板间赏析

客厅里完美的视野

清晨阳光泻入您的卧室

酒店一样的卫浴设计

智能式厨房
6
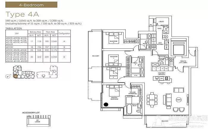
房型分析
滨海盛景豪苑讲究的是完美、舒适、高端。全部单元均采用大面积设计。两卧室从90平方米起,三卧室从140平方米起,四卧室从190平方米起。所有房型均空间宽敞舒适,房间方方正正,高楼单元拥有海景,一望无际,令人心旷神怡。目前主推的两卧、三卧、四卧均配备私人电梯,剩下套数有限,欲购从速。
二卧室,使用面积104或105平方米/1119或1130平方尺,售价从$2,957,000起($2,603新元/平方尺)。

三卧室,使用面积140-143平方米/1507-1539平方尺,售价从$4,226,850起($2,963新元/平方尺)。

四卧室,使用面积190-209平方米/2045-2250平方尺,售价从$5,643,000起($2,962新元/平方尺)。

新加坡一直是房产投资的热点,而自去年以来,新加坡的房产市场在经过几年的寒冬之后已开始复苏,今年的私宅售价和销量都有上升的趋势,市场也呈现出某种程度的火爆场面。作为私宅市场的高端作品,滨海盛景豪苑从头到尾都充满了高端品味。滨海盛景豪苑是新马两国执行一项土地交换计划的一部分,具有重大的历史意义,也从另一个层面为这个现房楼盘提供了增值空间。 总之,滨海盛景豪苑是独特的、唯一的、尊贵的。如今的滨海盛景豪苑已经是现房公寓,发展商正在二期销售,好货沉底,数量有限,拿起手中电话,心怡的新家就在眼前。
评论