2017年最畅销的新私人公寓有哪些?
买房就找金牌经纪人吴洲,高效靠谱,最新科技定位数百个楼盘数万款房产任您挑,总有一款适合您。
简
介
年末将至,2017年对新加坡房地产业而言是一个不平凡的一年。众多楼盘集体出售了,新推出公寓一栋又一栋,新私宅销售量明显高过去年,私宅价格也正在稳步提升。房地产市场的春天已经来临,在这美好的季节里,让我们回顾一下今年交易最火爆的新公寓,这些公寓在2017年的成交额占公寓总开发单元的至少50%,有些已全部售罄,我们称之为2017年最畅销公寓。
这些公寓包括:河景苑 (Parc Riviera)、豪佳苑(Grandeur Park Residences)、The Clement Canopy、海景轩(Seaside Residences)、苏菲雅山庄(Sophia Hills)、心乐轩(Le Quest)、高文之星 (Stars of Kovan)和Park Place Residences At PLQ。
这些公寓中,有2栋位于西南部的第5邮区(河景苑和The Clement Canopy),1栋位于中部乌节路黄金地段的第9邮区(苏菲雅山庄),1栋位于中部东区的第14邮区(Park Place Residences At PLQ),1栋位于东海岸的第15邮区(海景轩),1栋位于东海岸上段的第16邮区(豪佳苑),1栋位于东北部的第19邮区(高文之星),1栋位于西北部的第23邮区(心乐轩)还有1栋位于中部东区的第14邮区(Park Place Residences At PLQ)。心乐轩、高文之星和Park Place Residences At PLQ属于综合项目。总体说,这些公寓各有特色,但有一个共同点,就是人气旺,买气旺。
1
2017年新加坡新私宅
销售量明显高于去年
2017年即将结束,新年的钟声即将敲响。在这辞旧迎新的日子里,让我们回顾一下2017年的私人公寓的交易情况。总体看来,私人住宅物业市场呈现明显回升迹象。2017年第三季,私人住宅价格微升0.7%。代表大众化私宅的中央区以外(OCR),代表中档私宅的其他中央区(RCR)和代表高档私宅的核心中央区(CCR)的价格分别上涨0.8%,0.5%和0.1%。
根据市区重建局的数据,2016年1-11月份销售的新推出私宅(公寓)总量为7318套。而2017年1-11月份销售的新推出私宅(公寓)总量为9414套,同比增长近30%。在今年头11个月销售的新公寓中,代表大众化私宅的OCR居首位,达5374套,占57.1%,其次是代表中档私宅的城市边缘公寓,达3267套,占34.7%,代表高档私宅黄金地段的核心中央区(CCR)公寓,达773套,占8.2%。OCR的主要价位在每套140-145万,平均单价为每平方尺$2201新元($23691新元/平方米)。RCR的主要价位在每套$130-$1345万,平均单价为每平方尺$1658新元($17847新元/平方米)。OCR的主要价位在每套$95-$100万,平均单价为每平方尺$1322新元($14230新元/平方米)。
今年第16区(Bedok, Upper East Coast, Eastwood, Kew Drive)的OCR新推出的单位数量最多,共有720个单位出售。就RCR区公寓而言,第14区(芽笼和友诺士)推出的新单位最多,共有733个单位销售。对CCR区而言,第9邮区新销售公寓单位最多,共有589个单位出售。
2017年新公寓销售情况(至11月底)
私宅市场分区
成交额(套)
主要价位分布
平均单价
推出最多单位的邮区
CCR
773 (8.2%)
140-145万
2201
D9
RCR
3267 (34.7%)
130-135万
1658
D14
OCR
5374 (57.1%)
95-100万
1322
D16
所有分区
9414
$95-$145万
$1511
D9,D14,D16
2017年最畅销公寓(至11月底)
公寓名
邮区
地契
总单元数
出售单元(%)
平均尺价
河景苑 (Parc Riviera)
D5
99年
752
752(100%)
$1,241
豪佳苑(Grandeur Park Residences)
D16
99年
720
604(84%)
$1,389
The Clement Canopy
D5
99年
505
423(84%)
$1,370
海景轩(Seaside Residences)
D15
99年
841
549(65%)
$1,721
苏菲雅山庄(Sophia Hills)
D9
99年
493
302(61%)
$2,002
心乐轩(Le Quest)
D23
99年
516
287(56%)
$1,310
高文之星 (Stars of Kovan)
D19
99年
395
203(51%)
$1,473
PARK PLACE RESIDENCES AT PLQ
D14
99年
429
217(51%)
$1,806
展望明年,私人公寓市场的交易将会进一步改善,售价也预期稳步提高。这里介绍8栋在2017年交易最火爆的新公寓,这些公寓在2017年的成交额占公寓总开发单元的至少50%,我们称之为2017年最畅销公寓。

这些公寓包括:河景苑 (Parc Riviera)、豪佳苑(Grandeur Park Residences)、The Clement Canopy、海景轩(Seaside Residences)、苏菲雅山庄(Sophia Hills)、心乐轩(Le Quest)、高文之星 (Stars of Kovan)和Park Place Residences At PLQ。
畅销楼盘1:河景苑 (Parc Riviera)
河景苑位于新加坡第5邮区西海岸谷和亚逸拉惹高速公路的交界处,99年地契,1757平方米(18908平方尺)。该楼盘由EL Development 开发,共建752个1-4卧室单位,面积介于43-159平方米(463-1711平方尺)。
该公寓规划在金文泰(Clementi)地区,距金文泰地铁站和裕廊东地铁转换站(Jurong East MRT)均超过1公里范围,但距规划中的未来新建地铁站较近。该楼盘的另一个卖点是附近1公里范围内有名校南华小学(Nan Hua Primary School)以及其它一些学校包括国际学校。楼盘推出时,EL Development引入了一种“单层定价”的创新销售方案,就是位于1-15层的单元,只要面积相同,各层的定价都是固定的。这样的定价吸引了许多潜在买家和其它开发商的兴趣。目前,该楼盘已全部售罄。

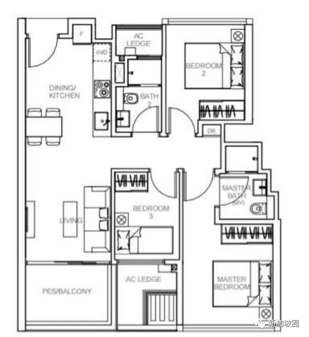
畅销楼盘2:豪佳苑(Grandeur Park Residences)
楼盘坐标和名片
豪佳苑位于第16邮区樟宜路上段和勿洛南3道的交界处,99年地契,24,394平方米(262575平方尺)。该楼盘由集永成集团(Chip Eng Seng)旗下的子公司CEL Development Pte Ltd开发,共建6座14-15层高建筑,合720个私宅单位,2间商铺以及1间托儿中心。距离豪佳苑最近的地铁站是丹那美拉(Tanah Merah MRT),约200米步行距离。附近的大型购物中心有勿洛购物中心(Bedok Shopping Complex)、勿洛坊(Bedok Point),购物广场(Bedok Mall)和樟宜坊(Changi City Point)等。驾车人士只需15到20分钟就可到达乌节路和中央商业区。豪佳苑已售出604个单元,占84%。

豪佳苑楼盘卖点:
属东部价格最合理楼盘,升值潜力大;与邻近的The Glades相比,有明显的价格优势;
交通便利,乘地铁可直达政府大厦地铁站(City Hall MRT)和莱佛士坊地铁站 (Raffles Place MRT),200米范围内还有11条巴士路线,驱车可连接到东海岸公园大道(ECP)和泛岛高速公路(PIE);
公寓设计高端、现代,如引入智能家居新概念,嵌入耶鲁生物学数字锁,采用指纹、虹膜等开门,确保安全,没有忘带或丢钥匙的风险。
公寓周边教育资源丰富,1公里范围内有6间幼儿园、3所小学和4所中学。附近还有两间初级学院,一所大学和多间国际学校。拥有多所名校,如卍慈小学、圣公会中学和淡马锡初级学院等。
公寓设施齐全,如包含多种亲子设施,如托儿所、儿童俱乐部、健身房、泳池、70米的儿童探险区以及90多个生活设施。
豪佳苑户型设计和欣赏:
豪佳苑以“身心灵”(Body, Mind and Soul)为设计概念,打造绿意盎然的环境。公寓装修采用简单的色调配以简约线条,尽显奢华大气。发展商在墙面和地板材质的选购上也花了一番功夫,材质的塔配给人一种非凡脱俗的、内在的高品位,并与住户精心挑选的灯饰相匹配,展现主人的个人风格和品位。同样地,卫浴和厨房也采用高端名牌,喜欢自己做菜的朋友们一定喜笑颜开。

目前所剩单元已不多,这里介绍一个三室一厅户型,使用面积82平方米(882英尺),最低价格$129万新元起。这个户型的所有房间均可放置双人房。房间、客厅均方方正正,给您充分的家私摆设空间。厨房、餐厅和客厅之间通过过道和餐桌等的布置自然形成不同的功能区,充分利用有限的空间。户型南北走向,无西晒。客厅和主人房均配备阳台。由于是三室一厅户型,适合与父母同住或有小孩的夫妇自住。出租也是一个好选择,所处的地理位置及公寓的便利设施,为潜在的高回报提供了保障。
畅销楼盘3:The Clement Canopy
楼盘坐标和名片
The Clement Canopy楼盘位于第5邮区的金文泰一道和亚逸拉惹高速公路之间,99年地契,占地13037平方米(140329平方尺),建筑面达45633平方米(491189平方尺),共建2-4卧室单位505个,单位面积59-143平方米。该楼盘由新加坡置地(Singland Homes Pte Ltd)和大华置业(UOL)共同开发。这个新公寓规划在金文泰(Clementi)地区,距离东西线金文泰地铁站(Clementi)大约900米。往东2个地铁站就是波那维斯达地铁转换站 (Buona Vista),可转乘地铁;往西一个地铁站,就是裕廊东地铁转换站(Jurong East),在那可转乘地铁南北线以及未来的通往马来西亚的高铁。驾车人士只需要10分车程到达中央商务区和金融中心,12分车程抵达繁华的乌节路购物区。
楼盘卖点:
西海岸高层海景,视野宽阔;
地理位置让人刮目相看:公寓位于肯特岗学区 (Kent Ridge Education Belt)边缘,往西是新加坡下一个市中心 (Second CBD)裕廊-湖区 (Jurong-Lake District),往东是新加坡科技园区纬壹商圈(One North Business Park);
附近设施和购物商场林立,如金文泰商场(The Clementi Mall)、CityVibe、金文泰购物商场(The Clementi Arcade)和西海岸广场购物中心 (West Coast Plaza)等;
典型的学区房,街道对面就是南华中学和新加坡国立大学附属数理中学,国立大学主校园也近在咫尺,附近的学校还有金文泰小学、培童小学和南华小学等;
潜在租金回报率高。肯特岗学区、裕廊-湖区和纬壹高科技园聚集了大量的学生和专业人士,形成很大的住房需求;
附近美食遍地,如大牌726金文泰2街、大牌502西海岸和大牌448金文泰3道的熟食中心等,均上过电视或报章报道。

雅居设计和户型欣赏:
The Clement Canopy公寓的整体设计概念是源于自然,又优于自然,打造一个与大自然和谐共处的会呼吸的居家环境。公寓绿化面积高,公共设施齐全。室内设计优雅,高端。让我们欣赏一个三卧室带后阳台的户型。这个户型套内使用面积92平方米(990平方尺)。进门后有一个缓冲区,从大门口不会直接看到室内,隐私较好。
缓冲区后就是餐厅了,餐厅旁的厨房干湿分开,空间合理,非常适合喜欢家庭聚会的朋友。客厅配备阳台,光线充足,与餐厅通过过道自然分开,节省空间。再进去就是方方正正,均可放置双人床的三个房间。这个房型非常适合有孩子或喜欢与父母同住的夫妇。另外,由于这里是专业人士聚集的地方,若要出租,将会有较高的潜在租金回报。这个户型售价从$138万新元起,欢迎电话垂询或询问其它户型。

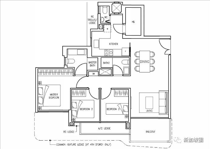
畅销楼盘4:海景轩(Seaside Residences)
楼盘坐标和名片
海景轩位于第15区,东海岸实乞纳路和实乞连路的交界处,99年地契。该楼盘由星狮地产(Frasers Centrepoint)、日本积水室第(Sekisui House)和强枫控股(Keong Hong Holdings)联合开发,占地约19309平方米(207840平方尺),建筑面积67584平方米(727468平方尺),共建4座27层高的建筑,合841个1-5卧室私宅单位,面积介于39-250平方米(424-2690平方尺)。该楼盘属马林百列(Marine Parade)地区。海景轩距离建设中的实乞纳地铁站(Siglap MRT Station)大约300米,离勿洛地铁站(Bedok MRT station)1700米。
靠近海景轩的东海岸公园大道(ECP)给驾车人士非常方便容易的到达新加坡的各个角落。 10分钟左右的车程即可到中央商务区,到达繁华的乌节路也只需要10分钟。

楼盘卖点:
典型海景房,俯瞰波澜壮阔的绝美海景及15公里长的海岸线;
东海岸地区时隔多年再度推出的新海景公寓,属稀有海景公寓;
只有23.4%的土地用作住宅建筑,其余76.6%的土地均用作设施或绿化用途;
交通便利,距离建设中的实乞纳地铁站大约300米,200米内有13条巴士路线,靠近东海岸公园大道(ECP);
靠近机场,4号航站楼以及5号航站楼的建成后将每年为樟宜机场带来大约1亿人次的乘客,为公寓注入新的活力;
周边设施齐全,可步行至新加坡最大的海滨度假区东海岸公园;附近商场林立,如百汇广场 (Parkway Parade Shopping Centre)和112加东(112 Katong)等;
附近教育资源丰富,1公里范围内有5家幼儿园,附近还有义安小学、奥匹拉小学、圣斯德望学校、道南学校、圣婴女校(加东)、维多利亚学校、加东修道院女校、圣伯特理中学和圣安东尼女校(中学)以及维多利亚初院和淡马锡初院等。
雅居设计和户型欣赏:
海景轩注重绿化,只有23.4%的土地被用来设计住宅,其余则用作休闲和设施。公寓布局明智合理,建筑设计考虑周到,空中花园都可享受360度全景。设施包括游泳池,室内健身房,网球场,儿童游乐场和烧烤区等,提供一个真正豪华的度假生活方式。每天醒来,都可欣赏到东海岸的壮丽景色。

设计师对户型设计也苦费心机,其中一个亮点就是智能划分的存储空间。 LIVCLO专门为海景轩创建并设在客厅里的“生活衣橱”。当门打开时,动作感应灯会自动点亮。精心设计的存储空间使您可以通过按目的和日常使用项目进行分类,存储空间可以始终保持整洁。这样的设计让您有更多的时间去关注生活中的真正优先事项,那就是享受您的新的海边家园。这里让我们一起欣赏一个三卧室的户型图。这个三卧室使用面积95平方米(1023平方尺)。入门处有一个储藏室,提供额外的储藏空间。厨房与餐厅完全分开,而餐厅与客厅由过道自然分开,既美观又节省空间。客厅还有一个较大的阳台,让您一家共赏美景。所有房间均方方正正,且均可放置双人床。总的来说,结构相对合理,适合自住。若要出租,其优越的地理位置可保障租户来源,将有潜在的高租金回报。这个户型的售价从$152万新币起,欢迎电话垂询。
畅销楼盘5:苏菲雅山庄(Sophia Hills)
楼盘坐标和名片
苏菲雅山庄位于D09最繁华的乌节路地带高档住宅区。小区地皮包括了三幢历史保留建筑,由发展商重新发展成公共用途。曾经的神学院,重新发展成小区里的餐厅。曾经的美以美女子学校规划成小区幼儿园。3层高的艺术区“旧学校”(Old School),会重新发展成公寓会所。苏菲雅山庄99年地契,占地23000平方米(247570平方尺),由海峡双威(Hoi Hup Sunway)开发。该楼盘共建12栋4到7层的低密度建筑,合1-4卧室单位493个,面积43-143平方米(463-1539平方英尺)。苏菲雅山庄距多美歌地铁转换站(Dhoby Ghaut Station)步行几分钟即可到达。该地铁站可乘坐南北地铁线、东北地铁线和地铁环线,非常方便。无论是去乌节路购物,去克拉码头小酌,去牛车水中餐一顿,还是去莱佛士市区上班,五分钟地铁都可以到达。
楼盘卖点:
位于繁华的乌节路商圈,属高档私宅;
交通方便,不到200米的多美歌地铁转换站可乘坐南北地铁线、东北地铁线和地铁环线;不到400米的明古连地铁站可乘坐滨海市区地铁线,到达莱佛士坊地铁转换站(Raffles Place MRT Station);300米范围内还有至少20条巴士路线,直达全岛各地;
与其它邻近公寓相比,苏菲雅山庄价位低,优势明显,升值潜力大,且户型设计独特;
唯一拥有自己的幼儿园、托儿所和餐馆的公寓项目;
名校圣玛格烈小学(Saint Margaret’s Primary School)在300米范围内,还有史丹福小学(Stamford Primary School)、英华附小(Anglo-Chinese Junior School)、花苑小学(River Valley Primary School)等,以及新加坡管理大学(Singapore Management University)、南洋艺术学院(Nanyang Academy of Fine Arts)及芝加哥大学布斯商学院(The University of Chicago Booth School of Business)等。
潜在的高租金回报,乌节路商圈、附近的著名学校以及中央商业区等均是潜在租户来源。

雅居设计和户型欣赏:
在这个寸土寸金的黄金地段,建造只有4-7层的地密度建筑实属罕见,公寓设施包括了游泳池,水力按摩池,景观瀑布,瑜伽台,健身房,慢跑小径,会所,幼儿园,餐厅,儿童游乐场等等各种设施应有尽有。苏菲雅山庄的另一个特点是户型非常多,如在CCR区不多见的两房双钥匙单位等。这里和大家一起欣赏一下一个三卧室的户型图。这个户型面积79平方米(850平方尺)。在这个户型中,为了节省空间,餐厅与厨房之间没有明显的界限,而与客厅之间则以过道自然分开,客厅还配备阳台。三个房间均方方正正,主人房和一间普通房可放置双人床,另一间可放置单人床。三个房间均有内置衣柜。这个户型特别适合有孩子的夫妇自住或与父母同住。因地理位置优越,出租的租金回报潜力较高。该户型的售价从$158万新元起,欢迎电话垂询。

畅销楼盘6:心乐轩(Le Quest)
楼盘坐标和名片
心乐轩位于第23邮区,坐落在武吉巴督西6道和武吉巴督西8道的交界处,是一个综合项目,结合零售与私宅。心乐轩属于99年地契,占地14,700平方米(158229平方尺),由青建地产(Qing Jian Realty)开发,共建5栋12层高的建筑。心乐轩的商业空间占地6000平方米(64584平方尺),综合项目内将设有托儿中心、超级市场.以及各类能满足居民不同饮食需求的用餐场所。心乐轩的住宅由1-4卧室的516个私宅单位组成,面积介于40至142平方米。
武吉巴督巴士转换站及地铁站就在附近,非常方便。附近有各种各样的设施和购物商场如武吉巴督西购物商场、武吉甘柏购物中心、武吉甘柏购物中心和威城等。驾车人士仅需15分钟车程即可由泛岛高速公路(PIE)抵达繁华的乌节路购物区,16分钟车程即可由亚逸拉惹高速公路(AYE)到中央商务区和金融中心。

楼盘卖点
15年来武吉巴督第一个结合住宅和商场的大型综合发展项目;
武吉巴督、武吉甘柏地铁站就在附近,只需几分钟的步行时间;
公寓采用智能家居结合网上购物的全方位“智能家居”系统;
靠近高速发展的新加坡第二个CBD(商业中心),裕廊湖区;
公寓有两年免费巴士到武吉巴督地铁站和裕廊东地铁站;靠近多个商场如JEM,Westgate,Big Box,JCube,IMM等;
一公里内有名校伊丽莎白公主小学;
综合发展项目设施齐全,下楼就有商铺,餐馆,NTUC 超市,食阁等,在公寓内还有托儿所。

雅居设计和户型欣赏:
心乐轩的户型设计相当有特色,重点之一是能充分利用可用空间,无论是1居室还是4居室,都不会感到封闭和拥挤,而且每户住家都配有专属停车场。另一个特点是智能家居设计,旨在创建一个自在、便利和设有科技创新的家居生活。如住户可通过特别开发的手机应用软件,向楼下商场内的职总超市订购商品并付款,而超市会直接把商品送上门。这里让我们欣赏一个3居室的户型设计。这是一个87平方米(936平方尺)的单元,一进门,首先映入眼帘的是宽阔的餐厅,左边的厨房。餐厅前方是客厅,客厅外是一个较宽敞的阳台,确保客厅与餐厅有充足的阳光。客厅与餐厅由过道自然分开,过道进去是三间卧室。所有房间均方方正正,且均可放置双人床,这在只有87平方米的3居室是不多见的,充分说明其设计中空间利用的合理性。另外三个房间均配备内置衣柜,主人房还有阳台。设计相当合理,不论自住或出租,综合项目的便利不言而喻。自住可节省购物、接送孩子的时间,还可以任意时间逛商场。而出租则不用担心客源,便利的设施,优越的地理位置以及智能化的家居生活将吸引大批租客,具有潜在的高租金回报。该户型新元114万起,欢迎电话垂询!
畅销楼盘7:高文之星 (Stars of Kovan)
楼盘坐标和名片
高文之星是位于第19邮区的实龙岗路上段、淡宾尼路和华丽路之间的新私宅项目。高文之星位于历史悠久的成熟私宅区,属99年地契公寓,占地19700平方米,发展商是香港李嘉诚掌舵的长江实业地产(Cheung Kong Property Holdings Limited)在新加坡的子公司Property Enterprises Development (S)私人有限公司。和心乐轩一样,高文之星也属于综合项目,出了46个商铺外,还有395个住宅单位包括90个一卧房单位、240个两卧房单位、60个三卧房单位以及5个分层屋契有地住屋。住宅面积介于47-170平方米而商铺位面积介于20-80平方米。除了公寓自带的46间商铺,高文之星周边的零售商场、餐饮、娱乐设施等也非常完善,如有高文城(Kovan City)、心邻坊(Heartland Mall) 和 NEX等等。高文之星距离高文地铁站(Kovan MRT )约400米,200米范围内还有13条巴士路线。驾车人士只需10-15分钟车程即可到达繁华的乌节路、中央商务区和金融中心等。
楼盘卖点
是地铁站旁的罕见商住综合项目,只需步行几分钟即可抵达高文地铁站(Kovan MRT),200米范围内还有13条巴士路线;
由著名发展商开发,有质量和信誉保障,楼盘将按时竣工;
是少有的综合项目,地理位置优越,升值潜力大;
公寓设计内外兼修、端庄高雅,具有英伦风范;
每三层设计一个空中花园,绿化面积大,立体感强;
公寓地处成熟区域,生活和交通极为便利,潜在租赁需求强劲;
教育资源丰富,一公里范围内就有7家幼儿园,还有小学如醒华小学、圣婴小学、巴耶利峇美以美女小等以及中学、初级学院和国际学校。

雅居设计和户型欣赏:
高文之星由COEN Design International精心设计,拥有多个空中花园,将成为高文的新地标。COEN Design International致力于把高文之星打造成一个精品豪华的典范,给每一位居民提供奢华雅致的居住环境,开阔无遮挡的城市景观。作为新地标建筑,发展商毫不含糊地选择高端品牌产品作为建筑材料,就连厨房和浴室产品都选择了科勒(Kohler)、Duravit、Hansgrohe和Smeg等高级品牌。而地板的选择交由居民决定,让居民自己决定客厅和房间装修格调,让公寓装饰多样化又不失高端化。这里让我们一起欣赏一个三室一厅户型。这个户型的使用面积为89平方米(958平方尺)。这个户型的特点之一是不但拥有三个房间,一客厅、一餐厅、一厨房,还配备三个卫生间以及一间储物间,可谓配备齐全。厨房为封闭式设计,这样的设计将有效防止油烟扩散至厨房以外的地方。客厅与餐厅由过道自然隔开,空间利用率高,客厅还配备阳台,而餐厅的设计相当大气,是朋友聚会的好去处。由客厅与餐厅之间的过道往里走就是三个房间。主人房面积很大,还有一个涵盖整面墙的大衣柜。虽然只有89平方米,三个房间都是方方正正,均可放置双人床,并配备内置衣柜。您可以选择自住,享受这里的高雅环境、一流设施以及综合项目带来的便利。您也可以选择出租,这里优越的地理位置,方便快捷的交通和成熟社区的完备设施,将确保租户来源,让您出租无忧,并获得具有高出租潜力的租金回报。该户型新元152万起,欢迎电话垂询!

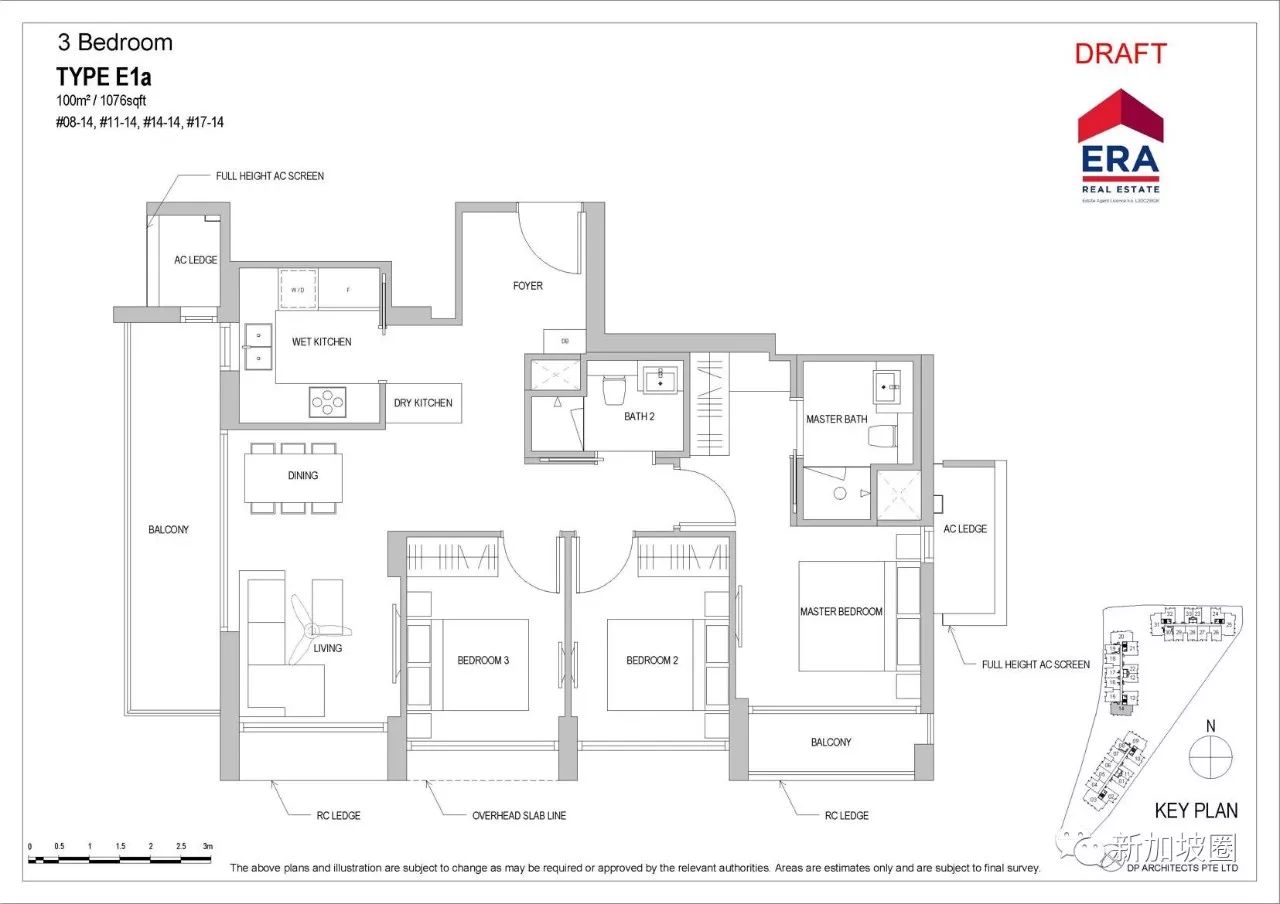
畅销楼盘8:Park Place Residences At PLQ
楼盘坐标和名片
Park Place Residences At PLQ公寓位于第14邮区的巴耶利峇路2,6,8号,99年地契。公寓坐落于巴耶利峇高速发展的区域中心,是一个真正意义上的大型综合性项目。该项目包括92903平方米(1,000,000平方尺)的两座A等级办公楼,可容纳10,000位工作人员、31587平方米(340,000平方尺)的大型商场,有200多家店面以及可同时播放11部电影的电影院、9290平方米(100,000平方尺)的绿色空间,1858平方米(20,000平方尺)的有遮挡的户外活动区域。住宅楼建有429个面积介于46-125平方米(500-1350平方尺)的1-3卧室单位。该项目由Milano Central Pte Ltd、Roma Central Pte Ltd和Verona Central Pte Ltd共同开发。公寓直接与巴耶利峇地铁转换站相连,2分钟的步行时间即可到站。从此站往西5/6个站到CBD市政厅(City Hall)/莱佛士坊(Raffles Place),往东6站到机场,往北4/6站到实龙岗/碧山,往南6站到海湾舫(Bayfront)。200米范围内还有巴士转换站,真正做到四通八达。驾车人士可以很快地到达主要的高速公路如 PIE,KPE和ECP,再通往全岛各地。除了综合项目的商场外,还有巴耶利峇广场(Paya Lebar Square)和OneKM商场等,非常方便。

楼盘卖点
属少有的超大型综合项目,将住宅、办公楼和商场有机结合起来,打造一个全新的商住两用空间;
地铁站就在楼下,无论去市中心、滨海湾,还是去机场,都不超过6个站;
一公里范围内有名校芽笼美以美小学(Geylang Methodist Primary School)、多家幼儿园以及知名国际学校等;
公寓外观高雅、高品质室内装修、绿化丰富多样、公寓设施完备;
房型紧凑,空间利用率高,配备环保设施;
公寓小区空间大,人口密度低,绿化率高;
提供个性化的门房、拼车、装修服务等;
地点优越、设施完备、租金回报率高。

雅居设计和户型欣赏:
公寓设计绿色环保,荣获建设管理局(BCA)绿色标志奖(白金),居民可以通过节能和节水设计减少水电费。厨房配备冰箱、橱柜、烤箱及其它高档厨房设施居民也可以选择不同的地板类型,营造特定的家庭氛围。一卧室拥有开放式厨房,以节省空间。这里让我们欣赏一个3卧室的单元。3卧室单元是最豪华的,家庭友好型的,如果您拥有一套,你会想方设法邀请您的朋友到您家聚会,分享、炫耀您所拥有所谓豪华舒适。这个单位的面积为100平方米(1076平方尺)。一进大门,有一个缓冲区,你只能看到小部分干厨房,湿厨房则完全封闭,厨房与餐厅也是分开的,这样的设计可以最大限度保持客厅和房间的安静,不受干扰。厨房内侧有共享的工人房/储藏间/洗衣间,可以充分利用空间。这个户型的餐厅相对宽大,您可以摆放一张供10-12人使用的长桌。而客厅与餐厅共享一个长型阳台。特别强调的是,这个阳台是物超所值的,因为这是一栋公园广场公寓,可享用无限美景。餐厅的另一侧就是3个房间,每个房间都方方正正,均可放置双人床,并配备内置衣柜。主人房还配备阳台,衣柜则位于卧室的另一侧,浴室的旁边,即方便又让卧室更显得整洁、豪华。这个户型目前的价位从新币160万起,而一卧室78万起,二卧室100万起,欢迎电话垂询!
小结
我们为您介绍了8栋最畅销公寓,其中河景苑已销售一空。豪佳苑属东部价格最合理楼盘,升值潜力大,使用面积83平方米(893英尺)的三室一厅,$129万新元起。The Clement Canopy属国立大学旁的海景房,高端专业人士聚居地,使用面积92平方米(990平方尺)的3卧室从$138万新元起。海景轩是东海岸地区时隔多年再度推出的新海景公寓,使用面积95平方米(1023平方尺)的3卧室从$152万新元起。苏菲雅山庄距多美歌地铁转换站步行几分钟即可到达,属第9邮区的黄金地段,与其它邻近公寓相比,价位低,优势明显,升值潜力大;使用面积79平方米(850平方尺)的3卧室从$158万新元起。心乐轩是15年来武吉巴督第一个结合住宅和商场的大型综合发展项目,一个87平方米(936平方尺)的单元从$114万新元起。高文之星是高文地铁站旁的罕见商住综合项目,是李嘉诚旗下公司的又一个杰作,使用面积为89平方米(958平方尺)的3卧室单元从$152万新元起。而Park Place Residences At PLQ是少有的超大型综合项目,不但有住宅、商场,还有办公楼,使用面积为100平方米(1076平方尺)的3卧室单位从$160万新元起。
从大数据的角度看,这些畅销公寓之所以畅销,必定有其内在的优势,吸引众多买家。而现在正值房地产回春之季,谨慎分析,果断出手,是时候了。
聆听半小时讲解,带您从繁华步入经典
---资深经纪人吴洲推介
若您对以上楼盘或者其他新加坡任何房产感兴趣,请免费联系我们的特约金牌房产经纪人吴洲,常年专业买卖全岛任何产业,开发商直接销售代理,买房无经纪费,一个电话或微信的距离,数十个楼盘数千款房产任您挑,总有一款适合您,投资新加坡房产,首付最低仅$23万新币起。

关于作者: 吴洲
关于吴洲 ,任职于新加坡最大的国际性产业集团ERA担任高级营销总监,金牌房产经纪人(新加坡IEA房地产经纪协会2013/2014 年度金奖得主),他从业8年,秉承专业诚信,事无巨细的工匠精神从业理念,迄今为止,成交完的产业总市值以数亿新币计算,服务过数百位中高端客户投资新加坡产业,并获得客户满意好评,服务过的客户群体有新移民,企业家,艺人,教授学者和房地产开发商等,常年专业提供【新加坡任何公寓楼盘和商业地产以及地皮的买卖投资服务,买私宅无任何经纪费用】,如果您有任何新加坡产业需求,欢迎买家/卖家联系我们,常年买卖各类产业,我办事,您绝对放心。
联系吴洲:
新加坡:(0065)9672 8008
微信号:peterwu99 (或长按以下二维码图片自动添加我)

政府执照号:R009913B
完善自我,成就他人,如果您喜欢这篇文章,请转发给您需要的朋友。
相关阅读
01
买房必读篇
重磅:新加坡 “国土”扩张史
新加坡买房看风水七大原则,看透风水选对楼房
外国人在新加坡买房基础知识普及篇
新加坡房产八大金牌投资原则!
新加坡房产投资潜力分析解读
新加坡产权交易流程详解
如何找位靠谱的房产经纪人协助您置业狮城
一线河景公寓只要$59.3万起,留学生买房也可贷款
02
公寓楼盘介绍
豪宅只付15% 即可拎包入住,一年后再付余款
投资新加坡商业地产:商业地产投资优势汇总
公寓:全岛最便宜的一室一厅公寓来了
紧挨高级优质洋房,大使馆区,与富豪为邻...
东部公寓竣工在即,售价仅$68万新币起
即将竣工的名校附近“学区房”公寓楼盘大汇总
永久地契豪宅来了,首付$30万新币起
万万想不到,首付20万起,坐拥地铁旁公寓
波东巴西地铁公寓,楼上生活,楼下逛街!
永久地契,稀缺资源,两室一厅仅$88万起
巴西立海景公寓仅$69.7万起
宏茂桥公寓两室一厅加书房仅$96万起
“学区房”— 金文泰名校楼盘御品居介绍
裕廊湖—打造“西部滨海湾”
一个值得投资的好楼盘推荐-天木园
新公寓三卧室户型仅$91万Riverbank 介绍
湖畔地铁一线湖景公寓楼盘:丽湖景介绍
后港一线河景公寓新楼盘只要$55万起...
义顺公寓雅韵轩,两室一厅$70.5万起...
盛世名园-潜力楼盘推荐($68万起)
推荐阅读
买卖吧APP全面升级,今日正式上线!
「新加坡留学跳板」轻松转学英美澳新
新加坡微信群大集合-租房,买房,家政,物流,二手交易...
推广
新加坡圈房产专栏作者:吴洲

评论