万万没想到!仅需付5%即刻入住新加坡使馆区崭新现房公寓
美轮美奂 无比惊艳
享受为先 延期付款
---嘉御苑 (The Crest)璀璨献世
引领区域潮流的极品公寓
巅峰力作、彰显贵族品质
◆名家手笔,普利兹克建筑得主大师原创滨海风情建筑
◆黄金位置,身处使馆区高端地段
◆灵动设计,最高至6.3米的挑空房间重新定义高端loft生活概念
◆享受为先,特色延迟房款支付模式,仅需付5%即刻入住现房。
简
介
作为世界闻名的花园城市,很多人都会对新加坡的干净整洁和绿意盎然印象深刻,高度发达的绿化覆盖率打造了人与自然和谐而居的画面,绿色资产也成为代表新加坡旺盛生命力的符号之一。
身处以花园城市闻名的新加坡,嘉御苑(The Crest)自然不会辜负这座城市的盛世美颜,在国际知名建筑大师伊东丰雄精心设计与著名发展商永泰亚洲(Wing Tai Asia)的匠心锻造下,嘉御苑成为完美承袭新加坡城市特质又融入人性化居住理念的最佳结合体。

有一种生活,值得等待
有一种生活,来自花园国度;
澄净透明的空气里,
阳光穿过浓密的树叶,
洒照在飘满花香的千亩土地上。
漫步嘉御苑内,耳旁隐隐传来鸟儿的呢喃……
徜徉嘉御苑外,河边步道,平展绿茵如伞……
蜿蜒而又美丽的步道直通克拉码头,
如若意犹未尽,还可以奔向达滨海湾花园。
时时充盈活力、自由、亲善与和谐,
来自花园国度的原味生活,
总是如此轻易的让您爱上她---嘉御苑。
嘉御苑和谐地融入了周围的自然生态环境,从公园连道休闲漫步便可直达滨海湾,独具匠心的景观设计,为您的居家生活增添丰富色彩。清馨湖滨,绿意盎然翠林地带,曲径通幽勾勒出美轮美奂的园林景致,绝佳的环境结合先进完善的设施,为您谱奏成一篇经典的生活乐章,美丽居所在此呈现,美好生活由心绽放。

正统典范、文雅从容、庄重大方
举手投足之间虚怀若谷
典雅生活为主、黄金地段为辅
嘉御苑气质本为天成、
自此开始雍容华贵之美
使馆区的核心区位置,决定了生活的舒适度也决定了生活的层次和品质。嘉御苑地处的查理士太子湾(Prince Charles Crescent)毗邻优质洋房、各国使馆,是名副其实的新加坡顶级地段。
嘉御苑距离红山地铁站仅有500米,步行几分钟即可到达。嘉御苑邻近新加坡商业中心和乌节路,开车5分钟到达义安城、百丽宫、ION等乌节路大型商场以及伊丽莎白医院。
项目周边设施便利完善,从公寓旁的公园连道可步行至克拉码头和滨海湾花园。也可方便的到达汇聚国际精英人才的新加坡高科技研发中心纬壹科技城 (One North) 以及适合集休闲娱乐的圣淘沙岛。众多新加坡本地学校例如颜永成小学、彰德小学、女皇镇小学、拉丁马士小学、立化小学、颜永成中学、克信女中等、达善中学、女皇镇中学、红山中学、圣婴德兰中学以及国际学校(采士华国际学校、ISS国际学校)也在嘉御苑附近。

第一印象是人类普遍的主观性倾向。
--欧文•戈夫曼 ,美国社会理论家、心理学家
印象是一种倾向,
是否更倾向于风格的建筑?
衣着尚且不愿雷同,
城市建筑更应与众不同。
拒绝模糊现象,
建立鲜明视觉印象。
从建筑外立面开始,
创造一座具有强烈识别性的风格建筑。
嘉御苑,
让您一眼便能认出、
一次就会记住的永恒标志。
2013年普利兹克建筑奖得主的伊东丰雄(Toyo Ito)先生是当代最有影响力的建筑师之一。
在嘉御苑的外观设计中,他营造一个创新概念与周边景观相结合上的杰出形态,创造出了卓绝不凡的建筑。传承着他的个人风格,嘉御苑体现着对永恒性设计的崇尚、建筑与自然的完美结合、以及对绽放精彩生活的讴歌。
普利兹克奖,是凯悦基金会所赞助的针对建筑师颁布的世界级奖项。每年约有五百多名从事建筑设计工作的建筑师被提名,由来自世界各地的知名建筑师及学者组成评审团评选出一名个人或一个组合,以表彰其在建筑设计创作中所表现出的才智、洞察力和献身精神,以及其通过建筑艺术为人类及人工环境方面所作出的杰出贡献,被誉为“建筑学界的诺贝尔奖”。
嘉御苑,源于大自然的设计灵感。
大自然用其独有的方式为自然环境降温。当树木的绿叶在充足的阳光下产生光合作用的同时,树叶的蒸发作用也为其周围带来一丝凉爽沁人心脾。树叶也可以帮助调节风系、遮阳庇荫。这是运用于自然界的原理,亦是孕育构造嘉御苑的灵感源泉。

身心无界,
彰显生活至高境界。
6.3米层高超豪华户型,
革新loft概念,
享受自由无界生活。
为您量身定制,
尽可展现您对生活的无限想象。
在嘉御苑,
面积不只意味着大一些的生活空间,
更代表您对美妙生活的掌控,
对自由生活的热爱!
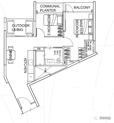
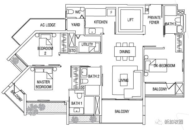
嘉御苑占地面积约23785平方米,地契99年。该项目整体项目由3栋23层高层绿茵楼阁,以及4栋5层小洋房水岸别苑组成,共469套精装修单位。户型包括165个一卧房单位、107个两卧房单位、110个三卧房单位、38个四卧房单位、10个五卧房单位、以及70个两到四卧房小洋房水岸别苑单位。
单位面积从57平方米到186平方米不等。伊东丰雄大师那充满艺术感的户型设计让每一套居所的格局都与众不同。其中有充满生活创意的休闲阁楼系列户型,内置的挑高空间可为您打造专属独特的生活品味;无比奢华的贵宾套间户型,不但保护私密的个人空间,也提升了多样化的投资潜力。

loft户型独具特色,平层户型同样惊艳。

嘉御苑中1卧室户型已经售罄,2 卧室单位743平方尺起(69平方米)。

3 卧室单位1033平方尺起(95平方米)。

4卧室单位1485平方尺起(137平方米)。

5卧室单位1841平方尺起(171平方米)。

精心规划、典雅尊贵
顶级社区配套设施,
迎合居家所需。
超大空中娱乐区
让您尽享别致生活,
融观景、娱乐、休闲、
运动等多功能于一体,
成就了您的典范生活。
水居别苑坐落于水景之上,隐于绿意之中,而绿茵阁楼则优雅矗立,享有城市壮阔景观,以及无遮拦的低密度优质洋房社区景观。

嘉御苑园艺景观设计带来与大自然亲密而独特的体验包括各种形态的泳池在内的优美水景横跨整个项目,中央环礁湖更是一片美好、宁静、祥和的广阔绿洲。在烧烤露台依水而餐,置身柳林,闪耀的光斑洒落肩头,在这片私密的露台为您提供了最完美的休闲氛围,感悟游走的时光和变换的世界。

丰富多彩的1楼露天平台休闲娱乐设施以及梦幻般空中休闲23层平面赏析:

从容、自信、高端、包容
这是嘉御苑赋予您的八字生活格言
您拥有的物质财富
完全能够支撑如此高品质的贵族生活
赞
时尚付款
嘉御苑推出时尚的延迟付款模式。您只需先付出5%,然后即可入住并享受上完美公寓生活,余款在12个月和24个月后分两次支付。嘉御苑最经典的两卧室户型为$179.8万新币起(88平方米),高品质户型等待尊贵的您来鉴赏。(具体支付模式见下图)


无论是商界鏖战的商业精英,还是饱读诗书的文人雅士,希冀在繁华与喧嚣的都市中寻求一方净土,或是一洼净水,陶冶您的情操,或是作为您人生征程上的一个港湾;这样的泊心、泊案、泊人生,只在嘉御苑!暂缓匆匆的人生脚步,轻放沸腾激扬的思绪,一杯清茶的芳香,一份亲情的关爱,在轻舞飞扬中去感受人生的真谛;这样的品园、品景、品天下,只在嘉御苑!
聆听半小时讲解,带您从繁华步入经典
---资深经纪人吴洲推介
若您对以上楼盘或者其他新加坡任何房产感兴趣,请免费联系我们的特约金牌房产经纪人吴洲,常年专业买卖全岛任何产业,开发商直接销售代理,买房无经纪费,一个电话或微信的距离,数十个楼盘数千款房产任您挑,总有一款适合您,投资新加坡房产,首付最低仅$23万新币起。

关于作者: 吴洲
关于吴洲 ,任职于新加坡最大的国际性产业集团ERA担任高级营销总监,金牌房产经纪人(新加坡IEA房地产经纪协会2013/2014 年度金奖得主),他从业8年,秉承专业诚信,事无巨细的工匠精神从业理念,迄今为止,成交完的产业总市值以数亿新币计算,服务过数百位中高端客户投资新加坡产业,并获得客户满意好评,服务过的客户群体有新移民,企业家,艺人,教授学者和房地产开发商等,常年专业提供【新加坡任何公寓楼盘和商业地产以及地皮的买卖投资服务,买私宅无任何经纪费用】,如果您有任何新加坡产业需求,欢迎买家/卖家联系我们,常年买卖各类产业,我办事,您绝对放心。
联系吴洲:
新加坡:(0065)9672 8008
微信号:peterwu99 (或长按以下二维码图片自动添加我)

政府执照号:R009913B
完善自我,成就他人,如果您喜欢这篇文章,请转发给您需要的朋友。
相关阅读
01
买房必读篇
重磅:新加坡 “国土”扩张史
新加坡买房看风水七大原则,看透风水选对楼房
外国人在新加坡买房基础知识普及篇
新加坡房产八大金牌投资原则!
新加坡房产投资潜力分析解读
新加坡产权交易流程详解
如何找位靠谱的房产经纪人协助您置业狮城
一线河景公寓只要$59.3万起,留学生买房也可贷款
02
公寓楼盘介绍
豪宅只付15% 即可拎包入住,一年后再付余款
投资新加坡商业地产:商业地产投资优势汇总
公寓:全岛最便宜的一室一厅公寓来了
紧挨高级优质洋房,大使馆区,与富豪为邻...
东部公寓竣工在即,售价仅$68万新币起
即将竣工的名校附近“学区房”公寓楼盘大汇总
永久地契豪宅来了,首付$30万新币起
万万想不到,首付20万起,坐拥地铁旁公寓
波东巴西地铁公寓,楼上生活,楼下逛街!
永久地契,稀缺资源,两室一厅仅$88万起
巴西立海景公寓仅$69.7万起
宏茂桥公寓两室一厅加书房仅$96万起
“学区房”— 金文泰名校楼盘御品居介绍
裕廊湖—打造“西部滨海湾”
一个值得投资的好楼盘推荐-天木园
新公寓三卧室户型仅$91万Riverbank 介绍
湖畔地铁一线湖景公寓楼盘:丽湖景介绍
后港一线河景公寓新楼盘只要$55万起...
义顺公寓雅韵轩,两室一厅$70.5万起...
盛世名园-潜力楼盘推荐($68万起)
推荐阅读
买卖吧APP全面升级,今日正式上线!
「新加坡留学跳板」轻松转学英美澳新
新加坡微信群大集合-租房,买房,家政,物流,二手交易...
推广
新加坡圈房产专栏作者:吴洲

评论