全岛$150万预算可选择的三室一厅一手公寓有哪些?
买房就找金牌经纪人吴洲,高效靠谱,最新科技定位数百个楼盘数万款房产任您挑,总有一款适合您。
根据新加坡贸工部公布的最新经济增长数据,在制造业这个经济大引擎的强劲驱使下,新加坡第三季国内生产总值(GDP)初步估计同比增长4.6%,增速为三年多来的最高。
作为新加坡经济态势的风向标,房地产市场扭转熊市的时机已经成熟。今年1月起,新加坡楼市就已经屡屡出现复苏迹象,随着3月政府管制的放松,无论是土地市场还是交易市场都日渐显现明朗态势,权威机构和业内专家纷纷预言新加坡房产最好的入手时机已经到来。
怎样合理的利用手头资金来享受新加坡房地产市场经济发展的红利呢?这里将为您详细汇总一下总价在$150万元左右的三室一厅潜力投资楼盘。
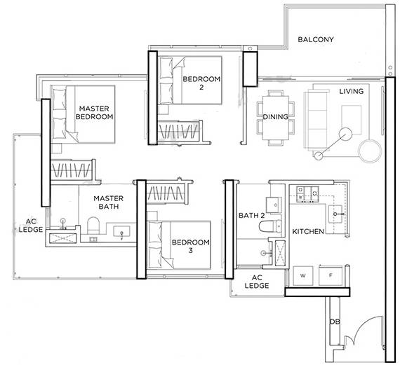
楼盘一:盛世名园 (Sims Urban Oasis)

盛世名园(Sims Urban Oasis)是位于沈氏通道和阿裕尼路交界处的99年地契项目。阿裕尼是新加坡最具历史韵味的街区之一,在日新月异的新加坡大都会发展中,却一直还存着极具特色旧日风情。
多年来,这里一直被誉为美食天堂,街边摆满榴莲的档铺,人生鼎沸的海鲜餐馆,或是简单的豆浆油条早餐,都令本地人及游客流连忘返。这所有的一切,与历史、文化和当地人的生活交织融合,孕育出了盛世名园独一无二的文化特色。盛世名园地段优越、四通八达,靠近滨海湾、中央商务区、阿裕尼地铁站等 ,令您无论工作上学、休闲出行都畅行无阻、享尽一切便利!

盛世名园由著名发展商国浩房地产(Guccoland)开发,占地23,900 平方米,共有1024个单位。作为新加坡少有的大型房产项目,盛世名园在其广阔的露天空间打造绿茵浓郁的公共空间,供人们在此感受自然精粹、享受户外活动。居民还可在19楼的空中花园休憩小酌,饱览周边摩天大楼绵延起伏的天际线,除此之外,小区设施非常齐全,有如健身房、游泳池、网球场、商铺、幼儿托管中心、等等。盛世名园包括一卧房至五卧房单位,主要以二卧房和三卧房单位为主。项目销售对象则涵盖不同类型买家,包括多代同堂家庭、年轻夫妇和单身贵族等。
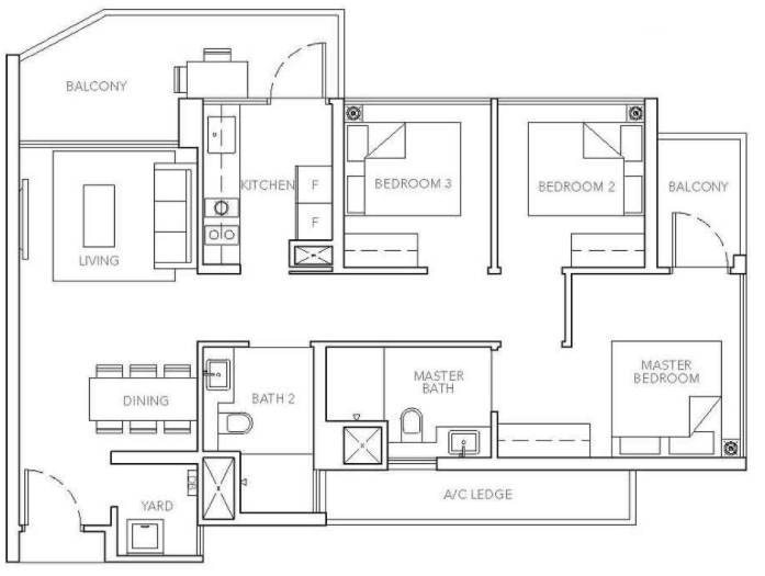
精品3卧室户型展示:在盛世名园的精品单位,每一天都将是人生的华丽篇章。沉浸在最精美的室内装潢中,奢华生活处处可鉴。

举目之间,每分设计、每寸细节皆如此迷人,令人神往!三室一厅价格$156.6万新币起,使用面积96平方米(1033 英尺)。

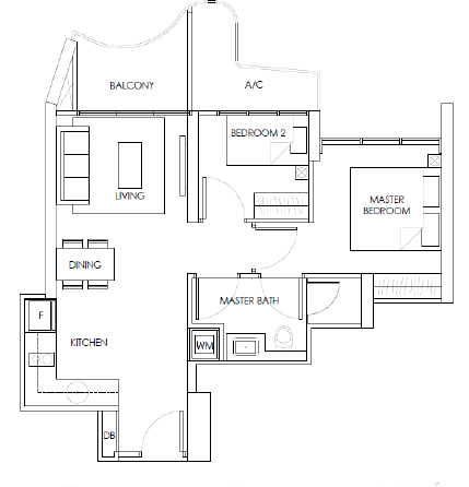
楼盘二:Gem Residences公寓

拥有99年地契的新私宅项目Gem Residences是第12邮区大巴窑七年来的首个新项目,位于大巴窑4巷和6巷交接处,是由一栋37层和另一栋38层的两座大厦组成的高端公寓,共578个单位。Gem Residences地点位置优越,周围生活设施齐全,步行8分钟即可到达南北线的布莱德站,从这里出发前往市区和乌节路一带只须15分钟。
作为最早发展的卫星镇之一,大巴窑靠近市区,各种生活设施非常齐全,有邻里商场、咖啡店、熟食中心、市镇中心、体育场、游泳池、公园和图书馆等等。Gem Residences 公寓提供大量的公寓服务和设施,24小时礼宾服务,免费医生门诊服务,天台的体育吧台,天台花园,宠物泳池,瑜伽和烹饪课程,满足不同家庭各种各样的需求。
此外,名校培群小学在公寓一公里范围,莱佛士女子学校的新校区选址在布莱德地铁站对面,2019年即将迁入。

Gem Residences采用无夕照设计,所有单位朝南或朝北,没夕照。朝北的较高层单位可看到麦里芝蓄水池、朝南的较高层单位则可以看到滨海湾金沙等市区建筑,视野绝佳。特色3居室户型推荐:最低价格$141.7万新币,使用面积88平方米(947平方英尺)。


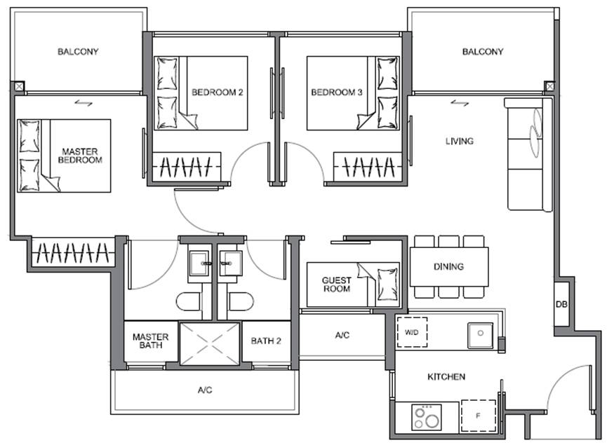
楼盘三:女皇碧苑(Queens Peak)

女皇碧苑公寓位于女皇镇(Queenstown)地铁站对面,步行仅需一分钟。女皇镇离中央金融区和乌节路都只有大概10分钟的车程,无论是公共交通还是驾车都很方便。
Queens Peak公寓租住均可,这一带的租客以在金融区、壹纬城,以及国大等科研院所工作的高端人士为主。女皇碧苑公寓包括2座44层的高楼,共有736个住宅单位,户型从最小40平米的1卧到186平米的5卧室,以及4个400多平米的拥有私人游泳池、按摩浴缸和屋顶露台的大型单层阁楼单位。除了住宅之外还包括一间商铺和可容纳100人的托儿所。

女皇碧苑公寓1至6楼为停车场,7楼和27楼为空中花园,为居民呈现优质生活空间,城市夜景一览无余,尽享都市繁华的宁静。50米泳池,托儿所和商店等77项公用设施分布于7个休闲区,尽可能为每户居民带来极致的生活享受。
住宅单位从第8层到第26层1卧2卧为主,包括少量3卧室单位,从第28层到第43层为3卧室到5卧室单位,可以说兼顾了投资和自住需求。女皇碧苑不仅小区设施多种多样,并且单位内部都是高端装修,室内设计合理和家具质量上乘,完备拎包入住的标准。精品3居室单位仅$142.3万新币起,室内面积88平方米(947英尺)。


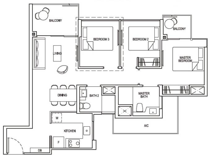
楼盘四: THE NAVIAN公寓

The Navian公寓坐落于惹兰友诺士178号,地皮总面积2421.10平方米,容积率为1.4。The Navian公寓是永久地契,由两座5层的现代设计公寓组成,共计48套居住单元,包括1个两卧单位、17个两居室加书房单位、8个两居室加客房单位和22个三居室加客房单位。
The Navian公寓身处集文化、体育、教育、商住、休闲景区等为一体的现代综合城区核心地,周边道路四通八达,大环境成熟优越,居住环境十分理想。

THE NAVIAN公寓设计采用古典北欧风格,设有标准的现代化泳池、水上乐园区、社会馆、烧烤馆、瑜伽馆、健身室等配套设施供业主享用。室内户型方面,THE NAVIAN公寓独具匠心,秉承北欧简约主义风格打造多款经典房型,这里给您推荐最具特点的3居室单位,价格仅$137万新币起,使用面积84平方米(904英尺)。


楼盘五:豪佳苑 (Grandeur Park Residences)

豪佳苑位于第16区的勿洛区,属于新加坡的东区。该项目的位置是在樟宜路上段和勿洛南3道的交界处,占地约24394平方米,容积率为2.1,属于99年地契。豪佳苑距离丹那美拉地铁转换站(Tanah Merah MRT)仅200米,步行2分钟可到达该地铁站。住户可以乘搭东西线直接到达政府大厦地铁站(City Hall MRT)和莱佛士坊地铁站 (Raffles Place MRT)。
住户只需搭乘1个地铁站往东方向就能在博览地铁站(Expo MRT)转搭滨海市区地铁线。这一区域是设施完善的私人住宅区,与多条高速公路相连接,前往市区及新加坡其他地区均十分便利。要到市区的乌节路和中央商业区也只需15到20分钟的车程。豪佳苑可连接到东海岸公园大道(ECP)和泛岛高速公路(PIE)可轻易通往其它主要道路。

豪佳苑设计新颖独特,健身与生活设施配套齐全,绿意盎然,环境清幽,设有韵律操水池、水中健身房和50米无边泳池、户外按摩浴池和网球场等,健身和养生设施之独特足以媲美高级健身中心:拥有三代同堂健身房(3G Gym)、全方位健身器材(Omnia Fitness System)、感官水疗室(Sensory Spa Jets)、蒸汽浴室(Steam Room)、冰疗角落(Ice Therapy Corner)、喜马拉雅盐室(Himalayan Salt Room)等。
运动过后,先到感官水疗室洗涤一番,再来个蒸汽浴,到冰疗角落享受以碎冰搓揉全身的舒适,或到喜马拉雅盐室享受静谧时刻,必能彻底放松身心,尽享贵族生活。


豪佳苑包括2座15层高、3座14层高和1座14/15层高的建筑,共有720个私宅单位、2间商铺以及1间托儿中心。从一卧房至五卧房不等,私宅单位面积介于39至135平方米。其中最具特色的为3居室单位,价格只用$129万起,使用面积83平方米(893英尺)。

楼盘六: Sturdee Residences公寓

Sturdee Residences 公寓位于新加坡第8邮区(中央区)的史德蒂路 (Sturdee Road) 的私宅项目,99年地契,由2栋30层高的高档大厦组成。Sturdee Residences 距离花拉公园地铁站仅400米,只需几分钟步行就能到达地铁站。
Sturdee Residences地理位置优越,紧靠中央商业区,附近有许多热闹的餐饮和娱乐场所,属于新崛起的时尚聚集区。这里拥有多元化的零售业者,如城市广场(City Square Mall)和慕斯达法购物中心(Mustafa Centre)。城市广场就在花拉公园地铁站旁,该商场有琳琅满目和时尚的商店、餐厅、食阁、超市、电影院等。

Sturdee Residences公寓单位设计简约时尚,除了基本装置,如厨房壁橱、柜台、灶头与冰箱,整间房子几乎是让买家自己发挥想象去布置,渲染自己独特的风格。
浴室设计简洁明快,采用浅色的地砖和墙砖,洗澡的地方用玻璃墙隔开,配上一面镜子和白色长方形的洗手盆,让浴室整体看上去干净整洁。项目共有305个单位,单位种类有一到四卧房式单位,以及最高两层楼的八个顶层单位。其中3居室单位只有$152.4万新币起,使用面积88平方米(947平方英尺)。


楼盘七: 森涛苑 (Forest Woods)

拥有99年地契的森涛苑(Forest Woods)位于新加坡第 19 区 (东北区)实龙岗路上段、罗弄榴梿和巴耶利峇路上段之间的新私宅项目,步行5分钟即可到达实龙岗地铁站,整个项目以“森林公寓”为设计概念 ,除了与周边环境相融合之外,建筑内还特别设计了自然区、植物区等,碧水瀑布飞流直下,生态花园景致恬雅,造就静谧安宁生活。
除了标准配置的停车场、健身房、游泳池、安保之外,森涛苑还针对不同年龄层次的住户需求,专门设立了儿童戏水区、探险区、会所、水区等区域,提供滑行索道、3G健身、林中Spa、瑜伽草坪等服务,全方位照顾到您及家人的需求。另外值得特别注意的还有别具一格的豆荚屋,感官花园豆荚屋和休闲豆荚屋给住户提供感官、娱乐的极致体验,大人和孩子都可在此找到放松自我的最佳方式。
享有宁静的环境并不意味着与世隔绝,森涛苑附近交通便利,步行5分钟即可到达实龙岗地铁站,周边大型商场、百货超市、医院、电影院、图书馆等应有尽有。大型商场NEX步行五分钟即可到达,在公寓附近的高文城、实龙岗和忠忠(Chomp Chomp)熟食中心能找到很多街头小吃和新加坡本土美食。

森涛苑包括2栋16层高的优质大厦,共有519个单位,包括69个一卧加书房单位、38个两卧房单位、76个两卧房加一书房单位、192个三卧房单位、53个四卧房单位以及3个五卧房阁楼单位。其中特色单位为3卧房单位,该单位布局合理,动静分明,房间方正,无任何空间浪费,价格仅$135万新币起,使用面积85平方米(915平方英尺)。


楼盘八:高文之星(Stars of kovan)

高文之星(Stars of kovan)是香港首富李嘉诚旗下的长江实业在新加坡发展的第八个私宅项目,也是该公司在本地首个住宅兼商业的综合项目,依托其的雄厚实力以及一贯的高端品质,高文之星已然成为新加坡东北部最闪亮的一颗新明星.
该项目坐拥独一无二的黄金位置,地处实龙岗路上段(Upper Serangoon Road)与淡滨尼路(Tampines Road)交汇处,步行至高文地铁站(Kovan MRT)仅2分钟。公共交通便利,两条主干道上都设有出租车站及公交车站,多个经行公交班次可通达全岛各个重要商业中心。
高文之星周围拥有多个成熟的私宅社区,主次干道两侧绿树成荫,周边配套与社区服务丰富便利,既有贩售经典本地餐饮的传统店屋,也有诸如心邻坊(Heartland Mall)、NEX及后港坊(Hougang Mall)这类的购物中心与之毗邻。在提倡环保健康生活的当下,临近的高文运动中心(Kovan Sports Centre)、后港运动中心(HougangSports Centre)、盛港河滨公园(Sengkang Riverside Park)、榜鹅高尔夫球场(Punggol Golf Range)、榜鹅水道公园( Punggol Waterway park)等场馆公园提供了运动健身与休闲社交的最佳场所。

高文之星是一个住宅加零售商铺的99年地契综合型项目,包括了一层46个零售商铺,4栋17层大厦共390个公寓单位以及5个位于地面一层的分层地契共管排屋(Strata Terrace Units)单位。
4栋大厦依地形蜿蜒展开,最大限度地使所有住宅单位都能拥有开阔完整的视野,令住户足不出户,尽享繁华都市的美景。390个公寓单位的住宅容量,保证了住宅空间尺度的舒适实用,同时也为住户带来高品质的私家体验。建筑外立面设计走英伦路线,流线型连续屋顶独树一帜,结合立面横向线条与裙房立面波动起伏的造型,将平面与立面完美结合,相映成辉。
面向淡滨尼路的一侧,每三层设置一个空中花园,在以“绿色环保”为理念的精心设计下,更是将新加坡最为标志实用美观的空中绿化凸显出来。不仅为住户提供健康绿色的居住环境,也为城市天际增加了一抹生机勃勃的绿色。

高文之星公寓单位包括了90个一居室户型、240个两居室户型和60个三居室户型。各户型空间规整,功能紧凑,交通流线精简顺畅,每个空间都能得到高效利用,其中最经典的3居室户型仅$155万新币起,套内面积为89平方米(958英尺)。


自从今年3月份起,新加坡房地产市场开始从下跌到稳步上扬,过去的半年新加坡本土开发商和外来财团在新加坡激烈抢地,地皮价格一山更比一山高,展望2018年,新加坡房地产市场进入牛市的态势已逐步形成。在当下行情之中,以上所述的性价比突出的优质单位势必会像流星一样划过星空,一抢而空。机不可失,您还犹豫吗?
聆听半小时讲解,带您从繁华步入经典
---资深经纪人吴洲推介
若您对以上楼盘或者其他新加坡任何房产感兴趣,请免费联系我们的特约金牌房产经纪人吴洲,常年专业买卖全岛任何产业,开发商直接销售代理,买房无经纪费,一个电话或微信的距离,数十个楼盘数千款房产任您挑,总有一款适合您,投资新加坡房产,首付最低仅$23万新币起。

关于作者: 吴洲
关于吴洲 ,任职于新加坡最大的国际性产业集团ERA担任高级营销总监,金牌房产经纪人(新加坡IEA房地产经纪协会2013/2014 年度金奖得主),他从业8年,秉承专业诚信,事无巨细的工匠精神从业理念,迄今为止,成交完的产业总市值以数亿新币计算,服务过数百位中高端客户投资新加坡产业,并获得客户满意好评,服务过的客户群体有新移民,企业家,艺人,教授学者和房地产开发商等,常年专业提供【新加坡任何公寓楼盘和商业地产以及地皮的买卖投资服务,买私宅无任何经纪费用】,如果您有任何新加坡产业需求,欢迎买家/卖家联系我们,常年买卖各类产业,我办事,您绝对放心。
联系吴洲:
新加坡:(0065)9672 8008
微信号:peterwu99 (或长按以下二维码图片自动添加我)

政府执照号:R009913B
完善自我,成就他人,如果您喜欢这篇文章,请转发给您需要的朋友。
相关阅读
01
买房必读篇
重磅:新加坡 “国土”扩张史
新加坡买房看风水七大原则,看透风水选对楼房
外国人在新加坡买房基础知识普及篇
新加坡房产八大金牌投资原则!
新加坡房产投资潜力分析解读
新加坡产权交易流程详解
如何找位靠谱的房产经纪人协助您置业狮城
一线河景公寓只要$59.3万起,留学生买房也可贷款
02
公寓楼盘介绍
豪宅只付15% 即可拎包入住,一年后再付余款
投资新加坡商业地产:商业地产投资优势汇总
公寓:全岛最便宜的一室一厅公寓来了
紧挨高级优质洋房,大使馆区,与富豪为邻...
东部公寓竣工在即,售价仅$68万新币起
即将竣工的名校附近“学区房”公寓楼盘大汇总
永久地契豪宅来了,首付$30万新币起
万万想不到,首付20万起,坐拥地铁旁公寓
波东巴西地铁公寓,楼上生活,楼下逛街!
永久地契,稀缺资源,两室一厅仅$88万起
巴西立海景公寓仅$69.7万起
宏茂桥公寓两室一厅加书房仅$96万起
“学区房”— 金文泰名校楼盘御品居介绍
裕廊湖—打造“西部滨海湾”
一个值得投资的好楼盘推荐-天木园
新公寓三卧室户型仅$91万Riverbank 介绍
湖畔地铁一线湖景公寓楼盘:丽湖景介绍
后港一线河景公寓新楼盘只要$55万起...
义顺公寓雅韵轩,两室一厅$70.5万起...
盛世名园-潜力楼盘推荐($68万起)
推荐阅读
想与你一同从"新"出发,去拥抱世界。
如果当初薛之谦遇到了它,这一切悲剧都可以避免......
推广
新加坡圈房产专栏作者:吴洲

评论