置业:地铁口,楼下商场楼上住宅竣工在即
一通电话的距离,数十个楼盘数千款房产任您挑,总有一款适合您,投资新加坡房产,首付最低仅$30万新币起。
坐拥义顺新地标,
乐享北部最大商场,
足不出户体验消费快感!
吴洲为您多角度全方位
解析北园公寓(North Park Residences)火爆销售的潜在因素
市场因素:迎合消费者需求,把握市场新契机
在新加坡房地产市场上,融合商场和住宅的综合发展项目近年来有增加的趋势,过去10年内大约18个大型项目落成或部分完工,仅在过去三年里就有13个。通过长期分析房市场买家群体的消费走向,笔者认为:买家对综合发展项目的购买热情仍在持续上涨,这主要与本地人的生活习惯改变有密切关系。
近些年来,特别是2010年以后,人们非常希望能享有直达商场等设施的便利,为了迎合现在的需求和新的生活方式,综合发展项目也在日益增加。并且对于投资者而言,综合发展项目对租户来说比一般公寓更具吸引力。同时租户也很看重综合发展项目带来的便利,可能愿意付出更高租金。
吴洲先生研究统计表明:由于综合发展项目大多位置优越,加上购物方便,一手买家住宅单位的转售价比一般私宅项目高出20%至25%。近年来,多个综合发展项目(mixed-use development)陆续登场,义顺地铁站旁的北园公寓(North Park Residences)就是其中最经典的综合发展项目。

楼盘自身因素:坐拥四大优势,占尽天时地利人和。
坐落于义顺区中心,北园公寓(North Park Residences)是一个大型综合项目,周围包括崭新的冷气巴士转换站、新扩建购物商场纳福城(Northpoint City)、民众俱乐部、义顺镇广场(Town Plaza),并通过地面与地下通道连接义顺地铁站。
北园公寓拥有三大优势:作为义顺的地标,它和综合交通转换站之间的无间隔连接,是人们所向往的理想时尚生活方式典范。该广场将提供一系列便利设施,比如超市、大型食阁、托儿中心、公共图书馆、银行、零售商店,以及多姿多彩的购物及餐饮中心。
除了可直达巴士转换站和义顺地铁站之外,公寓也靠近嘉华(GV Yishun)影城、义顺镇公园,而邱德拔医院(Khoo Teck Puat Hospital)及义顺社区医院(Yishun Community Hospital,YCH)也都近在咫尺。住户将能享用一系列徒步可达、老少皆宜的便利设施。义顺地铁站的南北线可直接通往乌节路和莱佛士坊地铁站(Raffles Place MRT Station,NS26/EW14),您无须转换其他地铁线。对于驾车人士,到达乌节路只需17分钟车程,到达中央商业区(CBD)也只需大约20分钟车程。北园公寓靠近实里达高速公路(SLE)可连接到中央高速公路(CTE)和淡滨尼高速公路(TPE)可轻易到达岛上的其他地点。
北园公寓共有920个单位,从单间公寓至5卧室公寓一应俱全,足以满足单身贵族到四世同堂家庭的不同需求,无论投资或自住,均为您最理想的明智选择。
北园公寓拥有的第四大优势:风水极佳。
自古以来有句名言叫做“人杰地灵”,正所谓一方好水土,养育一方好人才,个人生存环境,影响其一生的健康与发展。家居风水的地理位置,与个人的运势息息相关,住宅的好坏,直接影响一个家庭的运势发展。周易风水讲求“读象”,而读象法又包含“直读”和“曲读”两门重要技法。其中“直读”便于您理解,这里就采用直读法带您分析北园公寓(North Park Residences)的风水运势。下面这张地图您可能感觉平淡无奇。

然而这里为您简单勾勒一下之后,您就会大感不同。

用周易风水读象法的直读角度看,义顺这里为“富贵梅花”,而且“富贵梅花”的枝节都很分明,加上又有实里达蓄水池相伴而行,故为风水吉利之象,气势不凡,自然福荫了这里的居民。这里不仅有“富贵梅花”,而是梅兰竹菊俱全,还有喜鹊相伴(蓝色标识),竹子就在三巴旺一带(绿色标识),梅兰竹菊引来喜鹊,义顺的喜鹊正落在胡姬乡村俱乐部(Orchid Country Club),是个供人娱乐嬉戏的地方。
北园公寓(North Park Residences)正处于富贵梅花中心点,处于风水格局 “四秀之格”中的“雅格”,是个名副其实聚财招福之地。北园公寓可以通过旺财旺运的“雅格”来营造出一种富贵催人的气场,令您的家居充满生机。
设计因素:时尚设计、品质工程
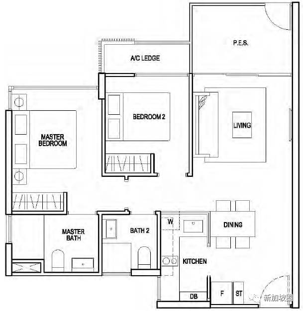
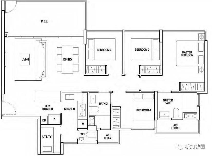
北园公寓(North Park Residences)位于义顺中心1号(Yishun Central 1),是由新加坡知名开发商星狮地产(Frasers Centrepoint)开发的拥有99年地契的高档住宅项目,占地面积约为41085平方公尺,2018年竣工。北园公寓建有12栋公寓大楼,总共920个单位,其中包括100个共管公寓单位、90个一卧房单位、350个两卧房单位、310个三卧房单位、50个四卧房单位、以及20个五卧房单位。单位面积介于40平方米至133平方米。北园公寓无论是楼体的气质、风格、线条、用料及装修都精心讲究,追求完美的现代化居住生活。设计师在每一个细节都考虑周详,真真正正地站在您的角度去审视居室。鉴于楼市火爆,95%的单位已经售罄,现仅有预留5%的限量版精品户型供您选择:
1.经典两居室户型,面积61平方米,657平方尺,户型方正,面积适中。客厅超大开间,直接与PES相连,使客厅的空间感和光感都得到了增强。价格94.11万起。

2.豪华两居室型,面积68平方米,732平方尺,布局舒展,尺度宽松,动静分区,双卫生间设计,十分适宜居住,价格101.56万起。

3.经典3居室+1普通居室型,面积98平方米,1055平方尺。房间布局合理实用性强,经典双PES设计,让您足不出户享受私人花园的静谧绿色空间,价格135.24万起。

4.豪华3居室+1普通居室型,面积107平方米,1152平方尺。大气的主人房,尽享的空间感,引入新的居住理念,入户花园,尽显尊贵。价格142.6万起。

5.豪华4居室型,面积116平方米,1248平方尺。经典设计,四居室三卫生间两方厅加上一个多功能室(utility),动静区合理分离,干湿区厨房有效分开,几乎完美的户型,价格158.7万起。

北园公寓(North Park Residences)不仅户型精美,园区配套设施同样独具匠心。北园公寓秉承“和谐自然”的设计理念,竭力为您营造出返璞归真的居家环境,让您从“建筑森林回归生态自然”,感受大自然充满生命的光辉。
消闲娱乐设施就设于四楼消闲娱乐平台,面积相当于三个足球场。园林及水景庭院辽阔,共划分为三大花园:瀑布园、喷水园和泉水园,您可随意在公寓庭院内的园林散心跑步,或到标准的50米泳池内去舒展身躯。此外,其中数座公寓大楼之间还建有空中花园相互衔接,为您提供小型花园以放松身心或静坐读书。


融三种因素、集四大优势,北园公寓(North Park Residences)这个地处北海岸创意走廊、横跨于两大区域中心和实里达航空园之间的地标楼盘注定受世人瞩目。作为综合发展项目的组成元素,北园公寓具备多种其他公寓无法比拟的独特优势。更可贵的是,在新加坡市区重建局2016年总蓝图中,一个发展总蓝图的焦点便是“北部走廊”(The North Coast Corridor),而北园公寓所在的义顺区正处于北部走廊的核心地带,同时这里又具备发展未来基建的卓越基础,因此可以说北园公寓这里绝对是潜力无限的黄金地带,未来地价、房价势必一路攀升。
无以伦比的潜力地带、完美独特的建筑设计、无缝连接的便捷配套、理想时尚的生活方式,北园公寓(North Park Residences)为您呈献上综合发展项目的所有非凡特色,等待独具慧眼的您前来拥有及享受这一切。
聆听半小时讲解,带您从繁华步入经典
---资深经纪人吴洲推介
若您对以上楼盘或者其他新加坡任何房产感兴趣,请免费联系我们的特约金牌房产经纪人吴洲,常年专业买卖全岛任何产业,开发商直接销售代理,买房无经纪费,一个电话或微信的距离,数十个楼盘数千款房产任您挑,总有一款适合您,投资新加坡房产,首付最低仅$23万新币起。

关于作者: 吴洲
关于吴洲 ,任职于新加坡最大的国际性产业集团ERA担任高级营销总监,金牌房产经纪人(新加坡IEA房地产经纪协会2013/2014 年度金奖得主),他从业7年,秉承专业诚信,事无巨细的工匠精神从业理念,迄今为止,成交完的产业总市值以数亿新币计算,服务过数百位中高端客户投资新加坡产业,并获得客户满意好评,服务过的客户群体有新移民,企业家,艺人,教授学者和房地产开发商等,常年专业提供【新加坡任何公寓楼盘和商业地产以及地皮的买卖投资服务,买私宅无任何经纪费用】,如果您有任何新加坡产业需求,欢迎买家/卖家联系我们,常年买卖各类产业,我办事,您绝对放心。
联系吴洲:
新加坡:(0065)9672 8008
微信号:peterwu99 (或长按以下二维码图片自动添加我)
政府执照号:R009913B
完善自我,成就他人,如果您喜欢这篇文章,请转发给您需要的朋友。
相关阅读
01
买房必读篇
重磅:新加坡 “国土”扩张史
新加坡买房看风水七大原则,看透风水选对楼房
外国人在新加坡买房基础知识普及篇
新加坡房产八大金牌投资原则!
新加坡房产投资潜力分析解读
新加坡产权交易流程详解
如何找位靠谱的房产经纪人协助您置业狮城
一线河景公寓只要$59.3万起,留学生买房也可贷款
02
公寓楼盘介绍
豪宅只付15% 即可拎包入住,一年后再付余款
投资新加坡商业地产:商业地产投资优势汇总
公寓:全岛最便宜的一室一厅公寓来了
紧挨高级优质洋房,大使馆区,与富豪为邻...
东部公寓竣工在即,售价仅$68万新币起
即将竣工的名校附近“学区房”公寓楼盘大汇总
永久地契豪宅来了,首付$30万新币起
万万想不到,首付20万起,坐拥地铁旁公寓
波东巴西地铁公寓,楼上生活,楼下逛街!
永久地契,稀缺资源,两室一厅仅$88万起
巴西立海景公寓仅$69.7万起
宏茂桥公寓两室一厅加书房仅$96万起
“学区房”— 金文泰名校楼盘御品居介绍
裕廊湖—打造“西部滨海湾”
一个值得投资的好楼盘推荐-天木园
新公寓三卧室户型仅$91万Riverbank 介绍
湖畔地铁一线湖景公寓楼盘:丽湖景介绍
后港一线河景公寓新楼盘只要$55万起...
义顺公寓雅韵轩,两室一厅$70.5万起...
盛世名园-潜力楼盘推荐($68万起)
评论