100万美金在全球各地都可以买多大的房子?

9月28号,瑞银发布了一个
非常有用的报告:

换句话说,这个报告告诉你:
全球哪个城市的房子卖贵了!
可能会跌哦

在瑞银关注的20个城市中,
泡沫最多的城市是多伦多!
(下图按泡沫风险程度排名)

(数据来源:UBS)
红色球表示泡沫危险;
黄色球表示房价过高;
绿色球表示房价合理。
灰色球表示房价过低。
球越大表示数值越大
由此看出,泡沫最大的城市分别为:
加拿大多伦多、瑞典斯德哥尔摩、德国慕尼黑、加拿大温哥华、澳大利亚悉尼、英国伦敦、中国香港和荷兰阿姆斯特丹。
值得庆幸的是,
椰子所在的地方:新加坡新加坡
(格式要和上文统一,地方小没办法)
房价居然非常合理!
不过讲真,合理不合理和椰子都没什么关系
因为

另外美国波士顿和纽约,以及意大利米兰
都在合理价位
还没完。。。Knight Frank,
地产咨询公司2017年发布了报告:
给你1百万美金
在全世界各城市主要地区
可以买多大的房子?


注意!
上海和新加坡房价在一个水平哦
南非的开普敦居然可以买到209平米
我想去非洲!

瑞银也做了另外一个调查:
上班族工作多少年可以
在市中心买一套60平米的房子?
最长前五名城市为:

新加坡在2007年的时候,需要工作15年
而在2017年,降到了11年
是前五名中,唯一一个年份下降的城市
但是,香港2017年居然需要20年!!

想想有个在国内5线城市开饭店的朋友
1个月收入在当地买套房是什么样的对比?

分析了这么多,下面来点干货
在世界上房价合理的新加坡,
都有哪些项目可以买呢?
Alex Residences(屹岭豪庭)

项目离红山地铁260米,只需5分钟!步行就可到红山地铁站,打造一栋40层高的,总共429个单位,由新加坡本地开发商SingLand开发。
现在已经卖出95%单位,只剩最后20多套单位,都是高楼单位,可以享受漂亮景观。项目即将在2017年年底完工,如果您现在买的话,等2个月就可以领取钥匙准备入住了。

现在发展商在交房前最后一次的促销活动中,
买房送装修活动中,活动只到9月29号为止
注意只剩下20多套
2房价格136.2万新币起
(已经全部Sold out)
3房价格176.8万新币起
(以看房时单位为准)
红山地区属于新加坡的中南部腹地,好地段,好地段,好地段,重要事情必须说三遍。靠近市中心乌节路Orchard,大使馆区,中央商业区CBD, 交通四通八达, 是新加坡当地人青睐的地段之一.
开车到乌节路约10分钟,往港湾一带大型商场怡丰城/Vivo City约10分钟,如果想携带家人周末去圣淘沙游玩的话,您只需15分钟车程。往东边到滨海湾,牛车水不到10分钟就可,往西边到科学园商业区,新加坡国立大学NUS.

靠近红山地铁的大牌85号有湿巴刹(像国内的菜市场),还有咖啡店,杂货店等,包括新加坡当地美食摊,中国美食摊位 等,从红山地铁到牛车水美食街吃一顿地道的中国美食,或者约朋友去克拉码头喝一杯,搭乘地铁都只需约10分钟。

设计师采用独特的高楼设计,使得每个单位都有不同朝向,享受漂亮的景观,朝北的景观是无阻挡的优质洋房区(低于3层),朝南是漂亮圣淘沙海景,朝东可看滨海湾美景,朝西是波那维斯达商业区。

来聊聊项目的配套公寓设施:
第1层是住这里的业主每天出入的区域,设计了迎宾大厅,2楼健身房区,游泳池,家庭泳池,烧烤区BBQ,休息室,儿童游乐场所等

第14层属于休闲区域,休息角,象棋花园,绿色草地区,花园,空中吧台

第24层也属于休闲区域,可以坐这里聊天,忙碌一天工作后来这里放松放松,设计了聚餐庭院,空中庭院,小草坪,吧台,饮茶角等休闲配套设施

顶楼为第40层,采用像滨海湾金沙泳池“无边泳池”设计,小金沙游泳池,SPA池,空中泳池,天际吧台,聚会吧台,多功能活动室,更衣室,享受360度无敌美景

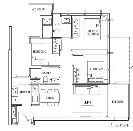
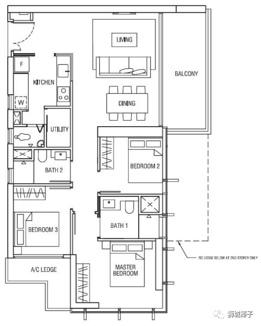
户型图:
三室一厅户型,面积为82~97平方米
下图为84和86平方米的三室户型


三室一厅户型,面积大点三房97平方米
有带保姆房/储藏室

苏菲雅山庄
位于新加坡最好的第九邮区-多美歌的高档公寓
苏菲雅山庄,名字都那么高大上!
推荐理由
新加坡市场上性价比高的市区公寓
比邻总统府
1房双钥匙只需108万起,促销活动中

楼盘介绍
最靠近地铁:多美歌地铁
地契:99年
总共单位:493 套
土地面积:23770 平米
(在市区算占地面积大的)
楼层:12栋4-7层的低楼层建筑
参考折扣后价格
(具体以看房时为标准,新币为单位)
1房+书房 570平方英尺
价格112.7万起
2房(小面积)592平方英尺
价格118.2万起
2房(大面积+双钥匙)700平方英尺
价格138万起
3房基本型 958平方英尺
价格为186.7万起
3房豪华型 1313平方英尺
价格266万起
苏菲雅山庄位于黄金地段,并且富有浓厚的历史底蕴,新公寓和历史保留建筑融为一体。比邻总统府,项目虽地处市区,但由于在苏菲亚小山顶上,真正做到“闹中取静”,和乌节路购物中心,学校林立的城市繁华只有数步的距离。
下面先来聊聊项目的地点,周围配套设施
请参考下图,项目的边上就是知名的商场Singapura Plaza,附近有新加坡总统府,国家博物馆,新加坡管理大学,福康宁公园等

由凯德持有的Singapura Plaza商场前两年才整体重新装修翻新过,里面有Cold Storage大型超市,餐馆林立,土司工坊,翡翠小厨,日本餐Ichiban等,冰淇淋连锁店llaollao等,喜欢购物的朋友好去处!
新加坡国家博物馆和福康宁公园都在附近,可以周末携小孩去参观国家博物馆,学习历史等.

福康宁公园这个具有浓厚历史底蕴的市区中央公园,每年都会承办大量的露天活动

靠近新加坡管理大学-新加坡第三所综合性大学,新加坡管理大学的商学院在全球排名靠前

项目平面设计图,全公寓设施,设施包括保安室,会所,烧烤,游泳池,健身房,散步跑道,小孩玩乐场所,健身房,探险场地,小孩游泳池等.

50米游泳池

公寓居然有“餐馆”,而且设计得这么有个性

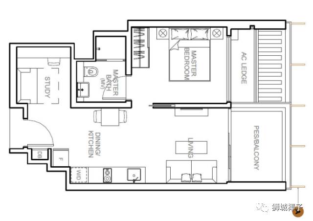
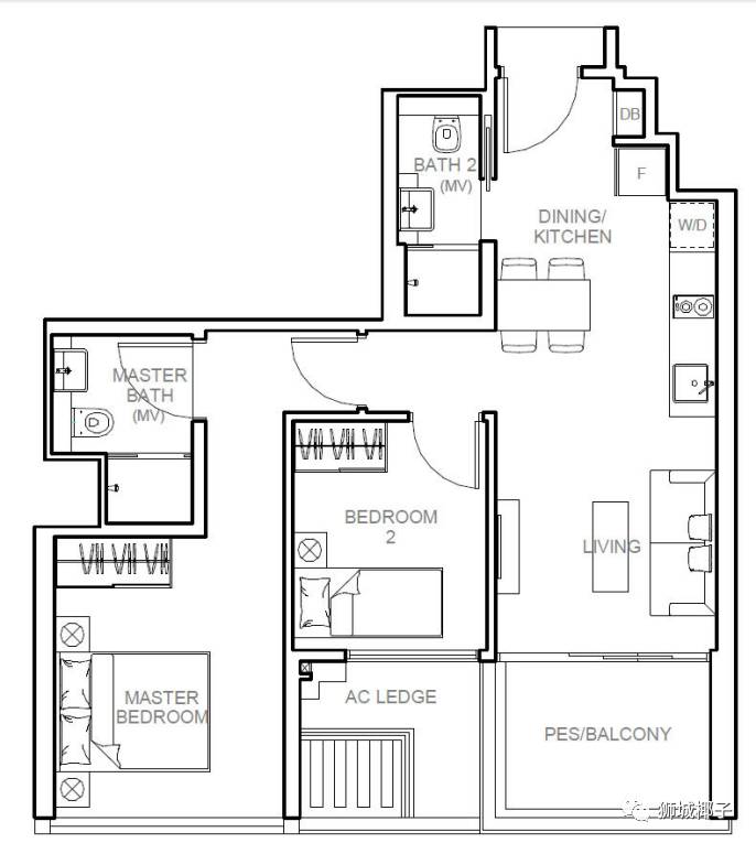
户型图和价格介绍:
1室+书房+客厅的户型
面积53平方米/570平方米
价格112.7万起

2室双钥匙户型
65平方米/700平方英尺
价格138万起

3房基本型,958平方英尺,适合家庭自住或者出租,房子户型实用性强

样板房:


若您对新加坡任何房产感兴趣,请免费咨询我们的特约房产经纪人张琼/Linda,开发商直接代理销售团队,买公寓无任何中介费用,协助客户办理买房银行贷款,买房产业托管一条龙服务。
张琼(Linda),新加坡最大房产经纪公司Huttons市场部高级董事,公司代理全岛各地项目,拥有丰富的房产行业经验,已经加入热爱的房地产行业6年多.全心全意为客户考虑,以客户利益为出发点,诚信待人,服务过包括新移民,企业家,商人等,广泛获得客户好评。不跟买家收取中介费,专车接送看房,公司代理全岛各地项目。一个电话过来就了解全岛各地段的项目,总有一款适合您!
如果您喜欢这边文章,请分享在你的朋友圈或转发您需要的朋友,谢谢!
微信号:zhangqiong046456 电话:93397258
协助您办理银行贷款(外国人可贷款),房屋推荐,律师咨询等,值得客户信赖的房屋经纪人。总以专业的眼光推荐适合客户需求的房屋项目,始终客户优先.
欢迎需要买房或者卖房的朋友添加我的微信号(扫描以下二维码)


相关阅读
在新加坡买房,继续等待还是现在入场?
新加坡的高档公寓到底长什么样?
新加坡买房后穷哭的人们,翻身的日子到了!大摩预测:2018年底,新加坡房价将增长10%!
推 荐 阅 读
极简新加坡史 | 毕业季必看 | 新加坡房价
新加坡居然这么大 | 新加坡23个区攻略 | 新加坡第一家庭决裂
点咖啡必备技能 | 租房别踩这些雷 | 装甲车被扣之后。。。
新加坡生活到底有多贵 | 揭秘芽笼红灯区 | 移民难不难
让人懵逼的新加坡华语 | 公民/PR/外籍的区别
新加坡就医指南 | 周末去哪儿 | 详扒各大公司工资水平
为什么新加坡人不爱生娃 | 新加坡银行卡哪家强
超级魔性的Singlish | CPF深度解析 | 又双叒叕偶遇明星
离开新加坡过得如何 | 装逼指南 | 新加坡VS国内生活
有多少钱才能过上有房有车有娃有女佣的生活
富豪都爱新加坡 | 罚款之国 | 一带一路与新加坡
新加坡就是个P | 新加坡单身狗VS有对象
新加坡教育体系全解析 | 组屋or公寓 | 买房之前必看
评论