独一无二的高档海滨公寓,著名建筑大师手笔,绝对值得有品位的您拥有!

项目名:珊瑚景
土地面积:多达39033平方米 (占地面积大)
地契:99年
最近地铁:港湾地铁/Harborfront MRT
楼层:11栋5-10层
总单位:只有366 套
停车位:418个
预计竣工日期:现在已交房,直接拎包入住
参考价格:2房价格189万起,3房价格232万起,4房价格648万起,顶楼价格880万起(以看房时价格为准,价格为以新币为单位)
滨水而居一直是人们首选的居住环境。世界上的主要金融城市的豪宅如香港,曼哈顿、伦敦、纽约、以及上海都是依水而建,并逐渐发展而繁荣起来。在花园城市新加坡,其最初的聚居地也是坐落在新加坡河畔发展而成。
亲水住宅已成为全世界的一个潮流,对于追求高生活品质的购房者来说,这也是一种令人耳目一新的生活方式。开阔的景观以及滨水所带来的舒适平静,让城市人从急促而忙碌的城市生活当中解脱出来。
作为新加坡房地产巨鳄吉宝置地的标志性海滨公寓项目,吉宝湾珊瑚景不但拥有动人海景,而且完全地与大海融为一体,豪华的游艇会所和美轮美奂的水岸与公寓相连。
吉宝湾珊瑚景再次邀请世界级著名建筑设计师丹尼尔.里伯斯(参考下面图片)金亲自操刀设计。这也是继吉宝湾映水苑后,吉宝与丹尼尔·里伯斯金之间的又一王牌设计作品,彰显他对现代化豪华亲水生活的憧憬和向往.

1.先来介绍下项目的地点吧,从项目只需5分钟就可到达港湾地铁站,地铁站上面就是大名鼎鼎的怡丰城商场(VivoCity),商场里面吃喝玩乐应有尽有,还有小孩娱乐场地.南邻旅游圣地“圣淘沙岛”,很适合“家庭两日游”“亲子游”等,国内知名明星黄磊都携带妻子孩子一起来亲子游哦,很多游客来游玩必经之地.


2.项目占地面积39033平方米,可是只有366套单位,通常以这个占地面积会建超过1000套单位,所以住这小区会觉得“幽静”“闹中取静”“不拥挤” ,小区配套设施丰富,包括游泳池,会所,健身房,小孩玩耍区,烧烤区,停车场等。

3.必须介绍这位著名建筑设计师,美国籍建筑师丹尼尔·里伯斯金(Daniel Libeskind),参与设计过的项目包括德国柏林博物馆,美国纽约世界贸易中心蓝图设计,美国丹佛艺术博物馆,爱尔兰都柏林大戏院,加拿大多伦多皇家安大略湖博物馆,美国芝加哥艺术学院,新加坡地标项目Reflection@吉宝湾,这大师参与项目实在太多,小编就不一一去介绍了,直接上几个项目代表图给大家饱眼福.


4.每户单位都高质量和知名品牌的家私配套,意大利厨房和家具制造商领先品牌Polyform,提供带内置灯的衣柜,书架,顶级木材的装饰墙,听说使用的木材界的“劳斯莱斯”,给家庭一种“高贵优雅”的氛围,厨房电器是来自法国的知名品牌DeDietrich,还有来自德国世界知名品牌Miele,顶级卫浴品牌如Geberit,Toto,Zuchetti,每个衣柜配有除湿器,让衣服保持干燥不受潮湿,每个生活细节都力求做到完美.

5.独特的濒临海边的地理位置,滨海吉宝湾拥有168游艇停靠位,如果屋主拥有游艇的话,可以申请游艇停靠位,极大方便屋主这方便的需求,您可直接豪华驾驶游艇携带家人一起出海游玩,生活多么惬意。豪华海滨公寓,游艇都有了,高品位的生活,见证成功人士的潇洒人生。每位屋主可免费享受10年吉宝滨海湾的会所会员和5年吉宝滨海湾会所免会员费,会所里面有私人餐厅,酒吧,休息室,游艇课程,游艇租赁服务,娱乐设施,预定场地举办活动等


6.运动和休闲好去处,周围有Labrador Park公园,Mount Faber Park/花柏山公园(名字有点像齐天大圣孙悟空在的花果山,呵呵,可是没有猴子看哦),Telok Balangah 公园,西海岸公园,可以来此说走就走的徒步旅行,运动的朋友好去处.喜欢高尔夫的朋友,隔壁就是吉宝高尔夫球场,还有圣淘沙岛高尔夫球场S/SentosaGolf Course就在附近,近距离享受高品质生活.

7.珊瑚景项目靠近Harbourfront港湾地铁站,只需步行5分钟就可到达地铁,大型商场怡丰城。甲级办公大楼就在一步之遥,滨海湾办公楼(Harborforntoffice Park ),美国美林银行办公大楼,吉宝湾办公大楼(如下图中圈圈的位置),靠近这些甲级办公楼为您提供稳定的高端租客来源。坐地铁只需三站地铁就可以到达中央商业区CBD,非常方便到市区上班,很多公司高管都像租靠近海滨的海景公寓,下班后可以享受生活,珊瑚景项目是高管的首选之一。


8.开发商吉宝集团有着良好的房地产开发记录,主要是开发高档为主,项目包括Reflection@Keppel Bay,Caribbean,MarinaBay Suites(滨海湾轩)等豪宅项目,吉宝集团包括的领域有船舶制造业,房地产开发,中新天津生态城,基础设施建设,投资领域等.
8.智能家居,科技与人的完美结合
吉宝湾丽珊景为智慧屋,充分利用科技,让住户通过手机软件遥控家中的灯光、冷气和各类家居设施,以及订购食材、预召优步打车(类似国内滴滴打车)和餐馆订位等各类生活服务等,让您足不出户,尽显科技引领新生活。

图片分享,真心漂亮,如美如画,直接上图,眼见为实!!!














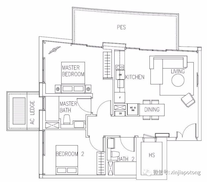
户型图参考(户型多,只选几款样板户型)
两室一厅户型:面积82平方米,价格189万新币起


三室一厅户型:面积121平方米,价格232万新币起

四室一厅户型:户型面积240-288平方米,价格648万新币起

超大面积的顶楼Penthouse复式单位(楼王),户型面积从439-731平方米,价格880万新币起



微信号:297264931
作者介绍 吴彪(Jack),高级营销董事,常获得公司颁发奖项,拥有丰富的房产经纪行业经验,长期定居新加坡多达13年。不跟买家收取中介费,专车接送看房,公司代理全岛各地项目,已成功服务过企业家,商人,新移民等。一个电话过来就了解全岛各地段的项目,总有一款适合您,协助您办理银行贷款(外国人可贷款),房屋推荐,律师咨询等。(帮客户以我经验挑选合适单位)
值得客户信赖的房屋经纪人。
总以专业的眼光推荐适合客户需求的房屋项目,始终客户优先.
欢迎需要买房或者卖房的朋友添加我的微信号(扫描以下二维码)


评论