义顺地铁商住综合项目,大型开发商,2卧室94万起,剩余单位不多

➤项目离义顺地铁站只有200米
➤99年地契,预计2018年第四季度完工
➤占地41000平方米,总共有920套公寓,1卧室到5卧室.
➤大型商住综合项目,整体拥有超过500间商业店面,联络会所,图书馆,大型各种主题的花园,儿童戏水游乐场等多达88中公寓设施。
➤价格方面:一卧已售完,两卧单位94.1万起,三卧单位135万起,四卧单位156万起。(新币为货币单位)
先来介绍义顺的新地标---大型商场North Point City,下图中走遍为商场部分North Point City,右边为公寓住宅项目.商场无缝连接义顺地铁站,巴士转换站,交通极其便利,有多达500个餐饮和零售商店,大量的美食餐馆供选择,儿童戏水游乐场供玩耍嬉闹,还有供小孩学习的托儿所中心Orange Tree Pre-school,图书馆,义顺联络会所,商场有1000个停车位,300个自行车位,的士Taxi接送点。



来聊聊该项目的发展商,新加坡当地著名大型发展商Fraser Centrepoint/星狮地产,开发的项目在新加坡,中国,澳洲,欧洲,还有东南亚,有住宅,商业地产(商场,办公楼等),酒店,服务型公寓等,其中在新加坡已经成功打造超过50多个公寓项目.大型发展商打造的项目,品质保证.

交通方面,南北高速公路预计2020年开通,等开通后,住义顺的居民预计会节省30%的时间到达市区,只需约20-25分钟。汤申地铁线Thomson Line预计2019年开通,会链接新加坡北部和中央商业区,到时会缩短交通时间.未来还会有新加坡-马来西亚地铁开通。

在地少人多的新加坡,该楼盘周围竟然有3个高尔夫球场,满足有高尔夫爱好的朋友,高尔夫球场有:实里达乡村俱乐部,胡姬乡村俱乐部,三巴旺乡村俱乐部。

公寓设施项目多达88种,由于是920户单位的大型公寓项目,享受88种公寓设施同时物业费还低。相比多少公寓提供30-50种公寓设施来说,North Park项目公寓设施绝对给力,有标准的50米游泳池,室内健身房,室外健身房,停车场,儿童娱乐场,玩耍草坪,烧烤BBQ,多功能会所,还有很多小区没有的喷泉区,太极花园区,探险娱乐区,多功能大草坪等。

实里达航空工业园占地320亩,包括世界航空领域领先的大公司如飞机的发动机制造商Rolls-Royce Group,ST Aerospace和Eurocopter。实里达航空工业园发展分为三个阶段,第一,第二阶段已经全部完成,第三阶段会有很多中小型公司入驻,提供飞机维护和保养,飞机材料供应商等,等实里达航空工业园全部好后,预计会执照1万个高技能工作机会,势必会带动义顺一带租房和买房方面需求。

对于喜欢室外健身的朋友,北部区域有900亩公园和长达25公里公园连接走道,住义顺的居民容易去实里达蓄水池,义顺公园,附近的大小公园。健身朋友通过公园散步跑步,养成健康的生活方式。
公寓图片大放送,看起来倍儿爽






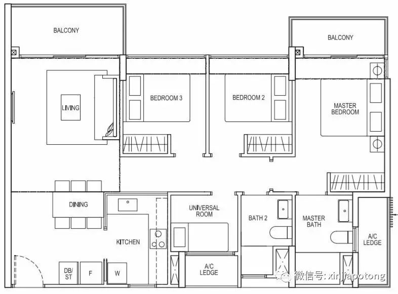
户型点评:
2卧室+客厅,732平方英尺/68平方米,户型方正,合理设计利用空间,每个房间都可以放双人床,带开放式厨房,适合于年轻人或者小型家庭。

3卧室+客厅,1001平方英尺/93平方米,带宽敞的封闭式厨房,主人房面积够大,放了双人床后还可以放床头柜,客厅和主人房各带阳台,适合家庭自住或者投资.

3房样板房图片:





若您对新加坡任何房产感兴趣,请免费咨询我们的特约房产经纪人张琼/Linda,开发商直接代理销售团队,买公寓无任何中介费用,协助客户办理买房银行贷款,买房产业托管一条龙服务。
如果您喜欢这边文章,请分享在你的朋友圈或转发您需要的朋友,谢谢!
微信号:zhangqiong046456 电话:93397258
作者介绍 张琼(Linda),新加坡最大房产经纪公司Huttons市场部高级董事,公司代理全岛各地项目,拥有丰富的房产行业经验,已经加入热爱的房地产行业6年多.全心全意为客户考虑,以客户利益为出发点,诚信待人,服务过包括新移民,企业家,商人等,广泛获得客户好评。不跟买家收取中介费,专车接送看房,公司代理全岛各地项目。一个电话过来就了解全岛各地段的项目,总有一款适合您!
协助您办理银行贷款(外国人可贷款),房屋推荐,律师咨询等,值得客户信赖的房屋经纪人。
总以专业的眼光推荐适合客户需求的房屋项目,始终客户优先.
欢迎需要买房或者卖房的朋友添加我的微信号(扫描以下二维码)

评论