市区繁华地段,迎合大众生活家居品味,潜力公寓火爆热卖中
一通电话的距离,数十个楼盘数千款房产任您挑,总有一款适合您,投资新加坡房产,首付最低仅$30万新币起。

融合东西方典雅建筑精髓,
传承新加坡浑厚本土人文
居Sturdee Residences 公寓,体验优质生活,
观城、观景、观天下
高尚。流淌在建筑精神中。
品味,流露在建筑细节间。
身居高位,打开一扇窗,
以俯视的角度,一览狮城骏景。
漫步停留,细细的品味,
以仰视的角度则预见心中的梦想。
您的魅力,
源于对品质的追求
Sturdee Residences 公寓, 以优异品质成就您的梦想。

Sturdee Residences 公寓秉承“以人为本” 的设计理念,处处遵循“便捷舒适”四字箴言为您打造一个现代化高档寓所。
Sturdee Residences 公寓位于市区中心地段的惹兰勿刹区(Jalan Besar)的史德蒂路(Sturdee Road)和比蒂路(Beatty Road)交汇处,这里是新加坡著名的美食及文化艺术区,咖啡馆、传统餐厅星罗棋布。
享受“不吃一次就白来新加坡”的华人美味---潮州菜餐厅正文志记猪什汤大王,步行仅需2分钟;精品商店、时尚会所玲琅满目,体验“一站式逛街购物”的方便快捷---3分钟步行到室内地下道直接通往城市广场(City Square Mall)。同样地下通道,再走1分钟即可到达花拉公园地铁站(Farrer Park MRT Station,东北线)。此外,Sturdee Residences 公寓步行到今年10月开始运营的明地迷亚地铁站(Bendemeer MRT Station,滨海市区线)也只需4分钟。驱车8分钟即可到达滨海湾和乌节路,不到十分钟的车程便可到达商务中心(CBD)。租住均可,浑然天成,这里俨然成为您居家投资的首选旺地。

丰富多彩的配套功能区
Sturdee Residences 公寓
营造的不是建筑,
而是一种风格。
您,与品味相伴
风格派设计手法
Sturdee Residences 公寓运用风格派的设计手法,成功运用欧美的纯建筑元素表达建筑内涵,人性化、舒适感、自由度是其追求的三大设计风格。
分别设立于1层、14层、19层以及29层的四大配套功能区动线流畅。两座建筑的主题造型注重多维立体效果而并非单一立面装潢,使各个立面均拥有一流的景观、充足采光同时防止西晒等物理学条件。
整个小区通过各建筑平面和造型的错落打造出一个风格各异、空间变化丰富的天际线,结合自然风格的园林、水池等诸多时尚元素,营造出现代、精致、清雅、具有艺术气质的高品味国际化社区,成就一幅尊重天性的风景画卷。

都市人生活节奏紧凑,回到家都想好好放松心情,人性化设计的Sturdee Residences公寓在4个楼层都设有专属放松的空间,迎合您现代的生活方式。
青春活力的第一层
第1层以青春活力、娱乐无限为主题。适逢周末,您可约上三五个好友来自家公寓园区内的足球场里一展赛场上的热情奔放,也可以在篮球场上演出兄弟们激情四射的巅峰对决。
好友的太太团和孩子们或许并不被赛场上的激情所吸引,那么没有关系,细心的Sturdee Residences公寓开发团队已经考虑到了每一个细节:当先生们在球场上挥汗如雨之时,太太们可以在阅读角里安静的翻阅几本名著,或是坐在放松角内开心的谈天说地,亦或是在按摩区享受一个套完整的足底按放松身心;孩子们则来到了Sturdee Residences公寓为他们打造的梦幻天堂---蝴蝶园、儿童游乐区、趟水乐趣池,各种乐园让孩子们享受无尽欢乐。
运动休闲过后,亲朋好友们齐聚公寓内的铁板烧和烧烤馆内体验推杯换盏、大快朵颐的快感。在皎洁的月光下,送走亲朋好友,自己一个人游弋在50米的标准泳池里,享受那片刻的安逸。时而望一望那郁郁葱葱的园林花园,时而坐一坐舒服至极的按摩浴缸。人生的幸福,在Sturdee Residences里得到淋漓尽致的体现。

健康运动十四层
第14层以打造健康为主,独家设计的室内、室外健身区、瑜伽区、TRX(悬吊式)运动区配和散发芳香的园林使您沉浸于天然氧吧的陶醉。
第19层则注重悠闲生活,您可以到休闲区或倒影池那里闲庭信步、坐在摇摇椅上放飞心情,或是在吊床(hammock)上读读名著和小憩一下,享受放松休闲的美好时光。
第29层则以“私人制定”为主题,设有私人的空中休闲厅、用餐间和吧台以及一个美丽的私家花园。为了保留这个空间的专属感,您在使用设施前需要预订,可在这里举办私人聚会。

高档大气二十九层
当您漫步在29层的大型露天私人空间里,聆听舒伯特的小夜曲,驻足留连在那灯火辉煌的城市美景前,那香浓的红酒、微微的轻风与各个年代的艺术建筑和谐地交织在一起……
Sturdee Residences公寓,时刻让您感受新加坡浪漫生活的浓郁气息。

“一站式消费中心“ (one-step shopping),
梦想与现实交融的完美空间
--- Sturdee Residences公寓黄金地段简介


一座城市中,往往只是1%的区域,承担起它的99%的盛名。
在法国,香榭里舍大街所牵动的浪漫传奇,
让全世界的时尚情侣趋之若骛,追慕不止;
在美国,第五大道的财富激流,
成就世界500强最初的掘金神话;
新加坡,Sturdee Residences公寓
不可磨灭的地段标志,
必将刻画不可重复的城市印记,注解不可募写的人物传奇。
Sturdee Residences公寓,力创城市颠峰之上最醒目的1%,
从现在起荣耀未来。
坐落于比蒂路(Beatty Road)的Sturdee Residences公寓的一大特色就是地理位置优越,交通方便,尤其是靠近两个地铁站和城市广场(City Square Mall),又和市中心近在咫尺,所以楼市火爆,几乎顷刻售罄,82%的单位销售一空。Sturdee Residences公寓位于在花拉公园地铁站和马上竣工的明地迷亚地铁站中间,离两个地铁站的距离差不多一样,只需步行4分钟即可到达。这里同时拥有东北线和东海岸线两种选择。从花拉公园地铁站出来,经过室内地下道,可以直接通往城市广场(City Square Mall)就能走回公寓。回家途中,您可以先吃饭或购物,相当方便。步行2分钟即可到达以物美价廉的日常生活用品而闻名于世的达穆斯塔法购物中心 (Mustafa Centre) ,步行2分钟还可以到达惹兰勿刹体育场(Jalan Besar Sports Centre)。此外,附近的购物中心更是星罗棋布,数不胜数,您驾车只需6分钟便可到达白沙浮广场 (Bugis Junction);8分钟到达新达城广场 (Suntec City Mall)、乌节路 (Orchard Road) 、滨海湾金沙购物商城 (Marina Bay Sands)和市中心(CBD);10分钟到达新加坡体育城 (Singapore Sports Hub)。教育方面,Sturdee Residences公寓地理位置更是优人一等。距离新加坡排名前十的中小学校:宏文学校 (Hong Wen School)驾车仅需3分钟、华苑小学(Farrer Park Primary)驾车仅需4分钟, 史丹福小学(Stamford Primary School)驾车仅需5分钟。大学方面,Sturdee Residences公寓驾车只需6分钟即可到达拉萨尔艺术学院(LaSalle College Of The Arts)、8分钟即可到达新加坡管理大学(Singapore Management University)和新加坡艺术学院 (School Of The Arts)。医疗方面,Sturdee Residences公寓地理位置更是无理论比的便捷。距离Sturdee Residences公寓仅550米的联合馆(Connexion)是一个引领世界潮流的集医疗保健、酒店服务、零售购物于一身的综合性医疗会所,近距离为您的健康保驾护航。此外,新加坡最大的妇幼保健医院(KK women's & children's hospital) 距离Sturdee Residences公寓也仅仅只有5分钟车程。


时尚风格与现代简约主义的完美结合
---Sturdee Residences公寓楼盘详介
Sturdee Residences公寓位于比蒂路十号(10 Beatty Road), 是一个99年地契的高档住宅公寓,由知名的新加坡开发商持地私人有限公司(Sustained Land Pte Ltd),何利集团(Ho Lee Group),好地集团(Goodland Group),广利集团(Kwong Lee Group)联合开发,占地面积约为6, 111.5平方米。停车场共313个停车位以及4个无障碍停车位。
Sturdee Residences公寓由两座30层的现代化设计公寓组成,共计305套居住单元提供开放式购买。
Sturdee Residences公寓采用人性化结构设计,从一居室到多居室种类繁多,应有尽有。
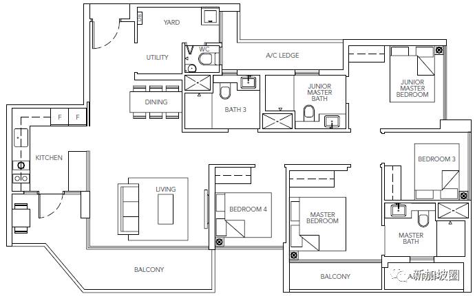
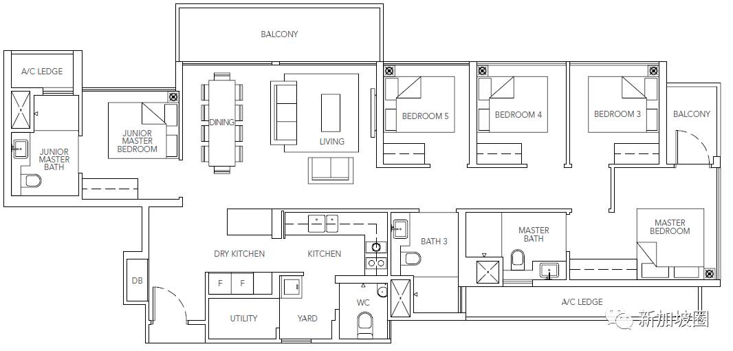
由于集地理位置优越、购物方便等多元化优势于一身,Sturdee Residences公寓开市以来销售火爆。1居室和2居室单元现已售罄,但这里仍有3、4居室以及5居室(Penthouse)的经典格局单位为您推介:
三居室:套内面积77平方米(829平方尺)起,售价$132.58万起。

四居室户型:套内面积121平方米(1302平方英尺)起,售价173.17万起。


五居室户型(Penthouse):套内面积130平方米(1399平方英尺)起,售价236.44万起。



在Sturdee Residences公寓,
户型的划分不是按照大小、宽窄、面积,而是按照心情。
每一户房型,都为生活的心情量身打造。
每一扇窗、每一处转角、每一个阳台,
都是心情停留的最佳场所。
聚会、烹饪、休闲……
生活的每个美好瞬间都在这里精彩演绎。


不仅是诗与远方,
Sturdee Residences公寓
邀您一起在浪漫中徜徉

只为觅一处优良之居,您追随微风吹拂的方向,沿着一条云中的路,迎来了美丽的Sturdee Residences公寓。
这里,是牵引着归家的方向。2幢集人性化、舒适感、自由度三大设计风格的顶极豪宅,掩映于层峦叠翠之中,只为尊贵的您度身定制。开发商殚精竭虑,毕五年之功于一朝,托起这颗冉冉升起的狮城明星。
Sturdee Residences公寓内,流水淙淙,亭台楼谢,绿树繁花,所有都市喧嚣中日渐稀缺的自然元素在这里悉数再现,加以现代园林艺术,绿树、繁花、果木、草坪等渗透于寓所的各个角落,建筑、环境、人文以一种前所未有的和谐姿态被融会贯通,不是桃源,胜似桃源。Sturdee Residences公寓,给您一个典雅的品味生活。
聆听半小时,带您从繁华步入经典
---资深经纪人吴洲推介
若您对以上楼盘或者其他新加坡任何房产感兴趣,请免费联系我们的特约金牌房产经纪人吴洲,常年专业买卖全岛任何产业,开发商直接销售代理,买房无经纪费,一个电话或微信的距离,数十个楼盘数千款房产任您挑,总有一款适合您,投资新加坡房产,外国人也可贷款,首付最低仅$23万新币起。

关于作者: 吴洲
关于吴洲 ,任职于新加坡最大的国际性产业集团ERA担任高级营销总监,金牌房产经纪人(新加坡IEA房地产经纪协会2013/2014 年度金奖得主),他从业7年,秉承专业诚信,事无巨细的工匠精神从业理念,迄今为止,成交完的产业总市值以数亿新币计算,服务过数百位中高端客户投资新加坡产业,并获得客户满意好评,服务过的客户群体有新移民,企业家,艺人,教授学者和房地产开发商等,常年专业提供【新加坡任何公寓楼盘和商业地产以及地皮的买卖投资服务,买私宅无任何经纪费用】,如果您有任何新加坡产业需求,欢迎买家/卖家联系我们,常年买卖各类产业,我办事,您绝对放心。
同时欢迎热爱房产,具有强烈服务意识的经纪同仁加入我们的特战团队。
联系吴洲:
新加坡:(0065)9672 8008
微信号:peterwu99 (或长按以下二维码图片自动添加我)
政府执照号:R009913B
完善自我,成就他人,如果您喜欢这篇文章,请转发给您需要的朋友。
相关阅读
01
买房必读篇
重磅:新加坡 “国土”扩张史
新加坡买房看风水七大原则,看透风水选对楼房
外国人在新加坡买房基础知识普及篇
新加坡房产八大金牌投资原则!
新加坡房产投资潜力分析解读
新加坡产权交易流程详解
如何找位靠谱的房产经纪人协助您置业狮城
一线河景公寓只要$59.3万起,留学生买房也可贷款
02
公寓楼盘介绍
豪宅只付15% 即可拎包入住,一年后再付余款
投资新加坡商业地产:商业地产投资优势汇总
公寓:全岛最便宜的一室一厅公寓来了
紧挨高级优质洋房,大使馆区,与富豪为邻...
东部公寓竣工在即,售价仅$68万新币起
即将竣工的名校附近“学区房”公寓楼盘大汇总
永久地契豪宅来了,首付$30万新币起
万万想不到,首付20万起,坐拥地铁旁公寓
波东巴西地铁公寓,楼上生活,楼下逛街!
永久地契,稀缺资源,两室一厅仅$88万起
巴西立海景公寓仅$69.7万起
宏茂桥公寓两室一厅加书房仅$96万起
“学区房”— 金文泰名校楼盘御品居介绍
裕廊湖—打造“西部滨海湾”
一个值得投资的好楼盘推荐-天木园
新公寓三卧室户型仅$91万Riverbank 介绍
湖畔地铁一线湖景公寓楼盘:丽湖景介绍
后港一线河景公寓新楼盘只要$55万起...
义顺公寓雅韵轩,两室一厅$70.5万起...
盛世名园-潜力楼盘推荐($68万起)
评论