近诺维娜永久地契高档项目,优质地段,1房108.4万起,2房157.8万起
楼盘基本信息介绍:
花郡坐落在尊贵的第11邮区(诺维娜/Novena),地理位置优越,新加坡的第9,10,11邮区属于高档优质邮区,大多数豪宅项目坐落在这3个邮区, 该项目为永久地契项目,占地约45000平方英尺,总共168个单位,1栋30层高,有1-3房户型,项目已经在2017年第一季度交房,不需时间等待,您可以直接拎包入住!
楼盘基本情况介绍完了,现在重点来介绍价格
1房价格108.4万起,2房价格157.8万起,大2房176万起,3房价格204.3万起
(以上价格为折扣后价格,新币为单位,具体以看房时价格为准)

现在发展商提供2年的延迟付款计划,就是在12周内只需支付房价的20%,剩余的80%可以2年后付,可以缓解资金上面压力,当然买家也可选择按照正常进度付款.
项目打造新加坡乃至东南亚第一个采用智能家居系统Lifeup,人脸识别系统,车牌识别系统,智能指纹门锁,直接可以通过手机安装的应用程序,你只需用手机就可以预定公寓设施,直接跟物业管理的经纪互动,如果遇到物业相关问题,可以直接报告给物业管理公司。

7分钟即可步行到诺维娜Novena地铁站,2站地铁到达市中心乌节路地铁站/OrchardMRT,4站地铁到总统府所在的多美歌地铁站/Dhobby Ghoat MRT,6战地铁到港湾地铁站/Harbourfront MRT,方便带家人一起周末去圣淘沙岛(Sentosa)游玩哦,请参考下图,可以高速公路泛岛高速PIE,KPE,东海岸高速到达全岛各地。

方便步行到靠近的大型购物商场,像NovenaSquare,United Square,Novena@Velocity,Square 2商场,包括大型超市,小孩的补习中心,托儿所,餐馆,快餐店,银行分行,便利店都有,生活极为便利,满足您生活上的需求

子女教育方面,靠近受欢迎的政府学校和国际学校,CHIJ小学(大巴窑),ACS Junior School英华美学校,花拉公园小学,ST margaret小学,圣约瑟书院中学,宏文学校等,请参考下图

· 众所周知,诺维娜Novena是新加坡政府大力打造的最大医疗保健中心和未来医疗卫生城,更一步扩大Novena未来的健康城,著名陈笃生医院,伊丽莎白医院(Mount Elizabeth),莱佛士医院都在这一带,到达莱佛士医院只需12分钟车程,有超过1万名医生在这里工作,其中很大一部分是来自国外医术高超的专科医生,还有护士等医疗相关专业人士,潜在的租客需求,势必带来房产增值

· 驾车8分钟就可到达新加坡著名的乌节路购物街,8分钟车程到新达城,12分钟车程到达滨海湾金沙赌场,15分钟到达新加坡南边的大型商场怡丰城Vivo city.

· 花郡有提供高档公寓项目才提供像酒店式的贵宾服务,如果您有需要帮忙,可以直接联系贵宾前台服务热线,如果寄存包裹,寄存快递,预定的士等.

室内设计效果图参考





空中花园的漂亮景观(17,27楼都设有空中花园)

游泳池娱乐休闲区


实际拍摄的样板房照片,让您一饱眼福!






一室一厅户型图
48平方米/ 517平方英尺,还有稍微面积小点的474平方英尺户型,价格108.4万新币起

两室一厅户型图
77平方米/829平方英尺,算是面积大的2房户型了,还有稍微小点的732平方英尺户型,价格最低157.8万新币起

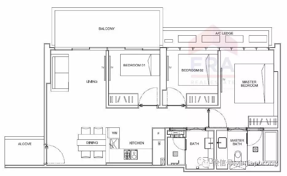
三室一厅户型图
94平方米/ 1012平方英尺,户型方正,没有浪费空间,每个房间都可以放双人床,价格最低204.3万新币起

总结语:
新加坡作为一个国际性的金融中心,由于新加坡政府不断的房地产降温措施,新加坡的豪宅公寓市场现在看起来严重低估,相比其他城市如国内的上海,深圳,香港,还有其他城市如伦敦,悉尼等很有价格方面的优势,现在很多来自国内的投资客都来新加坡投资豪宅公寓市场,这个项目“花郡”是一个不可错过的选择。
微信号:297264931
作者介绍 吴彪(Jack),高级营销董事,常获得公司颁发奖项,拥有丰富的房产经纪行业经验,长期定居新加坡多达13年。不跟买家收取中介费,专车接送看房,公司代理全岛各地项目,已成功服务过企业家,商人,新移民等。一个电话过来就了解全岛各地段的项目,总有一款适合您,协助您办理银行贷款(外国人可贷款),房屋推荐,律师咨询等,值得客户信赖的房屋经纪人。
总以专业的眼光推荐适合客户需求的房屋项目,始终客户优先.
欢迎需要买房或者卖房的朋友添加我的微信号(扫描以下二维码)


评论