乌节路商圈-2017年度最值得关注的豪宅楼盘之一
一通电话的距离,数十个楼盘数千款房产任您挑,总有一款适合您,投资新加坡房产,首付最低仅$30万新币起。
说起新加坡的第九邮区,不知道大家会想到什么。 是乌节路繁华的购物商圈? 是克拉克码头灯红酒绿的迷人夜色? 还是满是本地人文历史气息的市政文化区域? 又或者是高大上的滨海湾金融新区......每个人的想法多少有些不尽相同,但不得不承认的是,第九邮区是新加坡名副其实的核心地段,奢侈地享受着各式各样的稀缺资源
想象一下生活在第九邮区的日子:早上起来,沐浴着清晨温暖的阳光,从楼下慢跑到滨海湾,欣赏一下还未完全苏醒过来的金融中心,同时也为新一天的工作做好了准备;
走到CBD上班只需要短短的十分钟,犯不着在早高峰的繁忙时段因为交通而白白浪费了自己宝贵的时间;
下班之后可以与同事朋友小酌一杯,欣赏一番新加坡河的独特夜景。
遇上周末假日,附近的各个购物中心以及Duxton Road沿街的各家特色咖啡馆也都可以是消遣时光,放松身心的好选择......
这样的生活,应该是很多人所向往的吧。
可惜第九邮区的面积不大,因为其得天独厚的地理位置,闲置的地皮极其稀缺,新进的房产项目近十年也不过就区区三处,错过了实在是让人有点慌张。
好在这一次,本地上市公司国浩置地(GuocoLand)没有让我们等得太久:2017年7月,玛庭豪苑(Martin Modern)正式开售了!

近年来专注于做中高档公寓住宅的发展商国浩置地(GuocoLand)的表现是有目共睹的,之前在武吉知马区的豪宅楼盘GoodwoodResidence和Leedon Residence无论是在销售还是口碑上都取得非常不错的成绩。
这一次,站上第九邮区这个难得的大舞台,他们又再一次煞费苦心,联手曾四次获得本地总统设计大奖的建筑大师Yip Yuanhong,拿出了让人眼前一亮的玛庭豪苑(Martin Modern)。

首先上些干货:玛庭豪苑(Martin Modern)楼盘坐落在在马丁广场(Martin Place) 和里峇峇利弄 (River Valley Close) 的交界处,占地1.6公顷,共有两栋住宅楼,450间单位,拥有99年地契。


绿意盎然
大量绿色和自然元素的运用是绝对是玛庭豪苑(Martin Modern)的一处爆点。
虽然身处闹市的黄金地段,这种与大自然完美融合的设计却可以让居住者完全感受不到周围的喧嚣和噪杂。

1.6公顷的地块上超过80%的区域都被自然植物覆盖,身处其中,你可以有机会同上百种不同的自然植物亲密接触,
随处可见绿茵流水,耳边立体环绕着虫鸣鸟叫,仿佛来到了一个小型的植物园。

整个景观设计由著名的ICN设计公司操刀,意在为业主打造一个以人为本,舒适休闲的生活空间,
在享受着城市生活的的方便快捷的同时,还踏着乡村生活的慢节奏步调,即凸显了档次,又不落于俗套,实在是当下生活中小众而难得的奢华体验。

交通便利
小区内给人的感觉是世外桃源,但只要一踏出公寓大门,业主马上就可以同摩登世界无缝对接。
地处黄金地段的玛庭豪苑(Martin Modern)交通可以说是无可挑剔,出门就是地铁站的要求在这里实在是有些不够看,坐拥三条不同线路的三个地铁站的高端配置基本上是想去哪儿就去哪儿。
步行15分钟可分别到达市区线的福康宁地铁站(Fort Canning MRT)以及南北线的索美塞地铁站 (Somerset MRT) 。
距离最近的汤申线的大世界地铁站 (Great world MRT)更是只有不到10分钟的脚程,计划在项目竣工之时同时开放,方便程度可想而知。

其他交通方式在此也是同样便利,骑脚踏车不足5分钟的时间就可以到达亚历山大公园连道,这对于喜爱户外运动和骑车的人士来说也是一大福音。
从玛庭豪苑开车到市中心和新加坡的中央商业区更是只需要5分钟的时间。

如果以上的交通工具都过于传统,附近新加坡河的水上德士服务也能提供独具特色的出行体验。

周边配套齐全
玛庭豪苑(Martin Modern)靠近新加坡著名的的罗伯森码头(Robertson Quay), 这里聚齐了世界各地不同口味和风格的餐厅,酒吧以及咖啡厅。
在一饱口福的同时,也有机会领略一番河景,无论是消磨午后的闲暇时光,还是体验刺激的夜生活,都绝对是平日里休闲放松的好去处。


附近的市政文化区对于偏文艺范儿的业主来说无疑也是一大利好: 历史博物馆,美术馆和音乐厅等充满人文艺术气息的建筑可以让人好好地体会一把殖民时代的历史文化;
由旧仓库改造的网红酒店Warehouse Hotel更可以让你拍出大把惊艳朋友圈的小清新美照......


教育对于有孩子的家庭来说在选购房产时绝对是一项重要的考量。
在这方面,玛庭豪苑(Martin Modern) “学区房”的身份可谓是竞争力十足:出名的立化小学走路到达只需要2分钟,家长丝毫不用担心子女的教育问题。
高等教育方面,不远处的新加坡管理大学SMU以及艺术学院SOTA同样提供了多种不同方向的选择。



最后要来说大家都非常关心的价格问题。
玛庭豪苑(Martin Modern)的450个住宅单位一共包括了五种户型:
分别是双卧室、双卧室加书房、三卧房、优质三卧房和优质四卧房,面积介于764至1798平方英尺。
价格从180万起跳。
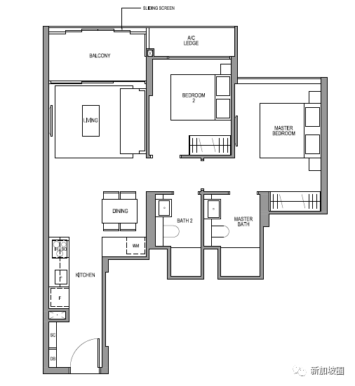
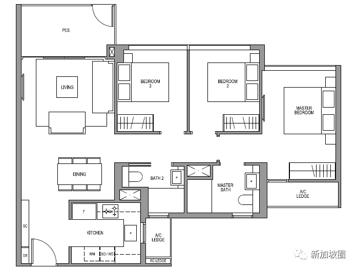
让我们来欣赏几个户型图

两房式面积764平方尺,71平方米,价格174万起。
房间布局精致简洁,公共空间合理,位置充足,非常适合单身贵族或者新婚小两口的优质生活。

三房式1012平方尺,92平方米,售价234万起。
特点是户型方正,厨房宽敞,主人房空间充足。
与喜欢下厨的家庭搭配起来可谓是相得益彰。

优质四房式面积1798平方尺,167平方米,售价386万起。自带私人入户电梯,尽显尊贵。
主人房空间宽敞,厨房干湿分离,无论是日常起居还是偶尔招呼好友来家聚会,都非常的适合。
结语
玛庭豪苑(Martin Modern)作为2017年黄金地段第九邮区唯一开售的公寓项目,绝对是今年房产市场上的一处稀缺资源。
它的地理位置优越,靠近乌节路购物商圈,市中心以及高人气的新加坡河,无论是搭乘公共交通还是自己出行都十分的方便。
加之周围休闲,娱乐和教育设施配套都十分的齐全,照顾到生活中的各种需求的同时,也让生活更加的精致而且充满情调。
除此之外,小区中满眼的自然元素和园林景观更是让其在与其他同档次的住宅项目比较中脱颖而出。
业主既可以体验高档奢华的生活方式,也能感受到大自然的美好,身心都能得到享受。
生活中我们总是会追求很多东西,城市的便捷,城郊的悠闲......
这一切,玛庭豪苑(Martin Modern)拿捏地恰到好处,它把大自然带到了市中心,并且和谐共处,完美融入,保证了业主的工作激情与效率,
同时也为他们在闲下来的时间里提供了一方净土,可以静下心来慢慢地去品味生活。
聆听半小时讲解,带您从繁华步入经典
---资深经纪人吴洲推介
若您对以上楼盘或者其他新加坡任何房产感兴趣,请免费联系我们的特约金牌房产经纪人吴洲,常年专业买卖全岛任何产业,开发商直接销售代理,买房无经纪费,一个电话或微信的距离,数十个楼盘数千款房产任您挑,总有一款适合您,投资新加坡房产,首付最低仅$23万新币起。

关于作者: 吴洲
关于吴洲 ,任职于新加坡最大的国际性产业集团ERA担任高级营销总监,金牌房产经纪人(新加坡IEA房地产经纪协会2013/2014 年度金奖得主),他从业7年,秉承专业诚信,事无巨细的工匠精神从业理念,迄今为止,成交完的产业总市值以数亿新币计算,服务过数百位中高端客户投资新加坡产业,并获得客户满意好评,服务过的客户群体有新移民,企业家,艺人,教授学者和房地产开发商等,常年专业提供【新加坡任何公寓楼盘和商业地产以及地皮的买卖投资服务,买私宅无任何经纪费用】,如果您有任何新加坡产业需求,欢迎买家/卖家联系我们,常年买卖各类产业,我办事,您绝对放心。
联系吴洲:
新加坡:(0065)9672 8008
微信号:peterwu99 (或长按以下二维码图片自动添加我)
政府执照号:R009913B
完善自我,成就他人,如果您喜欢这篇文章,请转发给您需要的朋友。
相关阅读
01
买房必读篇
重磅:新加坡 “国土”扩张史
新加坡买房看风水七大原则,看透风水选对楼房
外国人在新加坡买房基础知识普及篇
新加坡房产八大金牌投资原则!
新加坡房产投资潜力分析解读
新加坡产权交易流程详解
如何找位靠谱的房产经纪人协助您置业狮城
一线河景公寓只要$59.3万起,留学生买房也可贷款
02
公寓楼盘介绍
豪宅只付15% 即可拎包入住,一年后再付余款
投资新加坡商业地产:商业地产投资优势汇总
公寓:全岛最便宜的一室一厅公寓来了
紧挨高级优质洋房,大使馆区,与富豪为邻...
东部公寓竣工在即,售价仅$68万新币起
即将竣工的名校附近“学区房”公寓楼盘大汇总
永久地契豪宅来了,首付$30万新币起
万万想不到,首付20万起,坐拥地铁旁公寓
波东巴西地铁公寓,楼上生活,楼下逛街!
永久地契,稀缺资源,两室一厅仅$88万起
巴西立海景公寓仅$69.7万起
宏茂桥公寓两室一厅加书房仅$96万起
“学区房”— 金文泰名校楼盘御品居介绍
裕廊湖—打造“西部滨海湾”
一个值得投资的好楼盘推荐-天木园
新公寓三卧室户型仅$91万Riverbank 介绍
湖畔地铁一线湖景公寓楼盘:丽湖景介绍
后港一线河景公寓新楼盘只要$55万起...
义顺公寓雅韵轩,两室一厅$70.5万起...
盛世名园-潜力楼盘推荐($68万起)
评论