别墅来啦!! 武吉知马别墅最后17席等待企业家入住!
一通电话的距离,数十个楼盘数千款房产任您挑,总有一款适合您,投资新加坡房产,首付最低仅$30万新币起。
武吉知马地区
武吉知马地区历来就是新加坡的富人聚居区,出则繁华时尚,入则清幽宁静。植物茂密,新加坡地理最高点的武吉知马山如同自家后花园。对外交通极为便利,区内及附近名校林立。因此,武吉知马地区的住宅项目一向都吸引着国内外品质买家的关注。
2013年,凯德集团(CapitaLand)旗下的Athens Residential Development Pte Ltd以3.66亿标下维多利亚园山庄(Victoria Park Villas)所在住宅地块。
这一区域有地住宅新供应量较少,作为凯德集团(CapitaLand)迄今为止规模最大的有地私宅项目,维多利亚园山庄(Victoria Park Villas)以其人性智能且品味卓越的产品优势,无论是投资还是转售,都具有极高潜能。

项目优势
地段优越,成熟优质洋房区
维多利亚园山庄(Victoria Park Villas)位于第十邮区,加冕路(Coronation Road)和维多利亚园路(Victoria Park Road)交界处,这一带遍布着成片的优质洋房,名流汇聚。周边植物覆盖率相当高,居住环境安全而清幽宁静。

区位图
植物园+乌节路,自然与时尚相伴
新加坡维多利亚园山庄(Victoria Park Villas)距离新加坡植物园(Botanic Garden)不过1.5公里,可谓毗邻而居。周末散心、携家休闲、邀友聚会,尽可融入到自然环境中,放松地享受绿植环绕的休闲时光。
驾车去往新加坡乌节路也只有十多分钟的车程,为生活增添一些时尚与美丽不过是分分钟的事。义安城、百丽宫、ION,无论是国际一线时尚品牌,还是世界各国美食,应有尽有,尽收囊中。酒吧咖啡馆汇聚的荷兰村和极富怀旧与艺术情调,同时也是休闲餐饮圣地的登布希山(Dempsey Hill)近在咫尺。

与泛岛高速公路(PIE)、克兰芝高速公路(KJE)、亚逸拉惹高速公路(AYE)便捷连通,快速前往全岛各地。
地铁交通也是极为快速便利,临近的地铁站有地铁环线的花拉路地铁站(Farrer Road MRT)和滨海市区线的陈嘉庚地铁站(Tan Kah Kee MRT),1站地铁即可到达植物园地铁转换站(Botanic Garden MRT Interchange),2站地铁到达波那维斯达地铁转换站(Buona Vista MRT Interchange),3站地铁到达纽顿地铁转换站(Newtown MRT Interchange),4站地铁到达小印度地铁转换站(Little India MRT Interchange),通过这些地铁转换站可以非常快速方便地转换到通往全岛各地的所有地铁线路。
教育至上,名校环绕
新加坡维多利亚园山庄(Victoria Park Villas)以其优越的区位,周围为名校所围绕,南洋小学(Nanyang Primary School)在项目1公里范围内,步行十分钟左右有华侨中学(Hwa Chong Institution)和南洋女中(Nayang Girls’ School)。1~2公里内有莱佛士女子小学(Raffles Girls’ Primary School)、纽顿小学(New Town Primary School)。
另外还有国家初级学院(National Junior College)、美以美女校(Methodist Girls' School)、英华国际学校(Anglo-Chinese School International)基本都在2.5公里距离之内。名校汇集,对于有子女择校需求的业主而言,极具吸引力。
项目基础数据与设计特点
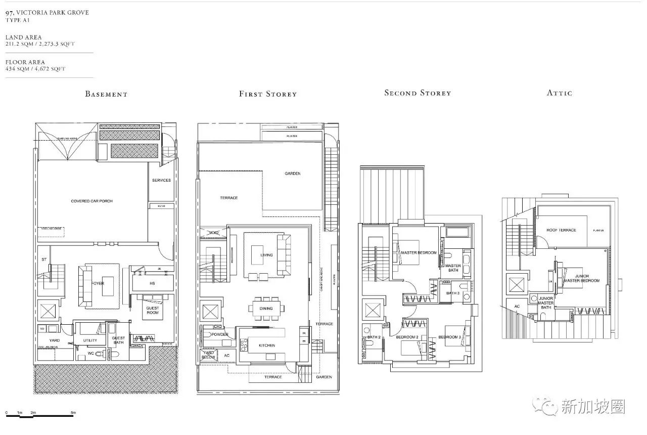
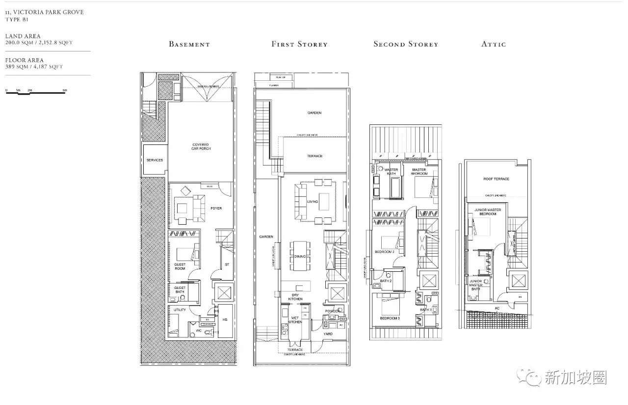
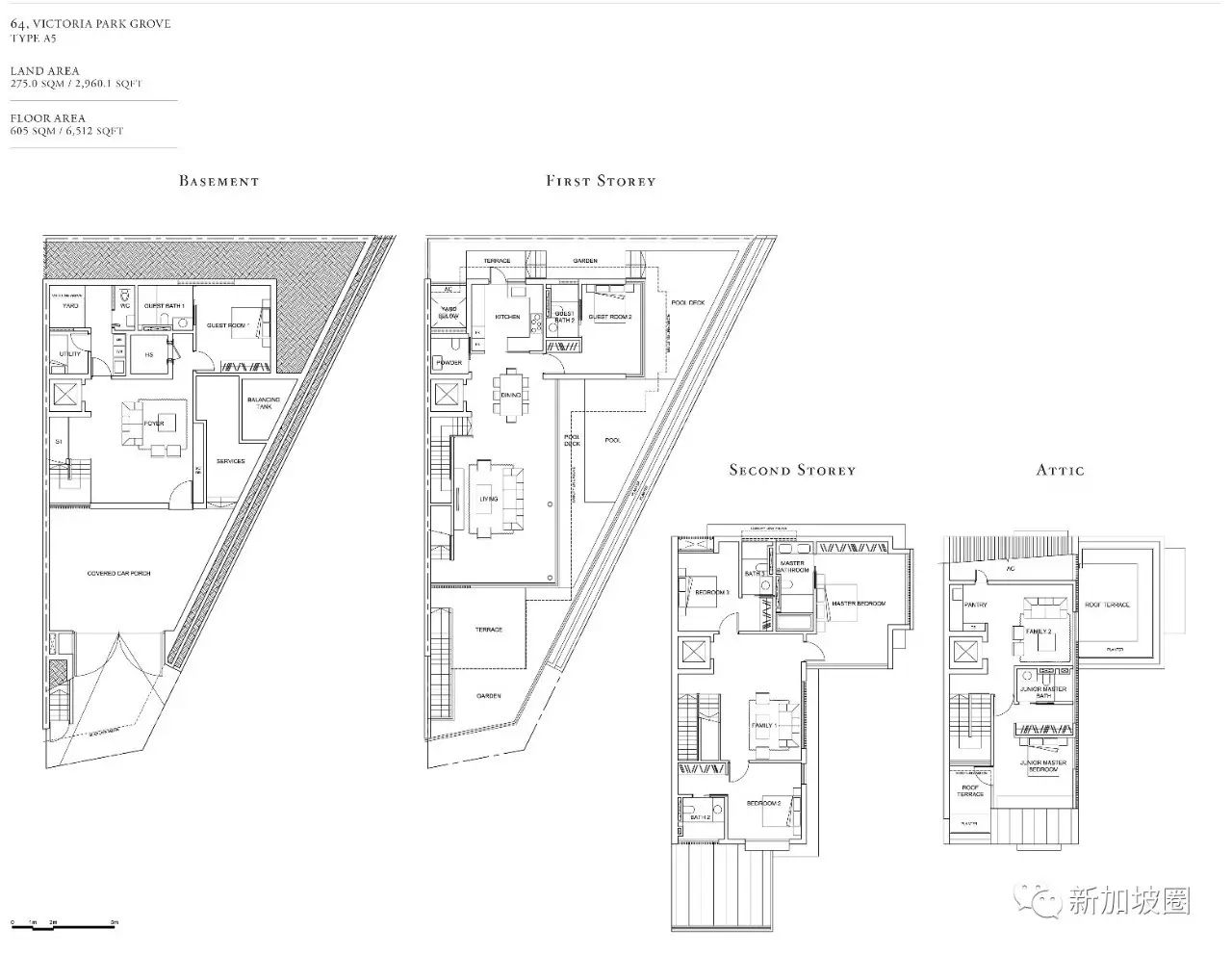
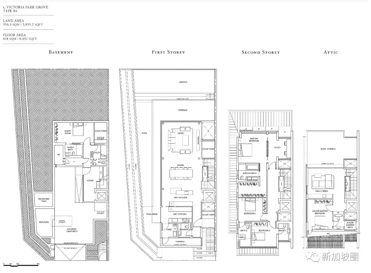
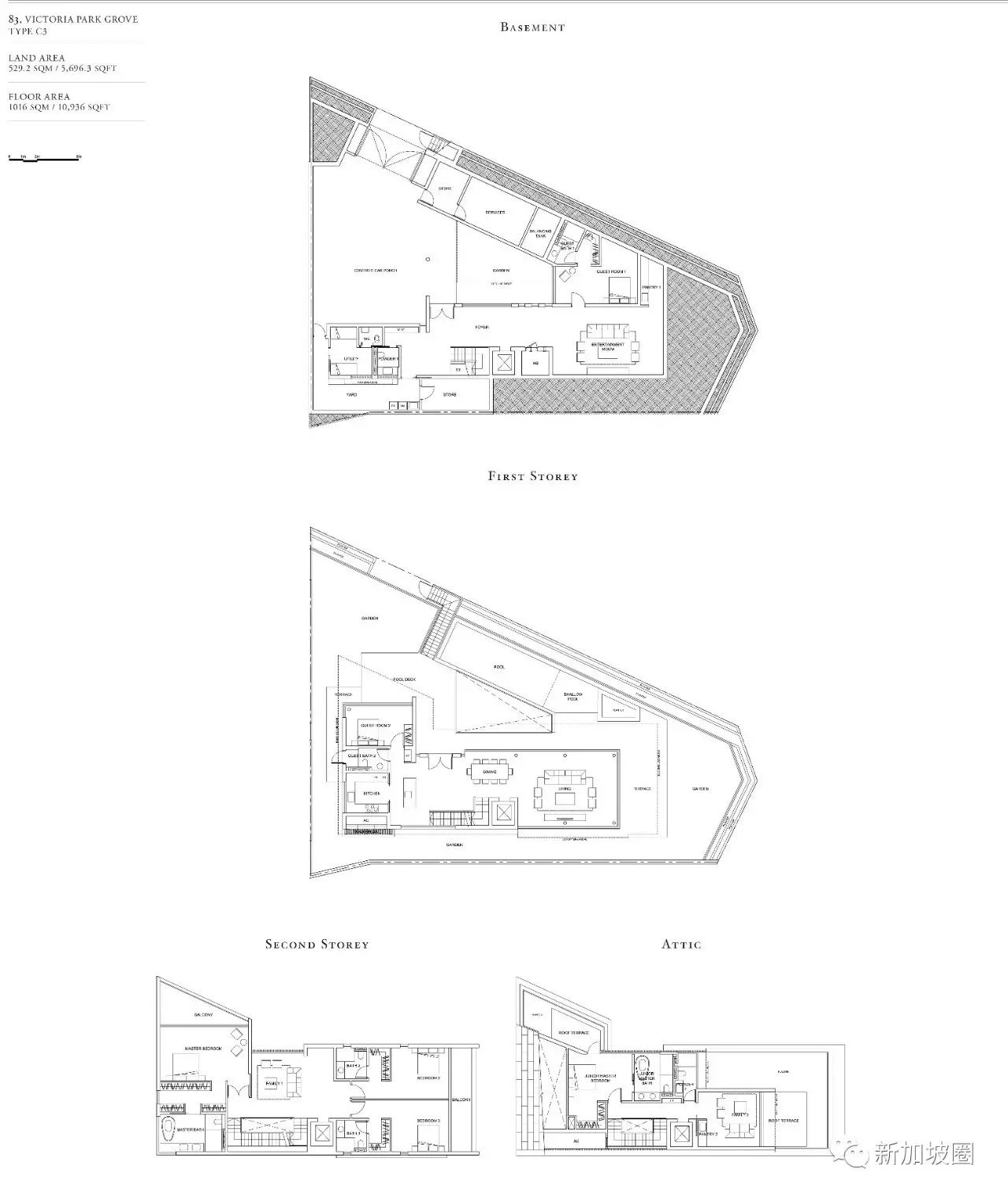
新加坡维多利亚园山庄(Victoria Park Villas)是一个99年地契的的有地私宅项目,占地37440.7平方米,预计在2018年底竣工。共有109栋洋房,包括半独立式洋房与独立式洋房。
半独立式洋房: 100栋花园洋房(garden villa)以及6栋泳池洋房(pool villa)。平均每户2个停车位。
独立式洋房: 3栋,平均每户3个停车位。

维多利亚园山庄(Victoria Park Villas)总平面及套型分布

不同套型的室外效果

栋间距大,道路开阔
▼栋间距大,私密性好
维多利亚园山庄(Victoria Park Villas)的总图排列充分考虑了私密性和对外视觉效果。沿路两侧的栋间距控制在26-30米之间,每栋半独立式洋房和独立式洋房之间控制了4米的侧间距,侧墙基本都采用实墙面。

▼高端精装家私,品质生活保证
维多利亚园山庄(Victoria Park Villas)为业主精心准备了高审美标准,品味卓越的精装家私,世界著名品牌汇聚,品质生活保证。
卫浴设施硬件选用了DURAVIT(德国)、KALDEWEI(德国)、TOTO(日本)等品牌的高端产品,卫浴设备配件选用了GESSI(意大利)、TECE(德国)和CEADESIGN(意大利)等品牌。厨房系统选用了Ernestomeda(意大利)的橱柜系统、Miele(德国)的厨房家电、FRANK(瑞士)的厨房设施以及Hyflux(新加坡)的饮用水净化系统。

▼人性化设计+先进设备+私人密储
维多利亚园山庄(Victoria Park Villas)为每栋洋房单位都安装了Schindler(德国)电梯,核载五人,可供轮椅进出。考虑到全世界范围的社会老龄化,这样的设计实现了家庭无障碍化,合理而人性。

每栋洋房单位里都有ABB(瑞士)的智能管理系统对整栋洋房进行智能监控。通过应用软件,业主可以看远程监控家中情况。还可以在无人在家的时段,为整栋洋房设定“定时开灯”等功能,模拟日常居家的生活状况,避免窃贼的觊觎。在新加坡众多的私宅项目中,维多利亚园山庄(Victoria Park Villas)可能是第一个为业主提供智能管理系统的有地私宅项目了。
维多利亚园山庄(Victoria Park Villas)为主户门电子门锁选择了Yale(美国)品牌,电子锁配置指纹识别和数字密码功能,并能通过智能管理系统进行远程控制。独立式洋房的主卧室还配备了Yale(美国)的电子防火保险箱,为业主提供最安全的私人密储服务。
▼多种混凝土质感+金属格栅的现代建筑表皮
清水混凝土:如安藤忠雄(Tadao Ando)这样的多位世界建筑大师都喜爱清水混凝土这种朴素而精致的材料,在体现少即是多的建筑精髓的同时,又满足功能的需要,同时也体现了做工的精细与精准,集技术和美于一体。

自然纹理混凝土:除清水混凝土的运用以外,在建筑立面材质的设计上,设计师还采用了多种自然纹理的混凝土,在材料上保持统一的原则下,通过多种纹理的组合,为建筑立面带来更为丰富的节奏变化。

冲孔铝板+铝格栅:设计师在建筑立面上还采用了密拼的冲孔铝板和铝格栅,通过金属与混凝土的材质对比和色调上的统一,令建筑的现代感更为强烈。既保证了诸如卧室、卫生间、浴室等空间的隐私,同时也在烈日炎炎时为室内提供一丝阴凉。随着季节流转,日升日落,从建筑内部还能欣赏到美妙的光影舞动。


▼私家草坪花园,自然绿色生活
与基地外道路路面相比,维多利亚园山庄(Victoria Park Villas)的原地势比较高且具有一定坡度,通过削低面向道路的地面高度,并结合台地做法,将原来的地下层做到合理的近路高度,令私家车可直接进出地下层。
既让道路坡度达到合乎政府设计规范的要求,又使得地下层的实用率提高。继而将位于地下层停车库上方的平台设计成为与客厅相接的室外私家草坪花园。令客厅对外视野范围内的景观更为自然怡人,与对面住户之间更添一层自然的隐私屏障,同时也为家庭成员的室外活动提供了更多的活动空间。

客厅外即是绿意盎然的私家草坪花园
▼通透大空间,光与风的游乐场
起居室、餐厅、厨房连通成为开放的多功能大空间,连同开放楼梯间,为一层活动平面打造通透的光与风的通道,在炎炎夏日里带来一室的清凉与明亮,还有那清新的空气。内外景互动,整个空间更显灵动和生趣。

▼完美洗浴,舒适享受
维多利亚园山庄(Victoria Park Villas)为业主设计了宽敞舒适的洗浴空间。主卧室配备下沉式浴缸和独立淋浴间,可以尽享最舒适的沐浴体验。这里还有充足的储藏空间,可以将喜爱的、常用的洗浴用品全部储藏进去。

基本套型与销售价格
洋房每套售价最低420万起。
半独立式洋房-花园洋房(Garden Villa)
基地面积200—289.4平方米(2152.8—3115.1平方尺),建筑面积387—491平方米(4166—5285平方尺)。







半独立式洋房-泳池洋房(Poll Villa)
基地面积275—365.3平方米(2960.1—3835.2平方尺),建筑面积565—645平方米(6082—6943平方尺)。





独立式洋房(Bungalow Villa)
基地面积529.2—608.6平方米(5696.3—6550.9平方尺),建筑面积1013—1072平方米(10904—11539平方尺)。




聆听半小时,带您从繁华步入经典
---资深经纪人吴洲推介
若您对以上楼盘或者其他新加坡任何房产感兴趣,请免费联系我们的特约金牌房产经纪人吴洲,常年专业买卖全岛任何产业,开发商直接销售代理,买房无经纪费,一个电话或微信的距离,数十个楼盘数千款房产任您挑,总有一款适合您,投资新加坡房产,外国人也可贷款,首付最低仅$23万新币起。

关于作者: 吴洲
关于吴洲 ,任职于新加坡最大的国际性产业集团ERA担任高级营销总监,金牌房产经纪人(新加坡IEA房地产经纪协会2013/2014 年度金奖得主),他从业7年,秉承专业诚信,事无巨细的工匠精神从业理念,迄今为止,成交完的产业总市值以数亿新币计算,服务过数百位中高端客户投资新加坡产业,并获得客户满意好评,服务过的客户群体有新移民,企业家,艺人,教授学者和房地产开发商等,常年专业提供【新加坡任何公寓楼盘和商业地产以及地皮的买卖投资服务,买私宅无任何经纪费用】,如果您有任何新加坡产业需求,欢迎买家/卖家联系我们,常年买卖各类产业,我办事,您绝对放心。
同时欢迎热爱房产,具有强烈服务意识的经纪同仁加入我们的特战团队。
联系吴洲:
新加坡:(0065)9672 8008
微信号:peterwu99 (或长按以下二维码图片自动添加我)
政府执照号:R009913B
完善自我,成就他人,如果您喜欢这篇文章,请转发给您需要的朋友。
相关阅读
01
买房必读篇
重磅:新加坡 “国土”扩张史
新加坡买房看风水七大原则,看透风水选对楼房
外国人在新加坡买房基础知识普及篇
新加坡房产八大金牌投资原则!
新加坡房产投资潜力分析解读
新加坡产权交易流程详解
如何找位靠谱的房产经纪人协助您置业狮城
一线河景公寓只要$59.3万起,留学生买房也可贷款
02
公寓楼盘介绍
豪宅只付15% 即可拎包入住,一年后再付余款
投资新加坡商业地产:商业地产投资优势汇总
公寓:全岛最便宜的一室一厅公寓来了
紧挨高级优质洋房,大使馆区,与富豪为邻...
东部公寓竣工在即,售价仅$68万新币起
即将竣工的名校附近“学区房”公寓楼盘大汇总
永久地契豪宅来了,首付$30万新币起
万万想不到,首付20万起,坐拥地铁旁公寓
波东巴西地铁公寓,楼上生活,楼下逛街!
永久地契,稀缺资源,两室一厅仅$88万起
巴西立海景公寓仅$69.7万起
宏茂桥公寓两室一厅加书房仅$96万起
“学区房”— 金文泰名校楼盘御品居介绍
裕廊湖—打造“西部滨海湾”
一个值得投资的好楼盘推荐-天木园
新公寓三卧室户型仅$91万Riverbank 介绍
湖畔地铁一线湖景公寓楼盘:丽湖景介绍
后港一线河景公寓新楼盘只要$55万起...
义顺公寓雅韵轩,两室一厅$70.5万起...
盛世名园-潜力楼盘推荐($68万起)
评论