新加坡全境回报率最高的公寓楼盘之一来啦,国外客户也可贷款。
一通电话的距离,数十个楼盘数千款房产任您挑,总有一款适合您,投资新加坡房产,首付最低仅$30万新币起。
巴耶利峇与加冷,新加坡未来热门商业圈
政府早在2008年就已宣布要将巴耶利峇(Paya Lebar)打造成为一个充满活力的新兴商圈,巴耶利峇中心(Paya Lebar Central)内将汇聚商业、酒店、办公、住宅、娱乐休闲等各种功能以及便利的公共活动设施,并发挥辅助中央商务区的角色。
已经建成运营的终身学习学院(Lifelong Learning Institute)、巴耶利峇广场(Paya Lebar Square)和OneKM商场,以及堪称亚洲最大电子商城的新邮政中心(SingPost Centre)为巴耶利峇及周边区域带来和活力和商机。
巴耶利峇继裕廊(Jurong)之后,已经成为很多开发商和投资者看好的目标,极具潜力,是新加坡未来10年内最值得期待的新商业圈。

加冷(Kallang)因与加冷河(Kallang River)的密切联系以及与中央商务区毗邻的地理位置,在市建局(URA)的开发蓝图上也是政府着重发展的区域。
规划中,国家体育场(Sports Hub)附近、加冷河畔将有大型综合商业开发,包括商业、办公、滨水酒店、住宅、娱乐休闲等等。并且在城市景观与公共活动空间的规划开发上,行人道与自行车道网络将得到改善和联通扩建,公众可以从碧山骑车直达市区。
体育城周边将增设新的体育设施和活动空间,让加冷盆地成为休闲和运动的好去处。这些举措,将加冷打造成为另一个新兴商圈,延续了中央商务区的功能与氛围。

知名房产开发商联袂巨献
今天要介绍的TRE Residences,由知名房产开发商Sustained Land Pte Ltd和有中资背景的Greatview Development Pte Ltd,以及中冶置业(MCC Land (Singapore) Pte Ltd)联合开发。
Sustained Land Pte Ltd创建于2006年,经过多年的发展和开发,包括Sturdee Residences、The Poiz Residences、Sea Horizon、Coastal Breeze Residences、833 MB Residences、Tivoli Grande等项目在内,旗下诸多住宅项目都享有相当出色的口碑。
Greatview Development Pte Ltd作为中资背景的豪景集团旗下的地产开发公司,自2003年六月入驻新加坡以来,与新加坡本地的房地产开发企业合作,参与了多个政府和私人地块的开发。也与Sustained Land Pte Ltd合作过The Poiz Residences的开发。
中冶置业(MCC Land (Singapore) Pte Ltd)作为最早进军新加坡的外资发展商之一,背后的母公司是中国冶金科工集团,可谓实力雄厚。旗下的开发项目Sea Horizon,The Canopy,One Canberra,Forestville,The Nautica、Alps Residence、The Santorini等等,都拥有着骄人的销售业绩。继Sea Horizon之后,中冶置业再次与Sustained Land Pte Ltd合作,协同Greatview Development Pte Ltd,三家强强联手开发了TRE Residences。相信,由如此的实力强劲的开发商联袂倾情巨献,TRE Residences绝对值得投资者们热切关注。
高效便利的出行令人身心愉悦
TRE Residences位于14邮区,芽笼东1道,市中心区边缘,距离东北地铁线阿裕尼地铁站(Aljunied MRT)约100米,通过有盖走道步行5分钟即可到达。
地铁1站即可达巴耶利峇地铁站(Paya Lebar MRT)和未来的商业中心。3站地铁就能到达武吉士地铁转换站(Bugis MRT Interchange),4站到政府大厦地铁转换站(City Hall Interchange),5站向西到达多美歌地铁转换站(Dhoby Ghaut MRT Interchange),向东到达丹那美拉地铁转换站(Tenah Merah MRT Interchange),多美歌地铁转换站(Dhoby Ghaut MRT Interchange)汇聚了东北线(North East Line紫线)、南北线(North South Line红线)和环线(Circle Line黄线)三条重要地铁线。6站地铁到滨海湾地铁转换站(Marina Bay MRT Interchange)。
借由这些四通八达的地铁换乘站,乘客能够快速便捷地前往全岛各地。世界闻名的樟宜国际机场7站地铁即可到达,随时可以拎包飞往世界各地。

区位图

对驾车的朋友而言Tre Residences的交通也十分方便,驾车前往周边著名的商业和休闲旅游区域都在20分钟以内。国家体育场(Sports Hub)驾车4分钟即可到达,去往东海岸公园(East Coast Park)只需7分钟车程,中央商务区和著名乌节路也不过15分钟车程就到了,即便是圣淘沙也不过18分钟车程。生活、工作、消费、休闲,所有活动都近在咫尺。对于现代快节奏的生活方式而言,时间就是金钱,高效便利的出行令人身心愉悦。
成熟商业区域,购物饮食丰富全面
Tre Residences附近2公里以内的商场有巴耶利峇商场(Paya Lebar Square)、新邮政中心(SingPost Centre)、城市广场(City Plaza)、丹戎加东大厦(Tanjong Katong Complex)、One KM、加冷娱乐中心(Kallang Leisure Park)、112加东购物中心(112 Katong Mall)和位于新加坡体育场的加冷波商场(Kallang Wave Mall)。这些商场的购物设施都非常齐全,零售商铺、超市、餐厅、食阁和其他娱乐设施选择丰富。

Tre Residences附近也有非常多的熟食中心,例如阿裕尼大牌117巴刹与熟食中心(Aljunied Block 117 Market & Food Centre)、沈氏维斯达巴刹与熟食中心( Sims Vista Market And Food Centre) 、循环路大牌89巴刹与熟食中心(Circuit Road Block 89 Market And Food Centre)、循环路大牌79/79A熟食中心(Circuit Road Block 79/79A Hawker Centre)和著名的旧机场路巴刹与熟食中心(Old Airport Road Market & Food Centre)等等。许多著名的本地特色餐饮店也分布在这些熟食中心,完全能满足饕客们的美味需求。
教育资源丰沛的学区房
TRE Residences 周边教育资源丰沛,1公里以内的学校有光华小学(Kong Hwa School)、芽笼美以美小学(Geylang Methodist Primary School)和新加坡汉桥学院(Hanbridge School)。2公里以内的学校有务立中学(Broadrick Secondary School)、北烁学校( NorthLight School)、芽笼美以美中学(Geylang Methodist School (Secondary))、中正中学总校(Chung Cheng High School (Main))、丹绒加东女校(Tanjong Katong Girls’ School)、丹绒加东中学( Tanjong Katong Secondary School)和德明政府中学(Singapore Dunman High School)。
附近的高等学府和国际学校有澳洲詹姆斯库克大学(James Cook University Singapore)、终身学习学院(Lifelong Learning Institute)、莱仕国际学校新加坡校区(Nexus International School Singapore)和加拿大国际学校(Canadian International School)。
TRE Residences 以其绝佳的区位,为学生家长们提供了就近入学的报考优势。

▼项目基础数据
TRE Residences为地契99年的项目,所在地块总面积约6238.1平方米,项目共有250个单位,由2栋17层塔楼及1个地下停车库组成。停车库提供200个普通停车位和3个无障碍停车位。项目预计在2018年中竣工。

▼建筑设计华丽而不失沉稳
TRE Residences的建筑设计由AGA Architects Pte Ltd操刀,总平面最大限度地为景观和绿植留出空间,打造绿色活力的地面活动区域。两栋塔楼造型干净利落,立面造型对称均衡,立面主体的亮丽金棕色与玻璃面的整体暗色相配合,华丽而不失沉稳。塔楼间通过空中绿廊连接,形成多层次的空中花园。

总平面图

建筑立面干净利落,配色华丽而不失稳重
TRE Residences配备了24小时门房与安保系统,为小区提供全面完善的安全保障服务。4米挑高的泊客点开敞明亮,顶棚配植了绿色垂悬植物,绿意盎然。

泊客点和4米挑高的迎宾大堂
TRE Residences的设计灵感源于自然,将天、地、水三个自然元素融于建筑与景观设计中。地面一层以“水”为设计元素,设置了按摩泡池泳池、波浪池、40米X8米的无边泳池。滨水区域还设计了“乐园”主题的景观活动区和不同主题的多功能厅。同时配备了俱乐部、健身房、游戏场、BBQ烧烤平台等等服务功能,住户可以尽情享受活力四射的阳光生活。

40米X8米无边泳池
第4层、第9层和第14层以“地”为设计元素,由下而上分设了亚马逊河、稀树平原和禅宗主题的空中景观花园。两栋塔楼间的其他各层均设计有空中绿色连廊,在建筑剖面商有节奏地前后进退,热带植物的绿意繁茂不但带来了炎炎曙日下的清新凉意,也为都市的繁华带来了一片宁静安逸。


空中花园
最高的第17层以“天”为设计元素,开阔雅致的观景平台,让住户能远眺滨海湾的繁华似锦,也能俯瞰国家体育场的赛事蓬勃。

屋顶观景平台
▼阳光明亮的现代家居
Cynosure Desig和Edition共同精心打造了优雅精致,温馨甜蜜的家庭氛围。为住户打造品质之家。一居室户型至四居室户型的标准层高为3.15米,实用而舒适。顶层豪宅的层高为3.6米,与较开敞的室内空间相配合,室内空间给人的感受更为愉悦舒适。







▼户型丰富,选择多样
TRE Residences设计了五种主要户型,一居室单位30个,两居室单位64个,三居室单位91个,四居室单位62个,以及3个顶层豪宅单位,总计250个住宅单位。户型单位面积从39平方米到159平方米不等。顶层豪宅设计为双钥匙单位,能够灵活适应各种规模家庭的需求,自住外租两相宜。
一居室户型:套内面积49平方米(420平方尺)。

两居室户型: 套内面积53平方米(570平方尺)—69平方米(743平方尺)。


三居室户型: 套内面积71平方米(764平方尺)—79平方米(850平方尺)。





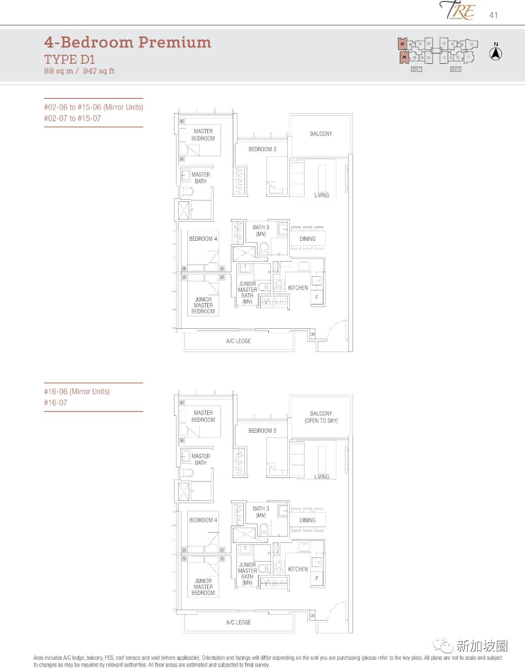
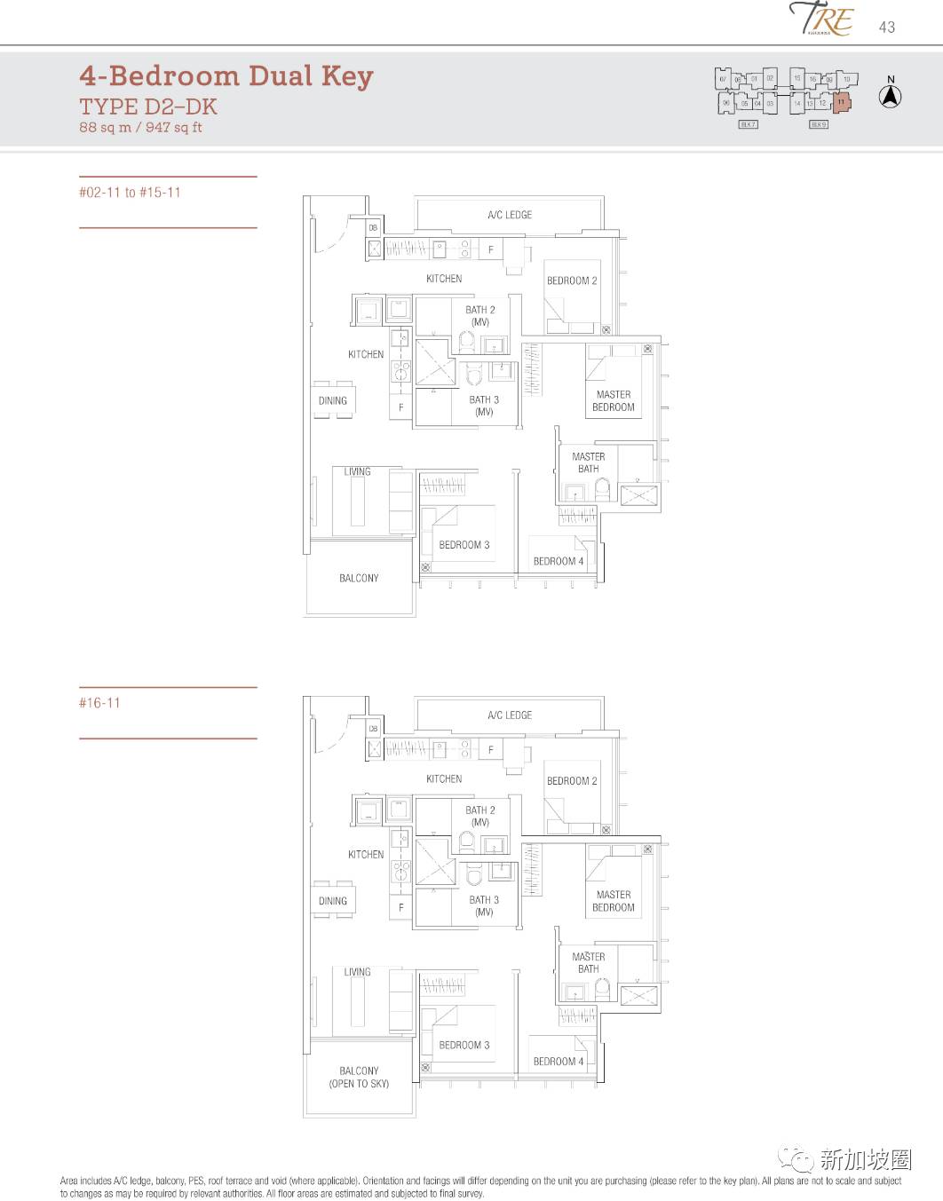
四居室户型: 套内面积88平方米(947平方尺)—92平方米(990平方尺)。




顶层豪宅:套内面积137平方米(1475平方尺)—159平方米(1711平方尺)。



投资前景
TRE Residences被巴耶利峇和加冷这两个新兴成长的商业热圈所环绕,依傍中央商务区,拥有绝佳的零售商业和住宅投资环境。
绿色健康的生活是身处现代都市生活的人们所渴求的,国家体育场与加冷河畔的开发为这片区域的休闲运动和专业比赛提供了专业完善的硬件和软件设施,从而成为众多体育爱好者所瞩目的地区。
重大体育赛事的举办,带动这片区域及周边的各类商业、城市开发,其影响也不可限量。这些软硬件的基础条件,也吸引着中央商务区和滨海湾金融地区的租客群体。
▼售价现况
目前TRE Residences除三居室和四居室户型以外都已售空,这两种主户型的售价情况如下:
三居室户型: 套内面积71平方米(764平方尺)—79平方米(850平方尺),平均售价约1473元/平方尺,整套销售价为111.6万元起。
四居室户型: 套内面积88平方米(947平方尺)—92平方米(990平方尺),平均售价约1308元/平方尺,整套销售价为123.9万元起。
聆听半小时讲解,带您从繁华步入经典
---资深经纪人吴洲推介
若您对以上楼盘或者其他新加坡任何房产感兴趣,请免费联系我们的特约金牌房产经纪人吴洲,常年专业买卖全岛任何产业,开发商直接销售代理,买房无经纪费,一个电话或微信的距离,数十个楼盘数千款房产任您挑,总有一款适合您,投资新加坡房产,首付最低仅$23万新币起。

关于作者: 吴洲
关于吴洲 ,任职于新加坡最大的国际性产业集团ERA担任高级营销总监,金牌房产经纪人(新加坡IEA房地产经纪协会2013/2014 年度金奖得主),他从业7年,秉承专业诚信,事无巨细的工匠精神从业理念,迄今为止,成交完的产业总市值以数亿新币计算,服务过数百位中高端客户投资新加坡产业,并获得客户满意好评,服务过的客户群体有新移民,企业家,艺人,教授学者和房地产开发商等,常年专业提供【新加坡任何公寓楼盘和商业地产以及地皮的买卖投资服务,买私宅无任何经纪费用】,如果您有任何新加坡产业需求,欢迎买家/卖家联系我们,常年买卖各类产业,我办事,您绝对放心。
联系吴洲:
新加坡:(0065)9672 8008
微信号:peterwu99 (或长按以下二维码图片自动添加我)
政府执照号:R009913B
完善自我,成就他人,如果您喜欢这篇文章,请转发给您需要的朋友。
相关阅读
01
买房必读篇
重磅:新加坡 “国土”扩张史
新加坡买房看风水七大原则,看透风水选对楼房
外国人在新加坡买房基础知识普及篇
新加坡房产八大金牌投资原则!
新加坡房产投资潜力分析解读
新加坡产权交易流程详解
如何找位靠谱的房产经纪人协助您置业狮城
一线河景公寓只要$59.3万起,留学生买房也可贷款
02
公寓楼盘介绍
豪宅只付15% 即可拎包入住,一年后再付余款
投资新加坡商业地产:商业地产投资优势汇总
公寓:全岛最便宜的一室一厅公寓来了
紧挨高级优质洋房,大使馆区,与富豪为邻...
东部公寓竣工在即,售价仅$68万新币起
即将竣工的名校附近“学区房”公寓楼盘大汇总
永久地契豪宅来了,首付$30万新币起
万万想不到,首付20万起,坐拥地铁旁公寓
波东巴西地铁公寓,楼上生活,楼下逛街!
永久地契,稀缺资源,两室一厅仅$88万起
巴西立海景公寓仅$69.7万起
宏茂桥公寓两室一厅加书房仅$96万起
“学区房”— 金文泰名校楼盘御品居介绍
裕廊湖—打造“西部滨海湾”
一个值得投资的好楼盘推荐-天木园
新公寓三卧室户型仅$91万Riverbank 介绍
湖畔地铁一线湖景公寓楼盘:丽湖景介绍
后港一线河景公寓新楼盘只要$55万起...
义顺公寓雅韵轩,两室一厅$70.5万起...
盛世名园-潜力楼盘推荐($68万起)
评论