置业:新加坡黄金第10邮区的都市绿洲 ,高端奢侈私宅,置业可贷款。
一通电话的距离,数十个楼盘数千款房产任您挑,总有一款适合您,投资新加坡房产,首付最低仅$23万新币起。
新加坡乌节路旁,低密度住宅,都市绿洲,黄金第10邮区,永久地契,知名地产开放商丰隆控股,让所有以上的关键词融合在一起,无须多虑,这样的建筑楼盘已是精品中的精品,具备了豪宅的属性和增值的潜力,如果您正在搜寻这样的一套房产,请看即将竣工的项目- One Balmoral。
One Balmoral由新加坡顶尖的房产建设者 – 丰隆集团打造的一款高端奢华私宅项目,项目建设在新加坡豪宅云集的黄金邮区 – 第10邮区,坐落在1 Balmoral Road,由两幢12层高的建筑构成,一共提供了91个住宅单位,从一房室至四房室多种房型提供多样化选择,适合各种家庭规模。
在One Balmoral,您可以真正的体验在高层居住的舒适感,感受来自都市那令人叹为观止的城市天际线美景和独特的现代化生活方式。定位在城市核心区,One Balmoral的永久地契是您到达各大商业中心的门户。

主要项目数据
项目名称:One Balmoral
项目地址:第10黄金邮区 - 1 Balmoral Road
地契类型:永久地契
开发商:Hong Leong Holdings Limited(丰隆控股)
项目建设面积:66,277平方英尺(6148平方米)
住宅单元数量:两幢12层高楼共91个住宅单元
预计TOP时间:2017年9月
主要卖点分析
黄金第10邮区永久地契,稀缺资产,都市和宁静的完美结合。低密度住宅远离人群却又离乌节路购物中心仅几分钟之隔;
地理位置优越,交通便捷,连接Balmoral Road,Anderson Road和Stevens Road,满足不同时间段的出行需求,不用担心交通的拥堵;
一千米半径内卓越的教育资源,ACS Primary(英华小学),SCGS Primary(新加坡女子学校)及众多国际学校为有子女教育需求的家庭提供巨大吸引力;
具有竞争力的单价($2500新币每平方英尺),低于Ardmore area的$3500和Le Nouvel的$4200每平方英尺,房屋增值潜力巨大;
Balmoral Road(巴慕乐路)的1号住址,永远引领着#2和#3,象征着人生的成就和成功;
著名开发商Hong Leong Holdings Limited (HLHL -丰隆控股),是新加坡地产开发先驱,拥有50个覆盖中高端户型项目的成功开发案例,值得信赖;
轻松地连接都市生活的每一部分
91户住宅单元的低密度社区,既保证了家庭成员间的亲密无间,也保证了个人生活的绝对隐私,加之位于绝佳的地理位置,紧密连接城市主动脉,住在One marmoral的都市精英可以真正将之称为城市中的后花园。

按您的定义重新描绘新的都市生活
作为工作、生活娱乐的起点,One Balmoral将成为您现代化、优雅高贵生活的伴侣,为您提供舒适和便捷的生活,让您随时随刻掌握自己的时间和生活节奏。在Balmoral Road周边,您将会享受到宁静、晴朗无云、和充满绿意的环境,和周边一流教育资源。

当全亚洲的购物天堂 – 乌节路距您的家仅仅两分钟的驾车距离的时候,您的所有需求都可以得到最高品质的满足,无论是休闲娱乐,还是购物消费都触手可及。雅致的餐厅、定制的精品店、惬意的咖啡馆、奢华的酒吧,每一个可以描述的生活需求在这里都将成为令人满意的体验经历。
从One Balmoral出发,去仅仅乌节路购物中心仅需3分钟驾车时间或者3站巴士车站的距离,周边奢侈私人俱乐部密布(例如Pine Club,就仅仅在门前,Tanglin Club和American Club也是几分钟驾车的距离)。
One Balmoral地区同时也对有子女教育需求的家庭提供最好的教育资源,附近拥有众多著名的学校教育机构,例如Raffles Girls’ Secondary School(莱佛士女子中学),Anglo-Chinese Primary School(英华小校),Anglo-Chinese Secondary School(英华中校)和Singapore Chinese Girls’ School(新加坡女子学校)。
独特的设计理念
整体的玻璃设计象征了两幢杰出的艺术品,设计商精心的提炼打磨,让One Balmoral展现出对晶体建筑的完美演绎。几何学对钢材、玻璃上的应用更佳凸显了广阔的绿意,创建了优雅的都市静谧。这样一片都市绿洲不仅让您得以远离都市的喧嚣,而且指引着你每天归家的方向。

足不出户的极乐世界
One Balmoral入口处让您心情愉悦的瀑布和迷人的喷泉,只是众多凸显主人雍容华贵的元素之一。亲水主题的配套设施以其宽阔的泳池和精致的休息亭站成为亮点,辅之周边的点睛之笔的冲浪按摩泳池和儿童嬉戏泳池,想象置身其中,享受远离忙碌工作后的惬意。

项目内部繁茂的绿色景观,充满魅力的空中花园和柔软的绿色墙壁让您置身城市中心而不觉喧嚣。同时灵活设计的多功能室,拥有读书室和蒸汽室,为您的生活增姿添彩,想象在One Balmoral都市绿洲中享受田园风光般的诗意。

精心布局,奢侈打造
One Balmoral的布局采用标准的南北朝向设计,最大限度的扩充住户的视觉享受和微风荡漾的触觉,诠释了精致奢华的现代化项目。一些户型的私人电梯则让您更显成功人士的雍容华贵。
内部装饰方面,One Balmoral充分的采用高质量的进口装饰和高品质的建筑材质,让您笼罩在美轮美奂的One balmoral的家中。配套设施齐全的厨房则成为您制作大餐的最佳场所,卫浴间安装了欧洲大牌让生活的享受无处不在。

新加坡房地产开发先驱 – 丰隆控股
新加坡地产先驱Hong Leong Holdings Limited (HLHL) – 丰隆控股是一个拥有丰富开发经验和成功案例的开发商。
始建于1968年,作为Hong Leong Group(丰隆集团)的房产领域的投资臂膀,在新加坡已经开发多大50处的商业住宅项目,涉猎范围从中端至高端,满足各阶层投资人士的认可。其开发代表作一览:

楼盘户型简介
二居室户型:套内面积90平方米(970平方英尺)至110平方米(1186平方英尺);

三居室户型:套内面积131平方米(1412平方英尺)至215平方米(2318平方英尺);

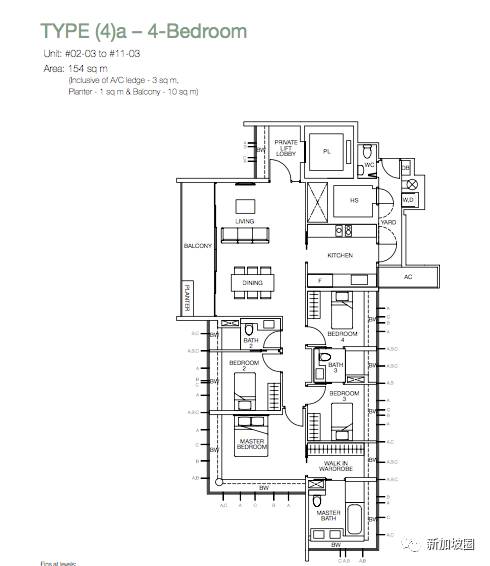
四居室户型:套内面积154平方米(1660平方英尺)至250平方米(2695平方英尺);

关于价格
三居室户型:
四居室户型:套内面积154平方米(1660平方英尺)至250平方米(2695平方英尺),平均售价2520新币每平方英尺,整套售价416万起;
关于价格
二居室户型:套内面积90平方米(970平方英尺)至110平方米(1186平方英尺),平均售价2594新币每平方英尺,整套售价243万起;起;
三居室户型:套内面积131平方米(1412平方英尺)至215平方米(2318平方英尺),平均售价2435新币每平方英尺,整套售价344万起;
四居室户型:套内面积154平方米(1660平方英尺)至250平方米(2695平方英尺),平均售价2520新币每平方英尺,整套售价416万起;
首套房银行贷款最高可达70%至80%,外国投资者可办理银行贷款。
One Balmoral,稀缺永久地契,地处新加坡黄金邮区 – 10邮区,交通便利,商业开发程度极尽完美,周边学校资源丰富。与精英为伴,享生活惬意,是您投资房产的上佳选择,。
若您对以上楼盘或者其他新加坡任何房产感兴趣,请免费联系我们的特约金牌房产经纪人吴洲,常年专业买卖全岛任何产业,开发商直接销售代理,买房无经纪费,一个电话或微信的距离,数十个楼盘数千款房产任您挑,总有一款适合您,投资新加坡房产,首付最低仅$23万新币起。

关于作者: 吴洲
金牌房产经纪人(新加坡IEA房地产经纪协会2013/2014 年度金奖得主),在获得金奖之后于同年融资$200万新币创业,跨界出任某互联网企业的首席运营官(COO),带领一个30人的团队在互联网行业打拼,高峰时期公司估值曾一度突破$1000万新币,后因项目创业失败,重新回归自己所热衷的房产经纪人行业,目前任职于新加坡本土最大产业集团担任高级营销董事。
他从业7年,秉持专业诚信,事无巨细的从业理念,迄今为止,成交完的产业总市值以过亿新币计算,服务过数百位中高端客户投资产业并获得好评,服务过的客户群体有新移民,企业家,艺人,教授学者和房地产开发商等,专业提供【新加坡任何公寓楼盘和商业地产的买卖投资服务,买私宅无任何经纪费用】,如果您有任何产业需求,欢迎买家/卖家联系我们,一通电话/微信,数十个楼盘数千款房产任您挑,我办事,您绝对放心。
联系吴洲:
电话:
新加坡:(+65)9672 8008
深圳:13148895006
微信号:peterwu99 (或长按以下二维码图片自动添加我)
政府执照号CEA Reg:R009913B
完善自我,成就他人,如果您喜欢这篇文章,请转发给您需要的朋友。
相关阅读
01
买房必读篇
重磅:新加坡 “国土”扩张史
新加坡买房看风水七大原则,看透风水选对楼房
外国人在新加坡买房基础知识普及篇
新加坡房产八大金牌投资原则!
新加坡房产投资潜力分析解读
新加坡产权交易流程详解
如何找位靠谱的房产经纪人协助您置业狮城
一线河景公寓只要$59.3万起,留学生买房也可贷款
02
公寓楼盘介绍
豪宅只付15% 即可拎包入住,一年后再付余款
投资新加坡商业地产:商业地产投资优势汇总
公寓:全岛最便宜的一室一厅公寓来了
紧挨高级优质洋房,大使馆区,与富豪为邻...
东部公寓竣工在即,售价仅$68万新币起
即将竣工的名校附近“学区房”公寓楼盘大汇总
永久地契豪宅来了,首付$30万新币起
万万想不到,首付20万起,坐拥地铁旁公寓
波东巴西地铁公寓,楼上生活,楼下逛街!
永久地契,稀缺资源,两室一厅仅$88万起
巴西立海景公寓仅$69.7万起
宏茂桥公寓两室一厅加书房仅$96万起
“学区房”— 金文泰名校楼盘御品居介绍
裕廊湖—打造“西部滨海湾”
一个值得投资的好楼盘推荐-天木园
新公寓三卧室户型仅$91万Riverbank 介绍
湖畔地铁一线湖景公寓楼盘:丽湖景介绍
后港一线河景公寓新楼盘只要$55万起...
义顺公寓雅韵轩,两室一厅$70.5万起...
盛世名园-潜力楼盘推荐($68万起)
评论