让您小孩赢在起跑线,近爱同小学和莱佛士出院,数量有限,1房78万新币起



印象汤申
项目基本信息:
总共单位:288户
占地面积:约10502平方米
公寓配套设施:标准公寓设施
最近地铁站:光明山地铁/Bright Hill MRT(建设中)
楼层:2栋19层高层单位,5栋联排别墅
交房时间:预计2018年第一个或第二个季度(不到1年时间)
参考折扣后价格:1房78万起,2房、3房已卖完
名校聚集,学区房,知名爱同小学(Ai Tong Primary),公教中学,莱福士初级学院(高中),CHIJ Nicholas小学,宏茂桥小学(AMK Primary School),Mayflower中学,父母不用担心小孩上学问题,小学到高中应有尽有. 靠近在新加坡非常受欢迎的汤申区(Thomson),周围是以有地住宅(洋房)和公寓为主

近地铁站,未来将开通Bright Hill MRT汤申地铁线,通常等地铁建好后,周边房产会增值20%左右,7站地铁可到达乌节路地铁站,12站地铁直达CBD/中央商业区,东部连接已确定新建的东海岸地铁线(请参考下图)

生活便利,靠近大型商场Thomson Plaza,Bishan Juction 8, AMK hub等,还有知名的汤申美食

娱乐休闲,如果您喜欢周末运动的话,你可以去麦里芝蓄水池或者碧山公园散步,跑步等,靠近新加坡岛屿乡村高尔夫球俱乐部.

小区靠近大自然,周边环境清静,空气清新,可以去上段皮尔斯天然公园去观赏鸟哦

项目公寓设施:
游泳池



绿意盎然的草地

客厅

主人房


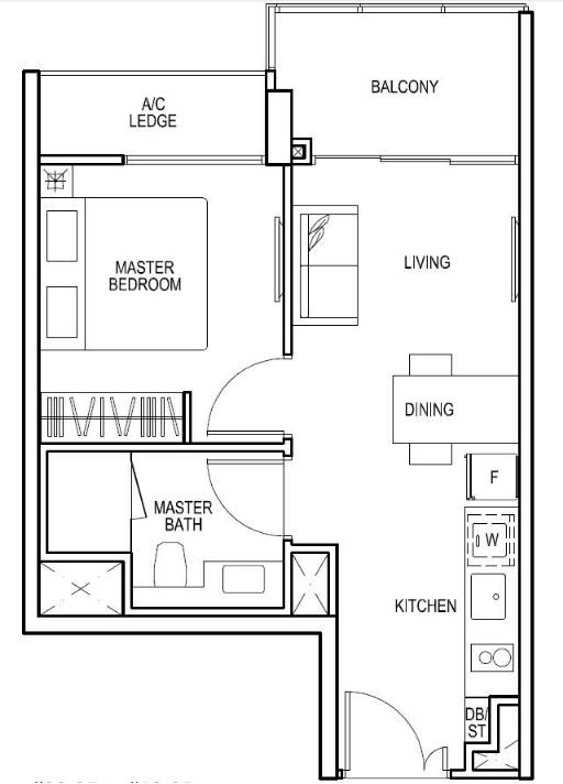
1房1厅样板户型图,43平方米,户型方正,方便家私摆放,全明通透,价格78万新币起

2房一厅户型图,65平方米,户型方正,设计合理

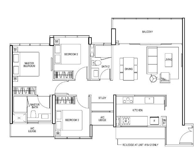
三房一厅户型图,98平方米,带一个小书房

项目总结:
项目户型设计方正,用的建筑装修材料讲究,设计漂亮,绿化率高,近新加坡知名学校爱同小学,公教中学,莱佛士初级学院等,解决有关于小孩小学到高中入学,让家长无后顾之忧,预计2019年开通的光明山(Bright Hill)地铁站后,小区巨大增值潜力,是自住和投资好选择.
微信号:zhangqiong046456 电话:93397258
作者介绍 张琼(Linda),新加坡最大房产经纪公司Huttons市场部高级董事,拥有丰富的房产行业经验,全心全意为客户考虑,以客户利益为出发点,诚信待人作为做人做事保准。不跟买家收取中介费,专车接送看房,公司代理全岛各地项目,已成功服务过企业家,商人,新移民等。一个电话过来就了解全岛各地段的项目,总有一款适合您!
协助您办理银行贷款(外国人可贷款),房屋推荐,律师咨询等,值得客户信赖的房屋经纪人。
总以专业的眼光推荐适合客户需求的房屋项目,始终客户优先.
欢迎需要买房或者卖房的朋友添加我的微信号(扫描以下二维码)

大家有什么看法,可以在底部留言告诉小编哦~
更多新加坡房产相关文章【点击文字查看】:
值得推荐:新加坡卓越地点,大巴窑公寓1房只需78.9万起,2房100.8万起 96万两房,135万可拿下新加坡三室一厅永久地契项目,预计2018年初交房 新加坡最新政府微调部分房地产降温措施全面解读!全岛各地优质商业项目介绍,低总价,外国人可直接购买,没额外印花税
让您小孩赢在起跑线,近碧山爱同小学和莱佛士出院,数量有限. 新加坡促销活动中,高文两个优质楼盘推荐,1房只需75万起,欢迎预约看房! 研究数据分析:越来越多中国人热衷来新加坡买房! 新加坡近金融区+名校+美食区优质项目推荐,1房3.2米挑高LOFT只需73.7万起,3房123.3万起
评论