武吉知马学区房,永久地契卖99年产权的价格, 全岛独此一份
一通电话或微信的距离
数十个楼盘数千款房产任您挑选,总有一款适合您,买房贷款80%。
是的,你没看错。在武吉知马这么高大上的地点,有这么一个项目,既是学区房,培华小学,美以美小学都在附近;也是地铁房,距离美世界地铁站仅需8分钟。凭窗远眺可以望见武吉知马自然保护区,风景秀丽,如诗似画,而且是准现房,马上今年第三季度就TOP啦!
最诱人的是
可以用99年产权的钱买到永久地契的房子!!!
竟然有此等好事?不信就请接着往下看吧。
当当当当,这就是今天要介绍的楼盘:
The Creek @ Bukit。有图有真相:

楼盘基本信息:

为何选择The Creek @ Bukit?
距离美世界(Beauty World) 地铁站只有不到8分钟的距离,滨海湾和市区可迅速到达。
靠近新加坡最高大上的地区:武吉知马。泛岛高速公路(PIE),武吉知马高速公路(BKE),武吉知马路三条交通要道就在附近。
与武吉知马自然保护区遥相呼应,周围众多低矮私人排屋,视线无阻挡,风景怡人,安静宜居。
永久地契,在寸土寸金的武吉知马地区实在珍贵。
周围众多学校,培华小学,美以美小学,德国欧洲国际学校等一网打尽,名副其实的学区房。
精美装修,每个单位都配备来自De Dietch, Hangsgrohe, JohnsonSuisse 的高档厨具。
购物方便,生活机能齐全。美世界中心(Beauty World Centre),武吉知马大厦(Bukit Timah Plaza),邻里商店,诊所都近在咫尺。
政府大力发展的裕廊湖区就在不远处,保证了强大的发展潜力。
诱人的价格,花99年产权的钱买永久地契的房子,这种便宜那里找?
楼盘详细分析
1
地点,地点还是地点

The Creek @ Bukit 坐落于武吉知马上段的老道德路(Toh Tuck Road)上。距离美世界地铁站(Beauty World MRT)只需步行8分钟。

这个地铁站位于滨海市区线上,这条地铁线的兴建分为3个阶段,目前第一,第二阶段已经开始运营通车,第三阶段将于今年完工。这条线从武吉班让出发,经过中央办公区和许多著名的景点比如植物园,宝门廊,海湾舫,牛车水等。第三阶段建好通车后,可以从武吉班让直接通到樟宜路上段和展览馆。有这样的一条地铁线在家门口,实在是太方便了。
工作日可以轻松上班,周末可以乘车携全家大小出游,坐上地铁不出10分钟就到了植物园,这可是公认的老少皆宜的好去处,可以带父母散步,也可以带孩子去撒欢。


20多分钟就可以到滨海湾,到金沙享受各种精致美食,去亚洲最大的植物园 ——滨海湾花园看看花花草草,或者去牛车水,逛逛夜市,带孩子去感受一下华人文化的传统和历史,想想都令人惬意。



对于驾车族来说,The Creek @ Bukit 的交通就更显得便利了。距离乌节路和金融区只有15分钟的车程。泛岛高速(PIE) 和武吉知马高速(BKE) 两条高速公路以及武吉知马路就在家门口,轻松出行,畅游八方。
2
齐全的生活机能
虽然The Creek @ Bukit 每栋楼都只有五层,但是相对于周围的住宅区来说,这个项目位于较高的地势上,这就保证了三层以上的视野毫无阻拦。站在房间可以远眺武吉知马自然保护区,满山的苍翠映入眼帘,有种人在画中游的诗情画意。
从公寓的大门出来,步行2分钟就可以到大路(Jalan Jurong Kechil)上。这一点很重要,因为大路上有商店,小贩中心和餐厅,极大方便了住户的生活。价格亲民的武吉知马小贩中心就在附近。当然,如果想要更多的购物和餐饮选择可以走一段路去美世界中心,美世界大厦,武吉知马购物中心和武吉知马大厦。驱车几分钟还可以到The Rail Mall 和The Grandstand。
对于家里有学龄儿童的小伙伴们来说,The Creek @Bukit 实在是名副其实的学区房。附近学校林立,1公里内的小学有培华小学和武吉知马小学。5公里内的学校有:
美以美小学 Methodist Girls’ Primary 克明小学 Keming Primary, 百德小学 Bukit View Primary School 百德中学 Bukit View Secondary School 德国欧洲国际学校 German European School 瑞士学校 Swiss School 荷兰学校 Hollandse School 新加坡韩国国际学校Singapore Korean International School 义安理工学院Ngee Ann Polytechnic 新加坡管理学院 SIM University
不远处的武吉知马自然公园和小桂林为热爱大自然的小伙伴们提供了假日休闲的好去处,不管是赏景,溜娃还是爬山,健身,想去都是分分钟的事。住在The Creek @ Bukit你可以看到的景色是这样滴:

3
前景好益投资
再来说说这一带的发展前景。 对于投资者来说,The Creek @ Bukit 是一个很好的投资项目。因为它将受益于政府对裕廊的开发计划。裕廊将成为新加坡第二个中央办公区,这无疑意味着更多的商家和公司将汇集于此。裕廊湖区也将发展成一个新的教育与休闲中心,这会吸引更多的年轻家庭选择来这里定居安家。这也意味着未来这一带蕴藏着巨大的商机房价和房租势必会被带动起来。The Creek @ Bukit 既靠近现有的CBD,又靠近未来的裕廊中央办公区,这个地理位置和发展前景怎么样聪明如你,还用多说吗?
4
配置好设施全

The Creek @ Bukit 的公寓设施和内部装修和家电配置堪称一流。每个单位都配有来自De Dietch, Hangsgrohe, JohnsonSuisse的高档厨具和家电。从感官上来说这个项目的楼盘沿着地势的高度依次分布开来,每一个都比前一栋要高一些,直到最后一栋坐落在最高点。公寓里靠后的地方有一个人工喷泉,制造出一种碧水环绕的优雅景致。公寓的俱乐部和亭子都建在水上,从底下打上来的灯光映着石子做的小径,整个画面颇有一番韵味。而且这些亭子都有不同的主题,日韩亭搭配着户外烧烤,意大利亭和皮萨炉相呼应,正是这些细节显示出发展商的用心和不俗的品味。
发展商更别出心裁的做出一个香草园还种了一些果树,这个可是在新加坡的公寓里极为罕见的。有小朋友的家长这下开心了,下楼就是自然科普的实验基地,这是迷迭香,那是薄荷叶,还有榴莲树,石榴树等等。小朋友可以眼手耳嘴齐上阵通过不同的感官来学习这些植物,这样贴心的发展商真要给一个大大的赞。
整个项目的规划设计十分合理,停车场都在地下,这就保持了地上的景观的完整性和连续性。除此之外,公寓还配有50米的泳池,儿童游泳池,戏水池,健身房以及各种各样的景观。图片最能说明情况:





5
价钱划算户型好
最后来说一说大家都关心的价格和户型。The Creek@ Bukit相比这一带的其他公寓实在是划算。最近靠近这个项目99年产权的一块地皮被发展商买走用来发展新的公寓,预期这个99年产权的公寓的平均尺价将卖到$1600 psf, 而The Creek@Bukit是永久地契,可是平均尺价仅有$1658psf。
以下是目前在售的户型的价格一览表:

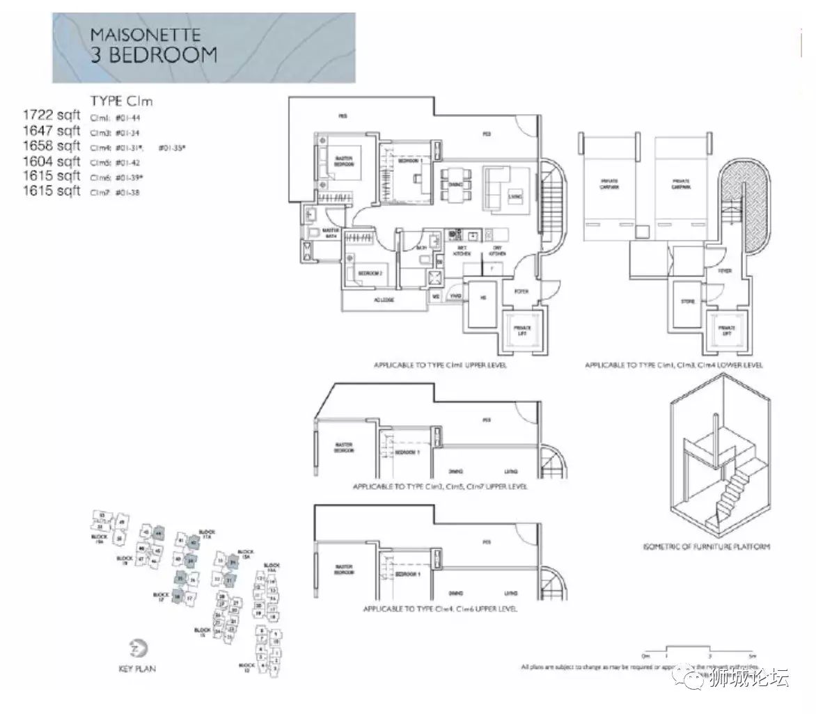
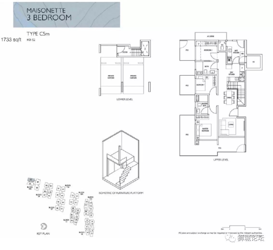
目前三卧和四卧的典型户型已经售罄,剩下的1卧,2卧,双层套房和楼顶套房还有部分可供选择。下面来看户型图:


























评论