寸土寸金的乌节路,居然也能买到freehold的家了
乌节可以说是新加坡公寓最集中的片区之一,每年都会有新楼盘开出。不过这些楼盘基本都有一个共同点:99年地契。 也可以理解,寸土寸金而且只涨不跌的地段,政府能给99年的地契已经很不错了。 但是,最近我们居然在乌节发现了一个freehold的小楼盘! 这就有点意思了,这样的黄金地段,居然还能建freehold的住宅?这样一间公寓,要卖多少钱呢? 话不多说,一起来看。
经禧的今昔
说的这个楼盘,就是位于乌节路经禧坡(Carinhill Rise)的Carinhill 16。 说到经禧坡,它的历史还要从19世纪的殖民时期说起。当时的殖民政府把乌节和经禧这片区域借给了欧洲殖民者开辟热带种植园。

一个叫做Charles Carnie的人在这里种植了4000棵肉豆蔻树,于是这个地方就被称作Carnie’s Hill,之后改成了今天的Cairnhill。 Carinhill历来就是一个聚集政要和商界领袖的地方。住在这里的名人包括实业家和慈善家陈嘉庚(Tan Kah Kee),银行家陈振传(Tan Chin Tuan)等等。

直到今天,住在Carinhill也被认为是地位和身份的象征。
经禧公寓
Carinhill 16占地面积1431.40平方米,楼高15层,仅有39个住宅单位。户型从两房式到四房式,预计2026年9月完工。

从Carinhill 16出发,步行几分钟就能到达乌节路上的各大购物中心。最靠近的就是百利宫。

往南步行可达Orchard和Somerset地铁站,往北步行可至Newton地铁站。

驾车可通过CTE去往新加坡各地。
周边设施
除了购物便利,Carinhill 16的周边设施同样完善。 新加坡顶尖的私人医院伊丽莎白医院步行可达。

2公里内有数间名校,如英华附小、新加坡女子小学、圣玛格烈小学等。

楼盘规划
Carinhill 16虽占地面积不大,但内部规划称得上小而精致。走进寓的一楼,会经过健身房、游泳池和按摩浴池。

泳池边植被茂密,适合在此放松身心,度过一个悠闲的午后。

喜欢户外,但又不想出远门,可以去到公寓顶楼的露天花园。还可以约上三五好友来一次空中BBQ。

户型选择
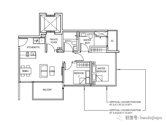
Carinhill 16有两房式、三房式和四房式三种户型,每种户型分别有2至3种房型可选。 可以选择小而美的两房式。户型方正,动静分离。


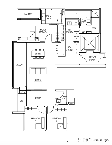
面积稍大的三房式。主卧与次卧由中间宽敞的客厅分隔开来,给两边自由空间。

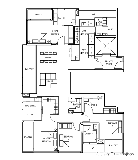
四房式空间更大,还有两个完全独立的大阳台。


最后揭晓悬念,乌节路上这样一个永久地契的家,价格在243.9万新币起。 有兴趣看房,可以联络Alvin。电话:85334652微信:Alvin_Tan_Sg电邮:[email protected]
评论