新加坡1862套的房子任我选的话,我会选鑫悦府这一套
对于新加坡买房界来说,这个月——包括明年,最重要的一个话题肯定就是鑫悦府了。
1862套房子推出市场,足以让全新加坡房市买家卖家都瞩目。
我们家也不例外。看着眼哥上一篇文章介绍鑫悦府,我们怦然心动,然后看到评论区还有网友说户型不咋样。
老公身为年轻(在这个行业,就是“穷”的意思。——家属注)建筑师,我们就去认真去挑剔了鑫悦府的户型。
我们下载了所有的户型图,从一房式到五房式,包括排屋,一共六种房型。下面又细分了各种户型,看到眼花缭乱后可以告诉你们的是:一共33个户型。
再说一下我家选户型的策略:先在2D层面选最喜欢的户型,然后进入3D层面——说人话就是选楼号和楼层,最后精准到具体的某单元。
可以说是非常严谨了(说得好像我们全部买得起一样)。
(在我们的组屋里指点1862套巨型项目户型优缺点) 首先要做的就是看平面图,这样才能对在看户型的位置和方位有一个大致的了解。我家建筑师提醒我说:撇开平面图看户型,即使户型再完美,最后也可能因为方位不对被一票否决。
从平面图上可以看出,鑫悦府正中心一个占了总面积将近一半的游泳池将9栋24层的高楼串起来,自然将户型大致分为了两类:北部朝向的看市区和泳池,南部朝向的看海。 方位了然于心,就可以在这个基础上挑户型。下面一房式到四房式,我们一个一个来说。
一房式
(向上滑动查看更多)









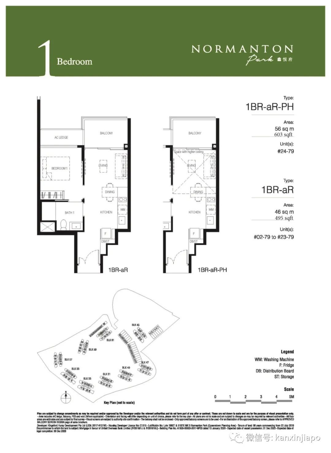
一房式共有9种户型,基本上都是看向游泳池。唯一的例外是下图标出的61号楼里的72、80和79单元,面对女皇镇方向。
这三个单元中,最好的户型是79单元的1BR-aR户型。我家建筑师的理由是:厨房位于一个封闭的区域,且厨房设备集中于一边。
80单元一进门就可以看到洗衣机在左手边,有些人可能会不习惯。这样的设计,估计是为了减小洗衣服时的噪音。
72单元的问题同样是进门就能看到洗衣机,是否喜欢这一点就因人而异了。
在所有看向游泳池方向的一房式里,最好的选择是53号楼里的36,43和44单元。从这几个单元的阳台上,可以看到游泳池的全貌。
在这几个单元中,最好的户型是53号楼44单元的1BR-Sb户型。这个户型的亮点之一在主卧。主卧除了有一个独立的衣橱空间,还有空间放下独立写字台或梳妆台。另外一个亮点在有一个面积可观的书房,如果你不需要书房也可以将它改成一个放得下双人床的卧室。相比而言,43和36单元的书房就有点小了,基本上是储藏室大小。
综上所述,一房式里最好的户型我们认为是53号楼的1BR-Sb户型。它有看向游泳池的最好视野,也有被改成二房式的潜力。
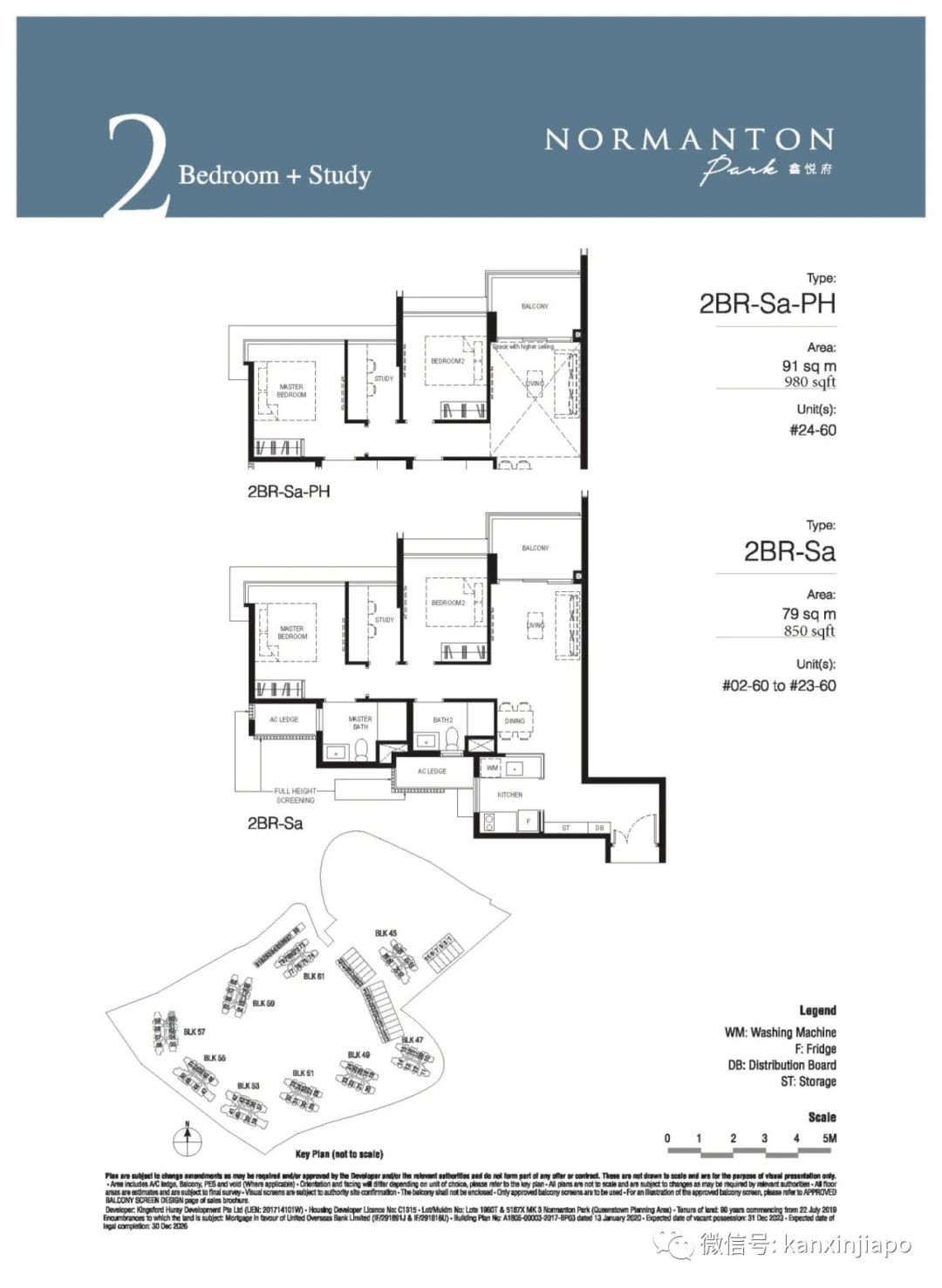
二房式
(向上滑动查看更多)














鑫悦府的特色之一就是能从卧室和客厅欣赏海景。在二房式的14种户型中,能看到海景的户型有2BR-Pa,2BR-Pb,2BR-Ca和2BR-Cb。 虽然都是看海景,但是不同的方向看到的海景也有差别。其中最优方向的海景楼是55和53号楼。其中,55号楼的48和49单元是往肯特岗公园(Kent Ridge Park)的方向看海景;53号楼的30和39单元是往巴西班让港口(Pasir Panjang Terminal)的方向看海景。
从户型上来看,最好的是55号楼的2BR-Pb户型。在平面图上,2BR-Pb和2BR-Pa的户型几乎是彼此的镜像复刻版,非顶层公寓的面积完全相同(都是68平米)。顶层公寓的面积Pb-PH比Pa-PH少了1平方米(分别是79和80平米),所以价格应该Pb-PH更便宜。 

三房式
(向上滑动查看更多)













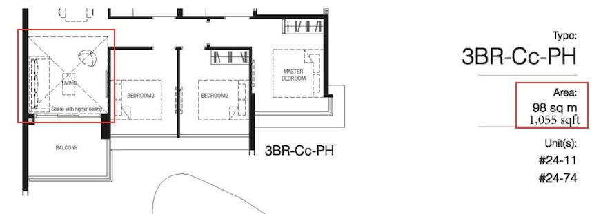
在三房式的所有户型中,47号楼的11单元是看海景最完整的单元。其他的三房式基本都朝着内部游泳池和女皇镇方向。

三房式的面积从87平米到101平米不等(顶层公寓达到了115平米),101平米的户型多出来的面积用在了更大的厨房和起居室上。另外101平米的户型(以3BR-Pa为例)大门处设置了一个小小的玄关,客厅相对凹进去一点,所以一进门不是直接就看到客厅,这对于讲究风水的人来说是很好的。

不过虽然101平米的户型更宽敞,我们仍然认为三房式里最好的户型是11单元87平米的3BR-Cc。不仅因为它看海最无遮挡,而且位于角落也有着很好的私密性。另外,87平米的面积(比二房式的68平米只多出19平米)却有三房,意味着空间得到了充分运用,对于买房者来说也是划算的。

如果要精确到户的话,11单元里最好的一户是#24-11,因为它是客厅有着两层层高的顶层公寓(penthouse)。比下面楼层多出来的11平米,不仅是面积,更是设计上的更多可能性。

四房式
(向上滑动查看更多)




鑫悦府的四房户型只有4种,因此找出最好户型相对容易。我们认为最好的是57号楼56单元的4BR-Ca户型。
这个户型4间卧室都能享受到安静的海景,而且每个房间的开窗方式也各不相同。主卧是位于角落的一个L型窗户,可以看到东南部海景;卧室4也是L型窗户,可以看到到东部海景;卧室2是一整面窗户,看到南部海景;卧室3连通阳台,可以通过阳台看到南部海景。 
结论
分析完了所有户型,我们认为最物有所值的是53号楼65平米的1BR-Sb户型,它视野开阔,不算太贵,书房也可以被改成额外的卧室。 最适合家庭生活的是47号楼87平米的3BR-Cc户型,它拥有绝佳的海景视野、通风和私密性,户型设计紧凑,最适合3到4口小家。 如果不差钱,那么可以选择57号楼的4BR-Ca户型,最好是买顶层公寓4BR-Ca-PH。这个户型顶层公寓的使用面积有125平米,包含了4间设计合理的卧室和足够大的阳台,可以看到各个方向的海景。
老公和我看了这么多户型图,指点江山畅想入住体验,简直是一个愉快的晚上,估计皇帝翻牌子的快乐也大概就是这样吧。
要说一下,别怕,最佳户型我们不会跟你们抢的!
原因很简单,就算传说中最便宜的单元,70余万新币起,我们也买不起!
卖油的娘子水梳头。遍身罗绮者,不是养蚕人。会设计房子和选房子的人,不一定买得起房子。
不过,我们还是很期待1月16号开盘当天,看看我们挑中的户型会不会第一时间被买走。
(最后放一个彩蛋,你们好奇我和老公在33个户型里有发现渣户型吗?)
– END –
评论