在新加坡,原来还隐藏着这么一类“小而美”的家
买房,不论是自住还是投资,都是人生大事。买家总是在阅“盘”无数后,才能最终选择心仪的楼盘。
在楼市里,大型的项目往往更容易吸引买家注意,比如鑫悦府(Normanton Park)最近简直炙手可热,不论买不买,关注楼盘的人没有不知道的。
(图为:鑫悦府)
但是新加坡市场上还有一种房产项目,因为规模小,一经推出市场,很多时候在内部圈子里消化得七七八八,开发商也没有花大力气宣传,所以知道的人比较有限。
如果你有一双善于发现的眼睛,就能从中“淘”到一些惊喜。
纽顿附近的斯隆公寓(Sloane Residences)就是这样一个楼盘。

斯隆公寓仅有52个限量版住宅单位,专靠“小而美”的实力圈粉无数。

斯隆公寓属于永久地契项目,预计在2023年1月完工,但就目前建设进度看,有极大的可能提前完工。

静密的生活空间
斯隆公寓位于繁华热闹的市中心,却闹中取静,有很好的私密性。限量52户,让每一位住户都能享受到独立与幽静。自然、时尚和优雅相互融合,创造了一种独特的建筑风格。
小区内有一块宽阔的草坪和伴有用餐亭的露天泳池,可以在草地上、泳池旁享受野餐的乐趣。



便捷的生活设施
斯隆公寓位于核心城市中心地带,交通便利。距离纽顿地铁站(Newtown MRT)仅700米,东北线的诺维娜地铁站(Novena MRT)和乌节地铁站(Orchard MRT)也在附近。

这样的地理位置让斯隆公寓的住户可以尽享购物的便利,步行即可到达新加坡的购物天堂乌节路,很多豪华的购物中心、国际酒店、医疗中心、咖啡馆和餐厅等都在步行可及的范围内。 
优质的名校教育
很多人为了孩子能享受到好的教育资源,不惜多次搬家至“学区房”,甚至举家出国。而居住在斯隆公寓,家长再也不用为教育问题而发愁~周围教育资源覆盖了莱佛士女子学校、新加坡女子学校、英华中学、MOE语言中心、公教初级学院等。
多样的户型选择
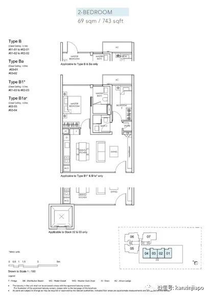
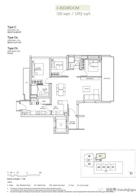
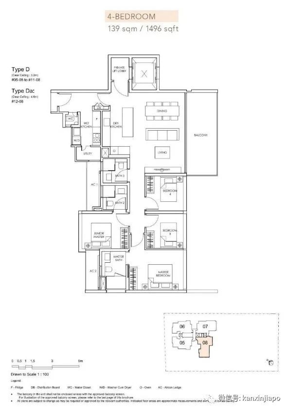
斯隆公寓有两房式、三房式和四房式等不同的户型,不同家庭的住宅需求都能得到满足。



二房式
共7套
743平方英尺
(约69平方米)


三房式
共30套
1249-1292平方英尺
(约116-120平方米)


四房式
共7套
1496平方英尺
(约139平方米)
如果向往的是独立、私密的住宅,那么这个“小而美”的斯隆公寓是个值得考虑的不错选择~ 样板房拆除在即,家具之类已经开始收起来了,但是还没有拆。我们抢救性地拍摄了样板间的介绍视频。
如果在最后时机要看房,可以联络Alvin:
电话:85334652
微信:Alvin_Tan_Sg
评论