疫情危机等于进场好机会,如何新加坡买房?150万内有哪些好盘推荐?

先来回顾2008年美国次贷引发的经济危机,导致2008年新加坡房地产交易量下跌,价格下调,量价齐降,然而到了 2009年2月开始剧情翻转,销量和价格都上涨,很多买家纷纷进场买房、新楼盘开盘热销、众多每家排队买房、发展商样板房延长营业时间到晚上12点等,如2009年2月预售新楼盘西部湖畔地铁站的Caspian、东部四美地铁站开盘的Double Bay Residence、东部靠近市区的Dakota Residence、Optima等, 买到这些项目的屋主们是幸运的,果断选择经济危机期间买房,幸运只会眷顾果断决定入场买房的人,当初一定有人手上有钱后来后悔当初没买房的人,如国内北京、上海、深圳很多人错过2005-2006年、2008-2009年、2014-2015年买房的进场好机会,有时错过就是错过了,要等下一个周期,现在新的周期来了,您会抓住吗?
每次危机都是弯道超车的机会,2003年非典后房价上涨58%,2008全球金融危机17个季度后房价上涨62%,每次危机后新加坡楼市都经历了大涨,可以参加下面一个重要的新加坡房产指数走势图,此次疫情的突然袭击,实际上可能是您可以弯道超车的绝佳机会。
从下图可以看出, 2009年Caspian开盘平均价格约$600/英尺,现在不可能有这样新楼盘价格了,在2013年到到了巅峰约$1480/英尺,然后进入下跌盘整周期,Double Bay Residence的涨势情况类似,明智的屋主应该在2013-2014年果断把房子卖出套现,然后寻找下一个投资价值的楼盘,这样您可以享受2套房子的增值,如果您的房产在处于不涨不跌的阶段,建议您该考虑卖掉换房,该如何选择下一套房产呢,可以加我文章尾端的微信号。
虽然2020年疫情危机和2008年情况不一样,但是危机同时意味着机会,对于需要买房和想投资的朋友们何尝不是进场好机会呢,为了保证楼盘的销量,发展商会更谨慎合理的定价,2020第一季度新私宅的销量其实是很不错,2月份开盘武吉士The M和 Parc Canberra EC项目销售火爆,由于政府在4月7号宣布进入“阻断期”,所以预计第二季度的销量肯定大跌,等疫情得到控制住后,房地产市场会不会出现像2009年3月份的销量价格齐反弹呢?我觉得会反弹,这段时间挤压的需求,需要买房的朋友们是觉得现在进场好,还是等疫情得到控制后买房呢?你觉得等疫情控制住后发展商会起价吗?会出现报复性消费,到时候发展商大概率是起价。很多屋主享受房价翻倍,如Caspian开盘的均价大概$600/英尺,后面在2013年上涨到约$1200/平方英尺,屋主们的平均利润约50万新币,盈利最高纪录为82.7万新币,参考下面图片为Double Bay Residence公寓真实的成交转售记录。
大家想知道接近两个月的阻断期新私宅销量如何呢?政府从4月7号开始到6月2号接近2个月的阻挡期,总共约600套新公寓卖出,2009年最低销量的月份只有109套房子卖出,那时候样板房是开放给公众的,这样的销售成绩是明显高于预期的,毕竟没有样板房可以开放看房,经纪和买家联系,都是通过现代科技如Zoom视频软件做项目介绍、电话联系、准备相关数据分析等。从下图数据分析可以看出,4月份刚开始销量不佳,5月份开始更多买家开始进场买房,销量明显增加,买家开始接受这种新的买房方式,就像如上淘宝买衣服似的,毕竟现在科技发达,可以视频沟通、线上360度看样板房等,这些都能帮助客户做出正确决定。
下面推荐两个地铁站在家门口的公寓,属于交房时间相对较快,销量佳的项目
第一个项目
英雅苑-Park Colonial
项目介绍
项目要点:· 家门口就是紫色线兀里地铁站· 政府规划开发比达达利优质组屋新区,潜在破百万组屋· 一公里内有知名的圣安德烈小学、海星小学、四德小学等· 美国斯坦福国际学校就在对面,澳洲国际学校,潜在优质租客来源· 项目对面就有将来开放的商场Woodleigh Mall,现有商场Nex Mall等· 户型包括1卧室-5卧室供您选择,适合买来自住或投资· 已经卖出接近90%的单位,买家们的眼睛是雪亮的,过硬的产品。
漂亮图片大放送,供您欣赏




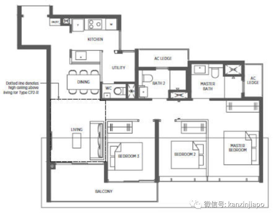
户型点评和参考价格:1房户型,43平方米/463平方英尺,开放式厨房,实用格局,带有储物空间,价格94.8万新币起
2房普通型,56平方米/603平方英尺,主人房可以直通阳台,哑铃式设计,2个房间由客厅隔开,各有隐私,价格123.8万新币起
2房豪华型,63平方米/678平方英尺,每个房间可放双人床,适合小家庭住,价格为126.4万新币起
3房普通型,91平方米/980平方英尺,主人房可以放大双人床,带小阳台挺特别,普通房可以放双人床,价格179.2万新币起
需要其他户型图和价格请添加文章尾端微信了解更多详情
第二个项目
东景苑- Parc Esta
项目要点:· 稀缺性,东景苑属于这一带大型的公寓项目· 只需三分钟步行到友诺士地铁站· 2019-2020年多次获得月销量最佳项目之一· 合理的入场价,中央边缘区居然只需15xx/英尺起· 1房-5房户型供您选择, 适合买来自住或投资· 靠近东海岸公园海岸线,新加坡宜居地区之一· 融合现代建筑设计和漂亮园林设计,将成为友诺士新地标· 靠近政府发展规划的巴耶利峇商业区,发展潜力区· 第14邮区由于靠近市区,容易出租,回报率高· 周围商场办公楼林立,生活便利· 采用高档品牌卫浴电器,品质保证 东景苑在2019-2020期间多次上榜新私宅月销量排名,销量证明一切,开盘一年多的时间就已经卖出总量的85%,过硬的产品、实用户型设计、绿化园林配套设施和上面说的项目要点都是该项目卖得好的原因,我喜欢他的2+书房、3房、4房户型设计,记得刚开盘时我职业习惯去现场踩点熟悉楼盘,项目用进口大理石地板、品牌电器、选材用料搭配起来、园林设计等,我和同事们开玩笑的说是东部版本的“玛庭豪苑”-2017年高档项目最佳销量之一。
漂亮图片大放送 





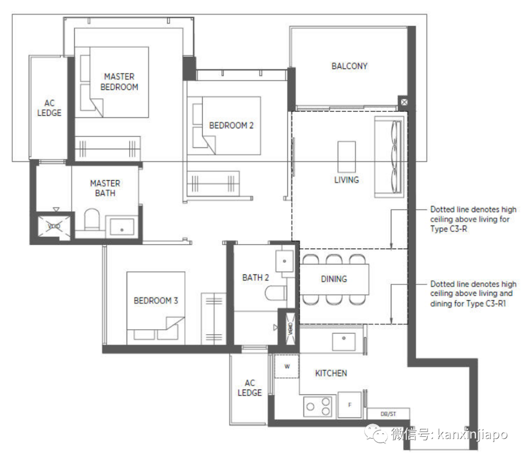
户型图介绍和参考价格,一卧室至五卧室单位一应俱全:一卧室单位,套内面积39平方米/420平方英尺起,售价81.5万新币起
两卧室单位,套内面积59平方米/635平方英尺起,售价118.7万新币起,还有其他66-69平方米户型(高楼单位,可选单位数量不多)
两卧室+书房,套内面积78平方米/840平方英尺起,售价133.3万新币起
三卧室单位,套内面积86平方米/926平方英尺起,售价142.8万新币起,
三卧室优质型,套内面积96平方米/1033平方英尺起,售价172.1万新币起,还有其他大户型三卧室、四卧室、五卧室
附注:ERA代理全岛各地60多个项目,从大众化公寓到高档公寓都有,供您选择。关于作者吴彪已入行房地产行业10年,现任职新加坡最大的地产公司之一ERA高级营销总监,新加坡股票交易所上市企业之一,多次在公司获得顶级销售奖,定居新加坡18年,熟悉中国和新加坡的国情,成交的房屋价值高达新币上亿元,服务过数百位中高档客户,广受客户们好评。包括企业家、企业高管、中小型公司老板、房地产发展商、新移民、教授、医生等等。熟悉私人公寓、商业地产、组屋交易流程,协助顾客办理好贷款、律师办理手续一条龙服务等,提供新加坡任何公寓楼盘和商业地产买卖投资服务,买私宅无任何经纪费用。ERA Plush会员(经过公司严格挑选,服务过高净值客户)买卖房产是专业的事情,专业的事情找专业的经纪做。深入研究新加坡房地产市场,真诚待人,通晓中英双语,善于沟通。感谢各位客户朋友的支持,提供诚意十足、细心周到的服务,收到客户们的广泛好评,服务好客户是我的最重要原则,欢迎买家或卖家联系我。微信号:zhangqiong046456 电话:65-93397258微信号:297264931 电话:65-91525858公众号:新加坡通(新加坡房产资讯、政策解读更新等) 
评论