实名羡慕!现实版的梦游仙境,你家有吗
人们总以为时间是一个小偷,偷走了我们所爱的一切。但,时间是先给予再拿走,每天都是一份礼物,每小时,每一分,每一秒。
——《爱丽丝梦游仙境》
一部《爱丽丝梦游仙境》,梦幻的森林之境、奇特的场景,成了无数人的梦想和幻想。
梦里,我有一座花园,它漂浮在空中,带着我的梦,到达每一个我想要去的地方。拥有一处花园里的家,是人们心中的向往;闲听、慢步、静思、雅座……一种饱含诗意与艺术的生活哲学,就这样在美丽的花园里与你相伴。

时代在发展,越来越多的人住到了城市里,离购物街近了,离车水马龙近了,却离花草植被远了。
在新加坡,就有这样一个地方予你心灵深处的愉悦。当心累了倦了,在那一抹花红草绿中释放身心;闭目养神,任轻风拂过脸颊,仿佛置身大自然的怀抱里,说不出的惬意。


The Garden Residences,一处生长在花园里的家,每日与花园为邻,清风相伴,被誉为“新加坡最美花园住区”。

走进The Garden Residences,里面别有洞天,简直就是个秘密花园。各种鲜花团簇、绿植掩映……像极了一座秘密花园城堡。源于美丽花园的自然秘境,这独有一方的静谧之地不禁让人流连忘返。

《爱丽丝梦游仙境》里的下午茶场景,让每个看过影片的人都记忆犹新。在The Garden Residences,同样上演着一场梦游仙境的故事;当与三五好友相聚,美味的点心,精致的茶器,香醇的花茶,还有令人神往的自然风光,就是最好的享受。

除此之外,这里每天都可以体验不同的休闲设施,包括游泳池、水疗馆、温泉、健身走道、24小时健身房、宠物专属空间等,无论夫妻、小孩、父母…足不出户就能尽享娱乐休闲。

以梦为马,不负韶华,珍惜就在当下。The Garden Residences位于新加坡第十九邮区后港区——实龙岗北1道,俯瞰实龙岗花园,地理位置优越,交通便捷,生活配套醇熟,由知名房企吉宝置业与永泰亚洲联手打造,是绿色住宅和高科技住宅的现代人居典范。
从项目步行直达Chomp Chomp美食中心、实龙岗花园和myVillage 购物商场等繁华商圈,待地铁跨岛线开通后,这里的居民将直接受惠,出行更加便捷。



地铁跨岛线途径实龙岗北站
珍贵的是时间,无价的是生活方式。The Garden Residences一座市中心的梦幻之境,难得且珍贵。目前,项目热销单位仅$1413psf起,仅为献给向往静谧生活的你。
嘉和馨苑户型鉴赏
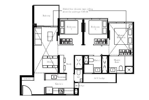
3+书房户型图

3+书房样板间实景图


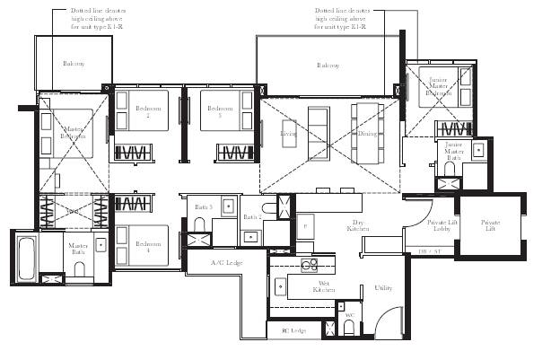
5+房户型图

5+房样板间实景图


项目信息
项目名:嘉和馨苑
地址:新加坡第十九邮区后港区—实龙岗北1道
总套数:613套单位(1栋14层和4栋15层的楼组成)
户型:1卧房—5卧房
面积:450平方尺—1,981平方尺
容积率:2.5
交房日期:2021年
地契:99年
评论