光线、绿植、木材刻画新加坡独立住宅生活方式


由HYLA建筑事务所在新加坡设计的一栋三层的住宅迎来了其居住者的入住,该住宅包含有一个游泳池,其四周被郁郁葱葱的绿色植物所环绕。一道通向客房与健身房的巨大螺旋楼梯伫立在游泳池上方。一道玻璃桥轻巧地跨越水面通向客厅,以此延长了入口,强调了入口空间在房子整体设计中的重要性。住宅其余部分的设计灵感也来自于同样的场景,主要的生活空间通过光线、绿色植物以及木材来重点刻画。

“该住宅是一个由两片墙限定的长形盒子,在住宅的前端我们将一个两层通高的半封闭院落作为设计的开始”,设计团队解释说:“我们将游泳池安置在这里,并创造了一个戏剧性的入口空间。一座玻璃桥跨越泳池,将人们引导至微微升高的生活区。通过这种做法,住宅拥有了一个重点区域,该做法既能让主要活动区的人看到,又能保证住宅的私密性。此外,这样的作法还让主要活动区远离道路和来自房屋前方的噪音。”










↑地下室平面图

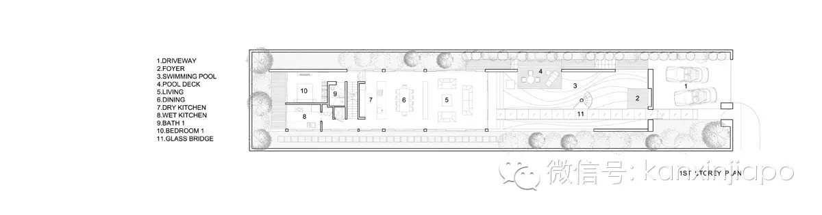
↑一层平面图

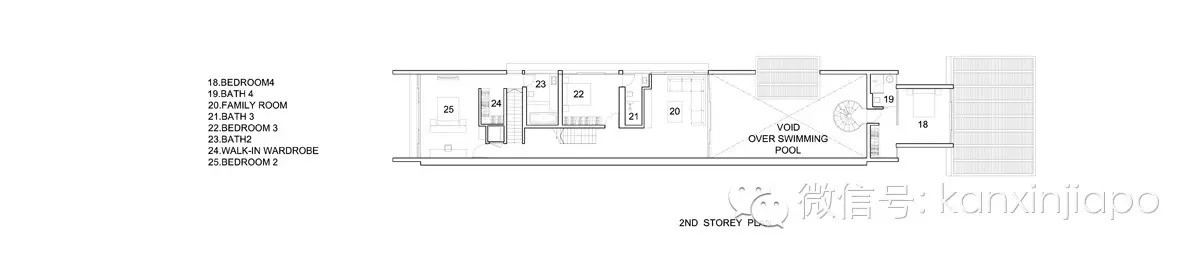
↑二层平面图

↑三层平面图

↑剖面图

↑立面图

↑立面图

↑立面图
项目信息项目名称:水上之桥住宅
项目位置:新加坡,jalan angjin laut
建筑面积:582.14平方米
用地面积:513.7平方米
建筑层数:3层+地下室
翻译:建筑学院-雪狼
(*本文由designboom设计邦授权提供,『建筑学院』进行翻译编辑)
评论