淡滨尼Santorini和裕廊东Vision exchange

新私宅楼盘Santorini condo今日推出Preview。在淡滨尼,近TP,勿落蓄水池,圣希儿达小学。一卧两卧三卧双钥匙单位,99年契。估计$1100-1200psf。
此外同在今日推出的还有Jurong East地铁站旁99年Strata商业楼盘vision exchange。no absd, no ssd,方便转手,投资良机。
如果有网友想看showflat,请搜索微信号“xinjiapoyan”,加新加坡眼普通账号以咨询详情。
私宅楼盘Santorini condo效果图




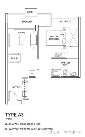
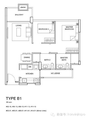
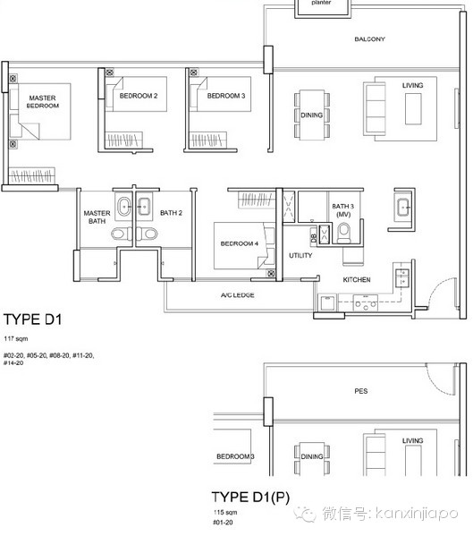
私宅楼盘Santorini condo部分户型设计图





私宅楼盘Santorini condo Preview实拍图







Jurong East地铁站旁99年Strata商业楼盘vision exchange同样也在今日推出。no absd, no ssd,方便转手,投资良机。
Vision exchange项目详情
Project NameVision ExchangeAddress2 Venture Drive, Singapore 608526DeveloperSim Lian JV (Vision) Pte LtdProperty DescriptionProposed 25-Storey Office Tower with Retail PodiumMaster Plan ZoningCommercialTenureLeasehold 99 yearsDevelopment Type640 Offices (41 – 157sqm) 47 Restaurants (28 – 95sqm) 53 Medical Clinics (17 – 108sqm)Air-ConditioningIndividual fan coil unit served by central chilled water systemExpected TOPTo Be AdviseExpected CompletionTo Be AdviseTechnical SpecificationsRestaurantStructural Floor to Floor Height1st Floor – 6.95m 2nd Floor – 5.0mFloor Loading10 kN/m2Electrical Supply100/150 Amps – 3 PhaseMedical SuiteStructural Floor to Floor Height1st Floor – 6.95m 2nd Floor – 5.0mFloor Loading10 kN/m2Electrical Supply60/100 Amps – 3 PhaseOfficeStructural Floor to Floor Height6th – 24th Floor – 4.5m 25th Floor – 6.0mFloor Loading6th – 24th Floor – 5kN/m2 25th Floor – 10kN/m2Electrical Supply60/100 Amps – 3 Phase
Vision exchange位置示意

Vision exchange平面图


如果有网友想看showflat,请搜索微信号“xinjiapoyan”,加新加坡眼普通账号以咨询详情。
免费房地产市价估算网络工具
近日新加坡房地产联合交易网,推出免费网络工具,帮助买家和卖家估算房地产的市场价值。在这个名为X价值(X-Value)的平台上,公众只需输入公寓或组屋的地址、门牌、屋型等基本信息,系统就会估算出房屋当下的市场价值。
新加坡房地产联合交易网(SRX)联合创办人兼总裁贝克希望这个免费的估价工具,能为买卖双方在商议价格前提供参考。
国家发展部近日宣布,调整转售组屋的估价索取程序,买卖双方得先商讨价格、签署选购权书,再由买家向建屋局申请索取估价。建屋局则开始每天公布已登记的组屋转售交易价,好让买卖双方在商议售价前,获得最即时的市场信息。
贝克指出,这项调整生效后,有买家担心,他们在不知道估价的情况下商议售价,可能导致最终需要支付的现金高于预算。他说,买家可以利用X价值网络估算工具,计算房屋的市场价值,作为商议价格的起点,同时用它来估算得预留多少现金。
SRX联合创办人兼首席技术执行员李俊旸介绍,公司花了一年时间开发的这个价格估算系统是利用周边房地产过往交易的价格数据、市场走势和个别单位的特征等元素,估算单位的市场价格。在数据方面,除了SRX本身收集的交易信息,系统也参考市区重建局和建屋局收录的交易资料。SRX目前收集本地超过85%的房屋交易信息。
李俊旸说:“这个系统利用多变量回归(multivariate regression)方法估算房地产价值,以周围类似交易为参考,考虑各种可能影响房屋价格的因素,例如楼层、面积、屋龄、与地铁站距离、周边是否有学校等。”系统计算出来的价值虽不能取代估价师的评估,但他相信,估算还是能给市场提供非常有参考价值的预测。
博纳产业首席执行长林永富认为,这个网络工具来得非常及时。“转售组屋估价索取程序改变后,很多人不确定商定的价位是否正确,虽然这不是真正的估价,但是能给公众一个大概的指示。有了这些数据,买家交易时会更放心。”
评论