紧随政府规划,2019年最值得投资的楼盘
摘要
南峰雅苑(Avenue South Residence)位于第D03邮区的欧南园区(Outram),属于新加坡市区边缘RCR区,也是距离市区最近的地段。公寓坐落在石叻道(Silat Avenue)和甘榜巴鲁路(Kampong Bahru Road)的交界处,靠近甘榜巴鲁铁道走廊(Rail Corridor),是与走廊协同发展的一部分。
南峰雅苑(Avenue South Residence)由3家本地著名的开发商华业集团(UOL Group),联合工业有限公司(United Industrial Corporation Limited)和庆隆公司(Kheng Leong)联合开发。将建造2栋56层楼高摩天大楼和5栋4层楼高的保留建筑。建筑物的最高处距离平均海平面高出200米。
南峰雅苑(Avenue South Residence)单位共分为三个类别,包括378套第37至56层的Peak Collection、610套第3至35层的Horizon Collection,以及86套保留建筑内的Heritage Collection。公寓提供1,074套私宅单位,6间商铺和1间托儿所。户型包括242套一卧室、502套两卧室、220套三卧室、102套四卧室和8套阁楼单元,单位面积介于44-155平方米(527-1,668平方尺)。公寓位于名校(圣婴女校)附近,教育资源丰富;属大型综合项目,设施多样化,配备幼儿园;公寓附近交通方便,并提供前往欧南园地铁站的穿梭巴士服务。
前言
在美国纽约市曼哈顿,有一个弃用的纽约中央铁路西区线,自肉库区甘斯沃尔特街(Gansevoort Street)穿过切尔西,一直延伸到西区广场。2006年开始对这段废弃铁路进行再开发,在2009年、2011年和2014年分三阶段完工。这就是纽约市曼哈顿的高线公园(High Line) 或空中铁道公园,这座公园建在高架桥上,长达2.33公里,设计理念来自法国巴黎的绿荫步道。这个公园的开发每年吸引着数以百万计的游客来参观,振兴了公园附近的房价。据估计,沿线一带的房产价位比周边价位上涨了10个百分点。根据房地产网站StreetEasy的报告,这叫空中铁道公园的“光环效应”(Halo Effect)。
无独有二,新加坡正在重建属于本地的高线公园,叫铁道走廊(Rail Corridor),和纽约的高线公园一样,新加坡的铁道走廊也是由废弃的铁路改建而成,同样具有历史意义。
据报道,走廊的设计将与历史文化、生物多样性与绿意及休闲紧密结合,让民众在欣赏绿意、休闲娱乐时也可感受历史、崇尚自然。铁道走廊总计24公里,是纽约高线公园的10倍,沿途将增设本地首座大型空中公园、夜光小径和其它一些休闲娱乐设施。
新加坡总理李显龙于2016年参观高线公园后指出,铁道走廊的发展也可参考高线公园,他在面簿帖文中说:“高线公园让我们看到废弃的老地方也能获保留及注入新生命,它也让我们对铁道走廊产生不少新想法”。据报道,铁道走廊的开发,将让沿途居住或工作的约100万人只需步行五分钟,即可抵达铁道走廊,享受绿意、感受历史。
可以预期,铁道走廊四周的房产将和纽约的高线公园一样,具有更高的增值空间。这里就为朋友们推荐一栋大型公寓项目,南峰雅苑(Avenue South Residence)。该公寓位于甘榜峇鲁一带的铁道走廊附近,将与铁道走廊的建设协调开发。

纽约高线公园(左)和南峰雅苑(Avenue South Residence)附近的铁道走廊(右)

铁道走廊总蓝图
楼盘精华分析
位于铁道走廊附近,具有“光环效应”(Halo Effect),增值潜能大;
由3家本地著名的发展商开发,有信誉和质量保证;
位于名校(圣婴女校)附近,教育资源丰富;
大型综合项目,设施多样化,配备幼儿园;
南部濒水区门前的大型私宅项目;
最高达56层,高于海平面200米,高楼无遮挡全景天际线;
酒店式礼宾服务,提供前往欧南园地铁站的穿梭巴士服务;
首批买家享有更吸引人的价位;
南峰雅苑(Avenue South Residence)
位于市区边缘黄金地段
南峰雅苑(Avenue South Residence)位于第D03邮区的欧南园区(Outram),属于新加坡市区边缘RCR区。公寓坐落在石叻道(Silat Avenue)和甘榜巴鲁路(Kampong Bahru Road)的交界处,靠近甘榜巴鲁铁道走廊(Rail Corridor),是与走廊协同发展的一部分。

南峰雅苑(Avenue South Residence)位于南部濒水地区的门口
南峰雅苑(Avenue South Residence)距离中峇鲁广场(Tiong Bahru Plaza)不远。这是一间具有历史意义的商场,内设各式各样的零售商店,食阁、超市和电影院。居民若想购买新鲜的蔬菜、水果和肉类,则可前往附近的大牌112惹兰红山巴刹与熟食中心(112 Jalan Bukit Merah Market and Food Centre),那里还可以品尝到美味而又经济实惠的本地美食。

南峰雅苑(Avenue South Residence)效果图
公寓也提供到欧南园地铁站的穿梭巴士,这样,居民可以到牛车水一带去购物、娱乐和享用美食。牛车水是老牌的购物区,附近的商场包括珍珠坊(People’s Park Complex)、牛车水大厦(Chinatown Complex)、幸运牛车水(Lucky Chinatown)、奥奇珍珠坊(OG People’s Park)、珍珠大厦(People’s Park Centre)、唐城坊(Chinatown Point)、市中广场(Central Square)、中央广场(Central Mall)和河滨坊(Riverside Point)等,居民可以在这里尽情享受,购物、娱乐和享用美食。附近还有多家著名的熟食中心,如牛车水巴刹与熟食中心(Chinatown Market)、珍珠坊熟食中心(People’s Park Food Centre)、麦士威熟食中心(Maxwell Food Centre)和厦门街小贩中心(Amoy Street Food Centre)等。这里可以购物美食一整天,再美美地坐上穿梭巴士回公寓。

南峰雅苑(Avenue South Residence)附近的中峇鲁广场
最靠近南峰雅苑(Avenue South Residence)的地铁站是欧南园地铁转换站(Outram Park MRT)。居民可以乘坐附近的巴士或公寓配备的穿梭巴士前往该地铁站。欧南园地铁转换站是一个大站,共营运3条地铁线,包括东西线(East West Line)、东北线(North East Line)和汤申-东海岸地铁线(Thomson-East Coast Line,2021年通车)。公寓附近200米范围内还有多趟巴士路线,如61、124、143和166等,通往全岛各地。南峰雅苑(Avenue South Residence)也非常靠近中央高速公路(CTE)和亚逸拉惹高速公路(AYE),5分钟车程抵达中央商业区(CBD),10分钟抵达乌节路购物商圈。
教育资源近在咫尺
教育资源是购买、投资房产的重要考量因素。
年轻妈妈关心幼儿园,而公寓附近1公里范围内就有5所幼儿园,2公里范围内还有另外5所,公寓内也将建造一间幼儿园,让妈妈们有足够多的选择。小学则被认为是至关重要的,因为许多小学名额是按居住距离分配的。而附近小学的数量则能决定家中孩子是否可以顺利就近就学。
南峰雅苑(Avenue South Residence)附近的政府小学有圣婴女校(客洛)(CHIJ Primary School,Kellock)、拉丁马士小学(Radin Mas Primary School)、彰德小学(Zhangde Primary School) 、康达小学(Cantonment Primary School)、(Alexandra Primary School)和颜永成小学(Gan Eng Seng Primary School)。雅德小学附近的中学包括圣婴德兰中学(CHIJ Saint Theresa’s Convent)、欧南中学(Outram Secondary School)、达善中学(Henderson Secondary School)和颜永成中学(Gan Eng Seng Secondary School)。
除了中小学,公寓旁边还有杜克-新加坡国立大学医学院(Duke-NUS Graduate Medical School),再远一点就是新加坡营销学院(Marketing Institute of Singapore)。此外,一公里范围内还有一间国际学校Shelton College International。
可见,南峰雅苑附近的教育资源可以满足各年龄层居民的要求,而附近的众多小学也让外国买家有机会让自己的孩子进入政府小学就读。

南峰雅苑(Avenue South Residence)附近的名校圣婴女校(客洛)
南部濒水区首个大型公寓项目
新加坡南部濒水地区(Greater Southern Waterfront)覆蓋我国南部海岸线30公里,从滨海东花园一直延伸至巴西班让,面积约2000公顷,是滨海湾的六倍,相当于两个榜鹅新镇。
该地区将打造为集居住、工作与休闲于一体的“滨海榜鹅”,而现有的岌巴俱乐部将兴建约9000个住宅单位。布拉尼码头将于2027年迁至大士,届时将与圣淘沙岛一起重新开发成新的旅游景点,同时现有的圣淘沙岛将进一步扩建,如建造更大的自然和历史走道,并与铁道走廊相通。
政府也将在南部濒水地区建造类似于丰树商业城(Mapletree Business City)的办公设施,以带来更多就业机会。长远来看,南部濒水地区的发展将加快中央商业区的“去中心化”(decentralization)进程,并有可能发展成范围更大、更具商业活力的“中央商业廊道”(Central Business Coast)。
南峰雅苑(Avenue South Residence)的地理位置将这栋公寓推上了南部濒水地区开发的最直接受益者,被称为南部濒水地区门前的首个大型私宅项目。

南峰雅苑(Avenue South Residence)附近的南部濒水地区发展蓝图
价位分析和增值潜能
新加坡私人住宅价位在政府9轮降温措施后已趋向稳定,但总趋势依旧是上涨的。今年第二季出炉的全岛房地产价格指数已达150.8,是自2014年5年来的新高。
在新加坡,豪宅交易时有发生,而今年似乎变频密了。如“法拉利太太”购买了S$5200万新币的豪宅、戴森创始人詹姆士以S$4100万新币购得一栋位于古鲁尼路的优质洋房,而最近又创下了S$2.3亿新币的优质洋房交易记录。可见,新加坡是房地产交易的黄金国家,许多房产是值得投资的。
由于发展商标得的地价不断上涨,新私宅的价位不可能下跌,加上这几年由于整体重建卖家所形成的购买群体,将进一步推高新私宅价位。
南峰雅苑(Avenue South Residence)位于南部濒水地区的门口,是RCR区中最靠近市区的地段,又位于铁道走廊旁边。同时,这栋公寓也将成为附近的新地标。这样,这栋公寓将享有至少4个光环。其“光环效应”(Halo Effect)将是倍增的,因而其升值潜能是不言而喻的。
南峰雅苑(Avenue South Residence)的土地价是S$1,138 psfppr。估计的发展商收支平衡价是每平方尺S$1,730。消息来源称,发展商将先推出其中的300个单位,其中有超过一半单元,其售价低于S$150万新币,尺价最低为S$1,689,低于收支平衡价。发展商透露,公司将以较具竞争力的价格,甚至有些单元低于收支平衡价推出,以吸引首批买家。但在推出第二阶段销售时,不排除价位上调,就像The Tre Ver和Amber 45等公寓的销售情况一样。
公寓附近有3栋私宅的价位可供参考。一个是Riviere,平均尺价S$2,900新币(S$2,720-S$3,305);另一个是One Pearl Bank,平均尺价S$2,400新币(S$2,065-S$2,875);第3栋是Sky Everton,平均尺价S$2,600新币(S$2,053-S$2,895)。比较可知,南峰雅苑的售价有相当的优势,增值潜能也就更高了。
另外,由于其优越的地理位置,以及今后的南部濒水地区的开发潜力,将制造越来越多的就业机会,加上9,000套住宅单元的兴建,必将进一步激活这一带的经济,带来更好的租金回报率。由此看来,买家还是需要乘早进场,以获得最佳投资增值效益。
南峰雅苑(Avenue South Residence)
将是一个天际新地标
南峰雅苑(Avenue South Residence)由3家本地著名的开发商华业集团(UOL Group),联合工业有限公司(United Industrial Corporation Limited)和庆隆公司(Kheng Leong)联合开发。在去年5月以唯一竞标方标下南峰雅苑地段,标价为S$10亿3530万新元,尺价相当于S$1,138新元。
UOL是新加坡的一个领先的上市房产公司,荣获FIABCI Prix卓越奖,Aga Khan城市建筑奖、土地研究所奖和卓越与总统设计奖等。UIC也是一家上市公司,集团的物业组合包括一些新加坡最知名的商业和零售地标,海外投资包括中国上海、北京和天津,以及英国伦敦等。庆隆公司成立于1949年,已发展成为一个房地产开发和投资集团公司,业务横跨亚太地区,包括上海、香港、雪梨、伦敦和洛杉矶等。

南峰雅苑(Avenue South Residence)一览众山小
南峰雅苑(Avenue South Residence)将建造2栋56层楼高摩天大楼和5栋4层楼高的保留建筑。建筑物的最高处距离平均海平面高出200米。四周并无太多高楼建筑,只有3栋11层和1栋25层楼高建筑。因此,站在高处,使所有附近的建筑相形见绌,居民可享受畅通无阻的视野,可谓一览众山小。高层住户也因此享受无尽的终极隐私。也正是如此,南峰雅苑将成为这一带的新路标。

南峰雅苑(Avenue South Residence)美食俱乐部
南峰雅苑(Avenue South Residence)单位共分为三个类别,包括378套第37至56层的Peak Collection、610套第3至35层的Horizon Collection,以及86套保留建筑内的Heritage Collection。

南峰雅苑(Avenue South Residence)俱乐部一角
Peak Collection享受奢侈的高度,满满的自然景观,无与伦比的景致,双塔建筑闪烁著耀眼的光芒,位于36层的空中花园让居民们拥抱绿色和健康的生活方式。
瞧瞧那热带建筑的元素,如阳台、窗户、壁架和木色遮阳屏幕,徒增质感,这是对高层建筑的未来主义风格的刻意追求。Horizon Collection可以有33层的选择,满足各种渴求的人士,依然可以站在更高处欣赏东南亚美丽的景观。
而喜欢历史的朋友,则提供了另一种选择,那就是Heritage Collection。这是建筑收藏、现场工作套房。该遗址上的五座历史建筑已经修复,具有适应性的布局,提供了灵活多样的工作和生活方式类别供选择。
公寓将在第56层建造4个多功能厅供所有居民享用。公寓还将建造18个空中花园,这些花园位于第14、24、36、44和52层,每一个花园都有各自的特色,体现生物多样性,富有层次感和优雅感。如第14层有蕨类植物花园、苔藓类花园等;24层有静思花园(Meditation garden)、宁静花园(Serenity garden)等。

南峰雅苑(Avenue South Residence)云俱乐部
南峰雅苑(Avenue South Residence)的所有单元均铺设大理石地板和专为公寓设计的卧室木地板。公寓采用De Dietrich厨房用具(Gaggenau for Peak)、汉斯格雅(Hansgrohe)和Duravit的卫浴设施(Laufen for Peak),让整个单元豪华化、品牌化、人性化、舒适化。

南峰雅苑(Avenue South Residence)健身房

南峰雅苑(Avenue South Residence)的天际泳池

南峰雅苑(Avenue South Residence)的小孩游乐场
室内设计和雅居欣赏
南峰雅苑(Avenue South Residence)公寓拥有99年地契,占地约22,852平方米(245,972平方尺),将建造2栋56层高的建筑,距平均海平面高200米,依然比达士岭摩天组屋高,也将是欧南园区的最高住宅建筑之一,以及5栋4层楼高历史保留建筑。公寓提供1,074套私宅单位,6间商铺和1间托儿所。户型包括242套一卧室、502套两卧室、220套三卧室、102套四卧室和8套阁楼单元,单位面积介于44-155平方米(527-1,668平方尺)。

一卧室,套内面积44-49平方米(474-527平方尺),整套售价从S$858,000元(Heritage)、S$970,000元(Horizon)和S$1,195,000(Peak)元起。特点是户型方方正正,餐厅、客厅和厨房整合在一起,无浪费空间,卧室配备衣柜,并有一个大小合适的阳台。拥有私人电梯。这样的户型非常适合夫妻情侣享受二人世界,也很适合有个小孩的夫妻,以及专业人士和学生。除了自住,也适合出租给高端专业人士。

南峰雅苑(Avenue South Residence)一卧室户型图

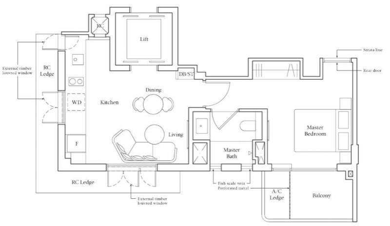
二卧室,套内面积60-75平方米(646–807平方尺),整套售价从S$1,150,000元(Heritage)、S$1,190,000元(Horizon)和S$1,474,000(Peak)元起。特点是户型方方正正,餐厅、客厅和厨房整合在一起,布局合理,无浪费空间。有些二卧室单元配备2个开发式阳台,而有些则配备1给全封闭式阳台。主卧室可放置King Size的大床,配备衣柜,普通房也可放置双人床。拥有私人电梯。这样的户型非常适合有个小孩的夫妻,以及专业人士和学生,也适合喜欢与父母同住的年轻夫妇。除了自住,也适合出租给相应的高端专业人士。

南峰雅苑(Avenue South Residence)二卧室户型图
三卧室,套内面积87-103平方米(936–1109平方尺)。整套售价从S$1,600,000元(Heritage)、S$1,700,000元(Horizon)和S$2,064,000(Peak)元起。三卧室拥有非常好的景观和视野,让人心旷神怡,特别是位于高层的Peak套房。共同特点是,户型方方正正,主卧室可放置King Size的大床,配备内置衣柜,其余两间普通房也可放置双人床。拥有私人电梯。厨房、餐厅与客厅相对独立。有些3卧室配备2个开发式阳台,而又些3卧室配备全封闭式阳台。这种房型特别适合有2个小孩的夫妻,以及专业人士和学生,或出租给相关高端专业人士。

南峰雅苑(Avenue South Residence)三卧室户型图
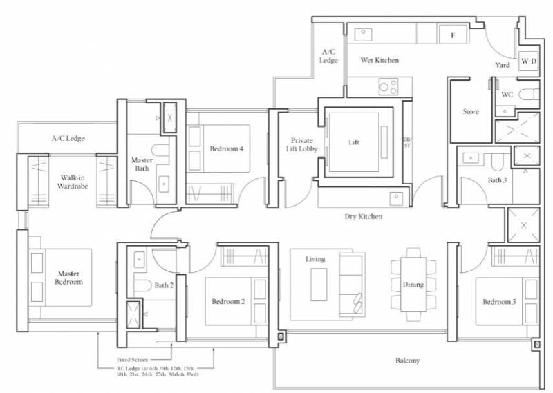
四卧室,套内面积139平方米(1,496平方尺)。整套售价从S$2,265,000元(Horizon)和S$3,216,000(Peak)元起。四卧室户型方方正正,所有房间均配备内置衣柜。厨房相对独立,干湿厨房完全分开,还有储藏间,餐厅与客厅共享空间,并配备阳台。拥有私人电梯并配备私人候梯室。主人房可放置King Size的大床,并配备阳台,其余三间普通房也可放置双人床。三间普通房中有一间是准主人房,拥有独立的卫生间。这种房型特别适合有二三个小孩的夫妻,或与父母同住的家庭以及出租给相关高端专业人士。

南峰雅苑(Avenue South Residence)四卧室户型图

南峰雅苑(Avenue South Residence)位于RCR区,是RCR区中最靠近市区的地段,享受CCR区的待遇。公寓位于南部濒水地区的门口,是未来新中央商业区前哨,是南部濒水区前的首个大型私宅项目;公寓又位于铁道走廊旁边,成为走廊重新发展的一部分。作为一个56层楼高,高出海平面200米的双塔建筑,加上独特的结合大自然杰作,必将成为附近的新地标。
这样,这栋公寓将享有至少4个光环。其“光环效应”(Halo Effect)将是倍增的,因而其升值潜能是不言而喻的。前段时间南峰雅苑的首个预览活动吸引了超过4,500人前去参观,可以预见其销售的火爆。
在首批销售活动中,发展商将只推出300套供选购,其中有一半的单位的售价将不超过S$150万新元。发展商透露,公司将以较具竞争力的价格,甚至有些单元低于收支平衡价推出,以吸引首批买家。但在推出第二阶段销售时,不排除价位上调,就像The Tre Ver和Amber 45等公寓的销售情况一样。
评论