承包了金沙、星耀樟宜的他,在乌节路搞了个新地标!

最近,不论是不是建筑界的人,都被新加坡即将在4月17日开放的星耀樟宜(Jewel Changi Airport)刷屏!

耗资17亿新币的它集休闲娱乐设施、酒店、购物、餐饮于一身。更令人叹为观止的是五层楼高的世界最大室内瀑布:

星耀樟宜是由全球最顶级设计师莫瑟. 萨夫迪(Moshe Safdie)设计的,他在2019年荣获沃尔夫建筑大奖,这可是建筑界的“诺贝尔奖”啊~

除了即将成为新加坡新地标的星耀樟宜,已经成为新加坡“代言人”的金沙酒店,还有附近的“大莲花”艺术科学博物馆、LV水晶岛,都是萨夫迪的杰作!

现在,萨夫迪联手新加坡城市发展集团(CDL),在寸土寸金的乌节路附近又创造了一个新地标——铂瑞雅居 88 Boulevard!

看这衔接双塔的空中花园,还有无边泳池,简直金沙翻版,可谓是标准的萨夫迪style,绝对亲生的~

▲(健身房也在顶楼,跑着步赏夜景的体验好特别~)
乌节路上的典藏绝版
新加坡的乌节路被封为世界十大购物街之一,和纽约的第五大道、巴黎的香榭丽舍大街、东京的银座齐名,欧美大牌的密集度堪称世界第一!

而铂瑞雅居就坐落在乌节路商圈的核心地带乌节路林荫道(Orchard Boulevard),距离乌节路地铁站仅375米。大型高端购物商场和国际知名酒店,医药中心、咖啡馆、餐馆近在咫尺。

永久地契的铂瑞雅居,可以说是乌节路这一带的绝版,周围没有多余的地可以发展新项目了。
今年1月31日,新加坡旅游局、市区重建局和国家公园局联手公布了重振乌节路计划,全面提升乌节路的居住体验,打造成一个集休闲、娱乐、购物、文化于一体的时尚景点!

这也就意味着,“变身”后的乌节路房子会更贵,要趁早下手~
万豪旗下最高端酒店入驻
铂瑞雅居还请来了万豪集团旗下的最高端酒店品牌——艾迪逊酒店(Edition Hotel)入驻新加坡!
艾迪逊是精品酒店,定位奢华,深受商界政要、明星模特们的喜爱。比如贝嫂、歌手Rihanna、名模Gigi Hadid都是纽约艾迪逊的常客。

▲纽约艾迪逊酒店内部
全球现在有9家艾迪逊酒店,都是在热门的旅游地:伦敦、迈阿密、纽约、三亚、土耳其、巴塞罗那、上海、阿布扎比。而新加坡这座八层楼高的艾迪逊酒店,包含204间客房,融合豪华贵气与艺术美感。

艾迪逊酒店的餐饮也是一绝,顶级酒店的霸气就是:每开一家,必要请当地最红的厨师和调酒师来坐镇!嗯,新加坡的米其林餐厅不少,不知哪位大厨要被挖过来了呢~

其实在此之前,CDL就有跟五星酒店合作过,可谓是品牌公寓界的“老司机”了。比如,名噪一时的瑞吉雅居,是CDL和瑞吉酒店合作的。万豪南岸酒店所在地,由CDL开发的风华南岸府,现在也成了新加坡滨海湾的耀眼地标!

娱乐休闲生活全包了
拥有社交、娱乐、健身、休闲等大量公共设施,这是顶级豪宅的标配。铂瑞雅居位于29楼的空中花园,有50米的无边泳池、烧烤台、用餐室,开泳池趴绝对爽爆了!

一层和二层有不同的户外休闲区,分别以花园和庭院为主题,可以在这里用餐、开party、健身、做瑜伽等。

超抢手豪宅
如此完美的铂瑞雅居,今年3月8日一经推出,便被疯抢,首批发布的25套,两周内就卖掉了20套!果然,买家们都是早有准备,就盯着它开盘呀……

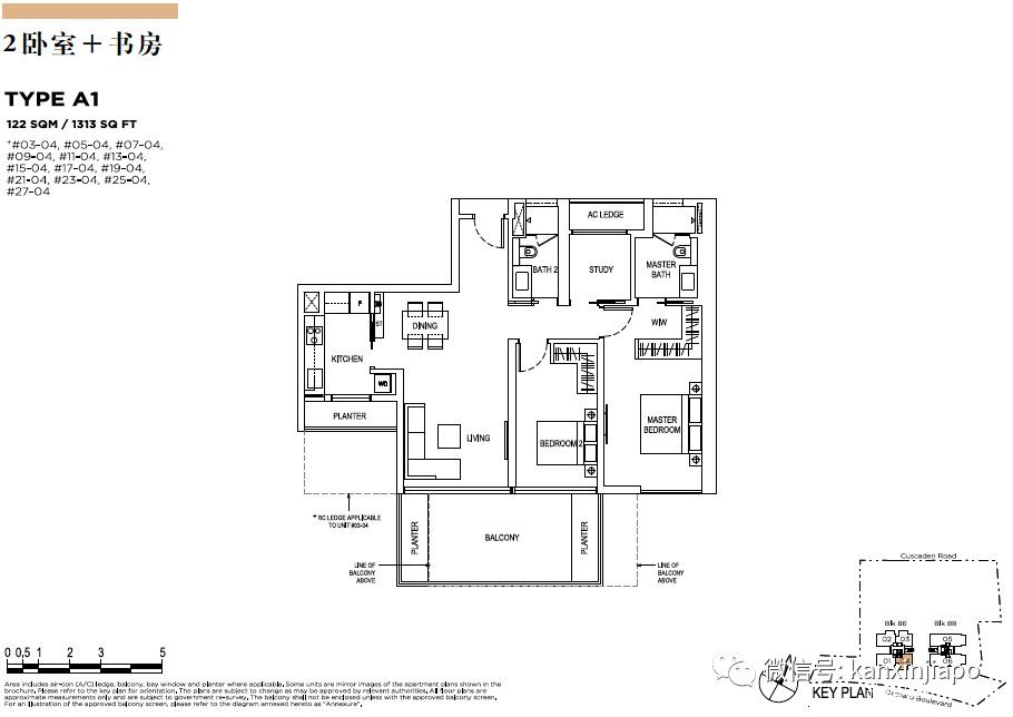
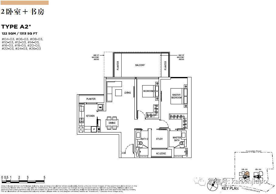
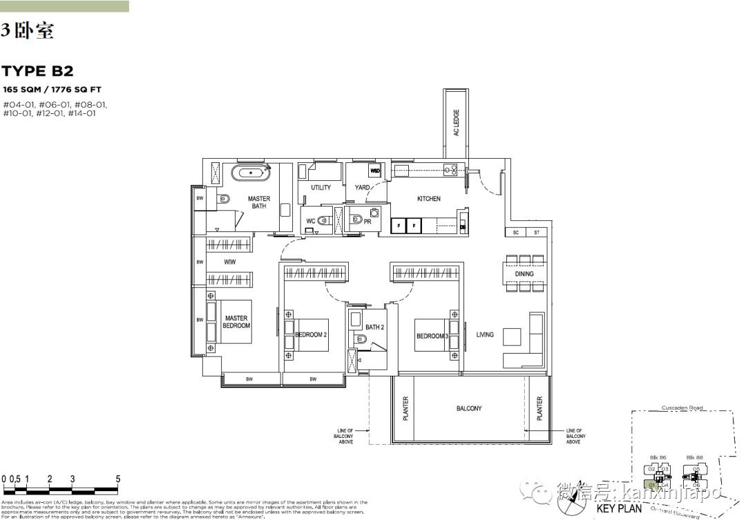
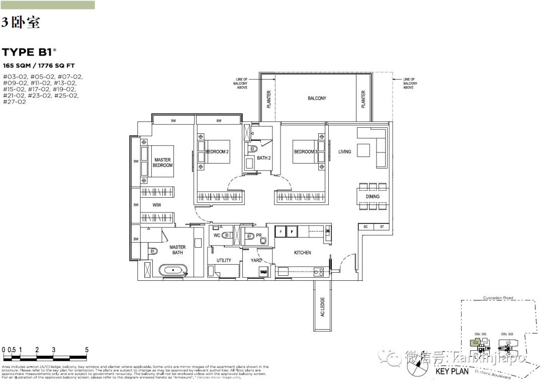
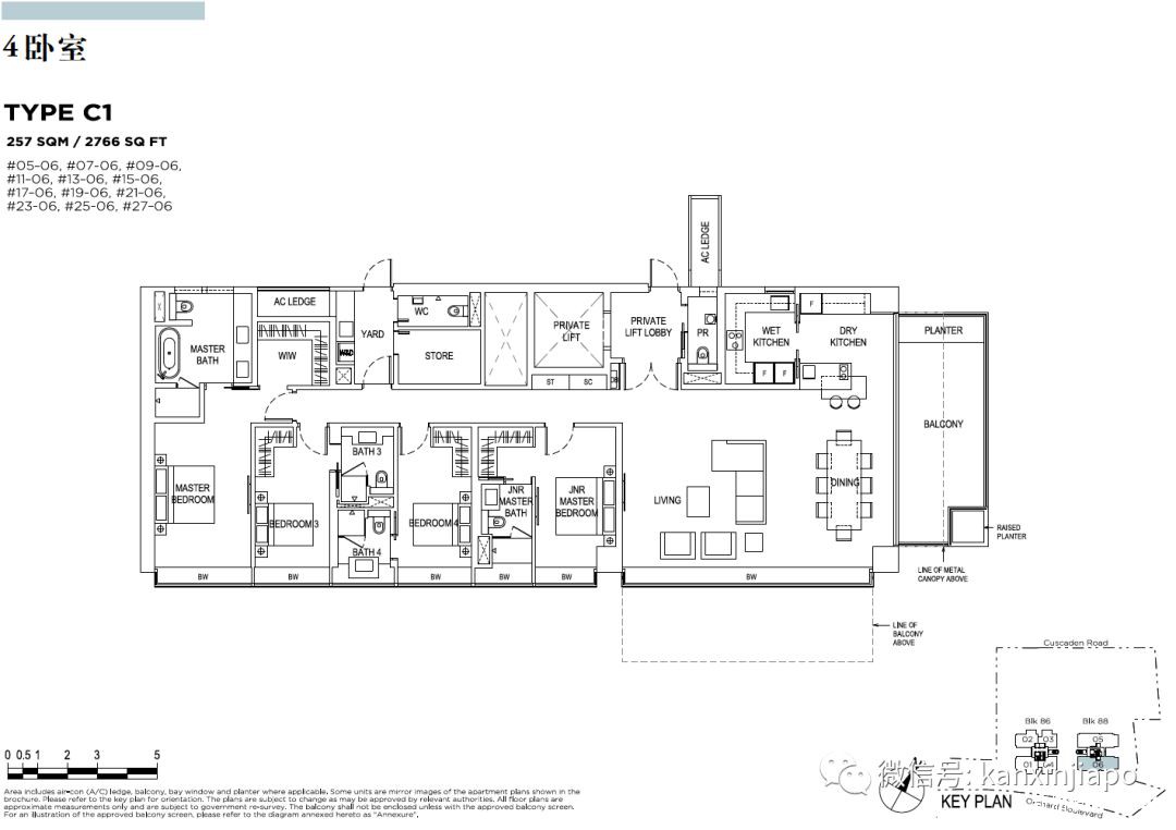
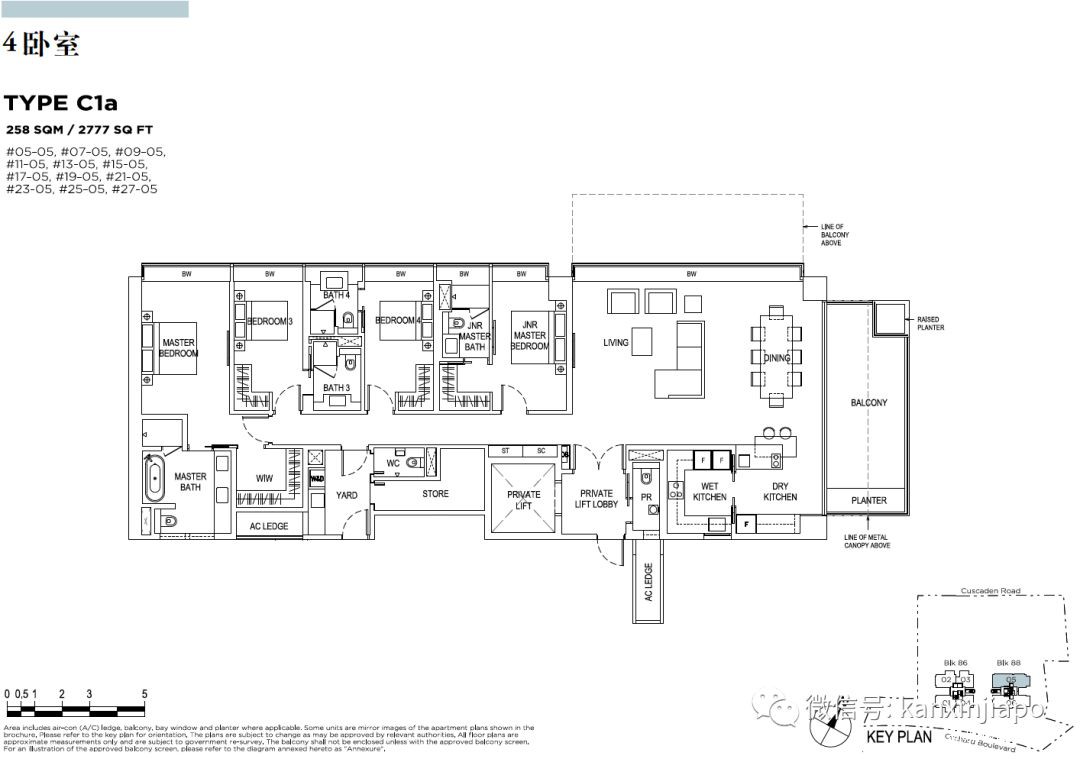
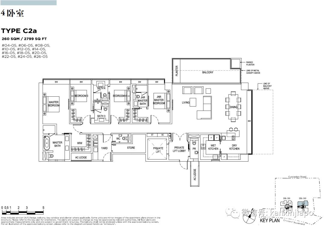
预计2022年交房的铂瑞雅居有28层高,共154个单位,主要房型有两房式加书房、三房式和四房式。

两房式:


三房式:


四房式:



如果你想在新加坡中心地段有个自己的家,或是在寸土寸金的乌节路投资,不妨在本周末去参观一下,进行深入了解。
时间:2019年3月31日(周日)
地址:88 Orchard Boulevard 248656
预约看房请点击这里登记,如仍有疑问,可加微信:xinjiapoyan8,电话:86981538
评论