吴洲置业:武吉知马好楼盘,让房子生长在花园里,绿意环绕。

传承伦敦豪宅区域风格
新加坡首席英伦社区
对很多人来说, Mayfair这个名字是以“大富翁”游戏中伦敦地图最昂贵的地址而被初次知晓的。对于那些曾经到过英国的人来说,更为生动的“Mayfair”印象或许是伦敦最繁荣的高档购物街邦德街(Bond Street)和蒙特街(Mount Street)上熙熙攘攘的人群、各式各样的精品店。Mayfair不仅仅是世界级的零售和旅游目的地,还是伦敦和世界上最昂贵的地区之一,它同时也是伦敦最传统的黄金地段与许多名人豪宅的所在地。

Mayfair建筑是高贵、典雅的代名词,如今这个概念被带到新加坡,被称为Mayfair Gardens。位于武吉知马(Bukit Timah)黄金地区的Mayfair Gardens寻求英伦建筑与东方审美之间的巧妙平衡,将伦敦Mayfair的精致风格完美实现,复古奢华的理念为有识之士提供了优雅的贵族生活与英伦风格的极致体验。

藏风得水、蓄势盘龙,打造一方墅院新天地
区位精华,从容荟萃,繁华深处,执领未来
Mayfair Gardens位于新加坡第21邮政区的武吉知马(Bukit Timah)高档洋房区,这里属于新加坡的西区。项目的位置靠近杜尼安路(Dunearn Road)的射靶场路(Rifle Range Road),在繁花园(The Blossomvale),帝景园(Garden Vista)和渣甸公寓(Jardin)的中间。Mayfair Gardens位于尊贵的武吉知马上段住宅区,闹中取静,绿意环绕。
身居都市中心的宜居别墅区,与繁华保持恰到好处的距离,咫尺狮城繁华,时代风云在握,事业新舞台毗邻生活理想环境,2分钟车程或者步行9分钟,您便可进入繁华深处的一泊宁静(武吉知马天然保护区,Bukit Timah Nature Reserve),享受绿意盎然的自然生态。

Mayfair Gardens距离阿尔柏王园地铁站(King Albert Park MRT)仅315米,步行4分钟就可以抵达。该地铁站营运的是滨海市区地铁线(Downtown MRT Line)。这条地铁线非常方便,住户无需转换其他地铁线就可以直通到位于金融区的市中心地铁站(Downtown MRT)。从Mayfair Gardens 到中央商业区(CBD)只需约20分钟车程,而到乌节路也只要15分钟车程。此外,Mayfair Gardens还靠近泛岛高速公路(PIE)和武吉知马高速公路(BKE),这为驾车人士带来许多便利。

Mayfair Gardens 也靠近许多购物和餐饮设施。住户步行就可以到达武吉知马中心。那里是受许多武吉知马居民欢迎的购物和用餐的热点,该中心拥有4个商场:武吉知马大厦(Bukit Timah Plaza)、美世界购物中心(Beauty World Plaza)、美世界中心(Beauty World Centre)和武吉知马购物中心(Bukit Timah Shopping Centre)。这些商场聚集了非常多的零售店、餐饮店和2间超市。此外,中心还有著名的武吉知马巴刹与熟食中心,聚集了许多本地熟食摊位和湿巴刹摊位,提供经济的本地美食和新鲜的蔬菜、水果及肉类。

Mayfair Gardens附近还有新加坡摄影爱好者的圣地—铁路桥和武吉知马火车站,住户随时可以过来参观古老的铁轨和铁路桥,在这里捕捉令人难忘的画面,向新加坡历史中珍贵的一部分致敬。

Mayfair Gardens周边名校林立,新加坡著名学府培华长老会小学(Pei Hwa Presbyterian Primary School)和美以美女校(Methodist Girls’ School)均在一公里范围内。Mayfair Gardens还靠近义安理工学院(Ngee Ann Polytechnic)和新跃社科大学(Singapore University of Social Sciences),其中新跃社科大学是新加坡第6所公立大学。

匠心御制,打造狮城豪宅尺度
承托历史,写照贵族芳华
Mayfair Gardens遵循传统工序,以精湛打磨技艺,将根植百年的英伦风情完整传承。在建筑设计、石材甄选、细节雕琢上,不吝成本,打造神形兼具的维多利亚风情,完美再现鼎盛英伦时期的建筑艺术精髓,重拾欧洲高级精品住宅规制。维多利亚风格的建筑精制且复杂,通常会带来视觉上的绝对华丽与分割取舍,Mayfair Gardens外墙立面完美传承该风格,将建筑的Crown、Torso、Pedestal设计的泾渭分明,令建筑整体显得低调贵气、厚重沉稳,从内而外地彰显着房间主人低调奢华的生活态度。下图为千禧国际伦敦梅菲尔酒店(Millennium Hotel London Mayfair)与Mayfair Gardens的对比,该酒店就坐落于伦敦Mayfair区。

Mayfair Gardens园区设计采用英国18世纪曼布里奇造园手法,自然再造,将建筑与景观完全融合为一体,房子生长在花园里。乔木峻拔,灌木葱茏,醇熟园林,优美盛放。细部精心雕琢,健身房、各种花园、泳池、亭台自然穿插其中,穿过曲径深幽,芳草摇曳,枝叶簌簌,静心聆听自然的天籁私语。

Mayfair Gardens占地约10788平方米,属于99年地契。项目包括4栋5层高的建筑,共有215个私宅单位,户型包括25个一卧房单位、64个一卧加书房单位、72个两卧房单位、14个两卧加书房单位、26个三卧房单位、8个四卧房单位和6个阁楼单位。单位面积介于46平方米至161平方米。

Mayfair Gardens气派空间规制,呈献奢雅建筑物语。领袖郡邸,珍藏一隅私享天地。低楼层,低密度,上纳天光,下藏气宇,揽尽空间之极。高屋大宅,尚礼建筑,恢弘空间尺度,虚怀以纳内在繁华,其中:
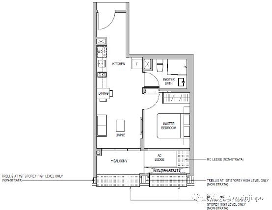
▼1.一卧房单位,套内面积49平方米/506平方尺。

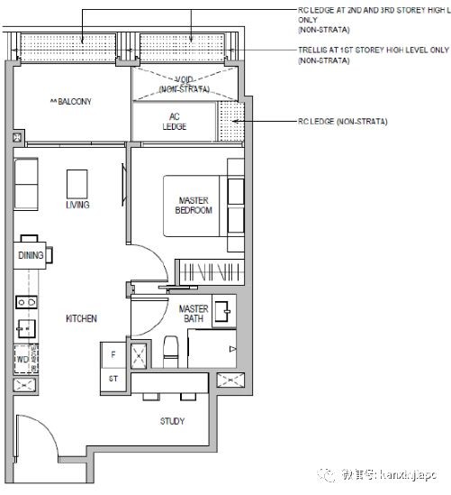
▼2. 一卧房+学习室单位,套内面积53平方米/570平方尺。

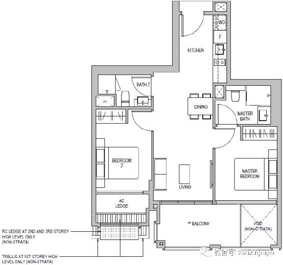
▼3. 两卧房单位,套内面积70平方米/753平方尺。

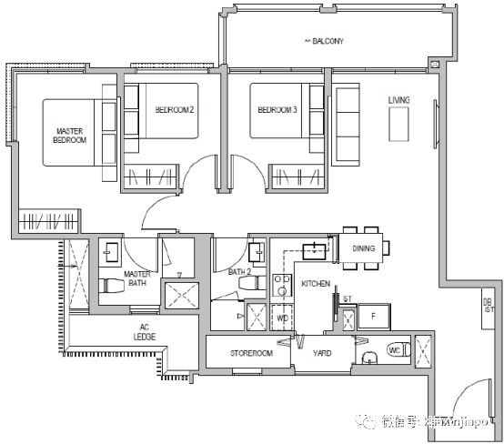
▼4. 三卧房单位,套内面积99平方米/1066平方尺。

▼5. 四卧房单位,套内面积113平方米/1216平方尺起。


Mayfair Gardens是英伦风维多利亚风格建筑,Mayfair Gardens同英国维多利亚时期一样,注定将会成为新加坡的“日不落”销冠楼盘。提到“英伦”,您的脑海中立刻会浮现令人神往的英国王室、温莎古堡、人类最伟大的戏剧天才莎士比亚、叱诧球场的万人迷贝克汉姆、莘莘学子向往的牛津和剑桥、惬意的英式下午茶、气派的管家……当然还少不了充满时尚气息米字旗和格子风。Mayfair Gardens,以“将英伦进行到底”为牵引,吴洲诚邀您一起共享奢华的皇家生活,投资总额从$96.5万新币起,外国人可贷款!
若您有新加坡置业买卖需求,请免费联系新加坡眼特约金牌房产经纪人吴洲,常年买卖各类产业和征集二手房源,数百个楼盘数万款房产任您挑,也可足不出户在线视频看房www.kangongyu.com ,我们办事,您放心。
关于吴洲:任职于新交所上市企业,新加坡最大的国际性产业集团ERA担任高级营销董事,金牌房产经纪人(新加坡IEA房地产经纪协会2013/2014 年度金奖得主),他从业8年,秉承专业诚信,事无巨细的工匠精神理念,迄今成交完的产业总市值以数亿新币计算,服务过数百位中高端客户投资产业,为精英人士的首选金牌经纪人,欢迎买家/卖家联系吴洲团队。
联系吴洲,请加微信号:peterwu99
手机:(+65) 88 139 139
政府注册号:R009913B

(图文由吴洲提供)
评论