新加坡置业:好户型楼盘开盘在即,享受6%+3%折扣

2018伊始,楼市的火热逐步蔓延到新楼盘的开售,在平均尺价不断上升的同时,开盘当天的出售率也在逐步攀升,甚至创造新高。位于虎豹别墅地铁站旁的TheVerandah Residence开盘两小时即售出75%的单位,西海岸谷的Twin Vew也在开盘当日卖出86%的单位,新楼盘的销售不得不用火爆来形容。
今天带各位重点详细关注一下马上开盘,位于实龙岗地区的大型公寓项目Affinity at Serangoon,注定又是一场火爆的销售热潮。


项目主要数据
项目名称:Affinity at Serangoon
项目地址:10 – 64 Serangoon North Avenue 1,新加坡第十九邮区
建设面积:296,913平方英尺(27,543平方米)
项目规模:1052个住宅单元+ 40户低层洋房+ 5个店铺
地契类型:99年地契
开发商:Oxley Holdings Ltd(豪利控股)
主要卖点分析:
1.坐落在新加坡第十九邮区,周边住宅成熟度高,2017年该地区发售的Hundred Palms Residence在7小时内即告售罄,附近的超级市场、食阁为您的生活提供便利;
2.四周知名院校环绕,澳大利亚国际学校、法国国际学校,和半径一千米内的Rosyth Primary School(乐赛小学)提供优质的教育资源;
3. Affinity at Serangoon公寓内部的配套设施以和谐美满的家庭生活为基础,50米的健身泳池、休闲娱乐泳池、SPA、健身房、空中烧烤台等等,为生活增姿添彩,景观设计商Ecoplan Asia倾力打造;
4.厨房采用中式、西式理念设计,大牌Grohe的装饰以及Bosch品牌的电器。房屋布局合理,所有房间均可放下Queensize的床,且每一个房间均拥有宽阔的视野,是新加坡过去5年来,户型最好的楼盘之一啦;
5.距离项目最近的Kovan地铁站仅1.5千米,门前的315路巴士连接附近的Yio Chu Kang路和Ang Mo Kio大道,城市高速公路CTE和KPE同样为您的出行提供便捷;
6. Affinity at Serangoon属于大型住宅项目,1052个住宅单元包括了一房室至四房室的户型,为不同需求的家庭提供多样的选择,项目内的商铺则为您提供足不出户的便利;
7.新加坡房地产开发先驱豪利控股呈现又一精品,业界享有盛誉,拥有全球开发经验,足迹遍布11个国家;
8.具有极佳的房产增值潜力及出租优势,周边的商业中心Seletar航空园区及建设中的Punggol Digital District为这一地区的持续增长增添活力;
交通便捷、毗邻名校坐落在新加坡第十九邮区,Serangoon North Avenue 1的Affinity at Serangoon精确选址,便利的交通、成熟的住宅商业去以及头顶名校学区房的光环,是您2018置业投资重点关注对象。附近的Kovan地铁站以及Serangoon地铁站连接您的东西和南北,门前的CTE和KPE城市高速路为驾车人士的出行提供便捷。

15分钟车程可达乌节路购物商圈,18分钟可达滨海湾中央商务区,半小时内即达樟宜机场。5分钟的更有Hougang购物中心、Heartland购物中心、Nex Serangoon等等大中型购物中心。

Affinity at Serangoon半径一千米内的Rosyth Primary School(乐赛小学)则是新加坡数一数二的名校,因此Affinity at Serangoon头顶的名校光环是您投资小一代教育的首选。根据新加坡教育部的数据显示,在P1、P2A(1)、P2A(2)以及P2B四个阶段后的剩余招收人数中,乐赛小学以仅仅10.3%,300招收人数空缺31人排名第四(剩余位置越少代表录取越难)。另外毗邻的Zhonghua Primary School(中华小学)同样是您不容错过的选择,多年来中华小学在PSLE – 小学离校考试中取得各个学科均超新加坡全国平均成绩的优异表现。

作为2018年首选的大型公寓住宅项目,除了引人瞩目的地理位置外,其人性化、现代化的精致的配套设施则是您休闲生活中不容错过的部门,两层的俱乐部会所、健身房、水中健身会所、50米标准尺寸健身泳池、儿童嬉戏泳池、家庭休闲泳池、空中烧烤台、环水烧烤台、宴会聚餐台,网球场、健身角以及5个商铺等等。

浮动栈道、林中小径则是茶余饭后散步休闲的好去处;心旷神怡水、林、岸完美搭配,多达10个主题的花园,让您的远离都市的喧嚣,静心享受生活的美好。
悉心打造地精致内饰Affinity at Serangoon的另一大卖点,来源于开发商对现代精致生活的追求,体现在房屋内部设计和内饰上则是合理的空间利用、视野的保障以及材料的选用。厨房采用中式或西式理念设计,厨房器具均采用大牌Grohe的装饰以及Bosch品牌的电器。卧室布局宽敞,所有房间均可放下Queensize的床,且每一个房间均拥有宽阔的视野;

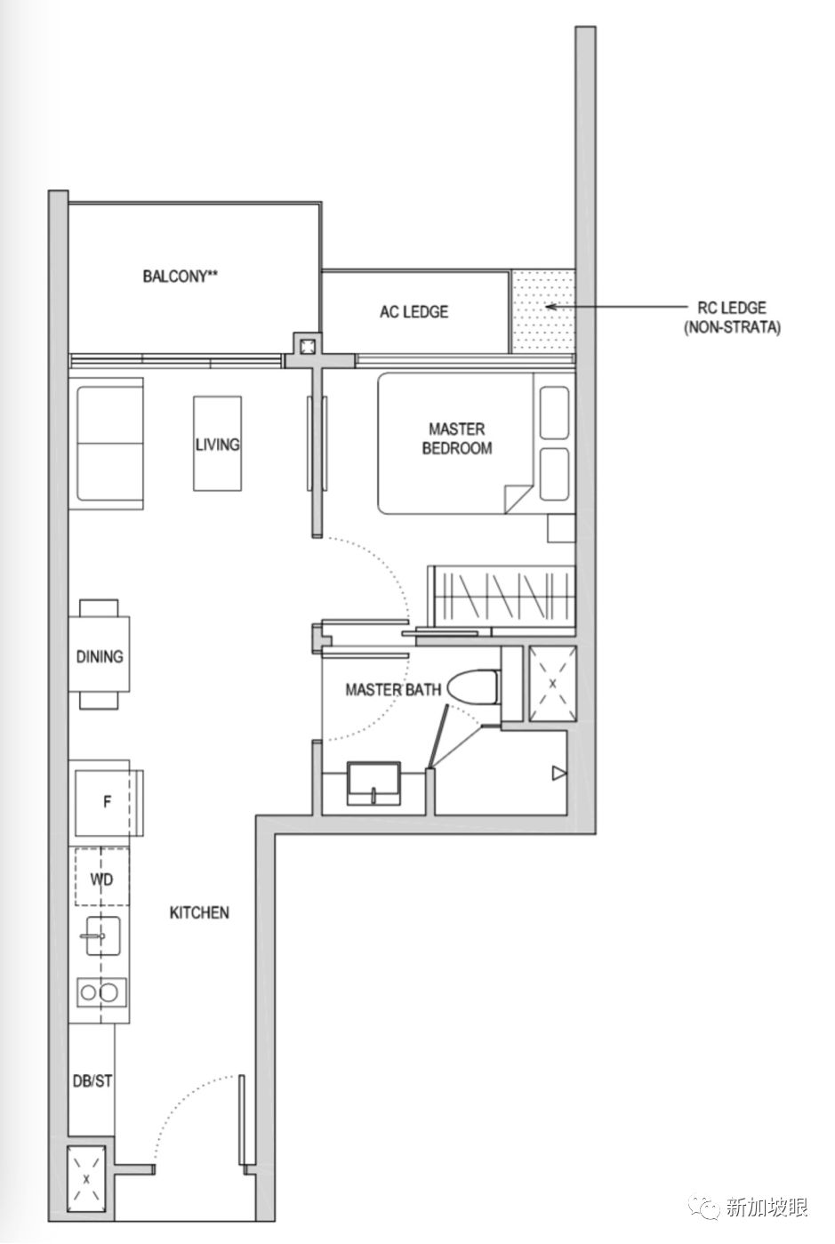
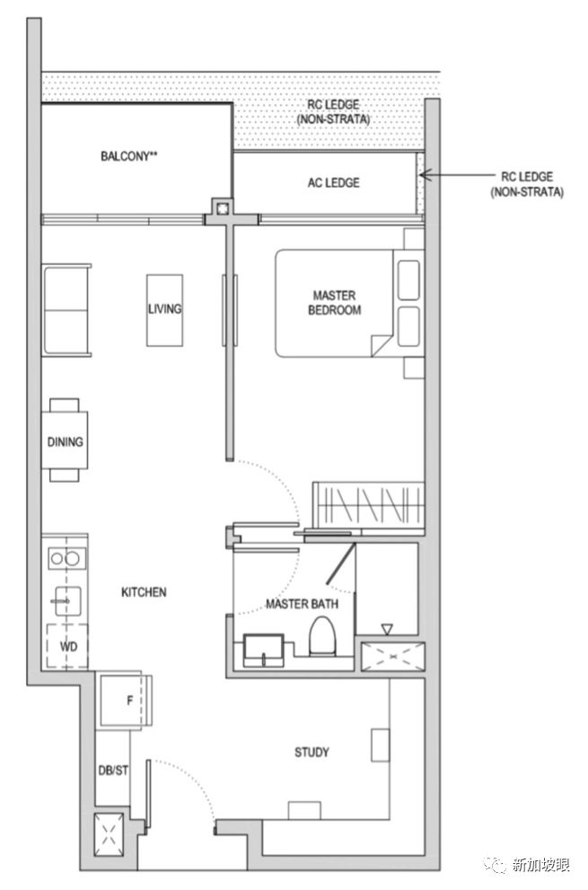
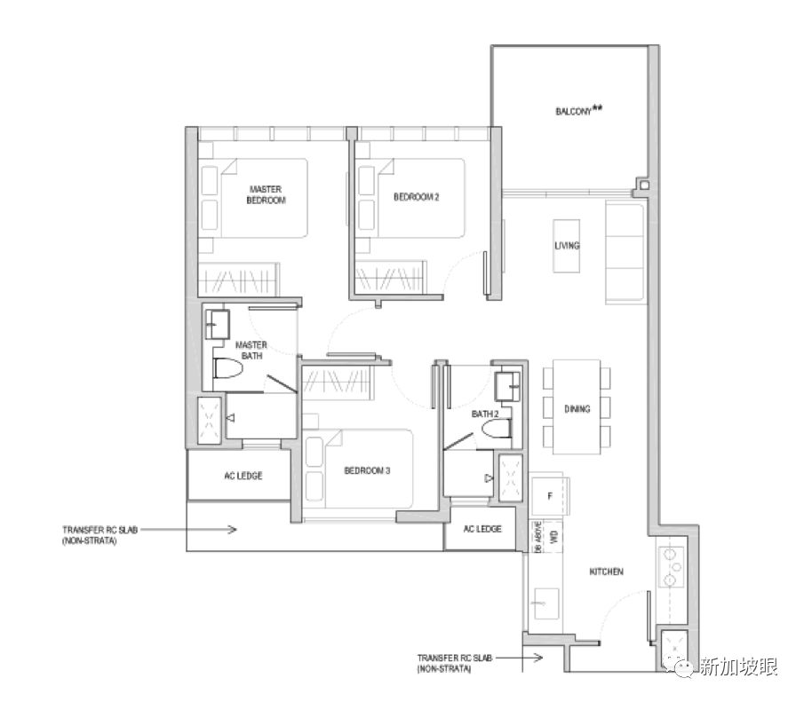
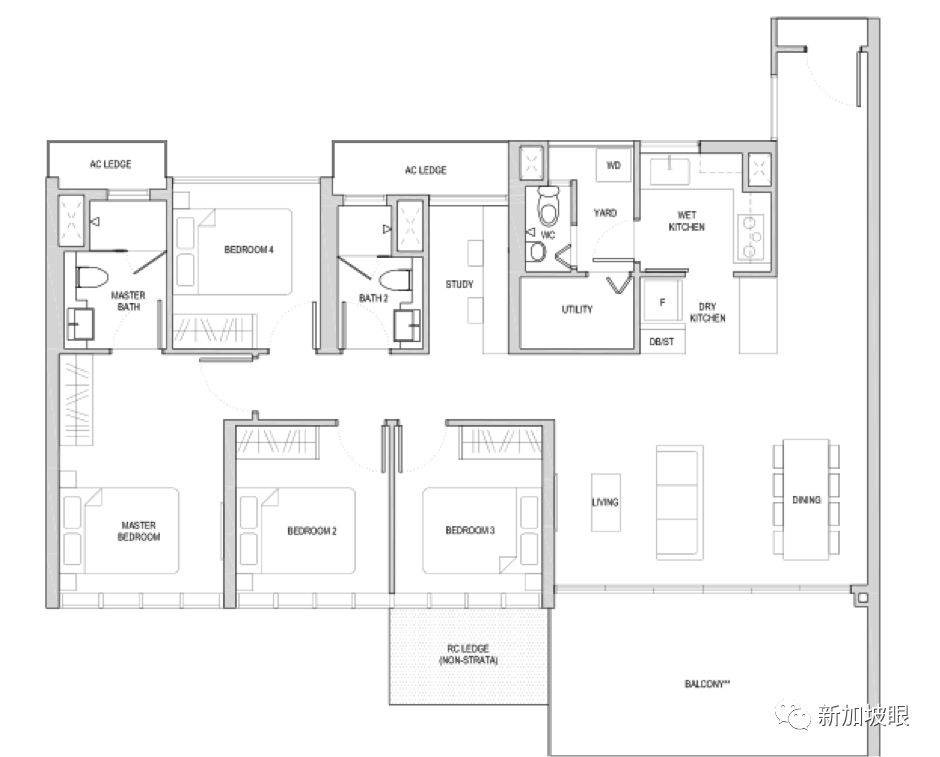
房型介绍:
一卧室,套内面积44-52平方米(474-560平方尺).

一卧室+书房,套内面积57-64平方米(614-689平方尺).

两卧室户型,套内面积59-72平方米(635-753平方尺).

三卧室户型:套内面积79平方米(850平方英尺)至117平方米(1259平方英尺).

四卧室+书房户型:套内面积135平方米(1453平方英尺)至159平方米(1711平方英尺).

关于价格:
一居室或一居室+ 书房户型:套内面积44平方米(474平方英尺)至64平方米(689平方英尺),整套售价$84.8万起;
二居室或二居室+ 书房户型:套内面积59平方米(635平方英尺)至72平方米(775平方英尺),整套售价$98.8万起;
三居室户型:套内面积79平方米(850平方英尺)至117平方米(1259平方英尺),整套售价$130万起;
四居室+书房户型:套内面积135平方米(1453平方英尺)至159平方米(1711平方英尺),整套售价$215万起;
首套房银行贷款最高可达70%至80%,外国投资者可办理银行贷款。
吴洲小结:
发展潜力巨大的实龙岗地区一直以交通便利、社区配套设施全面而著称,2018马上要开盘的Affinity at Serangoon,作为这以地区少数不多的大型公寓楼盘具有极高的性价比。开发商Oxley Holdings Ltd规划完善,倾心打造的这一具有具有前瞻性,设计合理,将家与自然完美融合项目,带个住户极致的享受于内心的舒适宁静。无论你是正在租房,抑或是改善性住房和投资需求,想在新加坡拥有一处舒适温馨的家,Affinity at Serangoon 在2018年值得您的关注!即刻联系开发商指定销售,获得6%+3%的开盘当日特惠价格。
添加金牌经纪人吴洲微信,
常年免费获取新加坡最新楼盘价格,
解答各类房产疑问。
若您对以上房产感兴趣或者想了解新加坡其它任何房产信息,请免费联系我们的特约金牌房产经纪人吴洲,常年专业买卖全岛任何产业,开发商直接销售代理,买房无经纪费,一个电话或微信的距离,最新科技定位数百个楼盘数万款房产任您挑,总有一款适合您,投资新加坡房产,外国人也可贷款。
关于吴洲:任职于新交所上市企业,新加坡最大的国际性产业集团ERA担任高级营销总监,金牌房产经纪人(新加坡IEA房地产经纪协会2013/2014年度金奖得主),他从业8年,秉承专业诚信,事无巨细的工匠精神从业理念,迄今为止,成交完的产业总市值以数亿新币计算,服务过数百位中高端客户投资新加坡产业,获得客户满意好评,服务过的客户群体有新移民,企业家,艺人,教授学者和房地产开发商等,常年专业提供【新加坡任何公寓楼盘和商业地产以及地皮的买卖投资服务,买私宅无任何经纪费用】,如果您有任何新加坡产业需求,欢迎买家/卖家联系我们,常年买卖各类产业,我办事,您绝对放心。
联系吴洲,请加微信号:peterwu99
手机:(0065) 88 139 139
政府执照号:R009913B

(图文由吴洲提供)
评论