新加坡最贵的豪宅公寓有哪些?
摘要
岁月匆匆,2017接近尾声了,回顾这一年的房地产走势,我们听到了春天的脚步。今年有多宗私人公寓的单个单元的成交额超过$2000万新元(近一亿人民币),是近年来所没见过的,可以说,火爆的高端私宅交易又回来了。在这里,我们为您介绍8栋近几年来成交最贵的公寓及其背后的故事。这8栋顶级公寓是阿摩园(Sculptura Ardmore)、嘉峰豪廷(Le Nouvel Ardmore)、安哥烈园21号(Twentyone Angullia Park)、纳森华庭(The Nassim)、兰馨园居(Nassim Park Residences)、格美华庭(Gramercy Park)、巴德申山大厦(The Marq On Paterson Hill)和Bishopsgate Residences。这些公寓均位于“全球十大最贵街道”之一,是小红点中的小红点,周围是亚洲最著名的、顶级品牌铸造的乌节路商圈。这些公寓均由实力雄厚的财团开发,由世界顶级设计师们设计,是精品中的精品。买家中不乏知名人士,如脸书(Facebook)的联合创始人Eduardo Saverin,阿里巴巴集团的创始人之一孙彤宇等。
高端私人住宅正引领新加坡房地产市场
据投资银行摩根士丹利(Morgan Stanley)报道,新加坡房地产的价格将在明年上涨10%,而到2030年,总体房价将增加一倍。目前新加坡经济正处回暖期,政府也正在采取各种亲商政策提升经济,外国投资者也正看好本地的高端私宅市场,各种内部、外部环境正加速房地产市场的回暖速度。过去一年,黄金地段的豪华公寓销售一直在回升,各种报道显示,这次的房地产回升,高端私宅起着重要作用。可以说,高端私人住宅正引领新加坡私宅市场。
谈到高端私宅,有人也许会问,新加坡卖得最贵的私人公寓在什么位置?也许您会说应该是在黄金地段乌节路附近。如果有人问您有什么人住在新加坡卖得最贵的私人公寓,也许您会想起媒体报道的脸书的联合创办人萨维林(Eduardo Saverin)和阿里巴巴集团的创始人之一孙彤宇。但如果有人问您新加坡卖得最贵的私人公寓有哪些,也许您可能就回答不全了。如果您在国外而对新加坡的高端住宅感兴趣,您一定想知道新加坡卖得最贵的私人公寓到底有什么特色和吸引人的地方。今天我们就和您一起分享新加坡卖得最贵的私人公寓的特色及其背后的故事。
我们今天所分享的8栋高端私人公寓,每栋公寓至少有一个单元的成交价在$2000万新币以上或1亿人民币以上。这些公寓有一些共同的特征,如均位于第九或第十邮区,均属永久地契,均位于亚洲最著名的乌节路商圈。下面就让我们向您一一道来。
最贵私人公寓位于“全球十大最贵街道”,是小红点中的小红点
根据新加坡市区重建局2013年至2017年间私人公寓的交易记录,至少有13宗交易,其每单元成交额超过$2000万新币或1亿人民币。这13宗交易来自8栋豪华公寓。这些公寓有两栋位于第9邮区,其余六栋位于第10邮区。由于第九和十邮区近邻,而这六栋公寓正位于两邮区的交界处,实际上这8栋公寓位于同一个黄金地段,就是位于乌节路一带的新加坡小红点中的小红点。亚洲投资界超人李嘉诚曾说过,决定房地产价值的因素,第一是地段,第二是地段,第三还是地段。这句话充分说明了地段对投资房地产的重要性,也从侧面说明了为什么建在小红点中的小红点的私人住宅会成为新加坡最豪华公寓。这是新加坡最优良的地段,且拥有永久地契,其土地价格不会随着时间的推移而贬值,反而会增值。这8个地段之间的直线距离不会超过2公里。新加坡阿摩园入榜Billionaire.com时尚生活杂誌及网站(2015年7月3日出版1)之“全球十大最贵街道”。
而阿摩园区在未来十年内,不会再有新土地供应。这让阿摩园区的高档私宅更显尊贵。有报道指出,如果房地产市场是由高档私宅领域带领,那么永久地产产权的房屋就会有明显的涨幅。这样看来,这些黄金地段上的永久地契豪华住宅仍然有着较大的升值空间。这8栋私人公寓就是阿摩园(Sculptura Ardmore)、嘉峰豪廷(Le Nouvel Ardmore)、安哥烈园21号(Twentyone Angullia Park)、纳森华庭(The Nassim)、兰馨园居(Nassim Park Residences)、格美华庭(Gramercy Park)、巴德申山大厦(The Marq On Paterson Hill)和Bishopsgate Residences。
最贵私人公寓位于亚洲最著名的、顶级品牌铸造的乌节路商圈
最贵私人公寓所处的地理位置极佳,位于国际顶级零售品牌及领事馆汇聚地乌节路,鸟语花香、青葱翠绿的植物园及良木山(Goodwood Hill)近在咫尺,这一带空气清新及环境宜人,是旺中带静的豪宅区域典范。说起教育资源,历史悠久、新加坡名列前茅的莱佛士女子中学就在附近。新加坡最大及最富声誉的高尔夫俱乐部之一,新加坡岛屿乡村俱乐部,也在附近。这个俱乐部举办过无数国际赛事,是亚洲富豪们进行高尔夫运动休闲的最佳场所。这里交通便捷,前往国际机场或中央商业区只需二十分钟车程。
近年来,越来越多的游客,特别是中国大陆的游客把出国购买名牌作为旅游的一个重要目的。在新加坡,游客们会发现这里的许多名牌产品是可以扣税的,最终的价位比本国便宜且货真价值。如果您是这些豪宅的主人之一,您会发现您的楼下就是亚洲最著名的、顶级品牌铸造的乌节路商圈。您只要动动您的脚,就可以饱览2.2公里长的名牌购物大街了。可以这么说,乌节路就是纽约的第五大道、北京的王府井、上海的南京路。这里荟萃了新加坡高端的大型购物中心如义安城(Ngee Ann City)、百丽宫(Paragon)、ION等。义安城是奢侈品聚集地,是个老牌的高端购物中心,拥有100多家专卖店,包括Cartier、Chanel、LV、Celine、Zara、Calvin Klein、Hugo Boss、Dior 和 Armani等以及日本品牌如零售店品牌高岛屋(Takasimaya,在那有许多奢侈护肤品牌如CPB、Sisley、Chanel等)、纪伊国屋书店 (Kinokuniya) 和 Best Denki 电器等。
义安城对面就是品牌云集的百丽宫。这里有许多奢侈品零售商,如Miu Miu, Gucci、Alfred Dunhill 和 Salvatore Ferragamo等,也是一个追求时尚的天堂,有服装品牌如 Armani Exchange, Diesel, Escada, G-star和Miss Sixty,体育品牌有Nike、Adidas、Asics 和Pan West等专卖店,还有孩子们的玩具专卖店。ION是个复合型的购物中心,有高大上的品牌如Cartier、宝缇嘉、YSL等,也有时尚品牌如Paul Frank、Forever 21等。

▲乌节路ION商城
另一个感兴趣的地方应该是DFS环球免税店。在新加坡一共有4个店铺,位于乌节商圈的是DFS在新加坡的总店。这里网罗全球顶级名牌精品、优质皮具、流行时装、化妆品、珠宝首饰及名表等,琳琅满目、应有尽有。这里共有四层值得您的关注。一层售卖当地特色精品如精美纪念品和土特产等,是送给亲朋好友的佳品。二层汇集了50多种国际知名品牌的香水和化妆品,如Sisley、Christian Dior、Lanc?me、Estée Lauder、La Prairie、Biotherm等,还有太阳眼镜、名牌皮具等,让您爱不释手。三层是名牌专卖店,集中了世界上最著名的名牌产品,这里充满着贵族气息。四层售卖手表珠宝和免税烟酒,如国际顶级品牌Omega、Cartier、Longines、Chopard和Bvlgari等,让您目不暇接。

▲乌节路义安城

▲乌节路百利宫
精心雕琢、量身定做的高端私人住宅
这些拥有永久地契的超豪华私人住宅地段,占地面积均不算大,如何在这寸土寸金的黄金地段在空间有限的土地上建造豪华、宽敞、舒适、绿色的高楼大厦一直是设计师们苦苦追寻的梦。可以说这些公寓的打造,不惜成本,追求的是现代与传统的结合、自然与人工的默契、生态与环保的共赢,这些神话般建筑源于自然,贴近自然,回归自然,享受自然,天人合一。这些公寓简直就是人间仙境,让您沉浸在无限的满足与舒适空间。8栋公寓各具特色,尽显现代建筑的豪华、建筑理念的创新和对美好生活的憧憬。

最近,脸书(Facebook)的联合创始人Eduardo Saverin购买了阿摩园的一间10,300平方英尺的超级顶层复式单位,以超过6000万新元的价格成交(单价每平方米$62699.8新元,每平方尺$5,825新元),创下了新加坡最昂贵私人公寓的纪录。他于2015年与新加坡的印度尼西亚华人Elaine Andriejanssen结婚。
正如其名,阿摩园就是一件美丽优雅的雕塑艺术品,展现来自纽约建筑师Carlos Zapata现代主义大师充满活力的独特雕塑风格。阿摩园宽敞舒适的居住空间和华丽前卫的建筑风格是美感与实用性的完美协调。发展商SC Global不断挑战自我,专注每一个细节,力求完美无瑕,选用全球最上乘的建材,倾心打造独一无二的奢华时尚生活理念,引领生活潮流。无与伦比的新颖创意和无与伦比的周边环境让阿摩园成为豪华私人公寓的典范,建筑史上登峰造极之作。

▲阿摩园(Sculptura Ardmore)
清新大胆的前卫建筑在泳池的设计上展现得淋漓尽致。私人游泳池就像几根伸直的手指,游离在建筑幕墙之外,自由漂浮云端;当您在游泳时,您象是在空中飞翔。

▲阿摩园悬空泳池
阿摩园仅提供34套(36层)奢华专属公寓,每套面积260-1022平方米(2,800-11,000平方英尺);采用开放式设计,空间宽敞,设计精致,尽显奢华。从客厅到餐厅和露台的23米区域全部采用落地窗,令人仿佛置身花园洋房,舒适而温馨。配套设施包括带按摩池的30米长健身游泳池、带私人会所的空中露台、室内和室外娱乐区、健身房、带私人凉亭和按摩池的空中花园和地下停车场以及礼宾服务和24小时安保。
2015年4月阿里巴巴集团的创始人之一孙彤宇以5,100万新元的价格购买了嘉峰豪廷一间面积为1289平方米(13,875平方英尺)的顶层复式阁楼,嘉峰豪廷由永泰控股有限公司(Wing Tai Holdings Limited Singapore)开发,共建43单元完美无暇的住宅,每层都有自己的私人电梯。Le Nouvel Ardmore的命名,由阿摩园(Ardmore Park)和首席建筑名师Jean Nouvel 的名字串连而成。Jean Nouvel 为当代最具创意的建筑名师,曾获普立兹克建筑奖(2008)、沃尔夫艺术奖(2005)以及其他无数骄人奖项,荣膺中国国家艺术博物馆首席建築师。Jean Nouvel从事的每一个项目的建筑方法都是独一无二的,嘉峰豪廷也不例外。建筑师充分考虑内部结构与周围环境,将热带气候和植被的活力融合在一起,打造出创新的外墙和华丽高端的内部环境。发光的外墙依照居民的生活方式进行改变,创造了一个随机变化的复杂的网格和屏幕分裂的交响乐。一座白色塔楼纯净地矗立在一个反射池和树木毯上。嘉峰豪廷由竹子花园和天梯组成,周围环绕着大量的水和郁郁葱葱的绿色植物,为城市天际线留下了令人垂涎的垂直足迹。在这里,建筑与自然之间的界线完全模糊了,成了人与自然的完美结合。

▲嘉峰豪廷(Le Nouvel Ardmore)

▲嘉峰豪廷(Le Nouvel Ardmore)的客厅
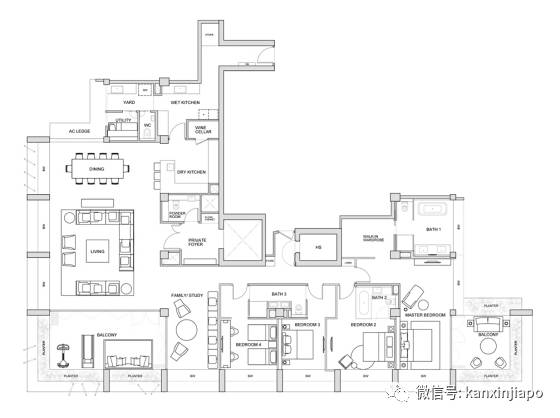
▲嘉峰豪廷单层四房377平方米的户型图
嘉峰豪廷单层四房352-384平方米、复式四房376-497平方米,豪华顶层复式单位面积1329平方米。这里让我们欣赏一下一个单层四房377平方米的户型图。这个属较小户型的单元。生活区与休息区完全分开,佣人房位于厨房的一边,并配备卫生间,完全不会影响主人的生活和休息。干湿厨房完全分开,餐厅可以摆放一个宽大的十人餐桌,客厅也相当大,完全适合开个50人的派对。客厅的一侧有个阳台,旁边有一间家庭学习房,对面是私人电梯。而四个房间的休息区位于另一端,每个房间均可放置双人床,并配备卫生间。主人房有一个很大的阳台和象房间一样大的内置衣柜。
嘉峰豪廷当前在售房源价格$1800万新元,四室一厅,377平方米(4058平方尺)。

2013年6月马来西亚商人Low Taek Jho,通常被称为Jho Low,以4290万新元(每平方米$59847或每平方尺$5,560)买下一间717平方米(7,718平方英尺)的顶层阁楼单位。
安哥烈园21号是安中置地全资子公司Angullia Development Pte. Ltd在新加坡的旗舰项目。这座享有永久地契的36层摩天大楼,位于乌节路ION大楼的对面,总建筑面积为137,522平方英尺,由屡获殊荣的SCDA建筑设计公司设计,共建54个包括2,3 或4卧室的豪华住宅单位。安哥烈园21号取材质地均用最佳,无可挑剔。其设计突出并展现与时间流逝相应的令人惊叹的照明效果,居民可以享用到各种各样的设施,如舒适的天空露台、壮丽的天空体育馆以及令人叹为观止的无边际游泳池等。安哥烈园21号由郁郁葱葱的园林绿地,多叶的檐篷和奢华的水景构成,增添了城市天堂的光环。

▲安哥烈园21号(Twentyone Angullia Park)
安哥烈园21号的二卧室面积为108平方米(1163平方尺),三卧室为176-215平方米(1894-2314平方尺),四卧室为258-311平方米(2777-3348平方尺),阁楼单位为717平方米(7,718平方英尺)。这里让我们欣赏一下三卧室户型结构。从私人电梯出来,就是宽大的客厅,以及餐厅。您会发现这里的厨房特宽敞,且设备齐全,配备储藏室。设有独立卫生间的佣人房也在厨房的隔壁。厨房出来往右拐就是三间卧室了,房间方方正正,均配备卫生间,而主人房还配备了大浴缸。
安哥烈园21号当前在售房源价格$800万新元起,三室一厅,215平方米(2314平方尺)。

▲安哥烈园21号(Twentyone Angullia Park)的客厅

▲安哥烈园21号三卧室户型图

纳森华庭的最近一宗交易是在今年5月,成交价$2557万新元(每平方米$29,600新元或每平方尺$2,750),买方据说是外国人。这栋公寓在今年1月成为头条新闻,资深银行家,新加坡富豪之一的Wee Cho Yaw,以高达4.116亿新元的价格购买了所有45个未售出的单位,让开发商嘉德置地(CapitaLand)在规定期限之后摆脱了对未售物业的处罚(可能达数百万新元)。

▲纳森华庭(The Nassim)
纳森华庭位于新加坡纳森路的黑白洋房区。这里曾经是大英帝国殖民政府高官的专属住所。现在成了富贾名士们梦寐以求的憩息地。它与乌节路只隔一箭之遥,但却独享繁华之外的宁静。纳森华庭是由知名发展商凯德集团(CapitaLand)开发,由W建筑师的着名建筑师莫伟伟设计的。总面积约11,386.8平方米,共建8座5层楼高的建筑,合55个单位。纳森华庭结合了旧殖民时代黑白洋房的建筑特色和摩登的公寓设施所激发出的独一无二的风格。每个单位都选用高档的品牌电器,采用意大利卡拉拉大理石装饰起居室和用餐空间,橱柜采用永恒的高光乌木饰面,宽敞的主浴室配有同样的斜角卡拉拉大理石。

▲纳森华庭(The Nassim)泳池

▲纳森华庭(The Nassim)户型图
纳森华庭的户型包括3卧房单位和5卧房单元。每个单元都非常宽敞,面积从179-864平方米开。这里就让我们欣赏一下三室一厅的户型。这是一个最小的户型,但也配备私人电梯。电梯上来就是客厅和餐厅,非常宽敞。客厅和餐厅均有阳台,享受窗外的绿意怏然。客厅和餐厅的一侧是厨房,厨房一边是储藏间和配备卫生间的佣人房。客厅和餐厅的另一侧是三个方方正正的房间,每个房间均有各自的卫生间,并配备内置衣柜。
纳森华庭当前在售房源价格$690万新元起,三室一厅,179平方米(1927平方尺)。

2015年4月,兰馨园居五楼的一间639平方米(6880平方尺)的单位以$2250万新元(每平方米$35208,每平方尺$3,271)成交。2010年3月以来兰馨园居得成交价一直保持在3000新元/平方英尺以上。
兰馨园居由UOL集团、Kheng Leong和Orix Capital联合开发,由新加坡SCDA建筑事务所的Chan Soo Kian,日本景观设计师Masuno Masuno和法国室内设计师Christian Liaigre共同设计。兰馨园居成功地将经典设计与现代生活气息融为一体,通过设计玻璃的三维面、条纹石灰华墙以及金属和木制百叶窗,打造出时尚鲜明的线条,与周围不规则的自然轮廓形成鲜明对比。兰馨园居拥有100个单元,极致奢华。其中的设施包括游泳池、水流按摩浴缸、主题花园、操场以及俱乐部,以及健身房、瑜伽室、温泉浴场等以及礼宾和家政服务。
让我们来欣赏一下四室一厅的户型设计。从私人电梯进入公寓后,就到了宽敞的客厅和就餐大厅,旁边是大小适宜的阳台,阳台侧面是私人反射水池。主卧室与宽敞的折叠式衣帽间相连,一直延续到配有PALOMBA系列独立式浴缸的主卫生间。每间房间均精心设计、方方正正,每间都配有独立卫生间。比较独特之处就是还专门设置了一间化妆间,共一家大小,特别是女主人化妆之用。

▲兰馨园居(Nassim Park Residences)

▲兰馨园居(Nassim Park Residences)的豪华卧室

今年8月,格美华庭的一间677平方米(7287平方英尺)单位以$2186万新元(每平方米$32292新元或平方英尺$3,000新元)成交。格美华庭(Gramercy Park)由著名发展商CDL (城市发展集团)开发,占地约15723平方米,由南北双塔组成,共建174个豪华单位,包括两卧房、三卧房、四卧房以及阁楼单位,单位面积109-677平方米。
格美华庭的双塔建筑是由世界著名的建筑公司NBBJ精心设计的具现代风格理念高端豪华建筑。设计师们将精确的构造、新奇的对称设计和鲜明的几何结构融为一体,塑造出曲线玲珑的雕塑作品,焕发蓬勃生命力。每当夜幕降临,灯火阑珊时,精心修剪的草坪与相邻的50米泳池和谐共存,交相辉映,为之振奋。公寓设施包括游泳池、健身房、高尔夫球推杆练习区、网球场、悠闲小径及其他的贴心设施。

▲格美华庭(Gramercy Park)
让我们一起欣赏一间三室一厅的户型图。从私人电梯出来后就来到一个宽敞的客厅,紧接着是餐厅,餐厅外是一个大小适合的阳台,享受美食的同时,还可以欣赏美景。喜欢做菜的居民有福了,这里的厨房分两部分包括美食厨房(Gourmet kitchen)和亚洲厨房(Asian Kitchen),分别准备不同的菜色。三个房间均方方正正,均可放置双人床并有内置衣柜,每个房间均配备卫生间。主人房则还有一个小型种植园,供种植花草之用。

▲格美华庭(Gramercy Park)户型图

今年4月,巴德申山大厦的一间579平方米(6232平方英尺)单位以$2180万新元(每平方米$37652新元或平方英尺$3,498新元)成交。巴德申山大厦由享誉全球的发展商SC Global开发。SC Global曾获得许多嘉奖,对建筑设计品质极其重视,对每一个项目都力求真正落实“终极家居生活体验”的企业承诺。巴德申山大厦成功融入了大型豪华别墅的设计特色,用宽敞的空间,如以高耸的天花板展现奢华的极致,实现了在新加坡都会中拥有充裕私人空间的梦想。不仅如此,Signature Tower 的每一个住宅单位均单独拥有15米长的室外悬臂泳池,让您可浮游在摩天大厦的边缘,饱览绚丽的城市风景线。
巴德申山大厦占地125,000平方英尺,拥有66间豪华单元,面积279-1393平方米(3,003-15,000平方英尺)。巴德申山大厦当前在售房源价格$1250万新元起,四室一厅,279平方米(3003平方尺)。

▲巴德申山大厦(The Marq On Paterson Hill)

▲巴德申山大厦(The Marq On Paterson Hill)的客厅

2015年8月和2016年11月,Bishopsgate Residences的一间565平方米(6082平方英尺)和一间555平方米(5974平方英尺)的单位分别以$2107万和2068万新元成交。Bishopsgate Residences由始创于1840年的日本鹿岛建设株式会投资开发,由国际知名的 Hirsch Bedner Associates Pte Ltd 负责规划设计,全区绿化比率高于总建筑面积的35%,环境清幽宁静,绿意盎然。Bishopsgate Residences公寓获新加坡节能环保白金奖,公寓的所有玻璃能有效阻挡紫外线,屋顶安装太阳能板以节能环保,每个单位也都配备高效节能厨具,电器及卫浴设备等,打造绿色节能建筑的典范。公寓设施包括私人电梯、25米无边际游泳池、多功能厅、健身房、烧烤台、24小时保安和免费停车位等。

▲Bishopsgate Residences公寓

▲Bishopsgate Residences公寓的客厅
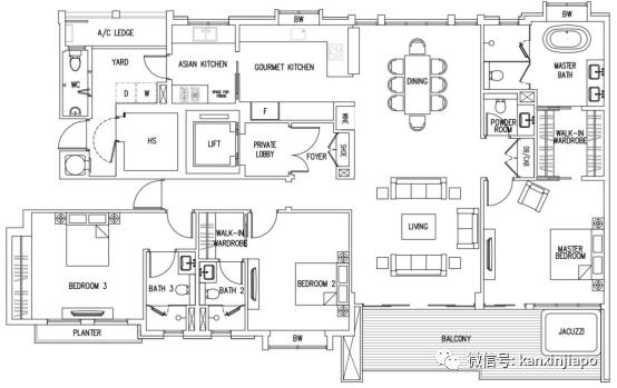
Bishopsgate Residences占地面积约6500平方米(70000平方英尺),共建31个单元,包括三居室、四居室、阁楼和三层洋房。单元面积226-617平方米(2433-6641平方英尺)。这里让我们欣赏一下四室一厅的户型。从私人电梯出来后可直接抵达豪华宽敞客厅和餐厅。客厅和餐厅配备一个大的阳台,美景尽在眼前。餐厅的南面是厨房,由美食厨房(Gourmet kitchen)和亚洲厨房(Asian Kitchen)组成,适合制作不同美食。客厅的西边是一客房,其余三间房在东边。所有房间都方方正正,可以放置双人床,并都有各自的卫生间。主人房和另外一间房间各有一个阳台。

▲Bishopsgate Residences公寓的四室一厅户型图
小结
杜甫的”安得广厦千万间,大庇天下寒士俱欢颜”,描述了房产作为生活必需品的重要性。在科技高度发达的今天,广厦不但要千万间,还要高品质,要有现代感、艺术感、绿色感、高端感。新加坡的广厦,这些都具备了。这8栋现代顶级公寓,结合了人文、地理、历史,不惜重金,不计成本,打造超一流的设计、超一流的品质、超一流的环境、超一流的境界、超一流的品味。欣赏这些精品公寓,您会体会到科技的发达、设计师们的巧思异想、发展商们的精心打造。这8栋公寓各具特色,但均是永久地契限量版的高端住宅,每个单元均宽敞极致且都位于舒适宁静的豪华小区。个中的豪华感、舒适感、高端感难于用言语来表达,需要您去实地考察,眼见为实,用心体会。美好的东西是值得珍藏的,拥有一套高端房产,体会一下新加坡的土豪生活,也许就是您的一个心愿。纵观这一年的交易状况,火爆的高端私宅交易又回来了,是该考虑进场的时候了。

若您对以上房产感兴趣或者想了解新加坡其它任何房产信息,请免费联系我们的特约金牌房产经纪人吴洲,常年专业买卖全岛任何产业,开发商直接销售代理,买房无经纪费,一个电话或微信的距离,最新科技定位数百个楼盘数万款房产任您挑,总有一款适合您,投资新加坡房产,外国人也可贷款,最低总价仅$70万新币起。
关于吴洲:任职于新交所上市企业,新加坡最大的国际性产业集团ERA担任高级营销总监,金牌房产经纪人(新加坡IEA房地产经纪协会2013/2014 年度金奖得主),他从业8年,秉承专业诚信,事无巨细的工匠精神从业理念,迄今为止,成交完的产业总市值以数亿新币计算,服务过数百位中高端客户投资新加坡产业,获得客户满意好评,服务过的客户群体有新移民,企业家,艺人,教授学者和房地产开发商等,常年专业提供【新加坡任何公寓楼盘和商业地产以及地皮的买卖投资服务,买私宅无任何经纪费用】,如果您有任何新加坡产业需求,欢迎买家/卖家联系我们,常年买卖各类产业,我办事,您绝对放心。
联系吴洲,请加微信号:peterwu99
手机:(0065) 9672 8008
政府执照号:R009913B

(图文由吴洲提供)
评论