新加坡$150万预算可买的三室一厅新公寓信息汇总

![]()
2017年是一个不平凡的一年,新加坡的楼市已走出低谷,也推出了品质不错的新楼盘受到买家追捧。展望2018,根据新加坡政府贸工部公布的最新可观经济增长数据和过去半年各大财团激烈天价抢地,特别是实力雄厚的中资开发商猛龙过江,以志在必得的心态天价拿地,开发商之间的激烈竞争让开发商拿地成本一山更比一山高,有鉴于此,我们有足够理由相信在新加坡经济基本面稳定的情况下,新加坡私人房产的价位将会在明年稳中有升。
今天我们借此机会特地汇总了新加坡$150万新币可以买到的三室一厅新公寓。这些公寓包括(1)阿裕尼地铁站的盛世名园(Sims urban oasis),96平方米,$156.6万新币起、(2)大巴窑-布莱德地铁站的宝石公寓(Gem Residences),88平方米,$141.7万新元起、(3)女皇镇地铁站的女皇碧苑(Queens Peak),88平方米,$142.3万新元起、(4)乌美地铁站的永久地契公寓The Navian,84平方米,$137万新元起、(5)丹那美拉地铁站的豪佳苑(Grandeur Park Residences),83平方米,$129万新元起、(6)花拉公园地铁站的Sturdee Residences公寓,88平方米,$152.4万新元起、(7)龙岗地铁站的森涛苑(Forest Woods),85平方米,$135万新元起、(8)高文地铁站的高文之星(Stars of Kovan),89平方米,$152万新币起。列出的大部分公寓离地铁站均少过500米,交通便利,教育资源丰富。每一栋公寓都各具特色,我们汇总了它们的地址、楼盘概况、投资卖点、特色设计和户型欣赏,一饱朋友们的眼福。
注:新加坡无公摊面积一说,以上面积为使用面积。
朋友们,是否想过在新加坡拥有一套三室一厅的公寓?十年前,如果您在新加坡拥有一套三室一厅公寓,您现在已经是个小富翁了。投资银行摩根士丹利(Morgan Stanley)认为,新加坡房地产的价格即将扭转,截至2018年底,新加坡私人住宅价格将上涨8%,到2030年,房价将增长一倍。新加坡经济正处回升周期,稳定的政治环境、良好的社会秩序、一流的教育体系和先进的医疗设施和服务,提供了足够的房价升值空间。另外,新加坡正在加快适应人口增长的基础设施建设,特别是地铁设施的完善,以推进新加坡稳步增长的人口政策。另外,外国买家可能不知道,在新加坡投资房产无需缴交遗产税和资本收益税;融资成本低,私人公寓贷款年利率不到2%,融资可高达80%。需要强调的是,新加坡采用双语教学,母语英语两双全,让您的孩子领略东西方文化,吸收其精华,培养成精英。所有的这些因素促使许多外国投资者对新加坡的房地产倍感兴趣,也对公寓的升值产生正面影响。我们认为,新加坡的房产寒冬已经过去,现在已是春暖花开的季节。朋友们,在这踏春的季节里,让我们揭开新加坡三室一厅公寓的序幕,领略一下$150万新币就可以到手的公寓内幕。

▲8栋各具特色的私人公寓区位坐标及三室一厅面积和价位

盛世名园区位特征和楼盘概况:
坐落于沈氏通道和阿裕尼路交界处,99年地契楼盘,由著名发展商Guccoland(国浩房地产)开发,占地2.4公顷,共有1024个单位。盛世名园地段优越、交通发达,滨海湾和中央商务区等近在咫尺,无论工作学习还是休闲娱乐,皆畅行无阻,一切均在便利中!盛世名园将为您打造广阔的露天空间,绿茵浓郁的公共休闲场所,感受自然精粹、享受户外活动,饱览空中花园给您带来的绵延起伏的视觉盛宴,真正体验城市之缘的新生活。

▲盛世名园效果图
盛世名园楼盘卖点:
地点优越,距阿裕尼地铁站仅350米,200米范围内有8条巴士路线,1公里范围内有职总平价超市、晟菘超市,购物广场,多家熟食中心,离市区也只有5-10分钟车程,靠近打造中的巴耶利峇区域中心;名校赏光,如著名的芽笼美以美小学(Geylang Methodist School (Primary)和四德女子中学 (Cedar Girls’ Secondary School)。一公里范围内有5家幼儿园,3所小学和1所中学;地处新加坡最具历史韵味的街区,是新加坡的美食天堂;新加坡少有的大型房产项目,配备空中花园,是房产项目的新标杆;为您量身打造的精品雅居,每一类设计都以空间的高效性和实用性为首要前提,物超所值。
▲盛世名园三室一厅户型图
盛世名园雅居设计和户型欣赏:
盛世名园,正如名字所说的,是建造在一个太平盛世的著名园林公寓。在这里,每个单元的设计都是经过深思熟虑的,以其紧凑、高效的设计将空间使用推向极致,既注重家庭的公共空间,又兼顾每个人的个人隐私。当孩子们在客厅嬉笑打闹的时候,您还可以在属于自己的空间享受静谧。设计以人为本,方寸之间,享受生活;举目之间,每分设计、每寸细节皆如此迷人,令人神往!真是阖家共乐,温馨欢愉,奢享生活,追求极致。
目前主推户型为三室一厅,使用面积96平方米(1033英尺),最低价格$156.6万新币起。这个户型装修大气,豪华。餐厅可放8人方桌。厨房干湿分开,还配有壁橱。客厅宽敞,配备阳台,与三间卧室相对隔离。在客厅会客,不影响孩子们在房间温习功课;孩子们在客厅嬉闹时,您可以在房间享受静谧空间。客厅、主人房和普通房均方方正正,而且每个房间均可放置双人床。这样的户型确实令人神往!您可以自住,也特别适合租给有孩子的专业人士。

宝石公寓区位特征和楼盘概况:
位于第12邮区的大巴窑的成熟住宅区,拥有99年租赁地契,占地13,832平方英尺,属双塔式建筑,由两栋分别为38层和39层的豪宅组成,双塔之间是50米的游泳池,楼顶是空中花园。宝石公寓发展商GEM Homes的股东是马来西亚基础设施和城镇发展集团金务大(Gamuda)、本地发展商毅雅地产(Evia Real Estate)和大地控股(Greatearth Holdings)子公司Maxdin,拥有雄厚的资金和技术,确保项目的顺利实施。
宝石公寓卖点分析:
全岛第一个会所公寓,享受酒店般服务,感受家的温馨;是七年等一回的大巴窑成熟住宅区私人公寓;交通发达,公交自驾驰骋自由。距离布莱德(Braddell)地铁站只有500米,250米范围内有四个巴士站,15条巴士路线,可快速接入南北高速路、中央高速公路(CTE)和泛岛高速公路(PIE)等;公寓附近设施完善,购物、娱乐、健身总相宜;周边学校林立,难得的理想学区公寓。1公里范围内有6间幼儿园、4所小学,1.5公理范围内有5所中学和两间初级学院,附近还有一所大学及多所国际学校;公寓设计现代高端、绿色环保,人与自然和谐共处;公寓价格合理,升值潜力大。
▲宝石公寓的双塔式建筑效果图
(39层南塔楼月石塔和38层北塔楼太阳石塔)
宝石公寓设计和户型欣赏:
公寓由新加坡著名设计师Yuen Yi May为主设计,注重历史与现代、传统与时尚、复杂与简单的有机融合,是未来城市居家设计的典范。公寓采用南北朝向,开辟绿墙,避开西晒,节约能源。采用立体停车设计,并配备电动汽车充电设备。公寓到处绿意葱葱,俨然就是一个花园设计。作为全岛第一个会所公寓,宝石公寓提供全天候的酒店式服务,让您生活无忧,可全身心投入工作,照顾家庭,无后顾之忧。提供的服务主要有:全天候酒店式礼宾服务、?居家服务和健康生活和体育休闲服务等。

▲宝石公寓三室一厅户型图
目前主推户型为三室一厅,使用面积88平方米(947平方英尺),最低价格$141.7万新币。这是一个适合在家开Party的户型,朋友聚会不用预定公寓的公共空间或上酒店和会所。面积虽不大,但每个房间均方方正正,宽敞明亮,均可放置双人床。餐厅与客厅分开,客厅特别大气,再配上大阳台,您的朋友一定赞口不绝。也许买后舍不得出租,那就尽情享受会所公寓带来的便利吧!若买后想出租,这里的租赁潜力非常好。

女皇碧苑区位特征和楼盘概况:
女皇碧苑是由浩源地产(HY Realty Pte Ltd)开发的位于第3邮区黄金地段女皇镇邓迪路(Dundee Road)的新私宅项目。女皇碧苑99年地契,占地10,516平方米,由2座44层的高楼组成,共建736个单位。除住宅单位以外还包括一间商铺和可容纳100人的托儿所。女皇碧苑楼自开盘以来,卖气旺盛,一卧室单位已全部售罄。女皇碧苑已经动土,传承这里的历史和文化,结合现代时尚设计,将一个地标性的全景公寓呈现在这里,给您全新的视觉盛宴。
女皇碧苑的卖点及投机潜能:
黄金地段的全景公寓,给您全新的视觉盛宴,是地标性建筑;无缝连接女皇镇(Queenstown)地铁站,无需日晒雨淋,步行两分钟即可到达;女皇碧苑是新加坡的现代版巴比伦空中花园。拥有两个空中花园,建造77项公用设施分布于7个休闲区;售价合理,比邻近的联邦大厦低5-15%,升值潜力大;公寓强大的潜在投资回报,如来自国立大学、中央商业区、滨海湾金融中心的高端客户租赁机会;附近公寓租金回报率高达3.7%,女皇碧苑是一个新公寓,且地点和设施等也略胜一筹,预计月租更高,租金回报率也就更高。区域交通便利,教育资源丰富。
▲女皇碧苑效果图
女皇碧苑雅居设计和户型欣赏:
目前主推户型为三室一厅,使用面积88平方米(947英尺),最低价格$142.3万新币起。也许您很难想象,您只投资不到150万新币,就可以拥有一个配备有私人电梯的私人公寓,而且公寓的管理费也不高,确实是千载难逢的机会。户型南北走向,无西晒。客厅与餐厅分开,充分利用过道,并配备弧形阳台,宽敞明亮、豪华大气。三个房间均方方正正,并配备衣柜,其中一间还有弧形阳台。毋庸置疑,这是您的最佳选择,您可以选择自住,享受360度的视觉盛宴,乘坐私人电梯的超凡感觉,得天独厚的区域交通。您也可以选择出租,轻轻松松出租,获得可观的回报。

▲宝石公寓三室一厅户型图

The Navian公寓特征和楼盘概况:
The Navian是一个刚开盘不久的位于第14区的惹兰友诺士(Jalan Eunos)的新私宅项目,由著名发展商乐斯太平洋控股(Roxy-Pacific Holdings)开发。The Navian占地2432平方米,由2栋5层的低楼组成。从Navian步行至滨海市区线乌美地铁站(Ubi MRT)只需10分钟。这里教育资源丰富,如在500米范围内就有名列前茅的名校菩提小学(Maha Bodhi School)。只需几分钟的车程就可以抵达巴耶利峇区域中心(Paya Lebar Regional Centre),享受那里的购物、美食和娱乐设施。

▲The Navian公寓由两栋低楼建筑组成
The Navian楼盘优势分析:
永久地契,金牌房产,象征永恒,永不过期,是祖祖辈辈的产业;环境幽静,周边都是有地私人住宅;与附近公寓相比,价格优势明显,物超所值,升值空间大;周边公寓租金回报率高,具有潜在的高投资回报。南北走向、北欧风格、房型方正,装修高档;4个地铁站、20条巴士路线、3条高速路,附近购物、美食、娱乐样样齐全;孩子教育的摇篮,1公里范围内有3所小学,名校菩提小学(Maha Bodhi School)在500米范围内。The Navian户型欣赏:
目前主推户型为三室一厅,使用面积84平方米(904英尺),最低价格$137万新币起。这个房型的一大特点是厨房、餐厅和客厅均是分开的。南北朝向,户型方方正正,布局合理,无浪费空间,两个普通房均可放置双人床。主人房还有一个大小刚好的阳台。非常适合有2个或以上小孩的夫妻,以及出租给专业人士和学生。区域交通条件、教育资源以及便利条件确保这里的租户来源和潜在的出租高回报。

▲TheNavian公寓的三室一厅加客房户型图

豪佳苑区位特征和楼盘概况:
豪佳苑位于第16区樟宜路上段和勿洛南3道的交界处,发展商是集永成集团(Chip Eng Seng)旗下的子公司CEL Development Pte Ltd。豪佳苑占地约24,394平方米,属于99年地契,建造6座14-15层高建筑,合720个私宅单位,2间商铺以及1间托儿中心。豪佳苑距丹那美拉地铁转换站(Tanah Merah MRT)约200米。只需15到20分钟的车程即可到达乌节路和中央商业区。附近的大型购物中心有勿洛购物中心(Bedok Shopping Complex)、勿洛坊(Bedok Point),购物广场(Bedok Mall)和樟宜坊(Changi City Point)等。

▲豪佳苑效果图
豪佳苑楼盘卖点:
价格合理,升值潜力大,与邻近的The Glades相比,有明显的价格优势,属东部价格最合理楼盘;近邻东西线地铁转换站丹那美拉,乘地铁可直达政府大厦地铁站(City Hall MRT)和莱佛士坊地铁站 (Raffles Place MRT),200米范围内还有11条巴士路线,驱车可连接到东海岸公园大道(ECP)和泛岛高速公路(PIE);引入智能家居新概念,嵌入耶鲁生物学数字锁(Yale Biometric Digital Lockset),用指纹、虹膜等开门,确保安全。教育资源丰富,1公里范围内有6间幼儿园、3所小学和4所中学。附近还有两间初级学院,一所大学和多间国际学校。拥有多所名校,如卍慈小学、圣公会中学和淡马锡初级学院等。公寓包含多种亲子设施,如托儿所、儿童俱乐部、健身房、泳池、70米的儿童探险区以及90多个生活设施。
▲豪佳苑的三室一厅户型图
豪佳苑户型设计和欣赏:
豪佳苑的装修采用简单的色调配以简约线条,装修奢华大气。墙面和地板材质的选购,就是一种非凡脱俗、一种内在的高品位。卫浴和厨房也都采用名牌高档材料建构。这样的装饰在住户精心挑选的灯饰衬托下,尽显主人的个人风格和品位。
目前主推户型为三室一厅,使用面积83平方米(893英尺),最低价格$129万新元起。这个户型的特点是,厨房、餐厅和客厅之间通过过道和餐桌等的布置自然形成不同的功能区,充分利用有限的空间。南北走向,无西晒。客厅和主人房均配备阳台。所有房间均可放置双人房。房间、客厅均方方正正,给您充分的家私摆设空间。适合与父母同住或有小孩的夫妇自住或出租。

Sturdee Residences区位特征和楼盘概况:
Sturdee Residences位于新加坡第8邮区(中央区)的史德蒂路(Sturdee Road),由Sustained Land私人有限公司开发,占地6111.5平方公尺,属于99年地契。建造2栋30层高的大厦,共305个单位。Sturdee Residences靠近花拉公园地铁站(Farrer Park MRT,约400米),距多美歌地铁站(Dhoby Ghaut MRT)2个站。Sturdee Residences位于市区边缘,地点优越,紧靠中央商业区,附近有许多热闹的餐饮和娱乐场所,属于新崛起的时尚聚集区。公寓附近的商场有城市广场(City Square Mall)和慕斯达法购物中心(Mustafa Centre)等,居民们可以在这里尽情享受时尚风、餐厅、食阁、超市、电影院等。而慕斯达法购物中心是个不夜城,24小时营业,十分便利。

▲Sturdee Residences效果图
Sturdee Residences公寓卖点:
市区边缘地标建筑,两站地铁到多美歌,狮城大厦,乌节路购物中心,附近多所商城;房间超大,楼高达3.25米,可建阁楼;与附近的公寓Kerrisdale(2006年竣工)和城市雅居(2009年竣工)相比,价位相当合理;每个单位提供豪华浴室配件和厨房电器;注重私人空间,闹中取静;休闲健身娱乐设施完善,如有健身区、瑜伽区、。第14层设有户外健身区、瑜伽区、倒影池、摇摇椅、吊床、空中休闲厅、用餐间和吧台等。Sturdee Residences公寓设计与户型欣赏:
Sturdee Residences公寓设计的特点是“简单就是美”。设计虽简单却又不失豪华。第14层设有户外健身区、瑜伽区、TRX(悬吊式运动)运动区、室内健身房;第19层设有各种悠闲区如倒影池、摇摇椅、吊床(hammock)等;第29层设有私人的空中休闲厅、用餐间和吧台,以及一个小花园。单元设计简单明了,该有的设施样样齐全,如厨房壁橱、柜台、灶头与冰箱等,浴室得设计也相当有特色,如用玻璃墙隔开,配上一面镜子和白色长方形的洗手盆,让浴室整体看上去干净整洁。
该公寓推出后相当抢手,目前主推户型为三室一厅,使用面积88平方米(947平方英尺),最低价格$152.4万新币起。该三室一厅户型是典型的南北走向,完全无西晒。厨房与客厅、餐厅完全分开,厨房还有自己的阳台,这是与众不同的设计。餐厅和客厅由过道自然分开,相当合理。三个房间、客厅、餐厅和厨房均方方正正,任您摆设。主人房和客厅均配备阳台。三个房间均可放置双人床。这样的户型设计相当实用,在市区边缘寸土寸金的花拉公园附近能看到这样的户型是不容易的。无论自住还是出租,均是理想选择。若是出租,适中的地理位置将是一个很好的加分项。

▲Sturdee Residences公寓的三室一厅户型图

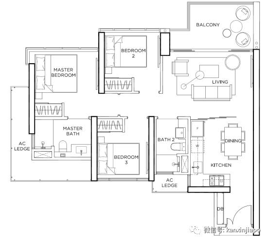
森涛苑区位特征和楼盘概况:
森涛苑位于19邮区(中央区)实龙岗路上段(Upper Serangoon Viaduct)、罗弄榴梿(LORONG LEW LIAN)和巴耶利峇路上段(Upper Paya Lebar)之间的新私宅项目,由城市发展(City Developments Limited)、丰隆集团 (Hong Leong Holdings Limited)和 TID Pte Ltd 联合控股的Serangoon Green Pte. Ltd开发,占地14001.5平方米,99年地契,共建519个单位。这是一座有故事的建筑,让您追寻昔日宁静和谐的田园生活,同时又不失现代都市的摩登气派。

▲森涛苑共建7栋519套拥有现代化设施单元
森涛苑楼盘卖点:
由著名发展商城市发展开发,有信誉保障;地理位置优越,位于地铁东北线和环线交汇站实龙岗站以东400米处,5分钟步行直达大型商场NEX、超市、百货、银行、邮局、熟食中心、食阁、餐馆、酒家、电影院、图书馆等。;交通便利,附近有两个地铁站,20条巴士路线,到繁华的乌节路购物中心、中央商业区和金融中心只需10分钟;教育资源丰富,1公里范围内有多所小学和中学;地铁沿线500米范围内各公寓,森涛苑的售价最具竞争力。森涛苑楼盘设计与户型欣赏:
森涛苑是一个田园、森林、氧吧式公寓,提供私人会所、多功能宴会厅、健身房、游泳池、水疗设备、烧烤设备、儿童娱乐场等60多个设施,并提供礼宾服务。室内家具品牌化、自动化和智能化。公寓处处洋溢着高雅、环保、节能、现代。

▲森涛苑公寓的三室一厅户型图
森涛苑自推出市场以来,销售业绩良好,目前主推户型为三室一厅,使用面积85平方米(915平方英尺),最低三室一厅户型价格为$135万新元起。这个户型结构紧凑,充分利用空间,厨房与餐厅共用一个过道,这样,厨房和餐厅都显得宽敞,而餐厅与客厅由过道自然隔开,客厅也显得格外宽敞。客厅和所有房间均方方正正,且三个房间均可放置双人床。客厅与房间相对隔开,和朋友聊天时不会影响孩子们温习功课。另外客厅和主人房均配备阳台。对于85平米的三室一厅而言,这样的设计相当合理,自住和出租均适合。而出租可吸引周边和商业金融区的专业人士,有相当可观的租金回报。

高文之星区位特征和楼盘概况
高文之星位于新加坡东北部第19区实龙岗路上段、淡宾尼路和华丽路之间,属99年地契公寓。这是一个历史悠久的成熟私宅区,占地19700平方公尺,由香港长江实业地产(Cheung Kong Property Holdings Limited)在新加坡的成员Property Enterprises Development (S) Pte Ltd开发。高文之星属于综合项目,共建395个住宅单位和46个商铺。高文之星距离高文地铁站(Kovan MRT)约400米。到达繁华的乌节路、中央商务区和金融中心只需10-15分钟车程。高文之星周边的零售商场、餐饮、娱乐设施非常完备,如高文城(Kovan City)、心邻坊(Heartland Mall) 和 NEX等等。

▲高文之星效果图
高文之星楼盘卖点
由李嘉诚旗下公司开发,质量、信誉、保证;距高文地铁站(Kovan MRT)只需步行几分钟的罕见商住综合项目;地处黄金地段,升值潜力大;内外兼修的高雅精品,英伦风范的设计风格;立体景观的多层次空中花园;公寓地处成熟区域,生活和交通极为便利,学校林立,潜在租赁需求强劲;教育资源丰富,如醒华小学、圣婴小学、巴耶利峇美以美女校等。高文之星楼盘设计与户型欣赏:
高文之星由COEN Design International精心设计,高雅大方,流线型连续屋顶独树一帜,面向淡滨尼路的一侧,每三层设置一个空中花园。高文之星建筑本身就是一面旗帜、高文的地标。高文之星就是一个精品豪华的典范,给每一位居民提供奢华雅致的居住环境,开阔无遮挡的城市景观。发展商对建筑材料和设施的选择毫不含糊地选择的高端品牌产品,如选择了科勒(Kohler)、Duravit、Hansgrohe和Smeg等品牌的高级厨房和浴室产品。发展商也提供不同地板选项如层压木板地、大理石和地砖等,让居民根据客厅和房间装修格调,自由搭配,打造自己心目中的理想家居。
高文之星销售神速,目前主推户型为三室一厅,使用面积89平方米(958英尺),最低价格$152万新币起。这是一套三个房间、三个卫生间、一客厅、一餐厅、一厨房的单位。厨房为封闭式设计,还有一间储物间,喜欢做饭的朋友看到厨房时一定很开心。客厅与餐厅由过道隔开,空间利用率高,客厅还配备阳台,而餐厅的设计相当大气,是朋友聚会的好去处。主人房空间很大,并配有一个大的衣柜,每个房间都可以放置双人床,且均有内置衣柜。如果您看过样板房,您会为之惊叹,您会毫不犹豫地选择自住。当然,如果需要出租,这里优越的地理位置和成熟社区的完备设施将让租金优厚,获得可观的出租回报。

▲高文之星公寓的三室一厅户型图
![]()
这是吴洲为您精心挑选的8个楼盘,均位于新加坡地图的心腹位置,各具特色,总有您满意的。它们的三室一厅户型结构合理,充分利用空间,让您理智投资。盛世名园是新加坡少有的大型房产项目,就好像是大观园,里边应有尽有。宝石公寓是全岛第一个会所公寓,享受酒店般服务,感受家的温馨。女皇碧苑是新加坡的现代版巴比伦空中花园,售价合理,升值潜力大。The Navian公寓属永久地契,金牌房产,象征永恒,永不过期,是祖祖辈辈的产业。豪佳苑价格合理,升值潜力大,与邻近的The Glades相比,有明显的价格优势,属东部价格最合理楼盘。Sturdee Residences是市区边缘地标建筑,房间超大,楼高达3.25米,可建阁楼,与附近的公寓相比,价位相当合理。森涛苑是一座有故事的建筑,让您追寻昔日宁静和谐的田园生活,同时又不失现代都市的摩登气派。高文之星则是李嘉诚旗下公司的又一杰作,地处交通优质地段,内外兼修的高雅精品,英伦风范的设计风格,升值潜力佳。众多美景就在眼前,让吴洲带您瞧一瞧,看一看,总有一款是您心怡的。

若您对以上房产感兴趣或者想了解新加坡其它任何房产信息,请免费联系我们的特约金牌房产经纪人吴洲,常年专业买卖全岛任何产业,开发商直接销售代理,买房无经纪费,一个电话或微信的距离,最新科技定位数百个楼盘数万款房产任您挑,总有一款适合您,投资新加坡房产,外国人也可贷款。
关于吴洲:任职于新交所上市企业,新加坡最大的国际性产业集团ERA担任高级营销总监,金牌房产经纪人(新加坡IEA房地产经纪协会2013/2014 年度金奖得主),他从业8年,秉承专业诚信,事无巨细的工匠精神从业理念,迄今为止,成交完的产业总市值以数亿新币计算,服务过数百位中高端客户投资新加坡产业,获得客户满意好评,服务过的客户群体有新移民,企业家,艺人,教授学者和房地产开发商等,常年专业提供【新加坡任何公寓楼盘和商业地产以及地皮的买卖投资服务,买私宅无任何经纪费用】,如果您有任何新加坡产业需求,欢迎买家/卖家联系我们,常年买卖各类产业,我办事,您绝对放心。
联系吴洲,请加微信号:peterwu99
手机:(0065) 9672 8008
政府执照号:R009913B

(图文由吴洲提供)
评论