新加坡五星级潜力楼盘,近市区地铁和名校

2017年已经过了大半,如果您还在寻觅一个竣工在即,升值潜力良好、满足所有需求的潜力公寓楼盘项目,靠近地铁站,交通便捷,坐落在成熟住宅区的私人公寓,Commonwealth Tower绝对会是您最佳的选择。
由新加坡两大商业地产巨头 – 丰隆实业和城市发展联合打造的Commonwealth Towers,秉承着“让梦想中的家庭成为现实”的设计理念,成为女皇镇(Queenstown)的新地标。一个正在建设,预计2017年12月竣工的公寓项目 – Commonwealth Towers,正在用细节赢得每一个投资者的信赖。两幢高楼,以其及其新潮的设计和优雅的内部装饰,在不久的定将成为竞相追捧的私人财产。845个居住单元珍藏在一个透着金属光泽的外表下,两幢43层的高楼直耸云霄,一个逆潮流而行的举动使女皇镇的天际线容光焕发 – “选择卓越,为什么要甘于地面”


项目名称:Commonwealth Towers
项目地址:230 & 232坐落在联邦道(Commonwealth Avenue)
项目开发商:Wealthall Development(老牌开发商新加坡丰隆集团和城市发展合资公司)
项目建设面积:12,086平方米(130,101平方英尺)
地契类型:99年地契
住宅数量:两幢43层的高楼,共845个住宅单元,851个停车位(包含6个残疾人停车位);
预计入伙时间:竣工在即

1.一分钟短距离步行可达Queenstown地铁站,遮雨棚连接公寓至地铁;
2.项目开发商为新加坡地产先驱 – 城市发展集团 & 丰隆集团;
3.成熟商业地段,周边商业繁荣密布(例如荷兰村(Holland Village)、宜家、女皇道购物中心(Queensway Shopping Centre)、the Anchorage等);
4.交通便利,连结多条主干道和高速路,十分钟驾车可达乌节路(Orchard Road)、商务中心CBD、金沙湾(Marina Bay)和南方滨水区(southern waterfront),同时十分钟地铁直达莱佛士;
5.紧邻Star Vista,一个全新零售+娱乐中心,拥有超过100个商铺,坐落在两站地铁之外的波娜维斯达(Buona Vista)站;
6.项目靠近花柏山公园(Mount Faber Park),南部山脊(southern ridges) 。连接花柏山(Mount Faber) 和肯特岗公园(kent Ridge Park)的绿色步道,从家门口一直延伸直新加坡中心商务区滨海湾,提升了绿色生活的品质。
7.租房需求旺盛,周围近邻的新加坡国立大学医院(NUH),新加坡国立大学(NUS),以及商务办公中心Fusionpolis,Biopolis,Alexandra Technopark和Mapletree’s Business City等提供了大量的租房需求,买入即可出租,
8.教育资源丰富,名校云集。颜永成小学(Gan Eng Seng Primary),克信女子中学(Crescent Giris School),圣婴德兰女校(CHIJ Theresa Convent),新加坡理工学院Singapore Polytechnic和亚洲排名第一大学-National University of Singapore.
97%的单元已售,最后20套单元享受前所未有的开发商折扣优惠,最低价三居室公寓套内面积100平方米仅售$162万,同时有最后一套一居室和两居室等待开发商放出销售,具体价格待定,可以给各位参考的价格是,一居室预计价格$82.8万新币起,两居室预计价格$141万新币起(最后一套一居室和两居室都可能需要抽签)

Commonwealth Towers公寓坐落在新加坡备受关注的高端邮区 – 第三邮区的中心,依Commonwealth Avenue而建,位于女皇镇(Queenstown)地铁站的正对面,超短距离步行即可到达Commonwealth地铁站,试想一下旁若门阶的地铁站带来的便利,住户们可以随时享受地理位置带来的便捷。一分钟步行距离即达Queenstown地铁站,从这里出发,便捷达珊顿大道(Shenton Way),萊佛士坊(Raffles Place), 波娜维斯达(Buona Vista),裕廊东(Jurong East )及新加坡全岛各大商业中心皆触手可及。

对于私家车拥有者而言,毗邻高速路亚逸拉惹高速公路(AYE – Ayer Rajah Expressway)和中央高速公路(CTE – Central Expressway),城市主干道联邦道(Commonwealth Avenue),Tanglin Road和Alexander Road,两条双向六车道设计的主干道,保障了交通的畅通无阻,到达滨海湾商务区和乌节路购物带仅需10分钟的驾车时间。

周边近的大型商场宜家(IKEA Alexandra),Alexandra Central,女皇道购物中心(Queensway Shopping Centre)和Anchorpoint Shopping Centre让您每一次的美食、购物、娱乐休闲都是一次探索之旅,而新加坡主要的娱乐中心,例如怡丰城(VivoCity),圣淘沙(Sentosa)和花柏山公园(Mount Faber Park)也只有咫尺相隔。

除了交通十分便利之外,周边学校密布,对于有教育资源需求的住户而言,不仅在教育资源的选择上,而且在质量的追求上,从来不会成为烦恼。短距离可达的学校:光道小学(New Town Primary School (800m)),女皇镇小学(Queenstown Primary School (250m)),克信女子中学(Crescent Giris School),女皇镇中学(Queenstown Secondary School),女皇道中学(Queensway Secondary School),MDIS (Management Development Institute of Singapore),Global Indian International School。其他周边名校包括杜佛(Dover)地区的英华中学(Anglo Chinese School and Junior College),波娜维斯达地区的新加坡国立大学(National University of Singapore)和Tanglin Trust School。

现代化前沿的娱乐休闲配套设施,带给您无尽的精致生活和享受。作为都市繁忙生活中的一片绿洲,让您沉浸于舒适与雅致之中。Commonwealth Towers内的多样化设施满足所有住户的不同要求:儿童、父母和您生活的每一面需求。无论是让枯燥的生活热情奔放,还是放缓快节奏的步伐;无论是社交时间,还是切换到自我时间;无论是年轻人,抑或一颗年轻的心,所有时刻皆是精彩纷呈。


奢华的Commonwealth Towers内配套设施齐全独特,包括一个保卫室、俱乐部会所、3个功能室 & 室内健身房,网球场,奥利匹克标志的50米泳池 & 日照平台,私人用餐亭,SPA亭,烧烤区域、室外健身站、儿童娱乐场以及多主题的空中乐园可供选择。




休闲娱乐的艺术,生活在commonwealth,永远没有无聊的时间,即使周末宅在家中。两个公共空地,四个空中花园,以及数不尽的创意娱乐设施,例如栩栩如生的蛇&梯游戏、双人弈棋等等,带给您惬意的享受。


俯览城市天际线的视觉盛宴,Commonwealth Towers的两幢高楼,均在5层、14层、24层以及34层上配置了多主题的空中花园,将您在地面的休闲时光扩展到空中,聚餐、鸡尾酒、娱乐应有尽有。并且在34层的空中花园里,观赏一览无余的城市景观,让您留念忘返。

色彩缤纷的装饰风格,毫无瑕疵的细节工艺,奢华典雅的内饰和配置,巧妙的布局、灵活的计划是您的室内空间的每一个角落、每一个细节体会到家的温馨。2.8米的室内吊顶让您的空间立体化,而大理石铺设的地面时刻暗示着您的高贵和雍容。阳台大面积设计,视野开阔,促进室内空气循环。厨房采用开放式设计理念。卫生间的设计面积预留充足,装饰现代。卫生间二有双门设计,可从普通房或者客厅进入,白天夜晚,提供双重便利。

![]()
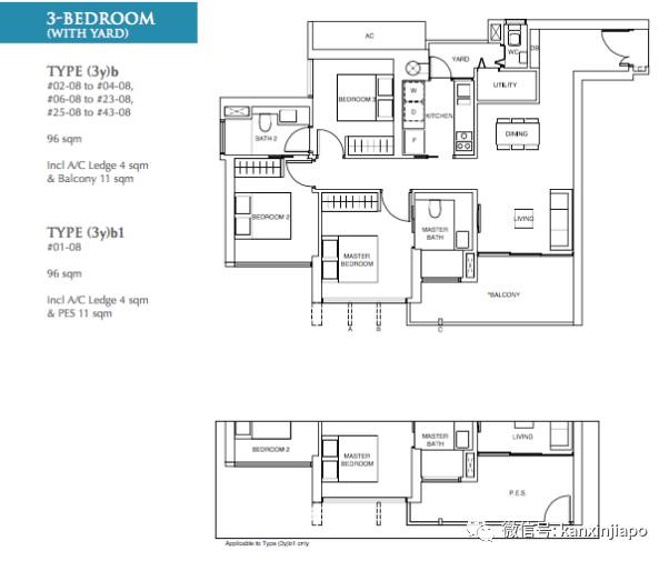
三居室户型:套内面积84平方米(904平方尺)至100平方米(1076平方尺);



四居室户型:套内面积121平方米(1302平方尺)。

![]()
Commonwealth Tower尚未竣工已售出了97%的单元,最后20套单元享受前所未有的开发商折扣优惠:
最低价三居室公寓#02-04仅售162万(1,076平方英尺);
高楼层的三居室公寓#27-08仅售171.18万(1,033平方英尺);
最有价值四房室公寓#30-19仅售215.6万(1,302平方英尺);
同时有最后一套一居室和两居室出售,具体价格待定,预计需要抽签,可以给大家参考的是一居价格约$80多万起,两居价格$140多万起。
首套房银行贷款最高可达70%至80%,银行促销年利率最低仅1.28% ,外国投资者可办理银行贷款。
中心地段,邻近设施,知名地产开发商,Commonwealth Towers绝对是一个值得自住或投资的明智选择。生活所需,Commonwealth Towers全部提供,舒适、美景、娱乐、便利,奢华生活的起点,不止于承诺。

若您对新加坡房产感兴趣或者想了解新加坡其它任何房产信息,请免费联系我们的特约金牌房产经纪人吴洲,常年专业买卖全岛任何产业,开发商直接销售代理,买房无经纪费,一个电话或微信的距离,数百个楼盘数万款房产任您挑,总有一款适合您,投资新加坡房产,外国人也可贷款,首付最低仅$30万新币起。
关于吴洲 ,任职于新加坡最大的国际性产业集团ERA担任高级营销总监,金牌房产经纪人(新加坡IEA房地产经纪协会2013/2014 年度金奖得主),他从业7年,秉承专业诚信,事无巨细的工匠精神从业理念,迄今为止,成交完的产业总市值以数亿新币计算,服务过数百位中高端客户投资新加坡产业,并获得客户满意好评,服务过的客户群体有新移民,企业家,艺人,教授学者和房地产开发商等,常年专业提供【新加坡任何公寓楼盘和商业地产以及地皮的买卖投资服务,买私宅无任何经纪费用】,如果您有任何新加坡产业需求,欢迎买家/卖家联系我们,常年买卖各类产业,我办事,您绝对放心。
同时欢迎热爱房产,具有强烈服务意识的经纪同仁加入我们的特战团队。
联系吴洲,请加微信号:peterwu99
手机:(0065) 9672 8008
政府执照号:R009913B

评论