置业狮城:女皇镇新地标,重续60多年前荣耀

女皇镇(Queenstown)是新加坡最古老的城镇之一,是一个比新加坡共和国还要历史悠久的住宅区域,也是新加坡人公认的首个卫星镇。
1953年9月27日,新加坡改良信托局(Singapore Improvement Trust,建屋局前身)的英国官员为了庆祝英国女王伊丽莎白二世登基,把本地首个卫星市镇命名为“女皇镇”,凭着它得天独厚的城郊位置,时至今日,女皇镇仍然是新加坡最抢手的居住地之一。
作为新加坡第一个卫星镇,女皇镇自然成为建屋局首批组屋的兴建地点,1956年,Forfar House,或者称大牌39号,新加坡建屋局前身SIT承建的第一个高层住宅拔地而起,共有14层,后来Forfar Heights坐落在原住址上,取而代代之的是一幢40层的政府祖屋。时过境迁,如今两幢43层的现代化公寓拔地而起,雄踞女皇镇将再续当年辉煌。

没有瑕疵、满足所有需求的项目,从来就不是那么容易发现的,但是由新加坡领先的住宅开发商丰隆实业主打,一个正在紧锣密鼓建设中的公寓项目 – Commonwealth Towers,正在用细节赢得每一个投资者的信赖。她被设计成女皇镇的重要标志,提供给住户们令人惊叹的城市美景。两幢高楼,以其及其新潮的设计和优雅的内部装饰,在不久的定将成为竞相追捧的私人房产。845个居住单元珍藏在一个透着金属光泽的外表下,两幢43层的高楼直耸云霄,一个逆潮流而行的举动使commonwealth的天际线容光焕发 – “选择卓越,为什么要甘于地面”
Commonwealth Towers坐落在联邦道(commonwealth avenue)上,位于女皇镇(Queenstown)地铁站的正对面。一个新的天桥会建设在项目门口,为搭乘地铁的住户提供极大的便利。一个满足你所有需求的地址,每一个家庭需求都触手可及,试想一下包括旁若门阶的女皇镇(Queenstown)地铁站所带来的便利。
女皇镇(Queenstown)地区公寓住宅有限,目前已建成入住的项目中,只有Queens Condo,Alexis和Anchorage满足私宅居住的需求。并且Alexis以一居室房型为特色,Queens Condo和Anchorage都已经有超过10年的房龄。因此对投资者而言,这是一个不可多得的机会。
最后,此次项目的开发商丰隆实业以开发高端住宅著称,有丰富的设计、建设、运营经验,其开发的公寓项目均以展现奢华装饰、品质生活备受欢迎,是新加坡地产开发的佼佼者。项目设计理念“真正意义去思考住户的每一个细节,倾尽慷慨的注意力去完善每一个细节,为每一种个性、性格的住户提供善解人意、深思熟虑的感受,只为每一种心情,每一个愿望。”

楼盘投资热点分析:
1.短距离步行,天桥无缝连接可达Queenstown女皇镇地铁站;
2.项目开发商为新加坡地产先驱 – 城市发展集团 & 丰隆集团;
3.成熟商业地段,周边商业圈发达(例如荷兰村(Holland Village)、宜家、女皇道购物中心(Queensway Shopping Centre)、the Anchorage等);
4.交通便利,连结多条主干道和高速路,十分钟驾车可达乌节路(Orchard Road)、商务中心CBD、金沙湾(Marina Bay)和南方滨水区(southern waterfront);
5.紧邻Star Vista,一个全新零售+娱乐中心,拥有超过100个商铺,坐落在两站地铁之外的波娜维斯达(Buona Vista)站;
6.紧靠花柏山公园(Mount Faber Park),亨德森波浪人行桥(Hendeson Waves),南部山脊(southern ridges) 和新加坡花柏山缆车(Mount Faber Cable Car Station)。花柏山(Mount Faber) 和肯特岗公园(kent Ridge Park)中间的步道,提升了绿色生活的品质。
7.租房需求旺盛,周围近邻的新加坡国立大学医院(NUH),新加坡国立大学(NUS),以及商务办公中心Fusionpolis,Biopolis,Alexandra Technopark和Mapletree’s Business City等提供了大量的租房需求
8.教育资源丰富,名校云集。颜永成小学(Gan Eng Seng Primary),克信女子中学(Crescent Giris School),圣婴德兰女校(CHIJ Theresa Convent),新加坡理工学院Singapore Polytechnic和亚洲排名第一大学-National University of Singapore.

Commonwealth Towers公寓坐落在新加坡备受关注的高端邮区 – 第三邮区的中心,依Commonwealth Avenue而建,因此住户们可以随时享受地理位置带来的便捷。一分钟步行距离即达Queenstown地铁站,从这里出发,便捷达珊顿大道(Shenton Way),萊佛士坊(Raffles Place), 波娜维斯达(Buona Vista),裕廊东(Jurong East )及新加坡全岛任何区域。

对于私家车拥有者而言,毗邻高速路亚逸拉惹高速公路(AYE – Ayer Rajah Expressway)和中央高速公路(CTE – Central Expressway),城市主干道联邦道(Commonwealth Avenue),Tanglin Road和Alexander Road,两条双向六车道设计的主干道,保障了交通的畅通无阻,同时便捷可达新加坡各大重要商区。重要商区包括CBD、Marina Bay金融中心和著名的乌节路(Orchard Road)购物带,仅仅10分钟的驾车时间即可达到。同时,一旁的壳牌(Shell)加油站让您再也不用担心最近加油站在哪的尴尬处境。
住户们溜达片刻就可以到达邻近的大型商场宜家(IKEA Alexandra),Alexandra Central,女皇道购物中心(Queensway Shopping Centre)和Anchorpoint Shopping Centre,在那里可以开始一场对美食、购物、娱乐休闲的探索之旅。而新加坡主要的娱乐中心,例如怡丰城(VivoCity),圣淘沙(Sentosa)和花柏山公园(Mount Faber Park)也只有咫尺相隔。
项目为附近最大公寓项目,超过800个居住单元,配备有最新的娱乐休闲设施。堪称都市忙绿生活中的一方净土,让您满足于舒适雅致的生活方式。而且租房需求旺盛。周围名校云集:颜永成小学(Gan Eng Seng Primary),克信女子中学(Crescent Giris School),新加坡国立大学(NUS),INSEAD商学院。
教育资源丰富
除了交通十分便利之外,周边学校密布,对于有教育资源需求的住户而言,不仅在教育资源的选择上,而且在质量的追求上,从来不会成为烦恼。
短距离可达的学校:
光道小学(New Town Primary School (800m))
女皇镇小学(Queenstown Primary School (250m))
克信女子中学(Crescent Giris School)
女皇镇中学(Queenstown Secondary School)
女皇道中学(Queensway Secondary School)
MDIS (Management Development Institute of Singapore)
Global Indian International School
其他周边名校包括杜佛(Dover)地区的英华中学(Anglo Chinese School and Junior College),波娜维斯达地区的新加坡国立大学(National University of Singapore)和Tanglin Trust School at Portsdown Road。
虽然MRT近在咫尺,但是对于讨厌地铁拥挤的住户而言,Commonwealth Towers门前的巴士站可以通达全岛任意区域,提供了另一种便利。巴士站线路一览:

巴士51路和95路可以带您前往宜家(IKEA),Anchorage购物中心,女皇道(Queensway)购物中心。也有前往政府大厦(City Hall),裕廊东( Jurong East), 乌节路(Orchard), 珊顿道(Shenton Way)和丹戎巴葛(Tanjong Pagar)的巴士。


最前沿的娱乐休闲创意,带给您最现代化的休闲方式。作为都市繁忙生活中的一片绿洲,让您沉浸于舒适与雅致之中。Commonwealth Towers内的多样化设施满足所有住户的不同要求:儿童、父母和您生活的每一面需求。无论是让枯燥的生活热情奔放,还是放缓快节奏的步伐;无论是社交时间,还是切换到自我时间;无论是年轻人,抑或一颗年轻的心,所有时刻皆是精彩纷呈。
奢华的Commonwealth Towers内配套设施齐全独特,包括一个保卫室、俱乐部会所、3个功能室 & 室内健身房,网球场,奥利匹克标志的50米泳池 & 日照平台,私人用餐亭,SPA亭,烧烤区域、室外健身站、儿童娱乐场以及多主题的空中乐园可供选择。

休闲娱乐的艺术,生活在commonwealth,永远没有无聊的时间,即使周末宅在家中。两个公共空地,四个空中花园,以及数不尽的创意娱乐设施,例如栩栩如生的蛇梯游戏、双人弈棋等等,带给您惬意的享受。


高人一等的视觉盛宴,Commonwealth Towers的两幢高楼,均在5层、14层、24层以及34层上配置了多主题的空中花园,将您在地面的休闲时光扩展到空中,聚餐、鸡尾酒、娱乐应有尽有。并且在34层的空中花园里,观赏一览无余的城市景观,让您留念忘返。住在高层的用户远眺视野可达南部山脊(Southern Ridgs),green belt,以及东南部的CBD和城市天际线。

毫无瑕疵的细节工艺。奢华典雅的内饰和配置,巧妙的布局、灵活的计划满足您生活的全部需求。每一个角落、每一个细节,让家的体验从没有缺憾。进入样板间,欢迎您的就是客厅 & 餐厅,室内吊顶2.8米,大理石铺设的地面时刻暗示着主人的高贵和雍容。
阳台大面积设计,视野开阔,促进室内空气循环。厨房采用开放式设计理念。主人屋设计体面,上悬窗的设计充分利用了室内空间 。卫生间的设计令人惊叹,面积预留充足,装饰现代。卫生间二有双门设计,可从普通房或者客厅进入,白天夜晚,提供双重便利。
优质开发商操盘
作为新加坡丰隆集团投资和开发的延伸,丰隆实业成立在1968年,从新加坡地产的先驱,到如今市场中的巨头,丰隆实业已经开发了50处深受好评的住宅公寓,包括一系列选址在新加坡豪宅区的高端项目。
作为一个前瞻型的开发商,丰隆一直致力于追求进步和扩张,维持高品质设计,高服务质量,高持续标准。自豪于开发了一些最别致的地产项目,例如One Balmoral, Sage, The Meyerise, The Tate Residences和Aalto。“让梦想中的家庭成为现实”成为了丰隆在设计Commonwealth Towers是的理念。丰隆的努力对准建立梦想家园,并将这一理念持续贯彻在每一个开放的项目之中。
关于房型
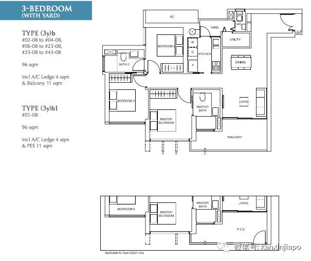
▼三居室户型:套内面积84平方米(904平方尺)至100平方米(1076平方尺)。大面积阳台设计,从8平米(86平方尺)到11平米(118平尺)可供选择,高层城市美景尽收眼底,美不胜收。




▼四居室户型:套内面积121平方米(1302平方尺)。

关于价格
到目前为止,共有4个新项目在第三邮区建设,而Commonwealth Towers是其中最大的一个公寓项目,共有845套居住单元供出售,高出周边平均476个单元平均水平的77%,目前 Commonwealth Towers每平方尺平均售价1700新元,相比靠近Tiong Bahru MRT Station的Highline Residences令人咂舌的2063新元每平方尺,不得不说价格十分合理。

潜在的高投资收益,楼盘的盈亏平衡点在1600新元/平方尺左右,假设开发商目标利润在10%至18%之间,即1760至1888新元/平方尺的售价。相比之下,Commonwealth Towers的售价最低才1500新币每平方尺。
一居室户型:套内面积41平方米(441平方英尺),售价$78.8万新币起。
两居室户型:套内面积65平方米起(699.65平方英尺),售价$127万起。
三居室户型:套内面积84平方米(904平方英尺)至100平方米(1076平方尺),整套售价142万起。
四居室户型,套内面积121平方米(1302平方英尺尺),整套售价208.3万起。
首套房银行贷款最高可达70%至80%,外国投资者可办理银行贷款。
中心地段,邻近设施,知名地产开发商,Commonwealth Towers绝对是一个值得自住或投资的明智选择。生活所需,Commonwealth Towers全部提供,舒适、美景、娱乐、便利,奢华生活的起点,不止于承诺。
若您对以上房产或者对新加坡其它任何房产项目感兴趣,请免费联系我们的特约金牌房产经纪人吴洲,专业买卖全岛任何产业,开发商直接销售代理,买房无经纪费,一个电话的距离,数十个楼盘数千款房产任您挑,总有一款适合您,投资新加坡房产,首付最低仅$23万新币起,外国人可贷款。
关于吴洲, 金牌房产经纪人(新加坡IEA房地产经纪协会2013/2014 年度金奖得主),在获得金奖之后于同年融资$200万新币创业,跨界出任某互联网企业的首席运营官(COO),带领一个30人的团队在互联网行业打拼,高峰时期公司估值曾一度突破$1000万新币,后因项目创业失败,重新回归自己所热衷的房产经纪人行业,目前任职于新加坡本土最大产业集团担任高级营销董事。
他从业7年,秉持专业诚信,事无巨细的从业理念,迄今为止,成交完的产业总市值以数亿新币计算,服务过数百位中高端客户投资产业并获得好评,服务过的客户群体有新移民,企业家,艺人,教授学者和房地产开发商等,专业提供【新加坡任何公寓楼盘和商业地产的买卖投资服务,买私宅无任何经纪费用】,如果您有任何产业需求,欢迎买家/卖家联系我们,一通电话,数十个楼盘数千款房产任您挑,我办事,您绝对放心。
联系吴洲,请加微信号:peterwu99
手机:(+65)96728008
CEA Reg:R009913B
评论