丹那美拉公寓新项目,安家投资好去处!

近期新加坡东部丹那美拉(Tanah Merah)地铁站边要开新盘啦,那就是即将问世的豪佳苑(GrandeurParkResidence)。

豪佳苑位置极佳,距离Tanah Merah地铁站出口仅50m,步行一分钟即可到达。即使是这短短的50米的路程也将建有凉棚走廊,无需日晒雨淋轻松回家。熟悉该区域的人都明白这里的生活便利程度。
乘车向西一站就是Bedok,有Bedok Point,Bedok Mall以及众多闻名新加坡的美食中心。向东一站是Expo博览中心,每周举办各种大型活动。所以这里日常生活购物,体验诸多美食,第一时间参加打折促销活动要多任性有多任性。
另外,离樟宜机场就两站地铁的距离,如果周末想要出国旅游可以提包就走,不用担心赶不上飞机。别人下班回家加吃顿饭的时间你可能就已经在身在国外了。

另外一个不可忽略的优势就是周围区域建设将为项目带来的巨大升值空间。在Expo有如火如荼发展的樟宜商业园区,已然吸引了无数高金技术公司,金融业巨头进驻。未来樟宜商业园区的扩展项目也在筹划之中。这里必将成为大量专业人士的首选居住之地。
同时樟宜机场的四号航站楼项目建设即将完工,五号航站楼也在筹划之中。随着世界第一的机场继续扩展它的领先地位,届时同样有非常可观的就业机会增加了,住房需求同样强烈。
另外,位于Expo的新加坡第四所大学SUTD同样也在持续发展扩大着其影响力,将吸引大批师生居住于此。随着工商业,物流,教育等多方面的发展,毫无疑问整体区域的房产价格都将大幅度受益。而最靠近地铁的豪佳苑无疑将成为最有升值潜力的明星项目之一。
介绍了位置再来介绍一下项目设计。豪佳苑将共建有720户,由6栋楼组成。前后楼之间特别保留了宽阔的间距以保证良好的视野。整个小区将建设包括50米泳池,室内外健身房,网球场,托儿所等全套90多项室内外设施,同时还将提供室内清洁,洗衣,维修等多种服务。真正做到足不出户的享受。

接下来给大家介绍一下户型设计
标准的一卧室单位为39平方米(420平方尺),户型方正,空间利用率高。价格为55万新币起售。

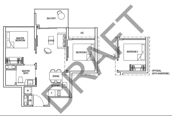
两卧室紧凑型单位为52平方米(560平方尺),设计上采用一间卫浴的形式而保证了室内面积的充分利用。同时两卧室由客厅隔开保证了隐私。设计非常合理。价格为70万新币起售。

标准的三房紧凑型为82平方米(882平方尺),拥有封闭式厨房,非常适合家庭生活。价格为100万多起售。

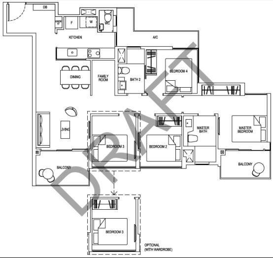
标准的四房105平方米,不仅拥有封闭式厨房还设计有一间多功能房,可作为储藏室,书房,娱乐室等多功能用途。价格为140万起售。

如果您想要了解更多关于豪佳苑的信息,欢迎点击页底“阅读原文”在线报名免费预约看房。也可微信联系xinjiapoyan6获取更多相关信息。项目将于三月初正式开盘,如此高性价比的好盘不容错过,赶紧行动起来吧。
评论