我想有个家,新加坡$55万起的一室一厅户型大汇总

我想有个家,一个不需要很大的家,在我疲倦的时候,我会想到它。
家,在所有人的概念里几乎都是等于房子,而年轻人刚走入工作岗位,面对新加坡高昂的房价和手上有限的积蓄似乎只能“望梅止渴”,买房的梦想似乎有点遥远。
但是笔者想说的是,川普逆天当选美国总统的这一事实告诉我们,人这一辈子,一定要有点追求,梦想总要有的,如果川普从一开始就像美国主流媒体那样认定自己不可能当选总统,那他将永远不可能有机会当选,房地产商都可以当总统,屌丝就不可以买房子了吗?
或许我们可以谦虚低调一点,不像王健林那样不接地气的的说先设立一个小梦想,赚他一个亿,但是我们可以先设立一个小梦想,努力点2017年先赚够买房的首付,在这跨入2017年还有不到6周的时间里,今天我们特地在此汇总新加坡全岛主要一卧室户型的楼盘,并配置精美图片给各位欣赏,以此刺激你的眼球,尽早设立好你的2017年奋斗目标。





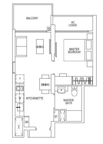
Parc Riveria 地处新加坡西海岸,到政府重点开发的裕廊湖和新隆高铁总站仅数分钟车程,楼盘总建筑单位为720套公寓,由两栋36层高的公寓组成,小区配备标准公寓设施,部分单位享有无敌蓄水池景观,一室一厅户型面积设计为43平方米,售价仅$55 万起,如此诱人的价格是目前市场上的唯一,没有第二。
▼一室一厅户型图:43.01平方米






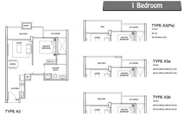
楼盘The Santorini 地处东部成熟住宅区淡滨尼区域,是由中国中冶地产主导开发的又一高品质楼盘,楼盘总建筑单位为597套公寓,配备标准公寓设施,距离新加坡淡马锡理工学院仅数分钟步行路程,对于驾车人士比较方便,到樟宜机场仅15分钟车程,同时到宜家,大型超市,数个大型商场等都在数分钟车程内,楼盘竣工在即,一室一厅户型为49平米,售价仅$61.4万起。
▼一室一厅户型:49平方米


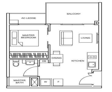
楼盘Hillion Residence(乐园)地处新加坡西北部武吉班让地铁站旁,是一个综合开发项目,楼下为商场,楼上为住宅,由一栋22层和两栋23层建筑组成,公寓总建筑单位为546套,靠近武吉知马自然保护区,地理位置交通方便,新的地铁蓝线已经投入使用,楼盘因紧挨地铁,乘坐地铁蓝线直达市区纽顿仅18分钟车程,到滨海湾金融中心约25分钟车程,目前该楼盘还有限量一室一厅户型,套内面积为44平方米,价格$63万起。




▼一室一厅户型图:44平方米


楼盘Poiz Residences 地处地理位置便利的波东巴西地铁站楼上,一分钟步行到地铁站,乘坐地铁到乌节路仅4站地铁8分钟车程,驾车到乌节路仅10分钟车程内,整个楼盘为综合开发项目,楼下为商场,楼上为住宅,总建筑单位由731套公寓和84间店面组成,店面不对外出售,由开发商自己保留经营,波东巴西处于地铁紫线区域,传统上因紧挨市区,是一个生活非常便利的区域,目前该楼盘一卧室户型为39平米,售价仅$63.7万起,对于想买来投资收取租金的投资客,此楼盘值得重点关注。



▼一卧室户型图:39平方米


林曦阁(The Glades)地处东部“小富人区” 丹那美拉地铁口,是由中国万科和新加坡吉宝置地合资开发的高品质楼盘,整个楼盘位9栋楼组成,总建筑公寓单位为729套,距离地铁站仅2分钟路程,一站地铁到樟宜机场,数分钟路程到新加坡第四所政府公立大学,同时靠近樟宜工业园区,是一个租赁潜力良好的楼盘,目前该楼盘的一室一厅户型为46平方米,投资金额为$69万起。



▼一卧室户型图:46平方米


楼盘Thomson Impressions 地处第20邮区(宏茂桥/碧山区域),由南山集团主导开发,楼盘总建筑单位288套,紧挨正在兴建的新地铁线Bright Hill 地铁站,因地处成熟区域,特别是该楼盘在名校爱童小学一公里范围内而备受家长亲觅,高楼层单位视野很好,可以享受无敌蓄水池景观,目前该楼盘还有限量一室一厅户型出售,套内面积设计为43平米,投资金额为$73.1万起。




▼一室一厅户型:43平方米


楼盘Fulcrum 地处第15邮区东海岸,地理位置极其优越,楼盘为永久地契的海景现房,总建筑公寓单位为128套,目前该楼盘家门口正在兴建地铁站,以后地铁就在家门口,到滨海湾金融中心仅数分钟地铁路程,通过ECP 高速驾车到中央商务区约10分钟车程,对于喜欢运动的朋友,数分钟步行路程即可到东海岸公园,东海岸传统上备受本地人和金融中心工作的金领人士亲觅,对于想投资的朋友,此楼盘可以实地考察多多了解,目前主推的一卧室户型为44和46平方米两种户型,投资金额为$90.7万起。



▼一卧室户型图:44平方米

以上只是重点介绍了一些一室一厅户型,对于有$100万左右预算想购买三室一厅户型尽快自住的朋友,我们也提供以下两个竣工在即的新公寓楼盘给您参考

楼盘Vue 8(奕景) 地处巴西立区域,靠近巴西立公园,是一个适合宜居的海景公寓楼盘,公寓总建筑单位为463套,小区有快巴接送居民往返于小区和巴西立地铁站,因紧挨“贵族学校”海外家庭国际学校,同时步行数分钟即可到海边散步而备受买家亲觅,目前该楼盘竣工在即还有限量单位在售,两室一厅$82万起,三室一厅$101万起。





▼两室一厅户型图:72平方米

▼三室一厅户型图:96平方米


楼盘Riverbank 地处盛港区域,紧挨轻轨,交通相对来说还算便利,是由老牌地产开发商UOL 主导开发,总建筑单位555套,整个楼盘用材考究,五个大型主题公寓设施,超过同类楼盘的公寓设施,部分户型甚至带有私人电梯,步行4分钟到Layer 轻轨站,同时靠近名校南桥小学,弥陀小学等满足年轻家长子女的入学需求,目前该楼盘竣工在即,还有限量三室一厅户型对外出售,价格仅$92万起,在新加坡的新公寓楼盘中,价格算是比较诱人的啦。






▼三室一厅户型图:88平方米

若您对以上楼盘或者其他任何新加坡房产感兴趣,请免费联系我们的特约房产经纪人吴洲,专业买卖全岛任何产业,开发商直接销售代理,买房无经纪费,一个电话的距离,数百款房产任您挑,总有一款适合您。

评论