Queentown 步行1分钟新公寓将开盘!投资自住都合适

地理位置超级好的女皇碧苑Queens Peak公寓项目要开盘了!Queens Peak位于女皇镇(Queenstown)地铁站对面,仅需一分钟,居民便可从多层停车场2楼经行人天桥到达女皇镇(Queens Town)地铁站。
而且,女皇镇离中央金融区和乌节路都只有大概10来分钟的车程,无论是公共交通还是驾车都很方便。这一带的租客以在金融区、壹纬城,以及国大等科研院所工作的高端人士为主。


▲一张图告诉你它离地铁有多近
其设计基于有机建筑哲学,注重居所和自然环境之间的和谐。波浪形的曲线外观高尚典雅,室内空间却中规中矩,毫不浪费空间。外部曲线巧妙地用作阳台,美观与实用两者兼得。

Queens Peak项目包括2座44层的高楼,共有736个住宅单位,户型从最小40平米的1卧到186平米的5卧室,以及4个400多平米的带私人游泳池,按摩浴缸和屋顶露台的大型单层阁楼单位。除了住宅之外还包括一间商铺和可容纳100人的托儿所。


▲7层空中花园效果图

▲27层空中花园效果图
项目1至6楼为停车场,7楼和27楼为空中花园,为居民呈现优质生活空间,城市夜景一览无余,尽享都市繁华的宁静。50米泳池,托儿所和商店等77项公用设施分布于7个休闲区,尽可能为每户居民带来极致的生活享受。住宅单位从第8层到第26层1卧2卧为主,包括少量3卧室单位,从第28层到第43层为3卧室到5卧室单位,可以说兼顾了投资和自住需求。
新加坡的公寓不仅小区设施多种多样,并且全部都是精装修,室内设计和家具也是质量上乘,几乎可以达到拎包入住的标准。

我们可以看到Queens Peak都是采用的著名品牌科勒。

厨房,柜子,水池,洗衣机全部是精装房的交房标准。

感兴趣的话欢迎添加微信号xinjiapoyan6来参观样板间。

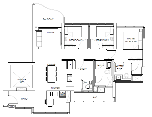
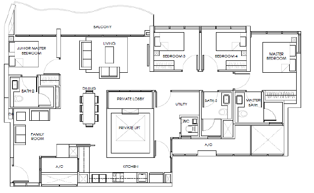
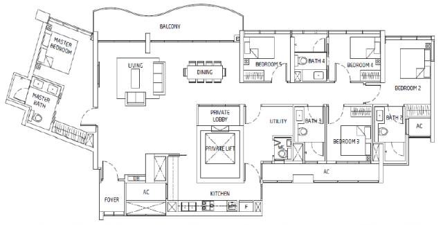
该项目户型包括1-5房式单位以及4间豪华阁楼单位,其中8层至26层包括1房式,2房式及少量3房式单位,28层至43层为3房式至5房式单位。值得一提的是,3房式C8户型,4,5房式单位及豪华阁楼配有私人电梯,既彰显尊贵又铸就非凡品味。公寓整体,户型方正,风水极佳,是投资,自住的不二选择。

户型图
▼1卧室+1书房(76.8万起;另有1卧室单位仅需68万起)

▼2卧室单位(96.6万起)

▼3卧室单位(131万起)

▼4卧室单位(224万起)

▼5卧室单位(296万起)

这个价格在这一带可说是非常难得。之前很多网友问外国人能不能直接购买新加坡的公寓,答案是肯定的,外国人是可以购买新加坡公寓的(只是税相比本国人要高一些)也可以贷款的。并且新加坡利率水平常年维持在较低的水平。
女皇碧苑Queens Peak将于10月22日开放VVIP参观示范单位,VVIP不但享有提前选取自己心仪的单位的权利,还享有开盘折扣。
感兴趣的网友,可以加微信 xinjiapoyan6 咨询。或写邮件至 [email protected]。我们将直接安排您到发展商样板房参观,无需中介费。
评论